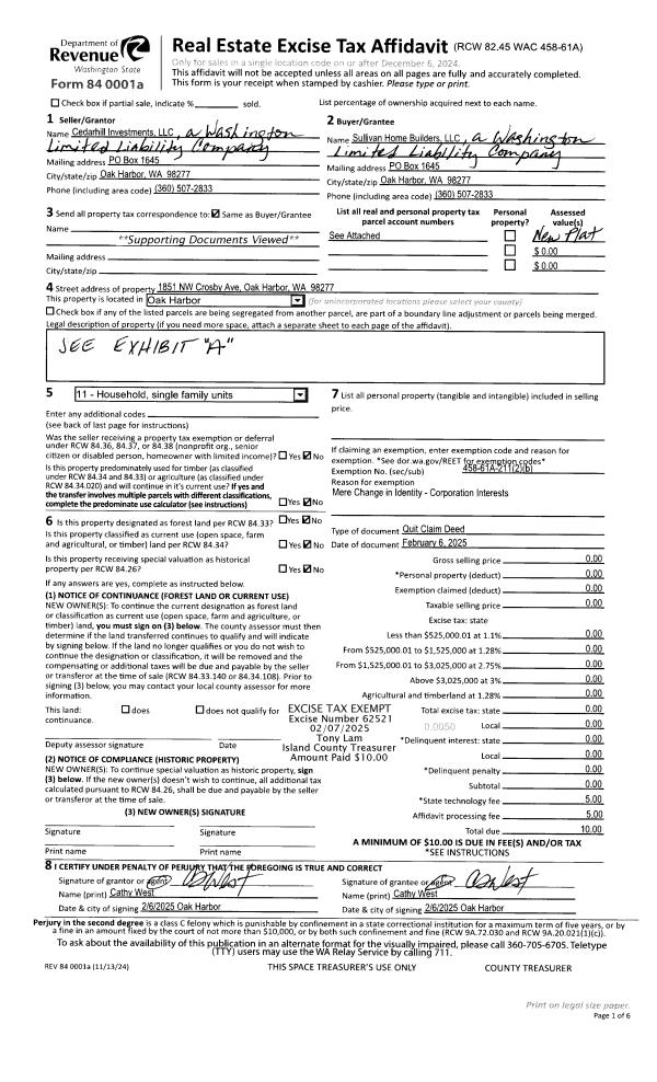
Property
Account |
| Property ID: | 631187 | Abbreviated Legal Description: | LOT 3 SP 88-03.23013.309-4610 V2 SP P171-2 AF#88011157 TGW VIEW EZ AF#88011989 TGW BEACH ACCESS EZ AF#88011990 BLA 188/22 4554580 |
| Geographic ID: | R23013-276-4970 | Agent Code: | |
| Type: | Real | | |
| Tax Area: | 712 - APPRAISER-S Whid Schl Dist, outside Langley, improved, greater than 1 acre | Land Use Code | 11 |
| Open Space: | N | DFL | N |
| Historic Property: | N | Remodel Property: | N |
| Multi-Family Redevelopment: | N | | |
| Township: | 30 | Section: | 13 |
| Range: | R2 |
Location |
| Address: | 3390 FOX SPIT RD LANGLEY, WA 98260 | Mapsco: | |
| Neighborhood: | Cycle 3 | Map ID: | 376 |
| Neighborhood CD: | 3 |
Owner |
| Name: | HEHN, DOUGLAS H | Owner ID: | 313600 |
| Mailing Address: | LISA M ELRAND 3390 FOX SPIT RD LANGLEY, WA 98260 | % Ownership: | 100.0000000000% |
| | | Exemptions: | |
Taxes and Assessment Details
Values
| (+) Improvement Homesite Value: | + | $0 | |
| (+) Improvement Non-Homesite Value: | + | $726,864 | |
| (+) Land Homesite Value: | + | $0 | |
| (+) Land Non-Homesite Value: | + | $420,000 | |
| (+) Curr Use (HS): | + | $0 | $0 |
| (+) Curr Use (NHS): | + | $0 | $0 |
| | | -------------------------- | |
| (=) Market Value: | = | $1,146,864 | |
| (–) Productivity Loss: | – | $0 | |
| | | -------------------------- | |
| (=) Subtotal: | = | $1,146,864 | |
| (+) Senior Appraised Value: | + | $0 | |
| (+) Non-Senior Appraised Value: | + | $1,146,864 | |
| | | -------------------------- | |
| (=) Total Appraised Value: | = | $1,146,864 | |
| (–) Senior Exemption Loss: | – | $0 | |
| (–) Exemption Loss: | – | $0 | |
| | | -------------------------- | |
| (=) Taxable Value: | = | $1,146,864 | |
Taxing Jurisdiction
| Owner: | HEHN, DOUGLAS H | | |
| % Ownership: | 100.0000000000% | | |
| Total Value: | $1,146,864 | | |
| Tax Area: | 712 - APPRAISER-S Whid Schl Dist, outside Langley, improved, greater than 1 acre |
| CF | Conservation Futures | 0.0316035091 | $1,146,864 | $1,146,864 | $36.24 | | |
| FIRE3 | Fire & Rescue Dist #3 S Whidbey GEN | 1.2004855531 | $1,146,864 | $1,146,864 | $1,376.79 | | |
| HOBOND | Hospital BOND | 0.1910887512 | $1,146,864 | $1,146,864 | $219.15 | | |
| HOGEN | Hospital GEN | 0.3902502903 | $1,146,864 | $1,146,864 | $447.56 | | |
| CE | County Current Expense | 0.3708482477 | $1,146,864 | $1,146,864 | $425.31 | | |
| CR | County Roads | 0.4584763726 | $1,146,864 | $1,146,864 | $525.81 | | |
| ISLANDEMS | Hospital GEN (EMS) | 0.5000000000 | $1,146,864 | $1,146,864 | $573.43 | | |
| LIB | Library Sno-Isle GEN | 0.3153421757 | $1,146,864 | $1,146,864 | $361.65 | | |
| PORTWHID | Port of S Whidbey GEN | 0.1094540357 | $1,146,864 | $1,146,864 | $125.53 | | |
| SCH206BOND | School 206 BOND | 0.3161759235 | $1,146,864 | $1,146,864 | $362.61 | | |
| SCH206MO | School 206 Enrichment | 0.4547169547 | $1,146,864 | $1,146,864 | $521.50 | | |
| ST | State School | 1.3035497053 | $1,146,864 | $1,146,864 | $1,494.99 | | |
| ST2 | State School Part 2 | 0.8169543533 | $1,146,864 | $1,146,864 | $936.94 | | |
| SWHIDPRBD | P & R S Whidbey BOND | 0.0152817568 | $1,146,864 | $1,146,864 | $17.53 | | |
| SWHIDPRBD2 | P & R S Whidbey BOND2 | 0.0138911264 | $1,146,864 | $1,146,864 | $15.93 | | |
| SWHIDPRMT | P & R S Whidbey GEN | 0.2053334452 | $1,146,864 | $1,146,864 | $235.49 | | |
| | Total Tax Rate: | 6.6934522006 | | | | | |
| | | | | Taxes w/Current Exemptions: | $7,676.46 | | |
| | | | | Taxes w/o Exemptions: | $7,676.46 | | |
Improvement / Building
| Improvement #1: | RESIDENTIAL | State Code: | Y | 2672.0 sqft | Value: | $726,864 |
| Bathrooms: | 2.5 | Bedrooms: | 2 | | Ceiling: | DRYWALL PAINTED | Exterior Wall/Cover: | WOOD SIDING | | Floor Covering: | HARDWOOD/CARP 20-80 | Floor Structure: | WOOD W/SUBFLOOR | | Foundation: | CONCRETE | Heating: | FHA GAS | | Interior Finish: | DRYWALL PAINT | Plumbing Fixture Cnt: | 14 | | Roof Slope: | 12" IN 12" | Roof Structure/Cover: | CJ ASPHALT |
|
| | Type | Description | Class CD | Sub Class CD | Year Built | Area |
| | BAS | BASE/MAIN FLOOR | 5 | 0 | 1998 | 1690.0 |
| | OP4 | OPEN PORCH W/CEILING-ROOF | 5 | 0 | 1998 | 120.0 |
| | DGR | DETACHED GARAGE | 5 | 0 | 1998 | 780.0 |
| | UPS | UPPER STORY | 5 | 0 | 1998 | 606.0 |
| | OWP | OPEN WOOD PORCH W/STEPS | 5 | 0 | 1998 | 636.0 |
| | OWC | OPEN WOOD PORCH W/STEPS/ROOF/C | 5 | 0 | 1998 | 162.0 |
| | OWC | OPEN WOOD PORCH W/STEPS/ROOF/C | 5 | 0 | 1998 | 36.0 |
| | UPS | UPPER STORY | 5 | 0 | 1998 | 376.0 |
| | OP4 | OPEN PORCH W/CEILING-ROOF | 5 | 0 | 1998 | 80.0 |
Sketch
| No sketches available for this property. |
Property Image
Land
| 1 | 17 | AC (01.01-02.00) | 1.4400 | 62726.40 | 0.00 | 0.00 | 1.00 | $420,000 | $0 |
Roll Value History
| 2026 | N/A | N/A | N/A | N/A | N/A |
| 2025 | $726,864 | $420,000 | $0 | $1,146,864 | $1,146,864 |
| 2024 | $526,027 | $400,000 | $0 | $926,027 | $926,027 |
| 2023 | $532,422 | $380,000 | $0 | $912,422 | $912,422 |
| 2022 | $487,908 | $360,000 | $0 | $847,908 | $847,908 |
| 2021 | $429,308 | $310,000 | $0 | $739,308 | $739,308 |
| 2020 | $418,482 | $280,000 | $0 | $698,482 | $698,482 |
| 2019 | $318,993 | $300,000 | $0 | $618,993 | $618,993 |
| 2018 | $319,907 | $260,000 | $0 | $579,907 | $579,907 |
| 2017 | $321,735 | $175,000 | $0 | $496,735 | $496,735 |
| 2016 | $325,392 | $250,000 | $0 | $575,392 | $575,392 |
| 2015 | $329,047 | $250,000 | $0 | $579,047 | $579,047 |
| 2014 | $332,704 | $250,000 | $0 | $582,704 | $582,704 |
| 2013 | $286,821 | $120,000 | $0 | $406,821 | $406,821 |
| 2012 | $290,221 | $91,800 | $0 | $382,021 | $382,021 |
| 2011 | $293,620 | $108,000 | $0 | $401,620 | $401,620 |
| 2010 | $305,461 | $120,000 | $0 | $425,461 | $425,461 |
| 2009 | $318,717 | $120,000 | $0 | $438,717 | $438,717 |
| 2008 | $322,732 | $120,000 | $0 | $442,732 | $442,732 |
| 2007 | $318,540 | $120,000 | $0 | $438,540 | $438,540 |
Deed and Sales History
| 1 | 08/15/2024 | WD | Warranty Deed | MERRITT, STEPHEN B | HEHN, DOUGLAS H | | | $1,530,000.00 | 61034 | 4576108 |
| 2 | 03/21/2022 | QCD | Quit Claim Deed | EISENBACH REAL ESTATE, LLC | MERRITT, STEPHEN B | | | $0.00 | 60804 | 4575302 |
| 3 | 07/30/2013 | WD | Warranty Deed | COOKE TRUSTEE, RICHARD C | MERRITT, STEPHEN B | | | $609,000.00 | 12199 | 4345225 |
| 4 | 11/01/2004 | 5 | DNU - Marriage License/Name Change | COOKE, RICHARD C | COOKE TRUSTEE, RICHARD C | | | $0.00 | 45215 | 4117262 |
| 5 | 07/23/2003 | 5 | DNU - Marriage License/Name Change | COOKE TRUSTEES, RICHARD C & A | COOKE, RICHARD C | | | $0.00 | 33309 | 4068987 |
| 6 | 08/16/2002 | QCD | Quit Claim Deed | COOKE, RICHARD C | COOKE TRUSTEES, RICHARD C & A | | | $0.00 | 23216 | 4028584 |
| 7 | 04/01/1997 | WD | Warranty Deed | HOLUB, JIM & | COOKE, RICHARD C | | | $66,000.00 | 71148 | 97005194 |
| 8 | 07/01/1989 | WD | Warranty Deed | EISENBACH, MARVIN & | HOLUB, JIM & | | | $52,500.00 | 92895 | 89009660 |
| 9 | 01/01/1900 | OTHER | Other - Misc. Documents | Unknown | EISENBACH, MARVIN & | | | $0.00 | 59733 | 401820 |
Payout Agreement
| No payout information available.. |