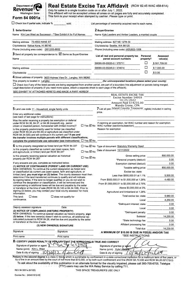
Property
Account |
| Property ID: | 631221 | Abbreviated Legal Description: | LOT 1 SP 88-02.33119.222-2300 V2 SP P176 AF#88011360 DRAINFIELD FOR 6250-00- 16016-0 AF#94002653 DRAINFIELD FOR 6250-17- 16001-0 AF#94017983 DRAINFIELD FOR 6250-17- 16002-0 AF#94017984 |
| Geographic ID: | R33119-237-2320 | Agent Code: | |
| Type: | Real | | |
| Tax Area: | 512 - APPRAISER-Stan/Cam Schl Dist, improved, greater than 1 acre | Land Use Code | 11 |
| Open Space: | N | DFL | N |
| Historic Property: | N | Remodel Property: | N |
| Multi-Family Redevelopment: | N | | |
| Township: | 31 | Section: | 19 |
| Range: | R3 |
Location |
| Address: | 1434 CRESTVIEW DR CAMANO ISLAND, WA 98282 | Mapsco: | |
| Neighborhood: | Cycle 5 | Map ID: | 929 |
| Neighborhood CD: | 5 |
Owner |
| Name: | DUCHAME, CRAIG | Owner ID: | 285453 |
| Mailing Address: | SANNA DUCHARME 1434 CRESTVIEW DR CAMANO ISLAND, WA 98282 | % Ownership: | 100.0000000000% |
| | | Exemptions: | |
Taxes and Assessment Details
Values
| (+) Improvement Homesite Value: | + | $0 | |
| (+) Improvement Non-Homesite Value: | + | $544,592 | |
| (+) Land Homesite Value: | + | $0 | |
| (+) Land Non-Homesite Value: | + | $350,000 | |
| (+) Curr Use (HS): | + | $0 | $0 |
| (+) Curr Use (NHS): | + | $0 | $0 |
| | | -------------------------- | |
| (=) Market Value: | = | $894,592 | |
| (–) Productivity Loss: | – | $0 | |
| | | -------------------------- | |
| (=) Subtotal: | = | $894,592 | |
| (+) Senior Appraised Value: | + | $0 | |
| (+) Non-Senior Appraised Value: | + | $894,592 | |
| | | -------------------------- | |
| (=) Total Appraised Value: | = | $894,592 | |
| (–) Senior Exemption Loss: | – | $0 | |
| (–) Exemption Loss: | – | $0 | |
| | | -------------------------- | |
| (=) Taxable Value: | = | $894,592 | |
Taxing Jurisdiction
| Owner: | DUCHAME, CRAIG | | |
| % Ownership: | 100.0000000000% | | |
| Total Value: | $894,592 | | |
| Tax Area: | 512 - APPRAISER-Stan/Cam Schl Dist, improved, greater than 1 acre |
| CF | Conservation Futures | 0.0316035091 | $894,592 | $894,592 | $28.27 | | |
| EMS1 | Fire & Rescue Dist #1 Camano GEN (EMS) | 0.3677864386 | $894,592 | $894,592 | $329.02 | | |
| FIRE1 | Fire & Rescue Dist #1 Camano GEN | 1.2502910536 | $894,592 | $894,592 | $1,118.50 | | |
| FIRE1BOND | Fire & Rescue Dist #1 Camano BOND | 0.1570001679 | $894,592 | $894,592 | $140.45 | | |
| CE | County Current Expense | 0.3708482477 | $894,592 | $894,592 | $331.76 | | |
| CR | County Roads | 0.4584763726 | $894,592 | $894,592 | $410.15 | | |
| LCIB | Library Sno-Isle BOND (Camano Island) | 0.0396325772 | $894,592 | $894,592 | $35.45 | | |
| LIB | Library Sno-Isle GEN | 0.3153421757 | $894,592 | $894,592 | $282.10 | | |
| SCH205_401 | School 205-401 Enrichment | 1.2698420524 | $894,592 | $894,592 | $1,135.99 | | |
| SCH205BOND | School 205-401 BOND | 0.9396497583 | $894,592 | $894,592 | $840.60 | | |
| ST | State School | 1.3035497053 | $894,592 | $894,592 | $1,166.15 | | |
| ST2 | State School Part 2 | 0.8169543533 | $894,592 | $894,592 | $730.84 | | |
| | Total Tax Rate: | 7.3209764117 | | | | | |
| | | | | Taxes w/Current Exemptions: | $6,549.28 | | |
| | | | | Taxes w/o Exemptions: | $6,549.28 | | |
Improvement / Building
| Improvement #1: | RESIDENTIAL | State Code: | Y | 1984.0 sqft | Value: | $544,592 |
| Bathrooms: | 3 | Bedrooms: | 3 | | Ceiling: | DRYWALL PAINTED | Exterior Wall/Cover: | SHINGLE | | Floor Covering: | HARDWOOD/CARP 60-40 | Floor Structure: | WOOD W/SUBFLOOR | | Foundation: | CONCRETE | Heating: | FHA GAS | | Interior Finish: | DRYWALL PAINT | Plumbing Fixture Cnt: | 12 | | Roof Slope: | 8" IN 12" | Roof Structure/Cover: | CJ ASPHALT |
|
| | Type | Description | Class CD | Sub Class CD | Year Built | Area |
| | BAS | BASE/MAIN FLOOR | 3 | 0 | 1994 | 1392.0 |
| | OP2 | OPEN PORCH W/STEPS | 3 | 0 | 1994 | 144.0 |
| | OP4 | OPEN PORCH W/CEILING-ROOF | 3 | 0 | 1994 | 108.0 |
| | UPS | UPPER STORY | 3 | 0 | 1994 | 592.0 |
| | OWP | OPEN WOOD PORCH W/STEPS | 3 | 0 | 1994 | 384.0 |
| | OWR | OPEN WOOD PORCH W/STEPS/ROOF | 3 | 0 | 1994 | 140.0 |
| | OWC | OPEN WOOD PORCH W/STEPS/ROOF/C | 3 | 0 | 1994 | 140.0 |
| | ENP | ENCLOSED PORCH | 3 | 0 | 1994 | 300.0 |
| | CPD | OPEN CARPORT DIRT FLOOR | 3 | 0 | 1994 | 1056.0 |
| | DGR | DETACHED GARAGE | 3 | 0 | 1994 | 2407.5 |
Sketch
Property Image
Land
| 1 | 18 | AC (02.01-03.00) | 2.5000 | 108900.00 | 0.00 | 0.00 | 1.00 | $350,000 | $0 |
Roll Value History
| 2026 | N/A | N/A | N/A | N/A | N/A |
| 2025 | $544,592 | $350,000 | $0 | $894,592 | $894,592 |
| 2024 | $550,832 | $340,000 | $0 | $890,832 | $890,832 |
| 2023 | $557,073 | $330,000 | $0 | $887,073 | $887,073 |
| 2022 | $508,681 | $320,000 | $0 | $828,681 | $828,681 |
| 2021 | $418,975 | $210,000 | $0 | $628,975 | $628,975 |
| 2020 | $408,326 | $200,000 | $0 | $608,326 | $608,326 |
| 2019 | $309,872 | $250,000 | $0 | $559,872 | $559,872 |
| 2018 | $280,033 | $210,000 | $0 | $490,033 | $490,033 |
| 2017 | $281,754 | $135,000 | $0 | $416,754 | $416,754 |
| 2016 | $285,191 | $90,000 | $0 | $375,191 | $375,191 |
| 2015 | $268,410 | $90,000 | $0 | $358,410 | $358,410 |
| 2014 | $270,741 | $90,000 | $0 | $360,741 | $360,741 |
| 2013 | $273,072 | $96,720 | $0 | $369,792 | $369,792 |
| 2012 | $275,404 | $96,720 | $0 | $372,124 | $372,124 |
| 2011 | $277,737 | $120,900 | $0 | $398,637 | $398,637 |
| 2010 | $276,170 | $120,900 | $0 | $397,070 | $397,070 |
| 2009 | $285,519 | $187,500 | $0 | $473,019 | $473,019 |
| 2008 | $289,092 | $187,500 | $0 | $476,592 | $476,592 |
| 2007 | $292,662 | $187,500 | $0 | $480,162 | $480,162 |
Deed and Sales History
| 1 | 06/11/2018 | WD | Warranty Deed | PISTOLE, DAVID A | DUCHAME, CRAIG | | | $562,500.00 | 34538 | 4446207 |
| 2 | 12/03/1998 | WD | Warranty Deed | LAMBERTSON, ROBERT F | PISTOLE, DAVID A | | | $208,000.00 | 84856 | 98026751 |
| 3 | 01/01/1994 | WD | Warranty Deed | SCHWARTZ, MICHAEL O | LAMBERTSON, ROBERT F | | | $77,000.00 | 40357 | 94002253 |
| 4 | 01/01/1900 | OTHER | Other - Misc. Documents | Unknown | SCHWARTZ, MICHAEL O | | | $0.00 | 70793 | 87004238 |
Payout Agreement
| No payout information available.. |