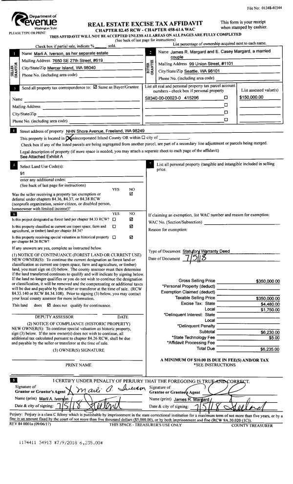
Property
Account |
| Property ID: | 631472 | Abbreviated Legal Description: | LOT 4 SP 86-08.23305.308-2080 V2 SP P179 AF#88012531 |
| Geographic ID: | R23305-317-1640 | Agent Code: | |
| Type: | Real | | |
| Tax Area: | 112 - APPRAISER-OH Schl Dist, outside OH, improved, greater than 1 acre | Land Use Code | 11 |
| Open Space: | N | DFL | N |
| Historic Property: | N | Remodel Property: | N |
| Multi-Family Redevelopment: | N | | |
| Township: | 33 | Section: | 05 |
| Range: | R2 |
Location |
| Address: | 433 SEA BREEZE WAY OAK HARBOR, WA 98277 | Mapsco: | |
| Neighborhood: | Cycle 6 | Map ID: | 585 |
| Neighborhood CD: | 6 |
Owner |
| Name: | JOHNSON JTWROS, RUSSELL EDWARD | Owner ID: | 284548 |
| Mailing Address: | ANITA LEE JOHNSON JTWROS 438 E SEABREEZE WAY OAK HARBOR, WA 98277 | % Ownership: | 100.0000000000% |
| | | Exemptions: | |
Taxes and Assessment Details
Values
| (+) Improvement Homesite Value: | + | $0 | |
| (+) Improvement Non-Homesite Value: | + | $24,120 | |
| (+) Land Homesite Value: | + | $0 | |
| (+) Land Non-Homesite Value: | + | $120,000 | |
| (+) Curr Use (HS): | + | $0 | $0 |
| (+) Curr Use (NHS): | + | $0 | $0 |
| | | -------------------------- | |
| (=) Market Value: | = | $144,120 | |
| (–) Productivity Loss: | – | $0 | |
| | | -------------------------- | |
| (=) Subtotal: | = | $144,120 | |
| (+) Senior Appraised Value: | + | $0 | |
| (+) Non-Senior Appraised Value: | + | $144,120 | |
| | | -------------------------- | |
| (=) Total Appraised Value: | = | $144,120 | |
| (–) Senior Exemption Loss: | – | $0 | |
| (–) Exemption Loss: | – | $0 | |
| | | -------------------------- | |
| (=) Taxable Value: | = | $144,120 | |
Taxing Jurisdiction
| Owner: | JOHNSON JTWROS, RUSSELL EDWARD | | |
| % Ownership: | 100.0000000000% | | |
| Total Value: | $144,120 | | |
| Tax Area: | 112 - APPRAISER-OH Schl Dist, outside OH, improved, greater than 1 acre |
| CF | Conservation Futures | 0.0316035091 | $144,120 | $144,120 | $4.55 | | |
| CEM1 | Cemetery #1 | 0.0040320932 | $144,120 | $144,120 | $0.58 | | |
| FIRE2 | Fire & Rescue Dist #2 N Whidbey GEN | 0.5475949600 | $144,120 | $144,120 | $78.92 | | |
| HOBOND | Hospital BOND | 0.1910887512 | $144,120 | $144,120 | $27.54 | | |
| HOGEN | Hospital GEN | 0.3902502903 | $144,120 | $144,120 | $56.24 | | |
| CE | County Current Expense | 0.3708482477 | $144,120 | $144,120 | $53.45 | | |
| CR | County Roads | 0.4584763726 | $144,120 | $144,120 | $66.08 | | |
| ISLANDEMS | Hospital GEN (EMS) | 0.5000000000 | $144,120 | $144,120 | $72.06 | | |
| LIB | Library Sno-Isle GEN | 0.3153421757 | $144,120 | $144,120 | $45.45 | | |
| NWHIDPRMT | P & R N Whidbey GEN | 0.2004466701 | $144,120 | $144,120 | $28.89 | | |
| SCH201MO | School 201 Enrichment | 1.8559231640 | $144,120 | $144,120 | $267.48 | | |
| ST | State School | 1.3035497053 | $144,120 | $144,120 | $187.87 | | |
| ST2 | State School Part 2 | 0.8169543533 | $144,120 | $144,120 | $117.74 | | |
| | Total Tax Rate: | 6.9861102925 | | | | | |
| | | | | Taxes w/Current Exemptions: | $1,006.85 | | |
| | | | | Taxes w/o Exemptions: | $1,006.85 | | |
Improvement / Building
| Improvement #1: | RESIDENTIAL | State Code: | Y | 0.0 sqft | Value: | $24,120 |
| | Type | Description | Class CD | Sub Class CD | Year Built | Area |
| | DGR | DETACHED GARAGE | 3 | 0 | 2018 | 792.0 |
| | OCP | OPEN CARPORT | 3 | 0 | 2018 | 432.0 |
| | OCP | OPEN CARPORT | 3 | 0 | 2018 | 432.0 |
Sketch
Property Image
Land
| 1 | 18 | AC (02.01-03.00) | 2.2000 | 95832.00 | 0.00 | 0.00 | 1.00 | $120,000 | $0 |
Roll Value History
| 2026 | N/A | N/A | N/A | N/A | N/A |
| 2025 | $24,120 | $120,000 | $0 | $144,120 | $144,120 |
| 2024 | $24,120 | $110,000 | $0 | $134,120 | $134,120 |
| 2023 | $24,120 | $110,000 | $0 | $134,120 | $134,120 |
| 2022 | $19,800 | $80,000 | $0 | $99,800 | $99,800 |
| 2021 | $19,800 | $70,000 | $0 | $89,800 | $89,800 |
| 2020 | $19,800 | $70,000 | $0 | $89,800 | $89,800 |
| 2019 | $19,800 | $90,000 | $0 | $109,800 | $109,800 |
| 2018 | $19,800 | $90,000 | $0 | $109,800 | $109,800 |
| 2017 | $0 | $80,000 | $0 | $80,000 | $80,000 |
| 2016 | $0 | $80,000 | $0 | $80,000 | $80,000 |
| 2015 | $0 | $80,000 | $0 | $80,000 | $80,000 |
| 2014 | $0 | $70,000 | $0 | $70,000 | $70,000 |
| 2013 | $0 | $70,000 | $0 | $70,000 | $70,000 |
| 2012 | $0 | $70,000 | $0 | $70,000 | $70,000 |
| 2011 | $0 | $70,000 | $0 | $70,000 | $70,000 |
| 2010 | $0 | $70,000 | $0 | $70,000 | $70,000 |
| 2009 | $0 | $75,000 | $0 | $75,000 | $75,000 |
| 2008 | $0 | $74,400 | $0 | $74,400 | $74,400 |
Deed and Sales History
| 1 | 03/22/2018 | QCD | Quit Claim Deed | ANDERSON TRUSTEE, ANITA W | JOHNSON JTWROS, RUSSELL EDWARD | | | $0.00 | 33620 | 4442364 |
| 2 | 09/24/2007 | QCD | Quit Claim Deed | ANDERSON, ANITA W | ANDERSON TTEE, ANITA W | | | $0.00 | 73229 | 4212796 |
| 3 | 07/13/1999 | DECREE | Divorce Decree/Legal Separation | ANDERSON, ERIC E | ANDERSON, ANITA W | | | $0.00 | 68366 | 0 |
| 4 | 01/01/1900 | OTHER | Other - Misc. Documents | Unknown | ANDERSON, ERIC E | | | $0.00 | 0 | 0 |
Payout Agreement
| No payout information available.. |