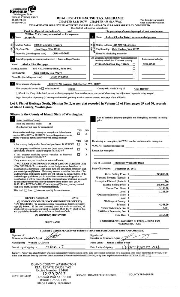
Property
Account |
| Property ID: | 6317 | Abbreviated Legal Description: | 25 N D HILL DC - N550' OF FOLL: BG SECR N D HILL DLC N1620.7' W1201.42' TPB N1237.5' W148.5' N801.6' TP 20'S OF NLN SD DC W477.7' S2047' E629.9' TPB TGW S30' OF FOLL: BG NWCR SD DC E457.4' S150' W457.4' N150' TPB EX W40' |
| Geographic ID: | R13109-096-4260 | Agent Code: | |
| Type: | Real | | |
| Tax Area: | 312 - APPRAISER-Cpvl Schl Dist, outside Cpvl, improved, greater than 1 acre | Land Use Code | 11 |
| Open Space: | N | DFL | N |
| Historic Property: | N | Remodel Property: | N |
| Multi-Family Redevelopment: | N | | |
| Township: | 31 | Section: | 09 |
| Range: | R1 |
Location |
| Address: | 709 EDGEFIELD LN COUPEVILLE, WA 98239 | Mapsco: | |
| Neighborhood: | Cycle 2 | Map ID: | 43 |
| Neighborhood CD: | 2 |
Owner |
| Name: | LUCERO, AARON D | Owner ID: | 283057 |
| Mailing Address: | JESSICA R LUCERO 709 EDGEFIELD LN COUPEVILLE, WA 98239 | % Ownership: | 100.0000000000% |
| | | Exemptions: | |
Taxes and Assessment Details
Values
| (+) Improvement Homesite Value: | + | $0 | |
| (+) Improvement Non-Homesite Value: | + | $1,200,567 | |
| (+) Land Homesite Value: | + | $0 | |
| (+) Land Non-Homesite Value: | + | $339,315 | |
| (+) Curr Use (HS): | + | $0 | $0 |
| (+) Curr Use (NHS): | + | $0 | $0 |
| | | -------------------------- | |
| (=) Market Value: | = | $1,539,882 | |
| (–) Productivity Loss: | – | $0 | |
| | | -------------------------- | |
| (=) Subtotal: | = | $1,539,882 | |
| (+) Senior Appraised Value: | + | $0 | |
| (+) Non-Senior Appraised Value: | + | $1,539,882 | |
| | | -------------------------- | |
| (=) Total Appraised Value: | = | $1,539,882 | |
| (–) Senior Exemption Loss: | – | $0 | |
| (–) Exemption Loss: | – | $0 | |
| | | -------------------------- | |
| (=) Taxable Value: | = | $1,539,882 | |
Taxing Jurisdiction
| Owner: | LUCERO, AARON D | | |
| % Ownership: | 100.0000000000% | | |
| Total Value: | $1,539,882 | | |
| Tax Area: | 312 - APPRAISER-Cpvl Schl Dist, outside Cpvl, improved, greater than 1 acre |
| CF | Conservation Futures | 0.0316035091 | $1,539,882 | $1,539,882 | $48.67 | | |
| CEM2 | Cemetery #2 | 0.0095056933 | $1,539,882 | $1,539,882 | $14.64 | | |
| FIRE5 | Fire & Rescue Dist #5 C Whidbey GEN | 1.2008080668 | $1,539,882 | $1,539,882 | $1,849.10 | | |
| FIRE5BOND | Fire & Rescue Dist #5 C Whidbey BOND | 0.1400090713 | $1,539,882 | $1,539,882 | $215.60 | | |
| HOBOND | Hospital BOND | 0.1910887512 | $1,539,882 | $1,539,882 | $294.25 | | |
| HOGEN | Hospital GEN | 0.3902502903 | $1,539,882 | $1,539,882 | $600.94 | | |
| CE | County Current Expense | 0.3708482477 | $1,539,882 | $1,539,882 | $571.06 | | |
| CR | County Roads | 0.4584763726 | $1,539,882 | $1,539,882 | $706.00 | | |
| ISLANDEMS | Hospital GEN (EMS) | 0.5000000000 | $1,539,882 | $1,539,882 | $769.94 | | |
| LIB | Library Sno-Isle GEN | 0.3153421757 | $1,539,882 | $1,539,882 | $485.59 | | |
| LIBCAP | Library Sno-Isle BOND (Cap Fac Imp Area) | 0.0543427938 | $1,539,882 | $1,539,882 | $83.68 | | |
| POCOUP | Port of Coupeville GEN | 0.1093371703 | $1,539,882 | $1,539,882 | $168.37 | | |
| POCOUPIDD | Port of Coupeville IDD | 0.3409740022 | $1,539,882 | $1,539,882 | $525.06 | | |
| COUPSDTECH | School 204 CP (TECH) | 0.7545480007 | $1,539,882 | $1,539,882 | $1,161.91 | | |
| SCH204MO | School 204 Enrichment | 0.6716186034 | $1,539,882 | $1,539,882 | $1,034.21 | | |
| ST | State School | 1.3035497053 | $1,539,882 | $1,539,882 | $2,007.31 | | |
| ST2 | State School Part 2 | 0.8169543533 | $1,539,882 | $1,539,882 | $1,258.01 | | |
| | Total Tax Rate: | 7.6592568070 | | | | | |
| | | | | Taxes w/Current Exemptions: | $11,794.34 | | |
| | | | | Taxes w/o Exemptions: | $11,794.34 | | |
Improvement / Building
| Improvement #1: | RESIDENTIAL | State Code: | Y | 3582.0 sqft | Value: | $1,200,567 |
| Bathrooms: | 3.5 | Bedrooms: | 4 | | Ceiling: | DRYWALL PAINTED | Cooling: | HEAT PUMP/CONV/V | | Exterior Wall/Cover: | SHINGLE | Floor Covering: | SOFTWOOD 100% | | Floor Structure: | WOOD W/SUBFLOOR | Foundation: | CONCRETE | | Interior Finish: | DRYWALL PAINT | Plumbing Fixture Cnt: | 18 | | Roof Slope: | 8" IN 12" | Roof Structure/Cover: | CJ WOOD SHAKES |
|
| | Type | Description | Class CD | Sub Class CD | Year Built | Area |
| | BAS | BASE/MAIN FLOOR | 6 | 0 | 1993 | 1549.0 |
| | BIG | BUILT IN GARAGE | 6 | 0 | 1993 | 484.0 |
| | UTY | STORAGE/UTILITY | 6 | 0 | 1993 | 78.0 |
| | UPS | UPPER STORY | 6 | 0 | 1993 | 2033.0 |
| | ATU | ATTIC UNFINISHED | 6 | 0 | 1993 | 608.0 |
| | ENP | ENCLOSED PORCH | 6 | 0 | 1993 | 320.0 |
| | oPOL | POLE BARN | 4 | 0 | 2021 | 3336.3 |
| | OP4 | OPEN PORCH W/CEILING-ROOF | 6 | 0 | 1993 | 120.0 |
Sketch
Property Image
Land
| 1 | HS | HOMESITE | 1.0000 | 43560.00 | 0.00 | 0.00 | 1.00 | $270,000 | $0 |
| 2 | 91 | UNDEVELOPED LAND-METES AND BOUNDS | 5.3300 | 232174.80 | 0.00 | 0.00 | 1.00 | $69,315 | $0 |
Roll Value History
| 2026 | N/A | N/A | N/A | N/A | N/A |
| 2025 | $1,200,567 | $339,315 | $0 | $1,539,882 | $1,539,882 |
| 2024 | $812,867 | $320,000 | $0 | $1,132,867 | $1,132,867 |
| 2023 | $805,484 | $310,000 | $0 | $1,115,484 | $1,115,484 |
| 2022 | $725,834 | $290,000 | $0 | $1,015,834 | $1,015,834 |
| 2021 | $605,036 | $220,000 | $0 | $825,036 | $825,036 |
| 2020 | $589,596 | $200,000 | $0 | $789,596 | $789,596 |
| 2019 | $506,536 | $250,000 | $0 | $756,536 | $756,536 |
| 2018 | $508,022 | $210,000 | $0 | $718,022 | $718,022 |
| 2017 | $350,556 | $200,000 | $0 | $550,556 | $550,556 |
| 2016 | $355,230 | $200,000 | $0 | $555,230 | $555,230 |
| 2015 | $359,903 | $200,000 | $0 | $559,903 | $559,903 |
| 2014 | $364,578 | $200,000 | $0 | $564,578 | $564,578 |
| 2013 | $369,250 | $284,850 | $0 | $654,100 | $654,100 |
| 2012 | $390,888 | $284,850 | $0 | $675,738 | $675,738 |
| 2011 | $395,739 | $316,500 | $0 | $712,239 | $712,239 |
| 2010 | $424,729 | $316,500 | $0 | $741,229 | $741,229 |
| 2009 | $442,465 | $348,150 | $0 | $790,615 | $790,615 |
| 2008 | $447,618 | $264,278 | $0 | $711,896 | $711,896 |
| 2007 | $453,693 | $243,072 | $0 | $696,765 | $696,765 |
Deed and Sales History
| 1 | 11/21/2017 | WD | Warranty Deed | HARVEY, JUDY K | LUCERO, AARON D | | | $815,000.00 | 32055 | 4434792 |
| 2 | 06/22/2012 | TOD | Transfer On Death Deed | HARVEY, CLAUDE R | HARVEY, JUDY K | | | | 82480 | |
| 3 | 10/01/1989 | WD | Warranty Deed | FLETCHER, THOMAS R | HARVEY, CLAUDE R | | | $55,000.00 | 94911 | 89015889 |
| 4 | 01/01/1900 | OTHER | Other - Misc. Documents | Unknown | FLETCHER, THOMAS R | | | $0.00 | 0 | 0 |
Payout Agreement
| No payout information available.. |