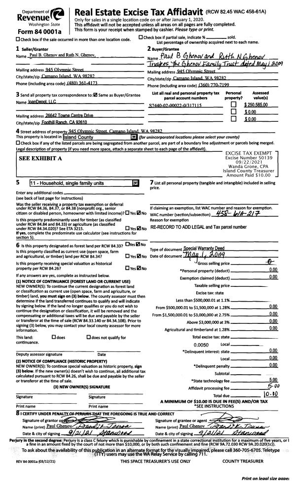
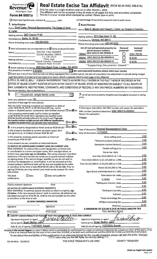
Property
Account |
| Property ID: | 631800 | Abbreviated Legal Description: | LOT 3 L-SP 87-3.32903.562-2730 V2 SP P185 AF#88014258 |
| Geographic ID: | R32903-546-2720 | Agent Code: | |
| Type: | Real | | |
| Tax Area: | 700 - APPRAISER-S Whid Schl Dist, in town of Langley | Land Use Code | 11 |
| Open Space: | N | DFL | N |
| Historic Property: | N | Remodel Property: | N |
| Multi-Family Redevelopment: | N | | |
| Township: | 29 | Section: | 03 |
| Range: | R3 |
Location |
| Address: | 297 LOUISA ST LANGLEY, WA 98260 | Mapsco: | |
| Neighborhood: | City of Langley | Map ID: | 727 |
| Neighborhood CD: | 04-L |
Owner |
| Name: | ZHOU TTEE, ZE HUI | Owner ID: | 309982 |
| Mailing Address: | NGAI FONG NG TTEE 297 LOUISA ST LANGLEY, WA 98087 | % Ownership: | 100.0000000000% |
| | | Exemptions: | |
Taxes and Assessment Details
Values
| (+) Improvement Homesite Value: | + | $0 | |
| (+) Improvement Non-Homesite Value: | + | $324,276 | |
| (+) Land Homesite Value: | + | $0 | |
| (+) Land Non-Homesite Value: | + | $370,000 | |
| (+) Curr Use (HS): | + | $0 | $0 |
| (+) Curr Use (NHS): | + | $0 | $0 |
| | | -------------------------- | |
| (=) Market Value: | = | $694,276 | |
| (–) Productivity Loss: | – | $0 | |
| | | -------------------------- | |
| (=) Subtotal: | = | $694,276 | |
| (+) Senior Appraised Value: | + | $0 | |
| (+) Non-Senior Appraised Value: | + | $694,276 | |
| | | -------------------------- | |
| (=) Total Appraised Value: | = | $694,276 | |
| (–) Senior Exemption Loss: | – | $0 | |
| (–) Exemption Loss: | – | $0 | |
| | | -------------------------- | |
| (=) Taxable Value: | = | $694,276 | |
Taxing Jurisdiction
| Owner: | ZHOU TTEE, ZE HUI | | |
| % Ownership: | 100.0000000000% | | |
| Total Value: | $694,276 | | |
| Tax Area: | 700 - APPRAISER-S Whid Schl Dist, in town of Langley |
| CF | Conservation Futures | 0.0316035091 | $694,276 | $694,276 | $21.94 | | |
| LANG | City of Langley | 1.0093520762 | $694,276 | $694,276 | $700.77 | | |
| LANGBOND | City of Langley BOND | 1.0326110892 | $694,276 | $694,276 | $716.92 | | |
| FIRE3 | Fire & Rescue Dist #3 S Whidbey GEN | 1.2004855531 | $694,276 | $694,276 | $833.47 | | |
| HOBOND | Hospital BOND | 0.1910887512 | $694,276 | $694,276 | $132.67 | | |
| HOGEN | Hospital GEN | 0.3902502903 | $694,276 | $694,276 | $270.94 | | |
| CE | County Current Expense | 0.3708482477 | $694,276 | $694,276 | $257.47 | | |
| ISLANDEMS | Hospital GEN (EMS) | 0.5000000000 | $694,276 | $694,276 | $347.14 | | |
| LIB | Library Sno-Isle GEN | 0.3153421757 | $694,276 | $694,276 | $218.93 | | |
| PORTWHID | Port of S Whidbey GEN | 0.1094540357 | $694,276 | $694,276 | $75.99 | | |
| SCH206BOND | School 206 BOND | 0.3161759235 | $694,276 | $694,276 | $219.51 | | |
| SCH206MO | School 206 Enrichment | 0.4547169547 | $694,276 | $694,276 | $315.70 | | |
| ST | State School | 1.3035497053 | $694,276 | $694,276 | $905.02 | | |
| ST2 | State School Part 2 | 0.8169543533 | $694,276 | $694,276 | $567.19 | | |
| SWHIDPRBD | P & R S Whidbey BOND | 0.0152817568 | $694,276 | $694,276 | $10.61 | | |
| SWHIDPRBD2 | P & R S Whidbey BOND2 | 0.0138911264 | $694,276 | $694,276 | $9.64 | | |
| SWHIDPRMT | P & R S Whidbey GEN | 0.2053334452 | $694,276 | $694,276 | $142.56 | | |
| | Total Tax Rate: | 8.2769389934 | | | | | |
| | | | | Taxes w/Current Exemptions: | $5,746.47 | | |
| | | | | Taxes w/o Exemptions: | $5,746.47 | | |
Improvement / Building
| Improvement #1: | RESIDENTIAL | State Code: | Y | 2524.0 sqft | Value: | $324,276 |
| Bathrooms: | 2 | Bedrooms: | 3 | | Ceiling: | DRYWALL PAINTED | Exterior Wall/Cover: | WOOD SIDING | | Floor Covering: | CARPET/VINYL 80-20 | Floor Structure: | WOOD W/SUBFLOOR | | Foundation: | CONCRETE | Heating: | FHA ELECTRIC | | Interior Finish: | DRYWALL PAINT | Plumbing Fixture Cnt: | 9 | | Roof Slope: | 4" IN 12" | Roof Structure/Cover: | CJ ASPHALT |
|
| | Type | Description | Class CD | Sub Class CD | Year Built | Area |
| | BAS | BASE/MAIN FLOOR | 3 | 0 | 1993 | 1504.0 |
| | DWN | DOWNSTAIRS LIVING AREA | 3 | 0 | 1993 | 1020.0 |
| | OP1 | OPEN PORCH SLAB | 3 | 0 | 1993 | 625.0 |
| | BIG | BUILT IN GARAGE | 3 | 0 | 1993 | 484.0 |
| | OWP | OPEN WOOD PORCH W/STEPS | 3 | 0 | 1993 | 132.0 |
| | OWP | OPEN WOOD PORCH W/STEPS | 3 | 0 | 1993 | 270.0 |
Sketch
Property Image
Land
| 1 | 15 | SQ (12001-21780) | 0.0000 | 0.00 | 0.00 | 0.00 | 1.00 | $370,000 | $0 |
Roll Value History
| 2026 | N/A | N/A | N/A | N/A | N/A |
| 2025 | $324,276 | $370,000 | $0 | $694,276 | $694,276 |
| 2024 | $328,370 | $370,000 | $0 | $698,370 | $698,370 |
| 2023 | $332,461 | $370,000 | $0 | $702,461 | $702,461 |
| 2022 | $304,752 | $300,000 | $0 | $604,752 | $604,752 |
| 2021 | $282,159 | $260,000 | $0 | $542,159 | $542,159 |
| 2020 | $257,927 | $260,000 | $0 | $517,927 | $517,927 |
| 2019 | $187,644 | $230,000 | $0 | $417,644 | $417,644 |
| 2018 | $188,220 | $220,000 | $0 | $408,220 | $408,220 |
| 2017 | $189,375 | $220,000 | $0 | $409,375 | $409,375 |
| 2016 | $191,685 | $220,000 | $0 | $411,685 | $411,685 |
| 2015 | $193,994 | $220,000 | $0 | $413,994 | $413,994 |
| 2014 | $193,022 | $161,000 | $0 | $354,022 | $354,022 |
| 2013 | $195,347 | $161,000 | $0 | $356,347 | $356,347 |
| 2012 | $197,674 | $161,000 | $0 | $358,674 | $358,674 |
| 2011 | $200,000 | $175,000 | $0 | $375,000 | $375,000 |
| 2010 | $208,002 | $183,000 | $0 | $391,002 | $391,002 |
| 2009 | $216,817 | $200,000 | $0 | $416,817 | $416,817 |
| 2008 | $192,997 | $160,000 | $0 | $352,997 | $352,997 |
| 2007 | $195,565 | $160,000 | $0 | $355,565 | $355,565 |
Deed and Sales History
| 1 | 08/31/2023 | QCD | Quit Claim Deed | ZHOU, ZE HUI | ZHOU TTEE, ZE HUI | | | $0.00 | 57901 | 4564412 |
| 2 | 06/02/2005 | QCD | Quit Claim Deed | NG, YEE NAM | ZHOU, ZE HUI | | | $195,000.00 | 52170 | 4137264 |
| 3 | 08/02/2000 | WD | Warranty Deed | JORDAN, THOMAS M | NG, YEE NAM | | | $190,000.00 | 3081 | 20014400 |
| 4 | 12/01/1993 | WD | Warranty Deed | FARISS, GEORGIA L | JORDAN, THOMAS M | | | $48,000.00 | 34806 | 93025071 |
| 5 | 04/01/1989 | WD | Warranty Deed | LUHN, ELVA E | FARISS, GEORGIA L | | | $21,000.00 | 91260 | 89004430 |
| 6 | 01/01/1989 | OTHER | Other - Misc. Documents | LUHN, RICHARD A | LUHN, ELVA E | | | $0.00 | 62996 | 169070 |
| 7 | 01/01/1900 | OTHER | Other - Misc. Documents | Unknown | LUHN, RICHARD A | | | $0.00 | 0 | 0 |
Payout Agreement
| No payout information available.. |