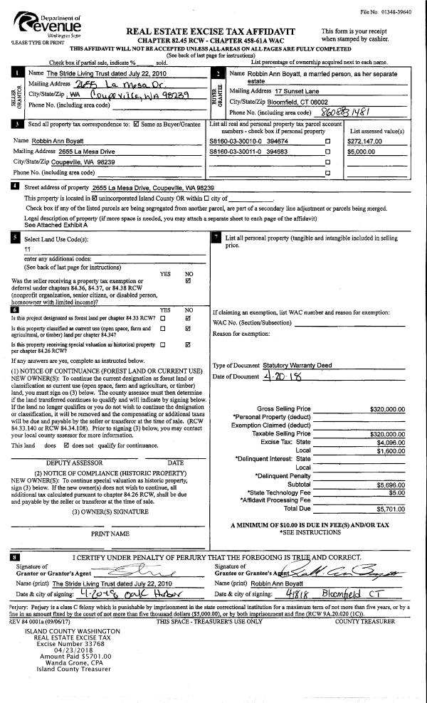
Property
Account |
| Property ID: | 631819 | Abbreviated Legal Description: | LOT F OH-SP 5-88.13203.100-3640, .110-3950, .129-3950, .147- 4300 & 175-4570 V2 SP P186-7 AF#88014275 EX PT TO BSP 2-95 AF#98011351 |
| Geographic ID: | R13203-118-3940 | Agent Code: | |
| Type: | Real | | |
| Tax Area: | 100 - APPRAISER-OH Schl Dist, in OH | Land Use Code | 11 |
| Open Space: | N | DFL | N |
| Historic Property: | N | Remodel Property: | N |
| Multi-Family Redevelopment: | N | | |
| Township: | 32 | Section: | 03 |
| Range: | R1 |
Location |
| Address: | 31141 SR20 OAK HARBOR, WA 98277 | Mapsco: | |
| Neighborhood: | Cycle 1 | Map ID: | 91 |
| Neighborhood CD: | 1 |
Owner |
| Name: | PACIFIC NORTH GROUP, INC | Owner ID: | 294823 |
| Mailing Address: | 540 SW BARRINGTON DR OAK HARBOR, WA 98277 | % Ownership: | 100.0000000000% |
| | | Exemptions: | |
Taxes and Assessment Details
Values
| (+) Improvement Homesite Value: | + | $0 | |
| (+) Improvement Non-Homesite Value: | + | $321,332 | |
| (+) Land Homesite Value: | + | $0 | |
| (+) Land Non-Homesite Value: | + | $1,300,000 | |
| (+) Curr Use (HS): | + | $0 | $0 |
| (+) Curr Use (NHS): | + | $0 | $0 |
| | | -------------------------- | |
| (=) Market Value: | = | $1,621,332 | |
| (–) Productivity Loss: | – | $0 | |
| | | -------------------------- | |
| (=) Subtotal: | = | $1,621,332 | |
| (+) Senior Appraised Value: | + | $0 | |
| (+) Non-Senior Appraised Value: | + | $1,621,332 | |
| | | -------------------------- | |
| (=) Total Appraised Value: | = | $1,621,332 | |
| (–) Senior Exemption Loss: | – | $0 | |
| (–) Exemption Loss: | – | $0 | |
| | | -------------------------- | |
| (=) Taxable Value: | = | $1,621,332 | |
Taxing Jurisdiction
| Owner: | PACIFIC NORTH GROUP, INC | | |
| % Ownership: | 100.0000000000% | | |
| Total Value: | $1,621,332 | | |
| Tax Area: | 100 - APPRAISER-OH Schl Dist, in OH |
| CF | Conservation Futures | 0.0316035091 | $1,621,332 | $1,621,332 | $51.24 | | |
| CEM1 | Cemetery #1 | 0.0040320932 | $1,621,332 | $1,621,332 | $6.54 | | |
| COH | City of Oak Harbor | 2.3001546061 | $1,621,332 | $1,621,332 | $3,729.31 | | |
| OAKBOND | City of Oak Harbor BOND | 0.1926904192 | $1,621,332 | $1,621,332 | $312.42 | | |
| HOBOND | Hospital BOND | 0.1910887512 | $1,621,332 | $1,621,332 | $309.82 | | |
| HOGEN | Hospital GEN | 0.3902502903 | $1,621,332 | $1,621,332 | $632.73 | | |
| CE | County Current Expense | 0.3708482477 | $1,621,332 | $1,621,332 | $601.27 | | |
| ISLANDEMS | Hospital GEN (EMS) | 0.5000000000 | $1,621,332 | $1,621,332 | $810.67 | | |
| LIB | Library Sno-Isle GEN | 0.3153421757 | $1,621,332 | $1,621,332 | $511.27 | | |
| NWHIDPRMT | P & R N Whidbey GEN | 0.2004466701 | $1,621,332 | $1,621,332 | $324.99 | | |
| SCH201MO | School 201 Enrichment | 1.8559231640 | $1,621,332 | $1,621,332 | $3,009.07 | | |
| ST | State School | 1.3035497053 | $1,621,332 | $1,621,332 | $2,113.49 | | |
| ST2 | State School Part 2 | 0.8169543533 | $1,621,332 | $1,621,332 | $1,324.55 | | |
| | Total Tax Rate: | 8.4728839852 | | | | | |
| | | | | Taxes w/Current Exemptions: | $13,737.37 | | |
| | | | | Taxes w/o Exemptions: | $13,737.37 | | |
Improvement / Building
| Improvement #1: | MANUFACTURED HOME | State Code: | Y | 720.0 sqft | Value: | $71,332 |
| Bathrooms: | 1 | Bedrooms: | 2 | | Ceiling: | PLASTER PAINTED | Cooling: | EVAP NO DUCT | | Exterior Wall/Cover: | VINYL | Floor Covering: | CARPET 100% | | Floor Structure: | SLAB ON GRADE | Foundation: | SLAB | | Heating: | FHA ELECTRIC | Interior Finish: | PLASTER | | Roof Slope: | FLAT | Roof Structure/Cover: | CJ ALUMINIUM HEAVY |
|
| Improvement #2: | RESIDENTIAL | State Code: | Y | 5867.4 sqft | Value: | $250,000 |
| Bathrooms: | 5 | Bedrooms: | 4 | | Ceiling: | (NONE) | Cooling: | HEAT PUMP/CONV/V | | Exterior Wall/Cover: | (NONE) | Floor Covering: | (NONE) | | Floor Structure: | (NONE) | Foundation: | (NONE) | | Interior Finish: | (NONE) | Plumbing Fixture Cnt: | 23 | | Roof Slope: | (NONE) | Roof Structure/Cover: | (NONE) |
|
| | Type | Description | Class CD | Sub Class CD | Year Built | Area |
| | BAS | BASE/MAIN FLOOR | 3 | 0 | 2023 | 1596.9 |
| | UPS | UPPER STORY | 3 | 0 | 2023 | 2279.3 |
| | BIG | BUILT IN GARAGE | 3 | 0 | 2023 | 826.0 |
| | DWN | DOWNSTAIRS LIVING AREA | 3 | 0 | 2023 | 1891.5 |
| | OWR | OPEN WOOD PORCH W/STEPS/ROOF | 3 | 0 | 2023 | 91.6 |
| | OP4 | OPEN PORCH W/CEILING-ROOF | 3 | 0 | 2023 | 395.4 |
| | OWP | OPEN WOOD PORCH W/STEPS | 3 | 0 | 2023 | 421.7 |
| | LOF | LOFT | 3 | 0 | 2023 | 99.7 |
| Improvement #3: | RESIDENTIAL | State Code: | Y | 2750.5 sqft | Value: | $0 |
| Bathrooms: | 5 | Bedrooms: | 4 | | Ceiling: | (NONE) | Cooling: | HEAT PUMP/CONV/V | | Exterior Wall/Cover: | (NONE) | Floor Covering: | (NONE) | | Floor Structure: | (NONE) | Foundation: | (NONE) | | Interior Finish: | (NONE) | Plumbing Fixture Cnt: | 23 | | Roof Slope: | (NONE) | Roof Structure/Cover: | (NONE) |
|
| | Type | Description | Class CD | Sub Class CD | Year Built | Area |
| | BAS | BASE/MAIN FLOOR | 3 | 0 | 2023 | 707.0 |
| | UPS | UPPER STORY | 3 | 0 | 2023 | 958.5 |
| | BIG | BUILT IN GARAGE | 3 | 0 | 2023 | 441.0 |
| | DWN | DOWNSTAIRS LIVING AREA | 3 | 0 | 2023 | 1085.0 |
| | OWR | OPEN WOOD PORCH W/STEPS/ROOF | 3 | 0 | 2023 | 76.5 |
| | OP4 | OPEN PORCH W/CEILING-ROOF | 3 | 0 | 2023 | 57.0 |
| | OWP | OPEN WOOD PORCH W/STEPS | 3 | 0 | 2023 | 215.0 |
| | LOF | LOFT | 3 | 0 | 2023 | 0.0 |
| Improvement #4: | RESIDENTIAL | State Code: | Y | 1872.1 sqft | Value: | $0 |
| Bathrooms: | 5 | Bedrooms: | 4 | | Ceiling: | (NONE) | Cooling: | HEAT PUMP/CONV/V | | Exterior Wall/Cover: | (NONE) | Floor Covering: | (NONE) | | Floor Structure: | (NONE) | Foundation: | (NONE) | | Interior Finish: | (NONE) | Plumbing Fixture Cnt: | 23 | | Roof Slope: | (NONE) | Roof Structure/Cover: | (NONE) |
|
| | Type | Description | Class CD | Sub Class CD | Year Built | Area |
| | BAS | BASE/MAIN FLOOR | 3 | 0 | 2023 | 1173.0 |
| | BIG | BUILT IN GARAGE | 3 | 0 | 2023 | 430.5 |
| | DWN | DOWNSTAIRS LIVING AREA | 3 | 0 | 2023 | 699.1 |
| | OP4 | OPEN PORCH W/CEILING-ROOF | 3 | 0 | 2023 | 63.0 |
| | OWP | OPEN WOOD PORCH W/STEPS | 3 | 0 | 2023 | 232.5 |
Sketch
Property Image
Land
| 1 | 35 | AC (10.00-30.99) | 12.8600 | 560181.60 | 0.00 | 0.00 | 1.00 | $1,300,000 | $0 |
Roll Value History
| 2026 | N/A | N/A | N/A | N/A | N/A |
| 2025 | $321,332 | $1,300,000 | $0 | $1,621,332 | $1,621,332 |
| 2024 | $252,075 | $1,300,000 | $0 | $1,552,075 | $1,552,075 |
| 2023 | $72,818 | $1,300,000 | $0 | $1,372,818 | $1,372,818 |
| 2022 | $66,611 | $1,300,000 | $0 | $1,366,611 | $1,366,611 |
| 2021 | $57,922 | $700,000 | $0 | $757,922 | $757,922 |
| 2020 | $0 | $700,000 | $0 | $700,000 | $700,000 |
| 2019 | $225,837 | $550,000 | $0 | $775,837 | $775,837 |
| 2018 | $226,674 | $550,000 | $0 | $776,674 | $776,674 |
| 2017 | $211,371 | $500,000 | $0 | $711,371 | $711,371 |
| 2016 | $214,630 | $500,000 | $0 | $714,630 | $714,630 |
| 2015 | $217,889 | $300,000 | $0 | $517,889 | $517,889 |
| 2014 | $221,149 | $300,000 | $0 | $521,149 | $521,149 |
| 2013 | $199,653 | $294,384 | $0 | $494,037 | $494,037 |
| 2012 | $199,653 | $294,384 | $0 | $494,037 | $494,037 |
| 2011 | $199,653 | $294,384 | $0 | $494,037 | $494,037 |
| 2010 | $193,739 | $294,384 | $0 | $488,123 | $488,123 |
| 2009 | $202,203 | $1,052,510 | $0 | $1,254,713 | $1,254,713 |
| 2008 | $201,208 | $1,056,344 | $0 | $1,257,552 | $1,257,552 |
| 2007 | $141,551 | $1,145,277 | $0 | $1,286,828 | $1,286,828 |
Deed and Sales History
| 1 | 06/15/2020 | WD | Warranty Deed | MAPLE HILL INVESTMENT, LLC | PACIFIC NORTH GROUP, INC | | | $1,400,000.00 | 43436 | 4489270 |
|   | |
| 2 | 02/22/2018 | QCD | Quit Claim Deed | FREUND ET AL, NANCY R | MAPLE HILL INVESTMENT, LLC | | | $0.00 | 33154 | 4440176 |
| 3 | 11/19/2014 | DECREE | Divorce Decree/Legal Separation | DIAZ ET AL, NANCY R | FREUND ET AL, NANCY R | | | | 85043 | |
| 4 | 01/01/1985 | WD | Warranty Deed | Unknown | DIAZ, NANCY R | | | $0.00 | 50052 | 85000203 |
Payout Agreement
| No payout information available.. |