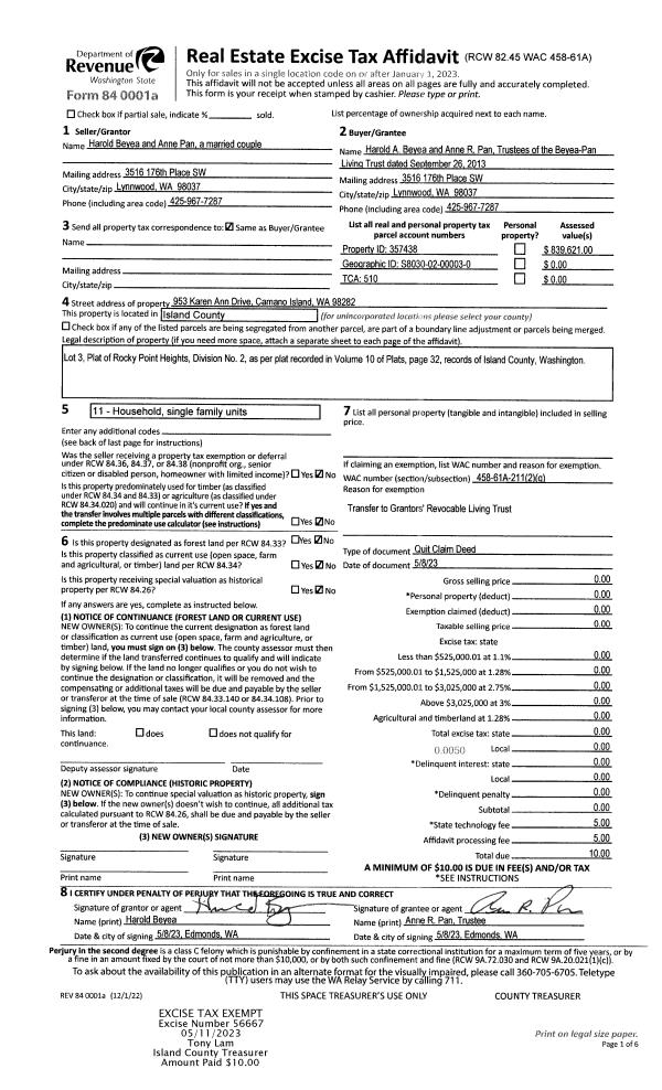
Property
Account |
| Property ID: | 631837 | Abbreviated Legal Description: | LOT 1 SP 88-16.33217.349-0970 V2 SP P184 AF#88014034 TGW EZ COMM BCH AF#96003853 |
| Geographic ID: | R33217-408-0980 | Agent Code: | |
| Type: | Real | | |
| Tax Area: | 512 - APPRAISER-Stan/Cam Schl Dist, improved, greater than 1 acre | Land Use Code | 11 |
| Open Space: | N | DFL | N |
| Historic Property: | N | Remodel Property: | N |
| Multi-Family Redevelopment: | N | | |
| Township: | 32 | Section: | 17 |
| Range: | R3 |
Location |
| Address: | 473 TILLICUM WAY CAMANO ISLAND, WA 98282 | Mapsco: | |
| Neighborhood: | North Camano | Map ID: | 955 |
| Neighborhood CD: | 06-C |
Owner |
| Name: | KOH TTEE, BARBARA C | Owner ID: | 311897 |
| Mailing Address: | 200 W HIGHLAND DR #201 SEATTLE, WA 98119 | % Ownership: | 100.0000000000% |
| | | Exemptions: | |
Taxes and Assessment Details
Values
| (+) Improvement Homesite Value: | + | $0 | |
| (+) Improvement Non-Homesite Value: | + | $1,954,716 | |
| (+) Land Homesite Value: | + | $0 | |
| (+) Land Non-Homesite Value: | + | $900,000 | |
| (+) Curr Use (HS): | + | $0 | $0 |
| (+) Curr Use (NHS): | + | $0 | $0 |
| | | -------------------------- | |
| (=) Market Value: | = | $2,854,716 | |
| (–) Productivity Loss: | – | $0 | |
| | | -------------------------- | |
| (=) Subtotal: | = | $2,854,716 | |
| (+) Senior Appraised Value: | + | $0 | |
| (+) Non-Senior Appraised Value: | + | $2,854,716 | |
| | | -------------------------- | |
| (=) Total Appraised Value: | = | $2,854,716 | |
| (–) Senior Exemption Loss: | – | $0 | |
| (–) Exemption Loss: | – | $0 | |
| | | -------------------------- | |
| (=) Taxable Value: | = | $2,854,716 | |
Taxing Jurisdiction
| Owner: | KOH TTEE, BARBARA C | | |
| % Ownership: | 100.0000000000% | | |
| Total Value: | $2,854,716 | | |
| Tax Area: | 512 - APPRAISER-Stan/Cam Schl Dist, improved, greater than 1 acre |
| CF | Conservation Futures | 0.0316035091 | $2,854,716 | $2,854,716 | $90.22 | | |
| EMS1 | Fire & Rescue Dist #1 Camano GEN (EMS) | 0.3677864386 | $2,854,716 | $2,854,716 | $1,049.93 | | |
| FIRE1 | Fire & Rescue Dist #1 Camano GEN | 1.2502910536 | $2,854,716 | $2,854,716 | $3,569.23 | | |
| FIRE1BOND | Fire & Rescue Dist #1 Camano BOND | 0.1570001679 | $2,854,716 | $2,854,716 | $448.19 | | |
| CE | County Current Expense | 0.3708482477 | $2,854,716 | $2,854,716 | $1,058.67 | | |
| CR | County Roads | 0.4584763726 | $2,854,716 | $2,854,716 | $1,308.82 | | |
| LCIB | Library Sno-Isle BOND (Camano Island) | 0.0396325772 | $2,854,716 | $2,854,716 | $113.14 | | |
| LIB | Library Sno-Isle GEN | 0.3153421757 | $2,854,716 | $2,854,716 | $900.21 | | |
| SCH205_401 | School 205-401 Enrichment | 1.2698420524 | $2,854,716 | $2,854,716 | $3,625.04 | | |
| SCH205BOND | School 205-401 BOND | 0.9396497583 | $2,854,716 | $2,854,716 | $2,682.43 | | |
| ST | State School | 1.3035497053 | $2,854,716 | $2,854,716 | $3,721.26 | | |
| ST2 | State School Part 2 | 0.8169543533 | $2,854,716 | $2,854,716 | $2,332.17 | | |
| | Total Tax Rate: | 7.3209764117 | | | | | |
| | | | | Taxes w/Current Exemptions: | $20,899.31 | | |
| | | | | Taxes w/o Exemptions: | $20,899.31 | | |
Improvement / Building
| Improvement #1: | RESIDENTIAL | State Code: | Y | 5070.0 sqft | Value: | $1,610,781 |
| Bathrooms: | 4.5 | Bedrooms: | 3 | | Ceiling: | DRYWALL PAINTED | Exterior Wall/Cover: | CEMENT FIBER | | Floor Covering: | TILE CERAMIC | Floor Structure: | WOOD W/SUBFLOOR | | Foundation: | CONCRETE | Heating: | RADIANT FLOOR | | Interior Finish: | DRYWALL PAINT | Plumbing Fixture Cnt: | 19 | | Roof Slope: | 3" IN 12" | Roof Structure/Cover: | CJ ALUMINIUM HEAVY |
|
| | Type | Description | Class CD | Sub Class CD | Year Built | Area |
| | BAS | BASE/MAIN FLOOR | 7 | 0 | 2018 | 3278.0 |
| | DWN | DOWNSTAIRS LIVING AREA | 7 | 0 | 2018 | 1792.0 |
| | AGR | ATTACHED GARAGE | 7 | 0 | 2018 | 672.0 |
| | OP4 | OPEN PORCH W/CEILING-ROOF | 7 | 0 | 2018 | 269.0 |
| | OP4 | OPEN PORCH W/CEILING-ROOF | 7 | 0 | 2018 | 45.0 |
| | OWP | OPEN WOOD PORCH W/STEPS | 7 | 0 | 2018 | 832.0 |
| Improvement #2: | RESIDENTIAL | State Code: | Y | 1182.5 sqft | Value: | $343,935 |
| Bathrooms: | 1 | Bedrooms: | 1 | | Ceiling: | DRYWALL PAINTED | Exterior Wall/Cover: | WOOD SIDING | | Floor Covering: | CERAMIC TILE/CPT 40-60 | Floor Structure: | WOOD W/SUBFLOOR | | Foundation: | CONCRETE | Heating: | FHA GAS | | Interior Finish: | DRYWALL PAINT | Plumbing Fixture Cnt: | 4 | | Roof Slope: | 4" IN 12" | Roof Structure/Cover: | BEAM ALUMINUM HEAVY |
|
| | Type | Description | Class CD | Sub Class CD | Year Built | Area |
| | BAS | BASE/MAIN FLOOR | 4 | 0 | 1992 | 1182.5 |
| | AGR | ATTACHED GARAGE | 4 | 0 | 1992 | 392.5 |
| | UTY | STORAGE/UTILITY | 4 | 0 | 1992 | 240.0 |
| | UTY | STORAGE/UTILITY | 4 | 0 | 1992 | 192.0 |
| | OP4 | OPEN PORCH W/CEILING-ROOF | 4 | 0 | 1992 | 360.0 |
Sketch
Property Image
Land
| 1 | HB | HIGH BLUFF | 2.8000 | 121968.00 | 287.00 | 0.00 | 1.00 | $900,000 | $0 |
Roll Value History
| 2026 | N/A | N/A | N/A | N/A | N/A |
| 2025 | $1,954,716 | $900,000 | $0 | $2,854,716 | $2,854,716 |
| 2024 | $1,970,152 | $900,000 | $0 | $2,870,152 | $2,870,152 |
| 2023 | $1,990,038 | $825,000 | $0 | $2,815,038 | $2,815,038 |
| 2022 | $1,698,354 | $750,000 | $0 | $2,448,354 | $2,448,354 |
| 2021 | $1,464,894 | $600,000 | $0 | $2,064,894 | $2,064,894 |
| 2020 | $1,397,089 | $550,000 | $0 | $1,947,089 | $1,947,089 |
| 2019 | $1,348,607 | $550,000 | $0 | $1,898,607 | $1,898,607 |
| 2018 | $164,215 | $450,000 | $0 | $614,215 | $614,215 |
| 2017 | $479,633 | $400,000 | $0 | $879,633 | $879,633 |
| 2016 | $441,934 | $400,000 | $0 | $841,934 | $841,934 |
| 2015 | $447,134 | $450,000 | $0 | $897,134 | $897,134 |
| 2014 | $452,333 | $450,000 | $0 | $902,333 | $902,333 |
| 2013 | $457,533 | $462,494 | $0 | $920,027 | $920,027 |
| 2012 | $462,732 | $462,494 | $0 | $925,226 | $925,226 |
| 2011 | $467,932 | $486,836 | $0 | $954,768 | $954,768 |
| 2010 | $567,944 | $486,836 | $0 | $1,054,780 | $1,054,780 |
| 2009 | $560,459 | $540,270 | $0 | $1,100,729 | $1,100,729 |
| 2008 | $567,410 | $568,705 | $0 | $1,136,115 | $1,136,115 |
| 2007 | $574,411 | $568,705 | $0 | $1,143,116 | $1,143,116 |
Deed and Sales History
| 1 | 03/07/2024 | WD | Warranty Deed | KOH, STEVE | KOH TTEE, BARBARA C | | | $0.00 | 59585 | 4570954 |
| 2 | 03/07/2023 | WD | Warranty Deed | KOH, STEVE | KOH, STEVE | | | $0.00 | 59529 | 4570764 |
| 3 | 05/28/2013 | WD | Warranty Deed | DODGE, MARK | KOH, STEVE | | | $900,000.00 | 11450 | 4340857 |
| 4 | 08/18/1999 | WD | Warranty Deed | ALLEN, MARVIN L | DODGE, MARK | | | $432,500.00 | 93385 | 99019521 |
| 5 | 01/01/1995 | QCD | Quit Claim Deed | ALLEN, MARVIN L | ALLEN, MARVIN L | | | $0.00 | 60725 | 96003853 |
| 6 | 11/01/1988 | WD | Warranty Deed | POPE, RESOURCES | ALLEN, MARVIN L | | | $38,250.00 | 84224 | 88015785 |
| 7 | 01/01/1900 | OTHER | Other - Misc. Documents | Unknown | POPE, RESOURCES | | | $0.00 | 53557 | 85014075 |
| 8 | 01/01/1900 | OTHER | Other - Misc. Documents | ALLEN, MARVIN L | ALLEN, MARVIN L | | | $0.00 | 0 | 0 |
Payout Agreement
| No payout information available.. |