Property
Account |
| Property ID: | 632462 | Abbreviated Legal Description: | N/2 SW NW NE TGW EZS FR 481-3010 |
| Geographic ID: | R32911-462-3010 | Agent Code: | |
| Type: | Real | | |
| Tax Area: | 712 - APPRAISER-S Whid Schl Dist, outside Langley, improved, greater than 1 acre | Land Use Code | 11 |
| Open Space: | N | DFL | N |
| Historic Property: | N | Remodel Property: | N |
| Multi-Family Redevelopment: | N | | |
| Township: | 29 | Section: | 11 |
| Range: | R3 |
Location |
| Address: | 5258 FALLEN LEAF LN LANGLEY, WA 98260 | Mapsco: | |
| Neighborhood: | Cycle 4 | Map ID: | 761 |
| Neighborhood CD: | 4 |
Owner |
| Name: | BRADY, CHERYL A | Owner ID: | 280506 |
| Mailing Address: | MARK P GIBBONS 3320 NE 182ND ST LAKE FOREST PARK, WA 98155 | % Ownership: | 100.0000000000% |
| | | Exemptions: | |
Taxes and Assessment Details
Values
| (+) Improvement Homesite Value: | + | $0 | |
| (+) Improvement Non-Homesite Value: | + | $627,126 | |
| (+) Land Homesite Value: | + | $0 | |
| (+) Land Non-Homesite Value: | + | $370,000 | |
| (+) Curr Use (HS): | + | $0 | $0 |
| (+) Curr Use (NHS): | + | $0 | $0 |
| | | -------------------------- | |
| (=) Market Value: | = | $997,126 | |
| (–) Productivity Loss: | – | $0 | |
| | | -------------------------- | |
| (=) Subtotal: | = | $997,126 | |
| (+) Senior Appraised Value: | + | $0 | |
| (+) Non-Senior Appraised Value: | + | $997,126 | |
| | | -------------------------- | |
| (=) Total Appraised Value: | = | $997,126 | |
| (–) Senior Exemption Loss: | – | $0 | |
| (–) Exemption Loss: | – | $0 | |
| | | -------------------------- | |
| (=) Taxable Value: | = | $997,126 | |
Taxing Jurisdiction
| Owner: | BRADY, CHERYL A | | |
| % Ownership: | 100.0000000000% | | |
| Total Value: | $997,126 | | |
| Tax Area: | 712 - APPRAISER-S Whid Schl Dist, outside Langley, improved, greater than 1 acre |
| CF | Conservation Futures | 0.0316035091 | $997,126 | $997,126 | $31.51 | | |
| FIRE3 | Fire & Rescue Dist #3 S Whidbey GEN | 1.2004855531 | $997,126 | $997,126 | $1,197.04 | | |
| HOBOND | Hospital BOND | 0.1910887512 | $997,126 | $997,126 | $190.54 | | |
| HOGEN | Hospital GEN | 0.3902502903 | $997,126 | $997,126 | $389.13 | | |
| CE | County Current Expense | 0.3708482477 | $997,126 | $997,126 | $369.78 | | |
| CR | County Roads | 0.4584763726 | $997,126 | $997,126 | $457.16 | | |
| ISLANDEMS | Hospital GEN (EMS) | 0.5000000000 | $997,126 | $997,126 | $498.56 | | |
| LIB | Library Sno-Isle GEN | 0.3153421757 | $997,126 | $997,126 | $314.44 | | |
| PORTWHID | Port of S Whidbey GEN | 0.1094540357 | $997,126 | $997,126 | $109.14 | | |
| SCH206BOND | School 206 BOND | 0.3161759235 | $997,126 | $997,126 | $315.27 | | |
| SCH206MO | School 206 Enrichment | 0.4547169547 | $997,126 | $997,126 | $453.41 | | |
| ST | State School | 1.3035497053 | $997,126 | $997,126 | $1,299.80 | | |
| ST2 | State School Part 2 | 0.8169543533 | $997,126 | $997,126 | $814.61 | | |
| SWHIDPRBD | P & R S Whidbey BOND | 0.0152817568 | $997,126 | $997,126 | $15.24 | | |
| SWHIDPRBD2 | P & R S Whidbey BOND2 | 0.0138911264 | $997,126 | $997,126 | $13.85 | | |
| SWHIDPRMT | P & R S Whidbey GEN | 0.2053334452 | $997,126 | $997,126 | $204.74 | | |
| | Total Tax Rate: | 6.6934522006 | | | | | |
| | | | | Taxes w/Current Exemptions: | $6,674.22 | | |
| | | | | Taxes w/o Exemptions: | $6,674.22 | | |
Improvement / Building
| Improvement #1: | RESIDENTIAL | State Code: | Y | 3146.7 sqft | Value: | $550,304 |
| Bathrooms: | 2.5 | Bedrooms: | 3 | | Ceiling: | TONGUE & GROOVE | Exterior Wall/Cover: | WOOD SIDING | | Floor Covering: | CARPET/VINYL 80-20 | Floor Structure: | WOOD W/SUBFLOOR | | Foundation: | CONCRETE | Heating: | FHA GAS | | Interior Finish: | DRYWALL PAINT | Plumbing Fixture Cnt: | 13 | | Roof Slope: | 5" IN 12" | Roof Structure/Cover: | BEAM ASPHALT |
|
| | Type | Description | Class CD | Sub Class CD | Year Built | Area |
| | BAS | BASE/MAIN FLOOR | 4 | 0 | 2008 | 2193.0 |
| | UB8 | BASEMENT UNFINISHED 8" | 4 | 0 | 2008 | 1163.2 |
| | OP4 | OPEN PORCH W/CEILING-ROOF | 4 | 0 | 2008 | 180.0 |
| | UTY | STORAGE/UTILITY | 4 | 0 | 2008 | 32.0 |
| | OWP | OPEN WOOD PORCH W/STEPS | 4 | 0 | 2008 | 480.0 |
| | OP1 | OPEN PORCH SLAB | 4 | 0 | 2008 | 384.0 |
| | DWN | DOWNSTAIRS LIVING AREA | 4 | 0 | 2008 | 953.7 |
| Improvement #2: | RESIDENTIAL | State Code: | Y | 0.0 sqft | Value: | $76,822 |
| | Type | Description | Class CD | Sub Class CD | Year Built | Area |
| | oGAR | GARAGE | 4 | 0 | 2024 | 832.0 |
| | oLOF | STORAGE LOFT | 4 | 0 | 2024 | 832.0 |
| | oCAR | CARPORT | 4 | 0 | 2024 | 312.0 |
Sketch
Property Image
Land
| 1 | 32 | AC (03.01-09.99) | 5.0000 | 0.00 | 0.00 | 0.00 | 1.00 | $370,000 | $0 |
Roll Value History
| 2026 | N/A | N/A | N/A | N/A | N/A |
| 2025 | $627,126 | $370,000 | $0 | $997,126 | $997,126 |
| 2024 | $629,406 | $350,000 | $0 | $979,406 | $979,406 |
| 2023 | $562,917 | $330,000 | $0 | $892,917 | $892,917 |
| 2022 | $514,025 | $280,000 | $0 | $794,025 | $794,025 |
| 2021 | $450,940 | $230,000 | $0 | $680,940 | $680,940 |
| 2020 | $436,871 | $190,000 | $0 | $626,871 | $626,871 |
| 2019 | $346,271 | $250,000 | $0 | $596,271 | $596,271 |
| 2018 | $323,680 | $210,000 | $0 | $533,680 | $533,680 |
| 2017 | $268,856 | $190,000 | $0 | $458,856 | $458,856 |
| 2016 | $271,843 | $165,000 | $0 | $436,843 | $436,843 |
| 2015 | $274,831 | $135,000 | $0 | $409,831 | $409,831 |
| 2014 | $278,593 | $135,000 | $0 | $413,593 | $413,593 |
| 2013 | $281,589 | $135,000 | $0 | $416,589 | $416,589 |
| 2012 | $284,584 | $135,000 | $0 | $419,584 | $419,584 |
| 2011 | $287,581 | $135,000 | $0 | $422,581 | $422,581 |
| 2010 | $298,614 | $135,000 | $0 | $433,614 | $433,614 |
| 2009 | $180,665 | $220,000 | $0 | $400,665 | $400,665 |
| 2008 | $0 | $122,400 | $0 | $122,400 | $122,400 |
| 2007 | $0 | $94,400 | $0 | $94,400 | $94,400 |
Deed and Sales History
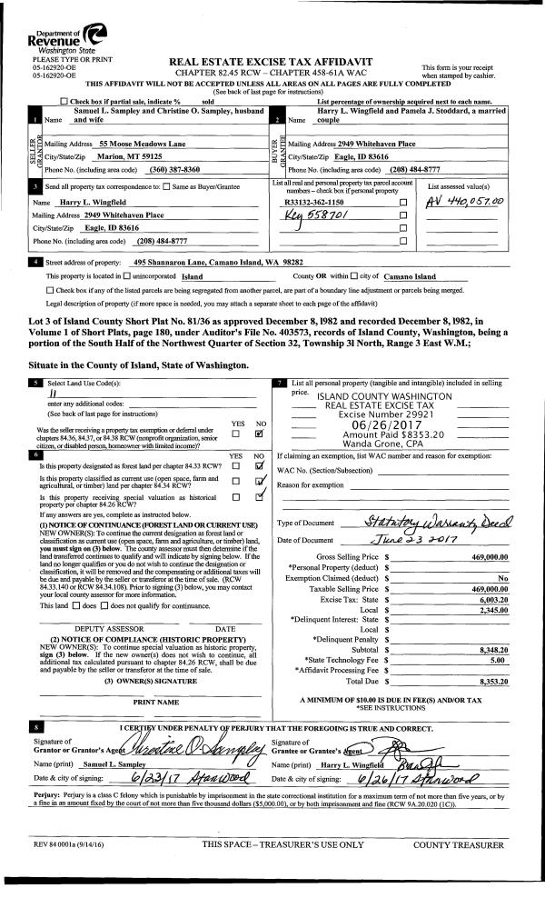
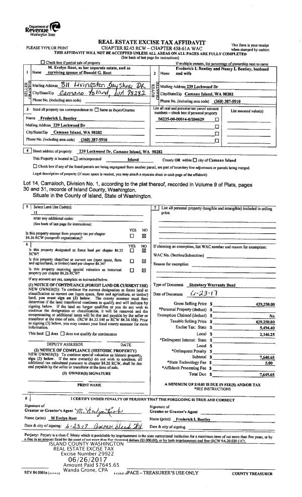
| 1 | 06/15/2017 | WD | Warranty Deed | HOWARTH, ALLAN D & NORMA M | BRADY, CHERYL A | | | $525,000.00 | 29850 | 4424722 |
| 2 | 04/22/2005 | WD | Warranty Deed | MAREK, THOMAS A | HOWARTH, ALLAN D & NORMA M | | | $70,500.00 | 51806 | 4132670 |
| 3 | 02/01/1989 | WD | Warranty Deed | EXTENDED, SERVICES I | MAREK, THOMAS A | | | $8,750.00 | 90554 | 89001940 |
| 4 | 01/01/1989 | OTHER | Other - Misc. Documents | EXTENDED, SERVICES I | EXTENDED, SERVICES I | | | $0.00 | 63005 | 0 |
| 5 | 04/01/1978 | OTHER | Other - Misc. Documents | Unknown | EXTENDED, SERVICES I | | | $0.00 | 81696 | 3313330 |
Payout Agreement
| No payout information available.. |