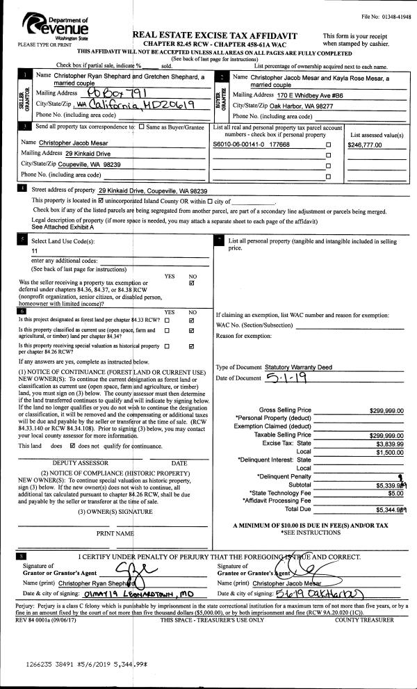
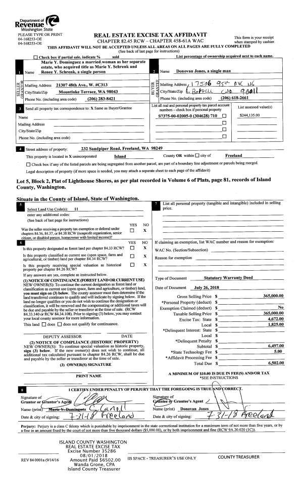
632701 NAIRNE, PIERCE for Year 2025 - 2026

Click on a title bar to expand or collapse the information.

Property

Taxes and Assessment Details

Values

Taxing Jurisdiction

Improvement / Building

Sketch

Property Image

Land

Roll Value History

Deed and Sales History

Payout Agreement