Property
Account |
| Property ID: | 632907 | Abbreviated Legal Description: | WOODSIDE NORTH CONDO APT 208 .89% INT |
| Geographic ID: | S8495-00-00208-0 | Agent Code: | |
| Type: | Real | | |
| Tax Area: | 100 - APPRAISER-OH Schl Dist, in OH | Land Use Code | 14 |
| Open Space: | N | DFL | N |
| Historic Property: | N | Remodel Property: | N |
| Multi-Family Redevelopment: | N | | |
| Township: | | Section: | |
| Range: | |
Location |
| Address: | 690 NW ATALANTA WAY BLDG M, UNIT M204 OAK HARBOR, WA 98277 | Mapsco: | |
| Neighborhood: | 4B*OH-woodside n | Map ID: | 253 |
| Neighborhood CD: | 4B*OHwdsdn |
Owner |
| Name: | FORTY ACRE DREAM LLC | Owner ID: | 272789 |
| Mailing Address: | 2940 FAIRCLIFF COURT SAN JOSE, CA 95125 | % Ownership: | 100.0000000000% |
| | | Exemptions: | |
Taxes and Assessment Details
Values
| (+) Improvement Homesite Value: | + | $0 | |
| (+) Improvement Non-Homesite Value: | + | $126,484 | |
| (+) Land Homesite Value: | + | $0 | |
| (+) Land Non-Homesite Value: | + | $85,000 | |
| (+) Curr Use (HS): | + | $0 | $0 |
| (+) Curr Use (NHS): | + | $0 | $0 |
| | | -------------------------- | |
| (=) Market Value: | = | $211,484 | |
| (–) Productivity Loss: | – | $0 | |
| | | -------------------------- | |
| (=) Subtotal: | = | $211,484 | |
| (+) Senior Appraised Value: | + | $0 | |
| (+) Non-Senior Appraised Value: | + | $211,484 | |
| | | -------------------------- | |
| (=) Total Appraised Value: | = | $211,484 | |
| (–) Senior Exemption Loss: | – | $0 | |
| (–) Exemption Loss: | – | $0 | |
| | | -------------------------- | |
| (=) Taxable Value: | = | $211,484 | |
Taxing Jurisdiction
| Owner: | FORTY ACRE DREAM LLC | | |
| % Ownership: | 100.0000000000% | | |
| Total Value: | $211,484 | | |
| Tax Area: | 100 - APPRAISER-OH Schl Dist, in OH |
| CF | Conservation Futures | 0.0316035091 | $211,484 | $211,484 | $6.68 | | |
| CEM1 | Cemetery #1 | 0.0040320932 | $211,484 | $211,484 | $0.85 | | |
| COH | City of Oak Harbor | 2.3001546061 | $211,484 | $211,484 | $486.45 | | |
| OAKBOND | City of Oak Harbor BOND | 0.1926904192 | $211,484 | $211,484 | $40.75 | | |
| HOBOND | Hospital BOND | 0.1910887512 | $211,484 | $211,484 | $40.41 | | |
| HOGEN | Hospital GEN | 0.3902502903 | $211,484 | $211,484 | $82.53 | | |
| CE | County Current Expense | 0.3708482477 | $211,484 | $211,484 | $78.43 | | |
| ISLANDEMS | Hospital GEN (EMS) | 0.5000000000 | $211,484 | $211,484 | $105.74 | | |
| LIB | Library Sno-Isle GEN | 0.3153421757 | $211,484 | $211,484 | $66.69 | | |
| NWHIDPRMT | P & R N Whidbey GEN | 0.2004466701 | $211,484 | $211,484 | $42.39 | | |
| SCH201MO | School 201 Enrichment | 1.8559231640 | $211,484 | $211,484 | $392.50 | | |
| ST | State School | 1.3035497053 | $211,484 | $211,484 | $275.68 | | |
| ST2 | State School Part 2 | 0.8169543533 | $211,484 | $211,484 | $172.77 | | |
| | Total Tax Rate: | 8.4728839852 | | | | | |
| | | | | Taxes w/Current Exemptions: | $1,791.87 | | |
| | | | | Taxes w/o Exemptions: | $1,791.87 | | |
Improvement / Building
| Improvement #1: | RESIDENTIAL | State Code: | A1 | 804.0 sqft | Value: | $126,484 |
| Bathrooms: | 1 | Bedrooms: | 2 | | Ceiling: | DRYWALL PAINTED | Exterior Wall/Cover: | PLY/HARDBOARD T-111 | | Floor Covering: | CARPET/VINYL 80-20 | Floor Structure: | WOOD W/SUBFLOOR | | Foundation: | SLAB/CONCRETE | Heating: | BASEBOARD ELECTRIC | | Interior Finish: | DRYWALL PAINT | Plumbing Fixture Cnt: | 6 | | Roof Slope: | 4" IN 12" | Roof Structure/Cover: | CJ ASPHALT |
|
| | Type | Description | Class CD | Sub Class CD | Year Built | Area |
| | BAS | BASE/MAIN FLOOR | 3 | 0 | 1988 | 804.0 |
| | OWP | OPEN WOOD PORCH W/STEPS | 3 | 0 | 1988 | 24.0 |
| | COMA | Common Area Improvement | 3 | 0 | 1988 | 0.0 |
Sketch
Property Image
Land
| 1 | 61 | MULTIPLE RESIDENCES | 0.0000 | 2009.00 | 0.00 | 0.00 | 1.00 | $85,000 | $0 |
Roll Value History
| 2026 | N/A | N/A | N/A | N/A | N/A |
| 2025 | $126,484 | $85,000 | $0 | $211,484 | $211,484 |
| 2024 | $130,894 | $90,000 | $0 | $220,894 | $220,894 |
| 2023 | $132,596 | $75,000 | $0 | $207,596 | $207,596 |
| 2022 | $121,714 | $60,000 | $0 | $181,714 | $181,714 |
| 2021 | $107,326 | $50,000 | $0 | $157,326 | $157,326 |
| 2020 | $71,991 | $35,000 | $0 | $106,991 | $106,991 |
| 2019 | $50,376 | $70,000 | $0 | $120,376 | $120,376 |
| 2018 | $50,553 | $65,000 | $0 | $115,553 | $115,553 |
| 2017 | $50,907 | $7,000 | $0 | $57,907 | $57,907 |
| 2016 | $51,614 | $7,000 | $0 | $58,614 | $58,614 |
| 2015 | $52,322 | $7,000 | $0 | $59,322 | $59,322 |
| 2014 | $50,516 | $14,063 | $0 | $64,579 | $64,579 |
| 2013 | $51,187 | $14,063 | $0 | $65,250 | $65,250 |
| 2012 | $52,530 | $14,063 | $0 | $66,593 | $66,593 |
| 2011 | $52,530 | $14,063 | $0 | $66,593 | $66,593 |
| 2010 | $54,611 | $11,130 | $0 | $65,741 | $65,741 |
| 2009 | $56,926 | $20,090 | $0 | $77,016 | $77,016 |
| 2008 | $58,271 | $26,117 | $0 | $84,388 | $84,388 |
| 2007 | $58,955 | $26,117 | $0 | $85,072 | $85,072 |
Deed and Sales History
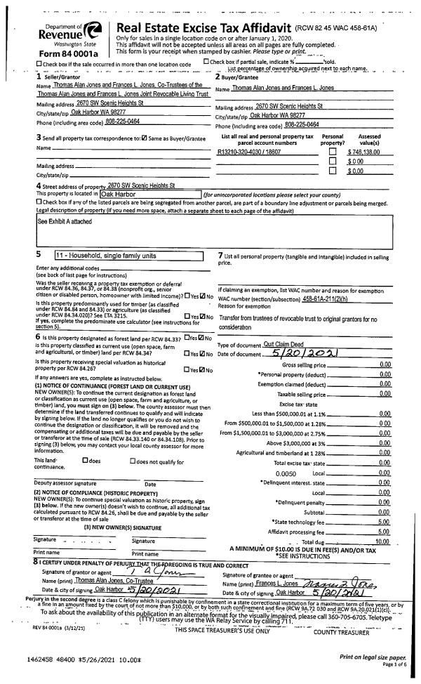
| 1 | 10/05/2015 | QCD | Quit Claim Deed | LITHERLAND TRUSTEE, ROY W | FORTY ACRE DREAM LLC | | | $0.00 | 22181 | 4389649 |
| 2 | 10/19/2004 | 5 | DNU - Marriage License/Name Change | LITHERLAND, ROY W | LITHERLAND TRUSTEE, ROY W | | | $0.00 | 44988 | 4116268 |
| 3 | 06/03/2004 | WD | Warranty Deed | NELSON, LARRY J | LITHERLAND, ROY W | | | $54,375.00 | 42566 | 4103666 |
| 4 | 11/02/1999 | WD | Warranty Deed | NELSON, LARRY J & NANCY J | NELSON, LARRY J | | | $0.00 | 94632 | 99025882 |
| 5 | 02/01/1989 | WD | Warranty Deed | ALPHA, GROUP, I | NELSON, LARRY J | | | $32,813.00 | 90500 | 89001729 |
| 6 | 04/01/1983 | OTHER | Other - Misc. Documents | Unknown | ALPHA, GROUP, I | | | $0.00 | 31076 | 408757 |
| 7 | 01/01/1900 | OTHER | Other - Misc. Documents | NELSON, LARRY J | NELSON, LARRY J & NANCY J | | | $0.00 | 0 | 0 |
Payout Agreement
| No payout information available.. |