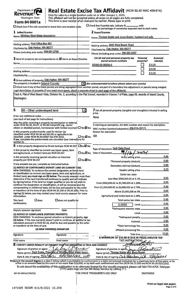
Property
Account |
| Property ID: | 63380 | Abbreviated Legal Description: | 2 - S/2 S/2 GL4 LYG W OF CO RD COMB/W 413-2999 8/85 SITE PLAN REVIEW SPR 9-94 |
| Geographic ID: | R23018-413-2990 | Agent Code: | |
| Type: | Real | | |
| Tax Area: | 312 - APPRAISER-Cpvl Schl Dist, outside Cpvl, improved, greater than 1 acre | Land Use Code | 11 |
| Open Space: | N | DFL | N |
| Historic Property: | N | Remodel Property: | N |
| Multi-Family Redevelopment: | N | | |
| Township: | 30 | Section: | 18 |
| Range: | R2 |
Location |
| Address: | 3288 SMUGGLERS COVE RD GREENBANK, WA 98253 | Mapsco: | |
| Neighborhood: | Cycle 3 | Map ID: | 390 |
| Neighborhood CD: | 3 |
Owner |
| Name: | DUFFY, JOHN JOSEPH | Owner ID: | 298672 |
| Mailing Address: | KIMBERLY HAMILTON DUFFY 3288 SMUGGLERS COVE RD GREENBANK, WA 98253 | % Ownership: | 100.0000000000% |
| | | Exemptions: | |
Taxes and Assessment Details
Values
| (+) Improvement Homesite Value: | + | $0 | |
| (+) Improvement Non-Homesite Value: | + | $1,970,032 | |
| (+) Land Homesite Value: | + | $0 | |
| (+) Land Non-Homesite Value: | + | $1,330,035 | |
| (+) Curr Use (HS): | + | $0 | $0 |
| (+) Curr Use (NHS): | + | $0 | $0 |
| | | -------------------------- | |
| (=) Market Value: | = | $3,300,067 | |
| (–) Productivity Loss: | – | $0 | |
| | | -------------------------- | |
| (=) Subtotal: | = | $3,300,067 | |
| (+) Senior Appraised Value: | + | $0 | |
| (+) Non-Senior Appraised Value: | + | $3,300,067 | |
| | | -------------------------- | |
| (=) Total Appraised Value: | = | $3,300,067 | |
| (–) Senior Exemption Loss: | – | $0 | |
| (–) Exemption Loss: | – | $0 | |
| | | -------------------------- | |
| (=) Taxable Value: | = | $3,300,067 | |
Taxing Jurisdiction
| Owner: | DUFFY, JOHN JOSEPH | | |
| % Ownership: | 100.0000000000% | | |
| Total Value: | $3,300,067 | | |
| Tax Area: | 312 - APPRAISER-Cpvl Schl Dist, outside Cpvl, improved, greater than 1 acre |
| CF | Conservation Futures | 0.0316035091 | $3,300,067 | $3,300,067 | $104.29 | | |
| CEM2 | Cemetery #2 | 0.0095056933 | $3,300,067 | $3,300,067 | $31.37 | | |
| FIRE5 | Fire & Rescue Dist #5 C Whidbey GEN | 1.2008080668 | $3,300,067 | $3,300,067 | $3,962.75 | | |
| FIRE5BOND | Fire & Rescue Dist #5 C Whidbey BOND | 0.1400090713 | $3,300,067 | $3,300,067 | $462.04 | | |
| HOBOND | Hospital BOND | 0.1910887512 | $3,300,067 | $3,300,067 | $630.61 | | |
| HOGEN | Hospital GEN | 0.3902502903 | $3,300,067 | $3,300,067 | $1,287.85 | | |
| CE | County Current Expense | 0.3708482477 | $3,300,067 | $3,300,067 | $1,223.82 | | |
| CR | County Roads | 0.4584763726 | $3,300,067 | $3,300,067 | $1,513.00 | | |
| ISLANDEMS | Hospital GEN (EMS) | 0.5000000000 | $3,300,067 | $3,300,067 | $1,650.03 | | |
| LIB | Library Sno-Isle GEN | 0.3153421757 | $3,300,067 | $3,300,067 | $1,040.65 | | |
| LIBCAP | Library Sno-Isle BOND (Cap Fac Imp Area) | 0.0543427938 | $3,300,067 | $3,300,067 | $179.33 | | |
| POCOUP | Port of Coupeville GEN | 0.1093371703 | $3,300,067 | $3,300,067 | $360.82 | | |
| POCOUPIDD | Port of Coupeville IDD | 0.3409740022 | $3,300,067 | $3,300,067 | $1,125.24 | | |
| COUPSDTECH | School 204 CP (TECH) | 0.7545480007 | $3,300,067 | $3,300,067 | $2,490.06 | | |
| SCH204MO | School 204 Enrichment | 0.6716186034 | $3,300,067 | $3,300,067 | $2,216.39 | | |
| ST | State School | 1.3035497053 | $3,300,067 | $3,300,067 | $4,301.80 | | |
| ST2 | State School Part 2 | 0.8169543533 | $3,300,067 | $3,300,067 | $2,696.00 | | |
| | Total Tax Rate: | 7.6592568070 | | | | | |
| | | | | Taxes w/Current Exemptions: | $25,276.05 | | |
| | | | | Taxes w/o Exemptions: | $25,276.05 | | |
Improvement / Building
| Improvement #1: | RESIDENTIAL | State Code: | Y | 4190.3 sqft | Value: | $1,970,032 |
| Bathrooms: | 2.5 | Bedrooms: | 3 | | Ceiling: | TONGUE & GROOVE | Exterior Wall/Cover: | STUCCO | | Floor Covering: | COLORED CONCRETE | Floor Structure: | WOOD W/SUBFLOOR | | Foundation: | CONCRETE | Heating: | RAD HOT WATER-OIL | | Interior Finish: | DRYWALL PAINT | Plumbing Fixture Cnt: | 16 | | Roof Slope: | 6" IN 12" | Roof Structure/Cover: | BEAM ALUMINUM HEAVY |
|
| | Type | Description | Class CD | Sub Class CD | Year Built | Area |
| | BAS | BASE/MAIN FLOOR | 9 | 0 | 2004 | 3634.3 |
| | DWN | DOWNSTAIRS LIVING AREA | 9 | 0 | 2004 | 556.0 |
| | OP2 | OPEN PORCH W/STEPS | 9 | 0 | 2004 | 154.0 |
| | DGR | DETACHED GARAGE | 9 | 0 | 2004 | 1048.0 |
| | OP4 | OPEN PORCH W/CEILING-ROOF | 9 | 0 | 2004 | 1343.2 |
| | OP4 | OPEN PORCH W/CEILING-ROOF | 9 | 0 | 2004 | 116.0 |
| | OP4 | OPEN PORCH W/CEILING-ROOF | 9 | 0 | 2004 | 108.0 |
| | DGR | DETACHED GARAGE | 9 | 0 | 2004 | 480.0 |
Sketch
Property Image
Land
| 1 | HB | HIGH BLUFF | 9.3912 | 409080.67 | 330.00 | 0.00 | 1.00 | $1,330,035 | $0 |
Roll Value History
| 2026 | N/A | N/A | N/A | N/A | N/A |
| 2025 | $1,970,032 | $1,330,035 | $0 | $3,300,067 | $3,300,067 |
| 2024 | $1,985,220 | $1,254,750 | $0 | $3,239,970 | $3,239,970 |
| 2023 | $2,001,492 | $1,195,000 | $0 | $3,196,492 | $3,196,492 |
| 2022 | $1,827,071 | $1,140,000 | $0 | $2,967,071 | $2,967,071 |
| 2021 | $1,481,557 | $950,000 | $0 | $2,431,557 | $2,431,557 |
| 2020 | $1,440,453 | $950,000 | $0 | $2,390,453 | $2,390,453 |
| 2019 | $1,419,284 | $1,000,000 | $0 | $2,419,284 | $2,419,284 |
| 2018 | $883,231 | $900,000 | $0 | $1,783,231 | $1,783,231 |
| 2017 | $888,395 | $900,000 | $0 | $1,788,395 | $1,788,395 |
| 2016 | $898,726 | $900,000 | $0 | $1,798,726 | $1,798,726 |
| 2015 | $909,056 | $900,000 | $0 | $1,809,056 | $1,809,056 |
| 2014 | $919,387 | $900,000 | $0 | $1,819,387 | $1,819,387 |
| 2013 | $929,716 | $851,519 | $0 | $1,781,235 | $1,781,235 |
| 2012 | $940,047 | $851,519 | $0 | $1,791,566 | $1,791,566 |
| 2011 | $950,377 | $851,519 | $0 | $1,801,896 | $1,801,896 |
| 2010 | $979,471 | $851,519 | $0 | $1,830,990 | $1,830,990 |
| 2009 | $1,034,819 | $1,135,362 | $0 | $2,170,181 | $2,170,181 |
| 2008 | $1,036,069 | $1,135,362 | $0 | $2,171,431 | $2,171,431 |
| 2007 | $1,049,610 | $718,582 | $0 | $1,768,192 | $1,768,192 |
Deed and Sales History
| 1 | 03/26/2021 | WD | Warranty Deed | HEFTE KODIS, BONNIE | DUFFY, JOHN JOSEPH | | | $4,170,000.00 | 47517 | 4514859 |
| 2 | 10/17/2005 | ESTSEPPROP | Establish Separate Property | KODIS, GAITHER | HEFTE KODIS, BONNIE | | | $0.00 | 55711 | 4154030 |
| 3 | 07/13/2000 | OTHER | Other - Misc. Documents | KODIS, GAITHER | KODIS, GAITHER | | | $70,068.00 | 2612 | 0 |
| 4 | 07/06/2000 | WD | Warranty Deed | PORTER, RICHARD T | KODIS, GAITHER | | | $1,500,000.00 | 2611 | 20012375 |
| 5 | 08/01/1985 | WD | Warranty Deed | PORTER, RICHARD T | PORTER, RICHARD T | | | $205,000.00 | 52228 | 85008722 |
| 6 | 08/01/1985 | WD | Warranty Deed | DYCHE, ORENE G | PORTER, RICHARD T | | | $0.00 | 52385 | 85009412 |
| 7 | 03/01/1984 | OTHER | Other - Misc. Documents | DYCHE, WILLIAM H | DYCHE, ORENE G | | | $0.00 | 60462 | 0 |
| 8 | 01/01/1900 | OTHER | Other - Misc. Documents | Unknown | DYCHE, WILLIAM H | | | $0.00 | 0 | 0 |
Payout Agreement
| No payout information available.. |