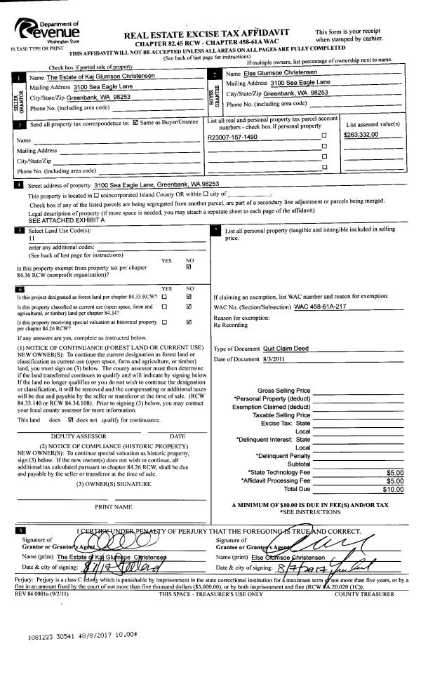
Property
Account |
| Property ID: | 634255 | Abbreviated Legal Description: | TARA LOT 1 SP 27-90.8295.00-0000A-0 - V2 SP P338 AF#92001413 DRAINFIELD FOR 00A14-0 AF#91017966 ALTERATION OF SP 27-90 MISC# 69635 V3 SP P426 AF#4012553 |
| Geographic ID: | S8295-00-00A11-0 | Agent Code: | |
| Type: | Real | | |
| Tax Area: | 710 - APPRAISER-S Whid Schl Dist, outside Langley, improved & 1 acre or less | Land Use Code | 11 |
| Open Space: | N | DFL | N |
| Historic Property: | N | Remodel Property: | N |
| Multi-Family Redevelopment: | N | | |
| Township: | | Section: | |
| Range: | |
Location |
| Address: | 5547 TARA DR FREELAND, WA 98249 | Mapsco: | |
| Neighborhood: | Cycle 3 | Map ID: | 306 |
| Neighborhood CD: | 3 |
Owner |
| Name: | GREVE, JAKE D | Owner ID: | 281621 |
| Mailing Address: | CASIE J GREVE 5547 TARA DR FREELAND, WA 98249 | % Ownership: | 100.0000000000% |
| | | Exemptions: | |
Taxes and Assessment Details
Values
| (+) Improvement Homesite Value: | + | $0 | |
| (+) Improvement Non-Homesite Value: | + | $491,822 | |
| (+) Land Homesite Value: | + | $0 | |
| (+) Land Non-Homesite Value: | + | $340,000 | |
| (+) Curr Use (HS): | + | $0 | $0 |
| (+) Curr Use (NHS): | + | $0 | $0 |
| | | -------------------------- | |
| (=) Market Value: | = | $831,822 | |
| (–) Productivity Loss: | – | $0 | |
| | | -------------------------- | |
| (=) Subtotal: | = | $831,822 | |
| (+) Senior Appraised Value: | + | $0 | |
| (+) Non-Senior Appraised Value: | + | $831,822 | |
| | | -------------------------- | |
| (=) Total Appraised Value: | = | $831,822 | |
| (–) Senior Exemption Loss: | – | $0 | |
| (–) Exemption Loss: | – | $0 | |
| | | -------------------------- | |
| (=) Taxable Value: | = | $831,822 | |
Taxing Jurisdiction
| Owner: | GREVE, JAKE D | | |
| % Ownership: | 100.0000000000% | | |
| Total Value: | $831,822 | | |
| Tax Area: | 710 - APPRAISER-S Whid Schl Dist, outside Langley, improved & 1 acre or less |
| CF | Conservation Futures | 0.0316035091 | $831,822 | $831,822 | $26.29 | | |
| FIRE3 | Fire & Rescue Dist #3 S Whidbey GEN | 1.2004855531 | $831,822 | $831,822 | $998.59 | | |
| HOBOND | Hospital BOND | 0.1910887512 | $831,822 | $831,822 | $158.95 | | |
| HOGEN | Hospital GEN | 0.3902502903 | $831,822 | $831,822 | $324.62 | | |
| CE | County Current Expense | 0.3708482477 | $831,822 | $831,822 | $308.48 | | |
| CR | County Roads | 0.4584763726 | $831,822 | $831,822 | $381.37 | | |
| ISLANDEMS | Hospital GEN (EMS) | 0.5000000000 | $831,822 | $831,822 | $415.91 | | |
| LIB | Library Sno-Isle GEN | 0.3153421757 | $831,822 | $831,822 | $262.31 | | |
| PORTWHID | Port of S Whidbey GEN | 0.1094540357 | $831,822 | $831,822 | $91.05 | | |
| SCH206BOND | School 206 BOND | 0.3161759235 | $831,822 | $831,822 | $263.00 | | |
| SCH206MO | School 206 Enrichment | 0.4547169547 | $831,822 | $831,822 | $378.24 | | |
| ST | State School | 1.3035497053 | $831,822 | $831,822 | $1,084.32 | | |
| ST2 | State School Part 2 | 0.8169543533 | $831,822 | $831,822 | $679.56 | | |
| SWHIDPRBD | P & R S Whidbey BOND | 0.0152817568 | $831,822 | $831,822 | $12.71 | | |
| SWHIDPRBD2 | P & R S Whidbey BOND2 | 0.0138911264 | $831,822 | $831,822 | $11.55 | | |
| SWHIDPRMT | P & R S Whidbey GEN | 0.2053334452 | $831,822 | $831,822 | $170.80 | | |
| | Total Tax Rate: | 6.6934522006 | | | | | |
| | | | | Taxes w/Current Exemptions: | $5,567.75 | | |
| | | | | Taxes w/o Exemptions: | $5,567.75 | | |
Improvement / Building
| Improvement #1: | RESIDENTIAL | State Code: | Y | 2056.5 sqft | Value: | $491,822 |
| Bathrooms: | 2 | Bedrooms: | 2 | | Ceiling: | BEAM PAINTED | Cooling: | HEAT PUMP/CONV/V | | Exterior Wall/Cover: | CEMENT FIBER | Floor Covering: | HARDWOOD/CARP 60-40 | | Floor Structure: | WOOD W/SUBFLOOR | Foundation: | CONCRETE | | Interior Finish: | DRYWALL PAINT | Plumbing Fixture Cnt: | 11 | | Roof Slope: | 6" IN 12" | Roof Structure/Cover: | BEAM ASPHALT |
|
| | Type | Description | Class CD | Sub Class CD | Year Built | Area |
| | BAS | BASE/MAIN FLOOR | 4 | 0 | 2022 | 1359.0 |
| | LOF | LOFT | 4 | 0 | 2022 | 697.5 |
| | OWP | OPEN WOOD PORCH W/STEPS | 4 | 0 | 2022 | 60.0 |
| | OWP | OPEN WOOD PORCH W/STEPS | 4 | 0 | 2022 | 344.0 |
| | UB8 | BASEMENT UNFINISHED 8" | 4 | 0 | 2022 | 1359.0 |
Sketch
Property Image
Land
| 1 | 16 | AC (00.51-01.00) | 0.7500 | 32670.00 | 0.00 | 0.00 | 1.00 | $340,000 | $0 |
Roll Value History
| 2026 | N/A | N/A | N/A | N/A | N/A |
| 2025 | $491,822 | $340,000 | $0 | $831,822 | $831,822 |
| 2024 | $489,513 | $320,000 | $0 | $809,513 | $809,513 |
| 2023 | $498,412 | $310,000 | $0 | $808,412 | $808,412 |
| 2022 | $188,659 | $150,000 | $0 | $338,659 | $338,659 |
| 2021 | $0 | $130,000 | $0 | $130,000 | $130,000 |
| 2020 | $0 | $120,000 | $0 | $120,000 | $120,000 |
| 2019 | $0 | $7,000 | $0 | $7,000 | $7,000 |
| 2018 | $0 | $7,000 | $0 | $7,000 | $7,000 |
| 2017 | $0 | $5,000 | $0 | $5,000 | $5,000 |
| 2016 | $0 | $5,000 | $0 | $5,000 | $5,000 |
| 2015 | $0 | $5,000 | $0 | $5,000 | $5,000 |
| 2014 | $0 | $23,100 | $0 | $23,100 | $23,100 |
| 2013 | $0 | $53,400 | $0 | $53,400 | $53,400 |
| 2012 | $0 | $53,400 | $0 | $53,400 | $53,400 |
| 2011 | $0 | $53,400 | $0 | $53,400 | $53,400 |
| 2010 | $0 | $53,400 | $0 | $53,400 | $53,400 |
| 2009 | $0 | $67,800 | $0 | $67,800 | $67,800 |
| 2008 | $0 | $68,400 | $0 | $68,400 | $68,400 |
| 2007 | $0 | $68,400 | $0 | $68,400 | $68,400 |
Deed and Sales History
| 1 | 08/25/2017 | QCD | Quit Claim Deed | GREVE', MIRIAM C | GREVE, JAKE D | | | $0.00 | 30804 | 4428968 |
| 2 | 09/03/2009 | QCD | Quit Claim Deed | GREVE', DANIEL R | GREVE', MIRIAM C | | | $0.00 | 92101 | 4259715 |
| 3 | 03/12/2002 | QCD | Quit Claim Deed | GREVE', DONALD A | GREVE', DANIEL R | | | $0.00 | 20964 | 4014116 |
| 4 | 01/01/1900 | OTHER | Other - Misc. Documents | Unknown | GREVE', DONALD A | | | $0.00 | 58553 | 348818 |
Payout Agreement
| No payout information available.. |