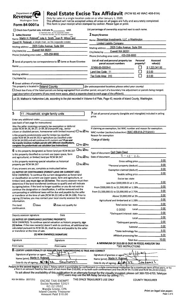
Property
Account |
| Property ID: | 634479 | Abbreviated Legal Description: | SARATOGA HIGHLANDS #1 LOT 3 |
| Geographic ID: | S8092-00-00003-0 | Agent Code: | |
| Type: | Real | | |
| Tax Area: | 510 - APPRAISER-Stan/Cam Schl Dist, improved & 1 acre or less | Land Use Code | 11 |
| Open Space: | N | DFL | N |
| Historic Property: | N | Remodel Property: | N |
| Multi-Family Redevelopment: | N | | |
| Township: | | Section: | |
| Range: | |
Location |
| Address: | 862 SANDS LN CAMANO ISLAND, WA 98282 | Mapsco: | |
| Neighborhood: | Cycle 5 | Map ID: | 486 |
| Neighborhood CD: | 5 |
Owner |
| Name: | OTTO, GEORGE H | Owner ID: | 67432 |
| Mailing Address: | 862 SANDS LN CAMANO ISLAND, WA 98282-7580 | % Ownership: | 100.0000000000% |
| | | Exemptions: | |
Taxes and Assessment Details
Values
| (+) Improvement Homesite Value: | + | $0 | |
| (+) Improvement Non-Homesite Value: | + | $559,197 | |
| (+) Land Homesite Value: | + | $0 | |
| (+) Land Non-Homesite Value: | + | $575,000 | |
| (+) Curr Use (HS): | + | $0 | $0 |
| (+) Curr Use (NHS): | + | $0 | $0 |
| | | -------------------------- | |
| (=) Market Value: | = | $1,134,197 | |
| (–) Productivity Loss: | – | $0 | |
| | | -------------------------- | |
| (=) Subtotal: | = | $1,134,197 | |
| (+) Senior Appraised Value: | + | $0 | |
| (+) Non-Senior Appraised Value: | + | $1,134,197 | |
| | | -------------------------- | |
| (=) Total Appraised Value: | = | $1,134,197 | |
| (–) Senior Exemption Loss: | – | $0 | |
| (–) Exemption Loss: | – | $0 | |
| | | -------------------------- | |
| (=) Taxable Value: | = | $1,134,197 | |
Taxing Jurisdiction
| Owner: | OTTO, GEORGE H | | |
| % Ownership: | 100.0000000000% | | |
| Total Value: | $1,134,197 | | |
| Tax Area: | 510 - APPRAISER-Stan/Cam Schl Dist, improved & 1 acre or less |
| CF | Conservation Futures | 0.0316035091 | $1,134,197 | $1,134,197 | $35.84 | | |
| EMS1 | Fire & Rescue Dist #1 Camano GEN (EMS) | 0.3677864386 | $1,134,197 | $1,134,197 | $417.14 | | |
| FIRE1 | Fire & Rescue Dist #1 Camano GEN | 1.2502910536 | $1,134,197 | $1,134,197 | $1,418.08 | | |
| FIRE1BOND | Fire & Rescue Dist #1 Camano BOND | 0.1570001679 | $1,134,197 | $1,134,197 | $178.07 | | |
| CE | County Current Expense | 0.3708482477 | $1,134,197 | $1,134,197 | $420.61 | | |
| CR | County Roads | 0.4584763726 | $1,134,197 | $1,134,197 | $520.00 | | |
| LCIB | Library Sno-Isle BOND (Camano Island) | 0.0396325772 | $1,134,197 | $1,134,197 | $44.95 | | |
| LIB | Library Sno-Isle GEN | 0.3153421757 | $1,134,197 | $1,134,197 | $357.66 | | |
| SCH205_401 | School 205-401 Enrichment | 1.2698420524 | $1,134,197 | $1,134,197 | $1,440.25 | | |
| SCH205BOND | School 205-401 BOND | 0.9396497583 | $1,134,197 | $1,134,197 | $1,065.75 | | |
| ST | State School | 1.3035497053 | $1,134,197 | $1,134,197 | $1,478.48 | | |
| ST2 | State School Part 2 | 0.8169543533 | $1,134,197 | $1,134,197 | $926.59 | | |
| | Total Tax Rate: | 7.3209764117 | | | | | |
| | | | | Taxes w/Current Exemptions: | $8,303.42 | | |
| | | | | Taxes w/o Exemptions: | $8,303.42 | | |
Improvement / Building
| Improvement #1: | RESIDENTIAL | State Code: | Y | 2844.5 sqft | Value: | $559,197 |
| Bathrooms: | 2.5 | Bedrooms: | 3 | | Ceiling: | DRYWALL PAINTED | Exterior Wall/Cover: | CEMENT FIBER | | Floor Covering: | HARDWOOD/CARP 20-80 | Floor Structure: | WOOD W/SUBFLOOR | | Foundation: | CONCRETE | Heating: | FHA GAS | | Interior Finish: | DRYWALL PAINT | Plumbing Fixture Cnt: | 14 | | Roof Slope: | 5" IN 12" | Roof Structure/Cover: | CJ ASPHALT |
|
| | Type | Description | Class CD | Sub Class CD | Year Built | Area |
| | BAS | BASE/MAIN FLOOR | 4 | 0 | 1994 | 1542.4 |
| | OP1 | OPEN PORCH SLAB | 4 | 0 | 1994 | 64.0 |
| | OP4 | OPEN PORCH W/CEILING-ROOF | 4 | 0 | 1994 | 126.5 |
| | AGR | ATTACHED GARAGE | 4 | 0 | 1994 | 866.2 |
| | UPS | UPPER STORY | 4 | 0 | 1994 | 1302.1 |
| | BAW | BALCONY WOOD RAIL | 4 | 0 | 1994 | 63.0 |
| | OWP | OPEN WOOD PORCH W/STEPS | 4 | 0 | 1994 | 1066.0 |
Sketch
Property Image
Land
| 1 | HB | HIGH BLUFF | 0.0000 | 0.00 | 99.00 | 0.00 | 1.00 | $575,000 | $0 |
Roll Value History
| 2026 | N/A | N/A | N/A | N/A | N/A |
| 2025 | $559,197 | $575,000 | $0 | $1,134,197 | $1,134,197 |
| 2024 | $566,080 | $575,000 | $0 | $1,141,080 | $1,141,080 |
| 2023 | $572,962 | $575,000 | $0 | $1,147,962 | $1,147,962 |
| 2022 | $525,053 | $550,000 | $0 | $1,075,053 | $1,075,053 |
| 2021 | $429,488 | $500,000 | $0 | $929,488 | $929,488 |
| 2020 | $419,040 | $500,000 | $0 | $919,040 | $919,040 |
| 2019 | $324,520 | $600,000 | $0 | $924,520 | $924,520 |
| 2018 | $325,519 | $300,000 | $0 | $625,519 | $625,519 |
| 2017 | $327,473 | $250,000 | $0 | $577,473 | $577,473 |
| 2016 | $331,465 | $250,000 | $0 | $581,465 | $581,465 |
| 2015 | $311,020 | $250,000 | $0 | $561,020 | $561,020 |
| 2014 | $314,830 | $250,000 | $0 | $564,830 | $564,830 |
| 2013 | $318,642 | $264,256 | $0 | $582,898 | $582,898 |
| 2012 | $322,454 | $264,256 | $0 | $586,710 | $586,710 |
| 2011 | $326,264 | $330,320 | $0 | $656,584 | $656,584 |
| 2010 | $338,869 | $402,825 | $0 | $741,694 | $741,694 |
| 2009 | $354,717 | $433,146 | $0 | $787,863 | $787,863 |
| 2008 | $360,253 | $334,141 | $0 | $694,394 | $694,394 |
| 2007 | $365,825 | $374,238 | $0 | $740,063 | $740,063 |
Deed and Sales History
| 1 | 05/01/1989 | WD | Warranty Deed | SANDS, CARROLL J | OTTO, GEORGE H | | | $72,500.00 | 91808 | 89006266 |
| 2 | 01/01/1900 | OTHER | Other - Misc. Documents | Unknown | SANDS, CARROLL J | | | $0.00 | 81744 | 88006473 |
Payout Agreement
| No payout information available.. |