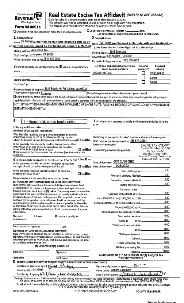
Property
Account |
| Property ID: | 634497 | Abbreviated Legal Description: | SARATOGA HIGHLANDS #1 LOT 5 |
| Geographic ID: | S8092-00-00005-0 | Agent Code: | |
| Type: | Real | | |
| Tax Area: | 510 - APPRAISER-Stan/Cam Schl Dist, improved & 1 acre or less | Land Use Code | 11 |
| Open Space: | N | DFL | N |
| Historic Property: | N | Remodel Property: | N |
| Multi-Family Redevelopment: | N | | |
| Township: | | Section: | |
| Range: | |
Location |
| Address: | 878 SANDS LN CAMANO ISLAND, WA 98282 | Mapsco: | |
| Neighborhood: | Cycle 5 | Map ID: | 486 |
| Neighborhood CD: | 5 |
Owner |
| Name: | FRALICK, LANCE A | Owner ID: | 263576 |
| Mailing Address: | E A FRALICK 878 SANDS LN CAMANO ISLAND, WA 98282 | % Ownership: | 100.0000000000% |
| | | Exemptions: | |
Taxes and Assessment Details
Values
| (+) Improvement Homesite Value: | + | $0 | |
| (+) Improvement Non-Homesite Value: | + | $626,890 | |
| (+) Land Homesite Value: | + | $0 | |
| (+) Land Non-Homesite Value: | + | $575,000 | |
| (+) Curr Use (HS): | + | $0 | $0 |
| (+) Curr Use (NHS): | + | $0 | $0 |
| | | -------------------------- | |
| (=) Market Value: | = | $1,201,890 | |
| (–) Productivity Loss: | – | $0 | |
| | | -------------------------- | |
| (=) Subtotal: | = | $1,201,890 | |
| (+) Senior Appraised Value: | + | $0 | |
| (+) Non-Senior Appraised Value: | + | $1,201,890 | |
| | | -------------------------- | |
| (=) Total Appraised Value: | = | $1,201,890 | |
| (–) Senior Exemption Loss: | – | $0 | |
| (–) Exemption Loss: | – | $0 | |
| | | -------------------------- | |
| (=) Taxable Value: | = | $1,201,890 | |
Taxing Jurisdiction
| Owner: | FRALICK, LANCE A | | |
| % Ownership: | 100.0000000000% | | |
| Total Value: | $1,201,890 | | |
| Tax Area: | 510 - APPRAISER-Stan/Cam Schl Dist, improved & 1 acre or less |
| CF | Conservation Futures | 0.0316035091 | $1,201,890 | $1,201,890 | $37.98 | | |
| EMS1 | Fire & Rescue Dist #1 Camano GEN (EMS) | 0.3677864386 | $1,201,890 | $1,201,890 | $442.04 | | |
| FIRE1 | Fire & Rescue Dist #1 Camano GEN | 1.2502910536 | $1,201,890 | $1,201,890 | $1,502.71 | | |
| FIRE1BOND | Fire & Rescue Dist #1 Camano BOND | 0.1570001679 | $1,201,890 | $1,201,890 | $188.70 | | |
| CE | County Current Expense | 0.3708482477 | $1,201,890 | $1,201,890 | $445.72 | | |
| CR | County Roads | 0.4584763726 | $1,201,890 | $1,201,890 | $551.04 | | |
| LCIB | Library Sno-Isle BOND (Camano Island) | 0.0396325772 | $1,201,890 | $1,201,890 | $47.63 | | |
| LIB | Library Sno-Isle GEN | 0.3153421757 | $1,201,890 | $1,201,890 | $379.01 | | |
| SCH205_401 | School 205-401 Enrichment | 1.2698420524 | $1,201,890 | $1,201,890 | $1,526.21 | | |
| SCH205BOND | School 205-401 BOND | 0.9396497583 | $1,201,890 | $1,201,890 | $1,129.36 | | |
| ST | State School | 1.3035497053 | $1,201,890 | $1,201,890 | $1,566.72 | | |
| ST2 | State School Part 2 | 0.8169543533 | $1,201,890 | $1,201,890 | $981.89 | | |
| | Total Tax Rate: | 7.3209764117 | | | | | |
| | | | | Taxes w/Current Exemptions: | $8,799.01 | | |
| | | | | Taxes w/o Exemptions: | $8,799.01 | | |
Improvement / Building
| Improvement #1: | RESIDENTIAL | State Code: | Y | 3474.5 sqft | Value: | $626,890 |
| Bathrooms: | 3 | Bedrooms: | 3 | | Ceiling: | DRYWALL PAINTED | Cooling: | HEAT PUMP/CONV/V | | Exterior Wall/Cover: | CEMENT FIBER | Floor Covering: | HARDWOOD/CARP 20-80 | | Floor Structure: | WOOD W/SUBFLOOR | Foundation: | CONCRETE | | Interior Finish: | DRYWALL PAINT | Plumbing Fixture Cnt: | 15 | | Roof Slope: | 6" IN 12" | Roof Structure/Cover: | CJ ASPHALT |
|
| | Type | Description | Class CD | Sub Class CD | Year Built | Area |
| | BAS | BASE/MAIN FLOOR | 4 | 0 | 1996 | 1891.0 |
| | UB8 | BASEMENT UNFINISHED 8" | 4 | 0 | 1996 | 303.0 |
| | OP1 | OPEN PORCH SLAB | 4 | 0 | 1996 | 121.5 |
| | OP4 | OPEN PORCH W/CEILING-ROOF | 4 | 0 | 1996 | 90.0 |
| | AGR | ATTACHED GARAGE | 4 | 0 | 1996 | 1008.0 |
| | OWP | OPEN WOOD PORCH W/STEPS | 4 | 0 | 1996 | 963.8 |
| | OWC | OPEN WOOD PORCH W/STEPS/ROOF/C | 4 | 0 | 1996 | 46.5 |
| | DWN | DOWNSTAIRS LIVING AREA | 4 | 0 | 1996 | 1583.5 |
Sketch
Property Image
Land
| 1 | HB | HIGH BLUFF | 0.0000 | 0.00 | 99.00 | 0.00 | 1.00 | $575,000 | $0 |
Roll Value History
| 2026 | N/A | N/A | N/A | N/A | N/A |
| 2025 | $626,890 | $575,000 | $0 | $1,201,890 | $1,201,890 |
| 2024 | $634,421 | $575,000 | $0 | $1,209,421 | $1,209,421 |
| 2023 | $641,951 | $575,000 | $0 | $1,216,951 | $1,216,951 |
| 2022 | $588,119 | $550,000 | $0 | $1,138,119 | $1,138,119 |
| 2021 | $481,511 | $500,000 | $0 | $981,511 | $981,511 |
| 2020 | $470,013 | $500,000 | $0 | $970,013 | $970,013 |
| 2019 | $378,509 | $600,000 | $0 | $978,509 | $978,509 |
| 2018 | $379,632 | $300,000 | $0 | $679,632 | $679,632 |
| 2017 | $381,851 | $250,000 | $0 | $631,851 | $631,851 |
| 2016 | $386,341 | $250,000 | $0 | $636,341 | $636,341 |
| 2015 | $378,904 | $250,000 | $0 | $628,904 | $628,904 |
| 2014 | $383,400 | $250,000 | $0 | $633,400 | $633,400 |
| 2013 | $369,922 | $264,256 | $0 | $634,178 | $634,178 |
| 2012 | $374,414 | $264,256 | $0 | $638,670 | $638,670 |
| 2011 | $378,904 | $330,320 | $0 | $709,224 | $709,224 |
| 2010 | $389,136 | $402,825 | $0 | $791,961 | $791,961 |
| 2009 | $418,387 | $433,146 | $0 | $851,533 | $851,533 |
| 2008 | $423,437 | $334,141 | $0 | $757,578 | $757,578 |
| 2007 | $428,482 | $374,238 | $0 | $802,720 | $802,720 |
Deed and Sales History
| 1 | 08/16/2013 | WD | Warranty Deed | MILLER, JOHN A & MARY E | FRALICK, LANCE A | | | $635,000.00 | 12613 | 4347337 |
| 2 | 11/01/1995 | WD | Warranty Deed | DIRKS, MARTIN C | MILLER, JOHN A | | | $145,000.00 | 54077 | 95018728 |
| 3 | 10/01/1992 | WD | Warranty Deed | STAVINGA, JAMES A | DIRKS, MARTIN C | | | $129,000.00 | 24044 | 92019676 |
| 4 | 05/01/1989 | WD | Warranty Deed | SANDS, CARROLL J | STAVINGA, JAMES A | | | $67,000.00 | 92000 | 89006869 |
| 5 | 01/01/1900 | OTHER | Other - Misc. Documents | Unknown | SANDS, CARROLL J | | | $0.00 | 81744 | 88006473 |
Payout Agreement
| No payout information available.. |