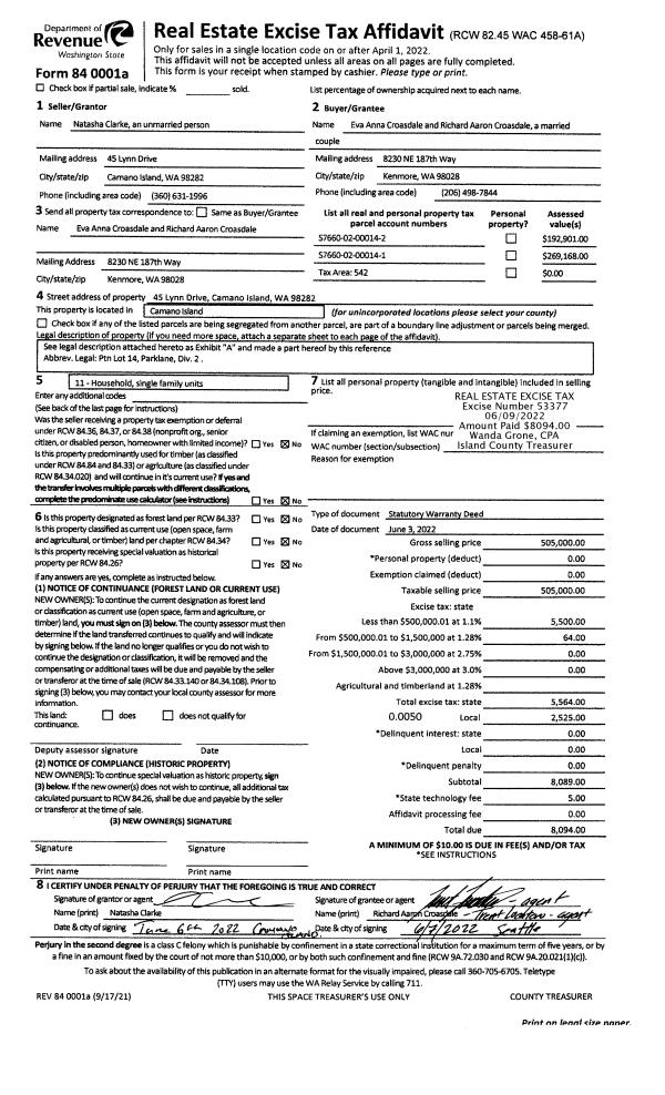
Property
Account |
| Property ID: | 634549 | Abbreviated Legal Description: | SARATOGA HIGHLANDS #1 LOT 10 |
| Geographic ID: | S8092-00-00010-0 | Agent Code: | |
| Type: | Real | | |
| Tax Area: | 510 - APPRAISER-Stan/Cam Schl Dist, improved & 1 acre or less | Land Use Code | 11 |
| Open Space: | N | DFL | N |
| Historic Property: | N | Remodel Property: | N |
| Multi-Family Redevelopment: | N | | |
| Township: | | Section: | |
| Range: | |
Location |
| Address: | 912 SANDS LN CAMANO ISLAND, WA 98282 | Mapsco: | |
| Neighborhood: | Cycle 5 | Map ID: | 486 |
| Neighborhood CD: | 5 |
Owner |
| Name: | EGGLESTON, WILFRED C | Owner ID: | 67439 |
| Mailing Address: | KIM M EGGLESTON 912 SANDS LN CAMANO ISLAND, WA 98282-6507 | % Ownership: | 100.0000000000% |
| | | Exemptions: | |
Taxes and Assessment Details
Values
| (+) Improvement Homesite Value: | + | $0 | |
| (+) Improvement Non-Homesite Value: | + | $803,512 | |
| (+) Land Homesite Value: | + | $0 | |
| (+) Land Non-Homesite Value: | + | $625,000 | |
| (+) Curr Use (HS): | + | $0 | $0 |
| (+) Curr Use (NHS): | + | $0 | $0 |
| | | -------------------------- | |
| (=) Market Value: | = | $1,428,512 | |
| (–) Productivity Loss: | – | $0 | |
| | | -------------------------- | |
| (=) Subtotal: | = | $1,428,512 | |
| (+) Senior Appraised Value: | + | $0 | |
| (+) Non-Senior Appraised Value: | + | $1,428,512 | |
| | | -------------------------- | |
| (=) Total Appraised Value: | = | $1,428,512 | |
| (–) Senior Exemption Loss: | – | $0 | |
| (–) Exemption Loss: | – | $0 | |
| | | -------------------------- | |
| (=) Taxable Value: | = | $1,428,512 | |
Taxing Jurisdiction
| Owner: | EGGLESTON, WILFRED C | | |
| % Ownership: | 100.0000000000% | | |
| Total Value: | $1,428,512 | | |
| Tax Area: | 510 - APPRAISER-Stan/Cam Schl Dist, improved & 1 acre or less |
| CF | Conservation Futures | 0.0316035091 | $1,428,512 | $1,428,512 | $45.15 | | |
| EMS1 | Fire & Rescue Dist #1 Camano GEN (EMS) | 0.3677864386 | $1,428,512 | $1,428,512 | $525.39 | | |
| FIRE1 | Fire & Rescue Dist #1 Camano GEN | 1.2502910536 | $1,428,512 | $1,428,512 | $1,786.06 | | |
| FIRE1BOND | Fire & Rescue Dist #1 Camano BOND | 0.1570001679 | $1,428,512 | $1,428,512 | $224.28 | | |
| CE | County Current Expense | 0.3708482477 | $1,428,512 | $1,428,512 | $529.76 | | |
| CR | County Roads | 0.4584763726 | $1,428,512 | $1,428,512 | $654.94 | | |
| LCIB | Library Sno-Isle BOND (Camano Island) | 0.0396325772 | $1,428,512 | $1,428,512 | $56.62 | | |
| LIB | Library Sno-Isle GEN | 0.3153421757 | $1,428,512 | $1,428,512 | $450.47 | | |
| SCH205_401 | School 205-401 Enrichment | 1.2698420524 | $1,428,512 | $1,428,512 | $1,813.98 | | |
| SCH205BOND | School 205-401 BOND | 0.9396497583 | $1,428,512 | $1,428,512 | $1,342.30 | | |
| ST | State School | 1.3035497053 | $1,428,512 | $1,428,512 | $1,862.14 | | |
| ST2 | State School Part 2 | 0.8169543533 | $1,428,512 | $1,428,512 | $1,167.03 | | |
| | Total Tax Rate: | 7.3209764117 | | | | | |
| | | | | Taxes w/Current Exemptions: | $10,458.12 | | |
| | | | | Taxes w/o Exemptions: | $10,458.12 | | |
Improvement / Building
| Improvement #1: | RESIDENTIAL | State Code: | Y | 3614.6 sqft | Value: | $803,512 |
| Bathrooms: | 3 | Bedrooms: | 2 | | Ceiling: | TONGUE & GROOVE | Cooling: | HEAT PUMP/CONV/V | | Exterior Wall/Cover: | WOOD SIDING | Floor Covering: | CERAMIC TILE/CPT 40-60 | | Floor Structure: | WOOD W/SUBFLOOR | Foundation: | CONCRETE | | Interior Finish: | DRYWALL PAINT | Plumbing Fixture Cnt: | 13 | | Roof Slope: | 4" IN 12" | Roof Structure/Cover: | CJ CONCRETE TILE |
|
| | Type | Description | Class CD | Sub Class CD | Year Built | Area |
| | BAS | BASE/MAIN FLOOR | 5 | 0 | 2000 | 2061.9 |
| | OP1 | OPEN PORCH SLAB | 5 | 0 | 2000 | 161.4 |
| | OP4 | OPEN PORCH W/CEILING-ROOF | 5 | 0 | 2000 | 349.8 |
| | AGR | ATTACHED GARAGE | 5 | 0 | 2000 | 832.0 |
| | OCP | OPEN CARPORT | 5 | 0 | 2000 | 266.0 |
| | UPS | UPPER STORY | 5 | 0 | 2000 | 1552.7 |
| | OWP | OPEN WOOD PORCH W/STEPS | 5 | 0 | 2000 | 527.5 |
| | OWP | OPEN WOOD PORCH W/STEPS | 5 | 0 | 2000 | 128.0 |
| | UTY | STORAGE/UTILITY | 3 | 0 | 2000 | 170.0 |
Sketch
Property Image
Land
| 1 | HB | HIGH BLUFF | 0.0000 | 0.00 | 160.00 | 0.00 | 1.00 | $625,000 | $0 |
Roll Value History
| 2026 | N/A | N/A | N/A | N/A | N/A |
| 2025 | $803,512 | $625,000 | $0 | $1,428,512 | $1,428,512 |
| 2024 | $813,162 | $625,000 | $0 | $1,438,162 | $1,438,162 |
| 2023 | $822,814 | $625,000 | $0 | $1,447,814 | $1,447,814 |
| 2022 | $753,816 | $600,000 | $0 | $1,353,816 | $1,353,816 |
| 2021 | $626,160 | $550,000 | $0 | $1,176,160 | $1,176,160 |
| 2020 | $611,510 | $550,000 | $0 | $1,161,510 | $1,161,510 |
| 2019 | $533,645 | $650,000 | $0 | $1,183,645 | $1,183,645 |
| 2018 | $535,209 | $400,000 | $0 | $935,209 | $935,209 |
| 2017 | $538,159 | $400,000 | $0 | $938,159 | $938,159 |
| 2016 | $544,416 | $400,000 | $0 | $944,416 | $944,416 |
| 2015 | $540,721 | $400,000 | $0 | $940,721 | $940,721 |
| 2014 | $547,047 | $400,000 | $0 | $947,047 | $947,047 |
| 2013 | $553,375 | $394,928 | $0 | $948,303 | $948,303 |
| 2012 | $559,701 | $394,928 | $0 | $954,629 | $954,629 |
| 2011 | $566,028 | $493,660 | $0 | $1,059,688 | $1,059,688 |
| 2010 | $570,290 | $602,029 | $0 | $1,172,319 | $1,172,319 |
| 2009 | $601,750 | $647,342 | $0 | $1,249,092 | $1,249,092 |
| 2008 | $606,496 | $443,893 | $0 | $1,050,389 | $1,050,389 |
| 2007 | $607,365 | $497,160 | $0 | $1,104,525 | $1,104,525 |
Deed and Sales History
| 1 | 10/12/1998 | WD | Warranty Deed | GUM, RICHARD W | EGGLESTON, WILFRED C | | | $195,000.00 | 84167 | 98022673 |
| 2 | 09/01/1994 | WD | Warranty Deed | CAMPBELL, ROBERT J | GUM, RICHARD W | | | $180,000.00 | 43764 | 94019658 |
| 3 | 08/01/1989 | WD | Warranty Deed | SANDS, CARROLL J | CAMPBELL, ROBERT J | | | $105,000.00 | 93547 | 89011899 |
| 4 | 01/01/1900 | OTHER | Other - Misc. Documents | Unknown | SANDS, CARROLL J | | | $0.00 | 81744 | 88006473 |
Payout Agreement
| No payout information available.. |