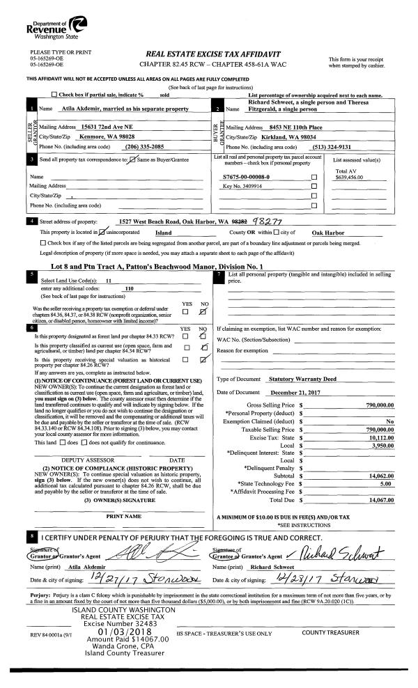
Property
Account |
| Property ID: | 635012 | Abbreviated Legal Description: | IN GL 5: PARCEL "q" DESC: BG NECR PAR "B" V5 SUR P270 S54*W250.87' S26*E255.82' PB S1*W389.57' N85*E117.25 N56*E137' N25*E100' N45*E245' NLL*E55.48' TO WLN HINMAN RD N49*W270.78' S61*W322.72' TPB EX NWLY 215' TGW & SUB EZS FR274-430 (TR Q-3 SURVEY AF#91 |
| Geographic ID: | R32924-268-4360 | Agent Code: | |
| Type: | Real | | |
| Tax Area: | 722 - APPRAISER-S Whid Schl Dist, Special District, improved, greater than 1 acre | Land Use Code | 11 |
| Open Space: | N | DFL | N |
| Historic Property: | N | Remodel Property: | N |
| Multi-Family Redevelopment: | N | | |
| Township: | 29 | Section: | 24 |
| Range: | R3 |
Location |
| Address: | 6237 WALNUT WAY CLINTON, WA 98236 | Mapsco: | |
| Neighborhood: | Cycle 4 | Map ID: | 808 |
| Neighborhood CD: | 4 |
Owner |
| Name: | REILLEY, KELLY A | Owner ID: | 282262 |
| Mailing Address: | RICKY A WORKMAN 6237 WALNUT WAY CLINTON, WA 98236 | % Ownership: | 100.0000000000% |
| | | Exemptions: | |
Taxes and Assessment Details
Values
| (+) Improvement Homesite Value: | + | $0 | |
| (+) Improvement Non-Homesite Value: | + | $632,716 | |
| (+) Land Homesite Value: | + | $0 | |
| (+) Land Non-Homesite Value: | + | $370,000 | |
| (+) Curr Use (HS): | + | $0 | $0 |
| (+) Curr Use (NHS): | + | $0 | $0 |
| | | -------------------------- | |
| (=) Market Value: | = | $1,002,716 | |
| (–) Productivity Loss: | – | $0 | |
| | | -------------------------- | |
| (=) Subtotal: | = | $1,002,716 | |
| (+) Senior Appraised Value: | + | $0 | |
| (+) Non-Senior Appraised Value: | + | $1,002,716 | |
| | | -------------------------- | |
| (=) Total Appraised Value: | = | $1,002,716 | |
| (–) Senior Exemption Loss: | – | $0 | |
| (–) Exemption Loss: | – | $0 | |
| | | -------------------------- | |
| (=) Taxable Value: | = | $1,002,716 | |
Taxing Jurisdiction
| Owner: | REILLEY, KELLY A | | |
| % Ownership: | 100.0000000000% | | |
| Total Value: | $1,002,716 | | |
| Tax Area: | 722 - APPRAISER-S Whid Schl Dist, Special District, improved, greater than 1 acre |
| CF | Conservation Futures | 0.0316035091 | $1,002,716 | $1,002,716 | $31.69 | | |
| FIRE3 | Fire & Rescue Dist #3 S Whidbey GEN | 1.2004855531 | $1,002,716 | $1,002,716 | $1,203.75 | | |
| HOBOND | Hospital BOND | 0.1910887512 | $1,002,716 | $1,002,716 | $191.61 | | |
| HOGEN | Hospital GEN | 0.3902502903 | $1,002,716 | $1,002,716 | $391.31 | | |
| CE | County Current Expense | 0.3708482477 | $1,002,716 | $1,002,716 | $371.86 | | |
| CR | County Roads | 0.4584763726 | $1,002,716 | $1,002,716 | $459.72 | | |
| ISLANDEMS | Hospital GEN (EMS) | 0.5000000000 | $1,002,716 | $1,002,716 | $501.36 | | |
| LIB | Library Sno-Isle GEN | 0.3153421757 | $1,002,716 | $1,002,716 | $316.20 | | |
| PORTWHID | Port of S Whidbey GEN | 0.1094540357 | $1,002,716 | $1,002,716 | $109.75 | | |
| SCH206BOND | School 206 BOND | 0.3161759235 | $1,002,716 | $1,002,716 | $317.03 | | |
| SCH206MO | School 206 Enrichment | 0.4547169547 | $1,002,716 | $1,002,716 | $455.95 | | |
| ST | State School | 1.3035497053 | $1,002,716 | $1,002,716 | $1,307.09 | | |
| ST2 | State School Part 2 | 0.8169543533 | $1,002,716 | $1,002,716 | $819.17 | | |
| SWHIDPRBD | P & R S Whidbey BOND | 0.0152817568 | $1,002,716 | $1,002,716 | $15.32 | | |
| SWHIDPRBD2 | P & R S Whidbey BOND2 | 0.0138911264 | $1,002,716 | $1,002,716 | $13.93 | | |
| SWHIDPRMT | P & R S Whidbey GEN | 0.2053334452 | $1,002,716 | $1,002,716 | $205.89 | | |
| | Total Tax Rate: | 6.6934522006 | | | | | |
| | | | | Taxes w/Current Exemptions: | $6,711.63 | | |
| | | | | Taxes w/o Exemptions: | $6,711.63 | | |
Improvement / Building
| Improvement #1: | RESIDENTIAL | State Code: | Y | 4389.4 sqft | Value: | $632,716 |
| Bathrooms: | 4 | Bedrooms: | 3 | | Ceiling: | DRYWALL PAINTED | Exterior Wall/Cover: | WOOD SIDING | | Floor Covering: | HARDWOOD/CARP 20-80 | Floor Structure: | WOOD W/SUBFLOOR | | Foundation: | CONCRETE | Heating: | FHA GAS | | Interior Finish: | DRYWALL PAINT | Plumbing Fixture Cnt: | 15 | | Roof Slope: | 4" IN 12" | Roof Structure/Cover: | CJ CONCRETE TILE |
|
| | Type | Description | Class CD | Sub Class CD | Year Built | Area |
| | BAS | BASE/MAIN FLOOR | 4 | 0 | 1990 | 1489.8 |
| | DWN | DOWNSTAIRS LIVING AREA | 4 | 0 | 1990 | 1449.8 |
| | AGR | ATTACHED GARAGE | 4 | 0 | 1990 | 780.0 |
| | CPD | OPEN CARPORT DIRT FLOOR | 4 | 0 | 1990 | 300.0 |
| | UPS | UPPER STORY | 4 | 0 | 1990 | 1449.8 |
| | OWP | OPEN WOOD PORCH W/STEPS | 4 | 0 | 1990 | 385.2 |
| | OWP | OPEN WOOD PORCH W/STEPS | 4 | 0 | 1990 | 64.0 |
| | OWP | OPEN WOOD PORCH W/STEPS | 4 | 0 | 1990 | 64.0 |
| | OWP | OPEN WOOD PORCH W/STEPS | 4 | 0 | 1990 | 148.0 |
| | OWP | OPEN WOOD PORCH W/STEPS | 4 | 0 | 1990 | 116.6 |
| | OWC | OPEN WOOD PORCH W/STEPS/ROOF/C | 4 | 0 | 1990 | 216.0 |
Sketch
Property Image
Land
| 1 | 17 | AC (01.01-02.00) | 0.0000 | 0.00 | 0.00 | 0.00 | 1.00 | $370,000 | $0 |
Roll Value History
| 2026 | N/A | N/A | N/A | N/A | N/A |
| 2025 | $632,716 | $370,000 | $0 | $1,002,716 | $1,002,716 |
| 2024 | $640,600 | $350,000 | $0 | $990,600 | $990,600 |
| 2023 | $648,483 | $310,000 | $0 | $958,483 | $958,483 |
| 2022 | $594,340 | $280,000 | $0 | $874,340 | $874,340 |
| 2021 | $523,060 | $260,000 | $0 | $783,060 | $783,060 |
| 2020 | $511,119 | $230,000 | $0 | $741,119 | $741,119 |
| 2019 | $431,611 | $260,000 | $0 | $691,611 | $691,611 |
| 2018 | $432,865 | $230,000 | $0 | $662,865 | $662,865 |
| 2017 | $353,095 | $200,000 | $0 | $553,095 | $553,095 |
| 2016 | $357,681 | $150,000 | $0 | $507,681 | $507,681 |
| 2015 | $362,268 | $150,000 | $0 | $512,268 | $512,268 |
| 2014 | $376,142 | $150,000 | $0 | $526,142 | $526,142 |
| 2013 | $381,063 | $150,000 | $0 | $531,063 | $531,063 |
| 2012 | $385,981 | $150,000 | $0 | $535,981 | $535,981 |
| 2011 | $390,900 | $150,000 | $0 | $540,900 | $540,900 |
| 2010 | $401,808 | $150,000 | $0 | $551,808 | $551,808 |
| 2009 | $419,063 | $175,000 | $0 | $594,063 | $594,063 |
| 2008 | $403,269 | $175,000 | $0 | $578,269 | $578,269 |
| 2007 | $407,992 | $175,000 | $0 | $582,992 | $582,992 |
Deed and Sales History
| 1 | 09/15/2017 | WD | Warranty Deed | MARTIN, DENNIS A | REILLEY, KELLY A | | | $685,000.00 | 31350 | 4431307 |
| 2 | 10/05/1998 | WD | Warranty Deed | INGLIS, KEITH W | MARTIN, DENNIS A | | | $347,000.00 | 84030 | 98021673 |
| 3 | 11/01/1992 | WD | Warranty Deed | SIMMONS, RICHARD W | INGLIS, KEITH W | | | $249,900.00 | 24637 | 92022876 |
| 4 | 04/01/1989 | WD | Warranty Deed | WRIGHTSMAN, CRAIG | SIMMONS, RICHARD W | | | $32,500.00 | 91554 | 89005447 |
| 5 | 02/01/1989 | EXECUTORD | Executor Deed | WRIGHTSMAN, HENRY J | WRIGHTSMAN, CRAIG | | | $0.00 | 91008 | 89003528 |
| 6 | 01/01/1900 | OTHER | Other - Misc. Documents | Unknown | WRIGHTSMAN, HENRY J | | | $0.00 | 0 | 0 |
Payout Agreement
| No payout information available.. |