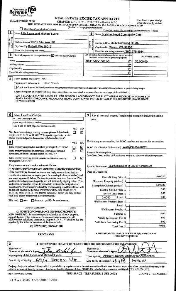
Property
Account |
| Property ID: | 635851 | Abbreviated Legal Description: | REPLACES 380-3650 19 - W/2 NE SW NE EX N20' |
| Geographic ID: | R32910-393-3650 | Agent Code: | |
| Type: | Real | | |
| Tax Area: | 712 - APPRAISER-S Whid Schl Dist, outside Langley, improved, greater than 1 acre | Land Use Code | 11 |
| Open Space: | N | DFL | N |
| Historic Property: | N | Remodel Property: | N |
| Multi-Family Redevelopment: | N | | |
| Township: | 29 | Section: | 10 |
| Range: | R3 |
Location |
| Address: | 5361 MAXWELTON RD LANGLEY, WA 98260 | Mapsco: | |
| Neighborhood: | Cycle 4 | Map ID: | 757 |
| Neighborhood CD: | 4 |
Owner |
| Name: | ROURK, JAMES D | Owner ID: | 276127 |
| Mailing Address: | TAYLOR M ROURK 5361 MAXWELTON RD LANGLEY, WA 98260 | % Ownership: | 100.0000000000% |
| | | Exemptions: | |
Taxes and Assessment Details
Values
| (+) Improvement Homesite Value: | + | $0 | |
| (+) Improvement Non-Homesite Value: | + | $427,541 | |
| (+) Land Homesite Value: | + | $0 | |
| (+) Land Non-Homesite Value: | + | $370,000 | |
| (+) Curr Use (HS): | + | $0 | $0 |
| (+) Curr Use (NHS): | + | $0 | $0 |
| | | -------------------------- | |
| (=) Market Value: | = | $797,541 | |
| (–) Productivity Loss: | – | $0 | |
| | | -------------------------- | |
| (=) Subtotal: | = | $797,541 | |
| (+) Senior Appraised Value: | + | $0 | |
| (+) Non-Senior Appraised Value: | + | $797,541 | |
| | | -------------------------- | |
| (=) Total Appraised Value: | = | $797,541 | |
| (–) Senior Exemption Loss: | – | $0 | |
| (–) Exemption Loss: | – | $0 | |
| | | -------------------------- | |
| (=) Taxable Value: | = | $797,541 | |
Taxing Jurisdiction
| Owner: | ROURK, JAMES D | | |
| % Ownership: | 100.0000000000% | | |
| Total Value: | $797,541 | | |
| Tax Area: | 712 - APPRAISER-S Whid Schl Dist, outside Langley, improved, greater than 1 acre |
| CF | Conservation Futures | 0.0316035091 | $797,541 | $797,541 | $25.21 | | |
| FIRE3 | Fire & Rescue Dist #3 S Whidbey GEN | 1.2004855531 | $797,541 | $797,541 | $957.44 | | |
| HOBOND | Hospital BOND | 0.1910887512 | $797,541 | $797,541 | $152.40 | | |
| HOGEN | Hospital GEN | 0.3902502903 | $797,541 | $797,541 | $311.24 | | |
| CE | County Current Expense | 0.3708482477 | $797,541 | $797,541 | $295.77 | | |
| CR | County Roads | 0.4584763726 | $797,541 | $797,541 | $365.65 | | |
| ISLANDEMS | Hospital GEN (EMS) | 0.5000000000 | $797,541 | $797,541 | $398.77 | | |
| LIB | Library Sno-Isle GEN | 0.3153421757 | $797,541 | $797,541 | $251.50 | | |
| PORTWHID | Port of S Whidbey GEN | 0.1094540357 | $797,541 | $797,541 | $87.29 | | |
| SCH206BOND | School 206 BOND | 0.3161759235 | $797,541 | $797,541 | $252.16 | | |
| SCH206MO | School 206 Enrichment | 0.4547169547 | $797,541 | $797,541 | $362.66 | | |
| ST | State School | 1.3035497053 | $797,541 | $797,541 | $1,039.63 | | |
| ST2 | State School Part 2 | 0.8169543533 | $797,541 | $797,541 | $651.55 | | |
| SWHIDPRBD | P & R S Whidbey BOND | 0.0152817568 | $797,541 | $797,541 | $12.19 | | |
| SWHIDPRBD2 | P & R S Whidbey BOND2 | 0.0138911264 | $797,541 | $797,541 | $11.08 | | |
| SWHIDPRMT | P & R S Whidbey GEN | 0.2053334452 | $797,541 | $797,541 | $163.76 | | |
| | Total Tax Rate: | 6.6934522006 | | | | | |
| | | | | Taxes w/Current Exemptions: | $5,338.30 | | |
| | | | | Taxes w/o Exemptions: | $5,338.30 | | |
Improvement / Building
| Improvement #1: | RESIDENTIAL | State Code: | Y | 2756.5 sqft | Value: | $427,541 |
| Bathrooms: | 3.5 | Bedrooms: | 4 | | Ceiling: | DRYWALL PAINTED | Cooling: | HEAT PUMP/CONV/V | | Exterior Wall/Cover: | CEMENT FIBER | Floor Covering: | CARPET/VINYL 60-40 | | Floor Structure: | WOOD W/SUBFLOOR | Foundation: | CONCRETE | | Interior Finish: | DRYWALL PAINT | Plumbing Fixture Cnt: | 1 | | Roof Slope: | 4" IN 12" | Roof Structure/Cover: | CJ ASPHALT |
|
| | Type | Description | Class CD | Sub Class CD | Year Built | Area |
| | BAS | BASE/MAIN FLOOR | 3 | 0 | 2021 | 1464.5 |
| | UPS | UPPER STORY | 3 | 0 | 2021 | 1292.0 |
| | AGR | ATTACHED GARAGE | 3 | 0 | 2021 | 637.0 |
| | OP3 | OPEN PORCH W/ROOF | 3 | 0 | 2021 | 868.0 |
Sketch
Property Image
Land
| 1 | 32 | AC (03.01-09.99) | 4.8500 | 0.00 | 0.00 | 0.00 | 1.00 | $370,000 | $0 |
Roll Value History
| 2026 | N/A | N/A | N/A | N/A | N/A |
| 2025 | $427,541 | $370,000 | $0 | $797,541 | $797,541 |
| 2024 | $432,031 | $350,000 | $0 | $782,031 | $782,031 |
| 2023 | $439,885 | $330,000 | $0 | $769,885 | $769,885 |
| 2022 | $406,445 | $280,000 | $0 | $686,445 | $686,445 |
| 2021 | $8,000 | $150,000 | $0 | $158,000 | $158,000 |
| 2020 | $0 | $150,000 | $0 | $150,000 | $150,000 |
| 2019 | $0 | $135,000 | $0 | $135,000 | $135,000 |
| 2018 | $0 | $55,000 | $0 | $55,000 | $55,000 |
| 2017 | $0 | $130,000 | $0 | $130,000 | $130,000 |
| 2016 | $0 | $130,000 | $0 | $130,000 | $130,000 |
| 2015 | $0 | $100,000 | $0 | $100,000 | $100,000 |
| 2014 | $0 | $130,950 | $0 | $130,950 | $130,950 |
| 2013 | $0 | $130,950 | $0 | $130,950 | $130,950 |
| 2012 | $0 | $130,950 | $0 | $130,950 | $130,950 |
| 2011 | $0 | $130,950 | $0 | $130,950 | $130,950 |
| 2010 | $0 | $130,950 | $0 | $130,950 | $130,950 |
| 2009 | $0 | $164,900 | $0 | $164,900 | $164,900 |
| 2008 | $0 | $164,900 | $0 | $164,900 | $164,900 |
| 2007 | $0 | $145,500 | $0 | $145,500 | $145,500 |
Deed and Sales History
| 1 | 11/20/2018 | WD | Warranty Deed | O'HANLEY, PATRICIA J | ROURK, JAMES D | | | $0.00 | 36879 | 4456027 |
| 2 | 11/20/2018 | WD | Warranty Deed | O'HANLEY, PATRICIA J | ROURK, JAMES D | | | $125,000.00 | 36815 | 4455727 |
| 3 | 07/24/2018 | EZ | Easement | O'HANLEY, PATRICIA J | O'HANLEY, PATRICIA J | | | $25,000.00 | 35399 | 4449700 |
| 4 | 01/01/1996 | DECREE | Divorce Decree/Legal Separation | RABIN, STANFORD B | O'HANLEY, PATRICIA J | | | $0.00 | 61847 | 96009302 |
| 5 | 01/01/1900 | OTHER | Other - Misc. Documents | Unknown | RABIN, STANFORD B | | | $0.00 | 0 | 0 |
Payout Agreement
| No payout information available.. |