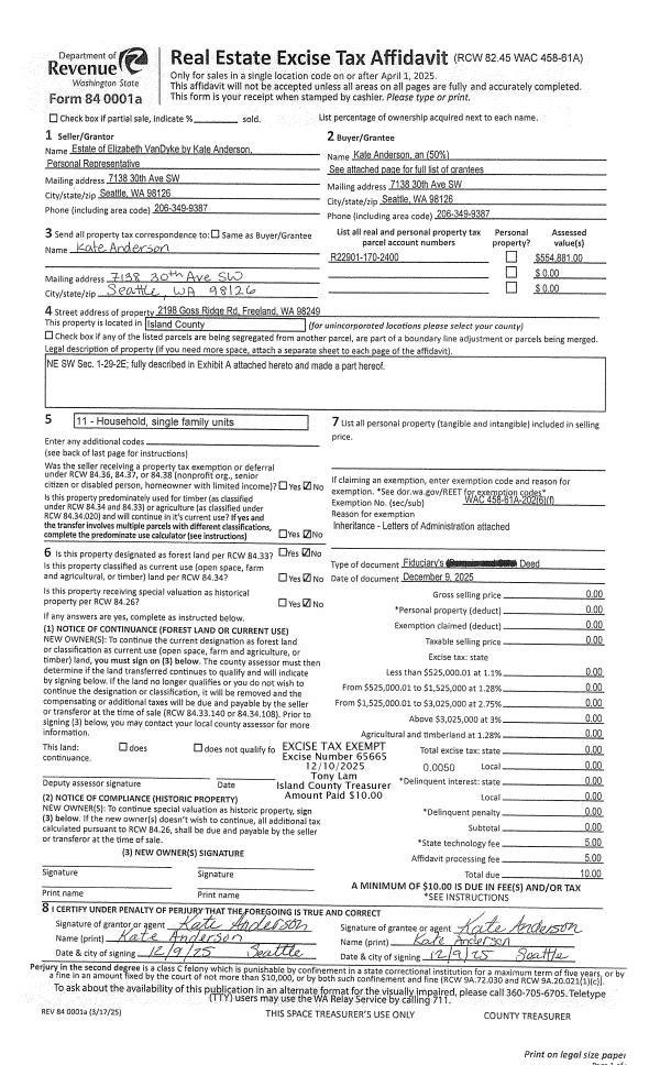
Property
Account |
| Property ID: | 635879 | Abbreviated Legal Description: | REPLACES 292-5420 40 - N200' OF E285' OF S/2 S/2 SE NE |
| Geographic ID: | R32910-312-5460 | Agent Code: | |
| Type: | Real | | |
| Tax Area: | 712 - APPRAISER-S Whid Schl Dist, outside Langley, improved, greater than 1 acre | Land Use Code | 11 |
| Open Space: | N | DFL | N |
| Historic Property: | N | Remodel Property: | N |
| Multi-Family Redevelopment: | N | | |
| Township: | 29 | Section: | 10 |
| Range: | R3 |
Location |
| Address: | 5396 LANGLEY RD LANGLEY, WA 98260 | Mapsco: | |
| Neighborhood: | Cycle 4 | Map ID: | 757 |
| Neighborhood CD: | 4 |
Owner |
| Name: | CHRISTIE, DREW M | Owner ID: | 263150 |
| Mailing Address: | 5396 LANGLEY RD LANGLEY, WA 98260 | % Ownership: | 100.0000000000% |
| | | Exemptions: | |
Taxes and Assessment Details
Values
| (+) Improvement Homesite Value: | + | $0 | |
| (+) Improvement Non-Homesite Value: | + | $242,931 | |
| (+) Land Homesite Value: | + | $0 | |
| (+) Land Non-Homesite Value: | + | $290,000 | |
| (+) Curr Use (HS): | + | $0 | $0 |
| (+) Curr Use (NHS): | + | $0 | $0 |
| | | -------------------------- | |
| (=) Market Value: | = | $532,931 | |
| (–) Productivity Loss: | – | $0 | |
| | | -------------------------- | |
| (=) Subtotal: | = | $532,931 | |
| (+) Senior Appraised Value: | + | $0 | |
| (+) Non-Senior Appraised Value: | + | $532,931 | |
| | | -------------------------- | |
| (=) Total Appraised Value: | = | $532,931 | |
| (–) Senior Exemption Loss: | – | $0 | |
| (–) Exemption Loss: | – | $0 | |
| | | -------------------------- | |
| (=) Taxable Value: | = | $532,931 | |
Taxing Jurisdiction
| Owner: | CHRISTIE, DREW M | | |
| % Ownership: | 100.0000000000% | | |
| Total Value: | $532,931 | | |
| Tax Area: | 712 - APPRAISER-S Whid Schl Dist, outside Langley, improved, greater than 1 acre |
| CF | Conservation Futures | 0.0316035091 | $532,931 | $532,931 | $16.84 | | |
| FIRE3 | Fire & Rescue Dist #3 S Whidbey GEN | 1.2004855531 | $532,931 | $532,931 | $639.78 | | |
| HOBOND | Hospital BOND | 0.1910887512 | $532,931 | $532,931 | $101.84 | | |
| HOGEN | Hospital GEN | 0.3902502903 | $532,931 | $532,931 | $207.98 | | |
| CE | County Current Expense | 0.3708482477 | $532,931 | $532,931 | $197.64 | | |
| CR | County Roads | 0.4584763726 | $532,931 | $532,931 | $244.34 | | |
| ISLANDEMS | Hospital GEN (EMS) | 0.5000000000 | $532,931 | $532,931 | $266.47 | | |
| LIB | Library Sno-Isle GEN | 0.3153421757 | $532,931 | $532,931 | $168.06 | | |
| PORTWHID | Port of S Whidbey GEN | 0.1094540357 | $532,931 | $532,931 | $58.33 | | |
| SCH206BOND | School 206 BOND | 0.3161759235 | $532,931 | $532,931 | $168.50 | | |
| SCH206MO | School 206 Enrichment | 0.4547169547 | $532,931 | $532,931 | $242.33 | | |
| ST | State School | 1.3035497053 | $532,931 | $532,931 | $694.70 | | |
| ST2 | State School Part 2 | 0.8169543533 | $532,931 | $532,931 | $435.38 | | |
| SWHIDPRBD | P & R S Whidbey BOND | 0.0152817568 | $532,931 | $532,931 | $8.14 | | |
| SWHIDPRBD2 | P & R S Whidbey BOND2 | 0.0138911264 | $532,931 | $532,931 | $7.40 | | |
| SWHIDPRMT | P & R S Whidbey GEN | 0.2053334452 | $532,931 | $532,931 | $109.43 | | |
| | Total Tax Rate: | 6.6934522006 | | | | | |
| | | | | Taxes w/Current Exemptions: | $3,567.16 | | |
| | | | | Taxes w/o Exemptions: | $3,567.16 | | |
Improvement / Building
| Improvement #1: | RESIDENTIAL | State Code: | Y | 1282.0 sqft | Value: | $242,931 |
| Bathrooms: | 1 | Bedrooms: | 2 | | Ceiling: | DRYWALL PAINTED | Exterior Wall/Cover: | WOOD SIDING | | Floor Covering: | VINYL 100% | Floor Structure: | WOOD W/SUBFLOOR | | Foundation: | CONCRETE | Heating: | FHA ELECTRIC | | Interior Finish: | DRYWALL PAINT | Plumbing Fixture Cnt: | 6 | | Roof Slope: | 6" IN 12" | Roof Structure/Cover: | CJ ALUMINIUM HEAVY |
|
| | Type | Description | Class CD | Sub Class CD | Year Built | Area |
| | BAS | BASE/MAIN FLOOR | 3 | 0 | 1936 | 1022.0 |
| | OWP | OPEN WOOD PORCH W/STEPS | 3 | 0 | 1936 | 312.0 |
| | OWP | OPEN WOOD PORCH W/STEPS | 3 | 0 | 1936 | 89.3 |
| | ENP | ENCLOSED PORCH | 3 | 0 | 1936 | 75.0 |
| | UPH | HALF STORY | 3 | 0 | 1936 | 260.0 |
| | OCP | OPEN CARPORT | 3 | 0 | 1936 | 1152.0 |
| | CPD | OPEN CARPORT DIRT FLOOR | 3 | 0 | 1936 | 576.0 |
| | ENP | ENCLOSED PORCH | 3 | 0 | 1936 | 598.0 |
| | OWP | OPEN WOOD PORCH W/STEPS | 3 | 0 | 1936 | 72.0 |
Sketch
Property Image
Land
| 1 | 17 | AC (01.01-02.00) | 0.0000 | 0.00 | 0.00 | 0.00 | 1.00 | $290,000 | $0 |
Roll Value History
| 2026 | N/A | N/A | N/A | N/A | N/A |
| 2025 | $242,931 | $290,000 | $0 | $532,931 | $532,931 |
| 2024 | $246,655 | $280,000 | $0 | $526,655 | $526,655 |
| 2023 | $250,376 | $260,000 | $0 | $510,376 | $510,376 |
| 2022 | $230,098 | $250,000 | $0 | $480,098 | $480,098 |
| 2021 | $203,023 | $175,000 | $0 | $378,023 | $378,023 |
| 2020 | $176,265 | $165,000 | $0 | $341,265 | $341,265 |
| 2019 | $134,119 | $200,000 | $0 | $334,119 | $334,119 |
| 2018 | $134,522 | $170,000 | $0 | $304,522 | $304,522 |
| 2017 | $135,329 | $150,000 | $0 | $285,329 | $285,329 |
| 2016 | $136,944 | $150,000 | $0 | $286,944 | $286,944 |
| 2015 | $138,559 | $114,750 | $0 | $253,309 | $253,309 |
| 2014 | $106,325 | $114,750 | $0 | $221,075 | $221,075 |
| 2013 | $107,720 | $114,750 | $0 | $222,470 | $222,470 |
| 2012 | $109,114 | $114,750 | $0 | $223,864 | $223,864 |
| 2011 | $110,508 | $135,000 | $0 | $245,508 | $245,508 |
| 2010 | $117,409 | $135,000 | $0 | $252,409 | $252,409 |
| 2009 | $121,993 | $155,000 | $0 | $276,993 | $276,993 |
| 2008 | $115,831 | $160,000 | $0 | $275,831 | $275,831 |
| 2007 | $117,867 | $160,000 | $0 | $277,867 | $277,867 |
Deed and Sales History
| 1 | 07/31/2025 | QCD | Quit Claim Deed | ENGLISH, COURTNEY CELINE | WILLIAMS, JAMES RYAN | | | $0.00 | 64370 | 4589113 |
| 2 | 07/30/2025 | WD | Warranty Deed | CHRISTIE, DREW M | WILLIAMS, LINDA BLACK | | | $775,000.00 | 64369 | 4589112 |
| 3 | 07/05/2013 | WD | Warranty Deed | NEEDHAM, SANDRA | CHRISTIE, DREW M | | | $269,000.00 | 12078 | 4344456 |
| 4 | 11/01/1993 | WD | Warranty Deed | JANICK, JUANITA M | NEEDHAM, SANDRA & | | | $124,900.00 | 34610 | 93024116 |
| 5 | 02/01/1987 | WD | Warranty Deed | Unknown | JANICK, JUANITA M | | | $72,000.00 | 70369 | 87002307 |
Payout Agreement
| No payout information available.. |