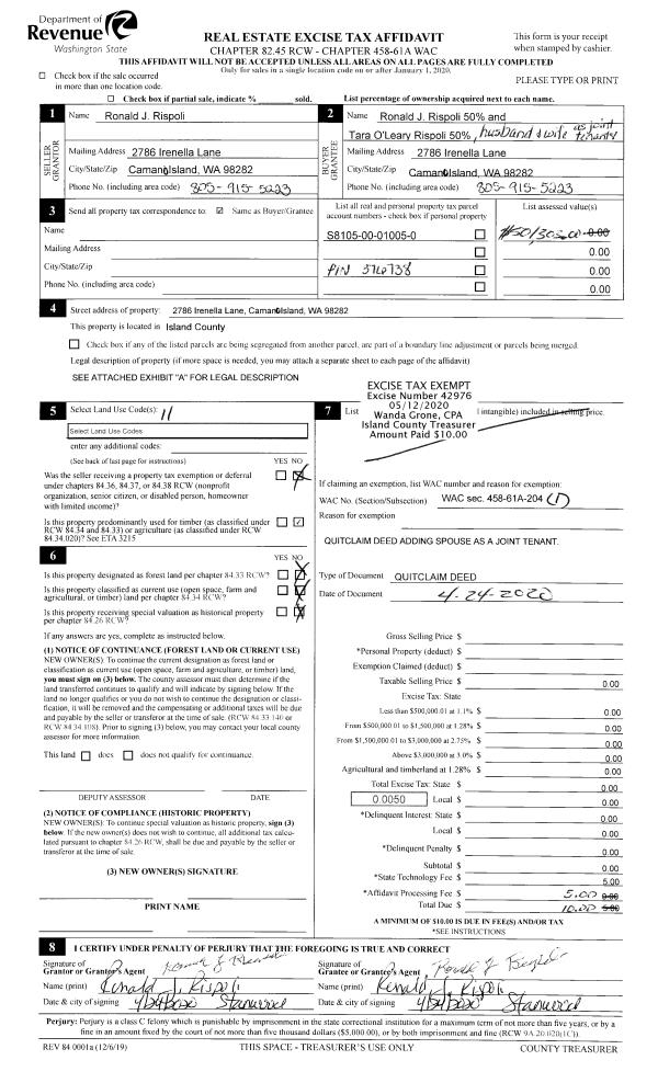
Property
Account |
| Property ID: | 636128 | Abbreviated Legal Description: | CREEKSIDE TERRACE CONDO APT 114 5.56% INT |
| Geographic ID: | S6427-00-00114-0 | Agent Code: | |
| Type: | Real | | |
| Tax Area: | 700 - APPRAISER-S Whid Schl Dist, in town of Langley | Land Use Code | 14 |
| Open Space: | N | DFL | N |
| Historic Property: | N | Remodel Property: | N |
| Multi-Family Redevelopment: | N | | |
| Township: | | Section: | |
| Range: | |
Location |
| Address: | 522 CREEKSIDE TERRACE BLDG D, UNIT 101 LANGLEY, WA 98260 | Mapsco: | |
| Neighborhood: | 42*LG-creekside | Map ID: | 913 |
| Neighborhood CD: | 42*LGcrktr |
Owner |
| Name: | MARTIN, LORETTA | Owner ID: | 292384 |
| Mailing Address: | PO BOX 112 FREELAND, WA 98249 | % Ownership: | 100.0000000000% |
| | | Exemptions: | |
Taxes and Assessment Details
Values
| (+) Improvement Homesite Value: | + | $202,435 | |
| (+) Improvement Non-Homesite Value: | + | $0 | |
| (+) Land Homesite Value: | + | $0 | |
| (+) Land Non-Homesite Value: | + | $180,000 | |
| (+) Curr Use (HS): | + | $0 | $0 |
| (+) Curr Use (NHS): | + | $0 | $0 |
| | | -------------------------- | |
| (=) Market Value: | = | $382,435 | |
| (–) Productivity Loss: | – | $0 | |
| | | -------------------------- | |
| (=) Subtotal: | = | $382,435 | |
| (+) Senior Appraised Value: | + | $0 | |
| (+) Non-Senior Appraised Value: | + | $382,435 | |
| | | -------------------------- | |
| (=) Total Appraised Value: | = | $382,435 | |
| (–) Senior Exemption Loss: | – | $0 | |
| (–) Exemption Loss: | – | $0 | |
| | | -------------------------- | |
| (=) Taxable Value: | = | $382,435 | |
Taxing Jurisdiction
| Owner: | MARTIN, LORETTA | | |
| % Ownership: | 100.0000000000% | | |
| Total Value: | $382,435 | | |
| Tax Area: | 700 - APPRAISER-S Whid Schl Dist, in town of Langley |
| CF | Conservation Futures | 0.0316035091 | $382,435 | $382,435 | $12.09 | | |
| LANG | City of Langley | 1.0093520762 | $382,435 | $382,435 | $386.01 | | |
| LANGBOND | City of Langley BOND | 1.0326110892 | $382,435 | $382,435 | $394.91 | | |
| FIRE3 | Fire & Rescue Dist #3 S Whidbey GEN | 1.2004855531 | $382,435 | $382,435 | $459.11 | | |
| HOBOND | Hospital BOND | 0.1910887512 | $382,435 | $382,435 | $73.08 | | |
| HOGEN | Hospital GEN | 0.3902502903 | $382,435 | $382,435 | $149.25 | | |
| CE | County Current Expense | 0.3708482477 | $382,435 | $382,435 | $141.83 | | |
| ISLANDEMS | Hospital GEN (EMS) | 0.5000000000 | $382,435 | $382,435 | $191.22 | | |
| LIB | Library Sno-Isle GEN | 0.3153421757 | $382,435 | $382,435 | $120.60 | | |
| PORTWHID | Port of S Whidbey GEN | 0.1094540357 | $382,435 | $382,435 | $41.86 | | |
| SCH206BOND | School 206 BOND | 0.3161759235 | $382,435 | $382,435 | $120.92 | | |
| SCH206MO | School 206 Enrichment | 0.4547169547 | $382,435 | $382,435 | $173.90 | | |
| ST | State School | 1.3035497053 | $382,435 | $382,435 | $498.52 | | |
| ST2 | State School Part 2 | 0.8169543533 | $382,435 | $382,435 | $312.43 | | |
| SWHIDPRBD | P & R S Whidbey BOND | 0.0152817568 | $382,435 | $382,435 | $5.84 | | |
| SWHIDPRBD2 | P & R S Whidbey BOND2 | 0.0138911264 | $382,435 | $382,435 | $5.31 | | |
| SWHIDPRMT | P & R S Whidbey GEN | 0.2053334452 | $382,435 | $382,435 | $78.53 | | |
| | Total Tax Rate: | 8.2769389934 | | | | | |
| | | | | Taxes w/Current Exemptions: | $3,165.41 | | |
| | | | | Taxes w/o Exemptions: | $3,165.41 | | |
Improvement / Building
| Improvement #1: | RESIDENTIAL | State Code: | A1 | 1144.0 sqft | Value: | $202,435 |
| Bathrooms: | 2 | Bedrooms: | 2 | | Ceiling: | DRYWALL PAINTED | Exterior Wall/Cover: | VINYL | | Floor Covering: | CARPET/VINYL 80-20 | Floor Structure: | WOOD W/SUBFLOOR | | Foundation: | CONCRETE | Heating: | HEAT PUMP | | Interior Finish: | DRYWALL PAINT | Plumbing Fixture Cnt: | 9 | | Roof Slope: | 6" IN 12" | Roof Structure/Cover: | CJ ASPHALT |
|
| | Type | Description | Class CD | Sub Class CD | Year Built | Area |
| | BAS | BASE/MAIN FLOOR | 3 | 0 | 1989 | 1144.0 |
| | ENP | ENCLOSED PORCH | 3 | 0 | 1989 | 144.0 |
| | ENP | ENCLOSED PORCH | 3 | 0 | 1989 | 80.0 |
| | OCP | OPEN CARPORT | 3 | 0 | 1989 | 162.0 |
| | COMA | Common Area Improvement | 3 | 0 | 1989 | 0.0 |
Sketch
Property Image
Land
| 1 | 61 | MULTIPLE RESIDENCES | 0.0840 | 3660.00 | 0.00 | 0.00 | 1.00 | $180,000 | $0 |
Roll Value History
| 2026 | N/A | N/A | N/A | N/A | N/A |
| 2025 | $202,435 | $180,000 | $0 | $382,435 | $382,435 |
| 2024 | $197,831 | $175,000 | $0 | $372,831 | $372,831 |
| 2023 | $200,407 | $175,000 | $0 | $375,407 | $123,803 |
| 2022 | $183,945 | $170,000 | $0 | $353,945 | $123,803 |
| 2021 | $162,169 | $155,000 | $0 | $317,169 | $123,803 |
| 2020 | $169,508 | $140,000 | $0 | $309,508 | $123,803 |
| 2019 | $119,686 | $120,000 | $0 | $239,686 | $239,686 |
| 2018 | $120,090 | $60,000 | $0 | $180,090 | $180,090 |
| 2017 | $120,897 | $32,886 | $0 | $153,783 | $153,783 |
| 2016 | $122,512 | $32,886 | $0 | $155,398 | $155,398 |
| 2015 | $100,917 | $32,886 | $0 | $133,803 | $133,803 |
| 2014 | $102,229 | $32,886 | $0 | $135,115 | $135,115 |
| 2013 | $103,541 | $32,886 | $0 | $136,427 | $136,427 |
| 2012 | $106,167 | $32,886 | $0 | $139,053 | $139,053 |
| 2011 | $106,167 | $32,886 | $0 | $139,053 | $139,053 |
| 2010 | $110,298 | $37,088 | $0 | $147,386 | $147,386 |
| 2009 | $114,970 | $56,272 | $0 | $171,242 | $171,242 |
| 2008 | $110,057 | $58,245 | $0 | $168,302 | $43,487 |
| 2007 | $111,401 | $58,245 | $0 | $169,646 | $43,487 |
Deed and Sales History
| 1 | 10/23/2019 | WD | Warranty Deed | NATIONSTAR MORTGAGE LLC | MARTIN, LORETTA | | | $315,000.00 | 40871 | 4474291 |
| 2 | 10/03/2019 | SHERIFFD | Sheriff Deed | GREEN, BEVERLY M | NATIONSTAR MORTGAGE LLC | | | $0.00 | 40606 | 4463131 |
| 3 | 02/15/2010 | QCD | Quit Claim Deed | Unknown | GREEN, BEVERLY M | | | $0.00 | 314 | 4268693 |
| 4 | 05/21/2002 | WD | Warranty Deed | CLARK TRUST, GENEVIEVE F | GREEN, BEVERLY M | | | $113,000.00 | 22095 | 4021815 |
| 5 | 02/17/2002 | QCD | Quit Claim Deed | CLARK, GENEVIEVE F | CLARK TRUST, GENEVIEVE F | | | $0.00 | 20592 | 4011505 |
| 6 | 11/01/1997 | WD | Warranty Deed | VERHEYDEN, AUDREY T | CLARK, GENEVIEVE F | | | $105,000.00 | 74120 | 97019787 |
| 7 | 12/01/1993 | QCD | Quit Claim Deed | VERHEYDEN, AUDREY J | VERHEYDEN, AUDREY T | | | $0.00 | 34790 | 93025083 |
| 8 | 03/01/1989 | WD | Warranty Deed | MATHENY, JEAN P | VERHEYDEN, AUDREY J | | | $60,900.00 | 90968 | 89003424 |
| 9 | 03/01/1988 | OTHER | Other - Misc. Documents | GREEN, BEVERLY M | MATHENY, JEAN P | | | $0.00 | 62543 | 0 |
Payout Agreement
| No payout information available.. |