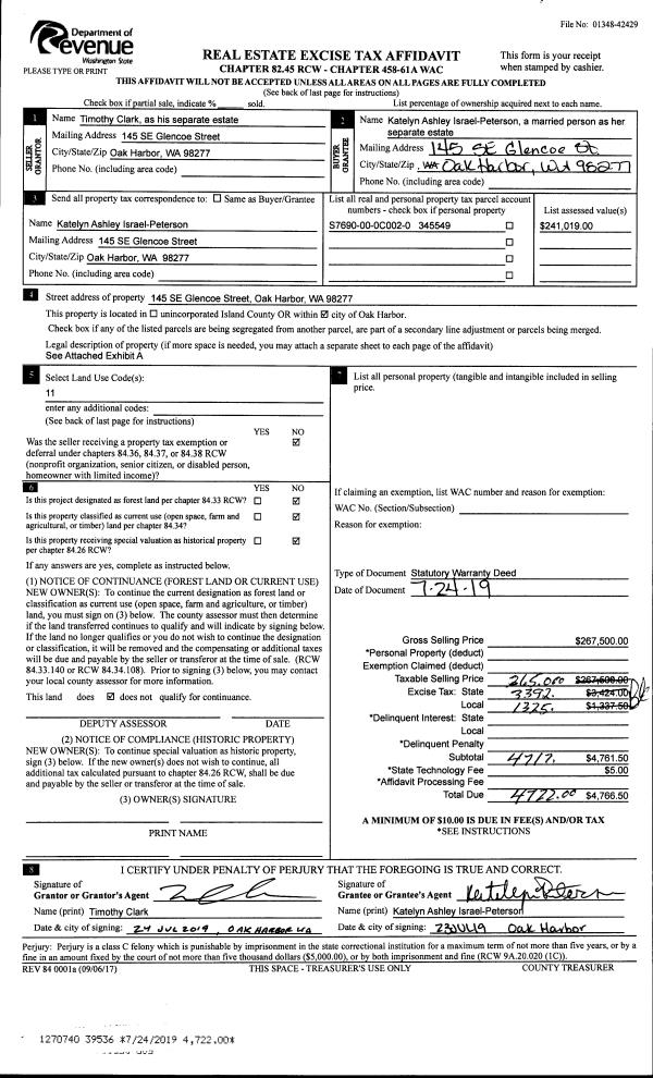
Property
Account |
| Property ID: | 636164 | Abbreviated Legal Description: | CREEKSIDE TERRACE CONDO APT 122 5.56% INT |
| Geographic ID: | S6427-00-00122-0 | Agent Code: | |
| Type: | Real | | |
| Tax Area: | 700 - APPRAISER-S Whid Schl Dist, in town of Langley | Land Use Code | 14 |
| Open Space: | N | DFL | N |
| Historic Property: | N | Remodel Property: | N |
| Multi-Family Redevelopment: | N | | |
| Township: | | Section: | |
| Range: | |
Location |
| Address: | 500 CREEKSIDE TERRACE BLDG E, UNIT 101 LANGLEY, WA 98260 | Mapsco: | |
| Neighborhood: | 42*LG-creekside | Map ID: | 913 |
| Neighborhood CD: | 42*LGcrktr |
Owner |
| Name: | KATINAS, KAREN K | Owner ID: | 289891 |
| Mailing Address: | 500 CREEKSIDE TERRACE APT 101 LANGLEY, WA 98260 | % Ownership: | 100.0000000000% |
| | | Exemptions: | |
Taxes and Assessment Details
Values
| (+) Improvement Homesite Value: | + | $0 | |
| (+) Improvement Non-Homesite Value: | + | $195,256 | |
| (+) Land Homesite Value: | + | $0 | |
| (+) Land Non-Homesite Value: | + | $180,000 | |
| (+) Curr Use (HS): | + | $0 | $0 |
| (+) Curr Use (NHS): | + | $0 | $0 |
| | | -------------------------- | |
| (=) Market Value: | = | $375,256 | |
| (–) Productivity Loss: | – | $0 | |
| | | -------------------------- | |
| (=) Subtotal: | = | $375,256 | |
| (+) Senior Appraised Value: | + | $0 | |
| (+) Non-Senior Appraised Value: | + | $375,256 | |
| | | -------------------------- | |
| (=) Total Appraised Value: | = | $375,256 | |
| (–) Senior Exemption Loss: | – | $0 | |
| (–) Exemption Loss: | – | $0 | |
| | | -------------------------- | |
| (=) Taxable Value: | = | $375,256 | |
Taxing Jurisdiction
| Owner: | KATINAS, KAREN K | | |
| % Ownership: | 100.0000000000% | | |
| Total Value: | $375,256 | | |
| Tax Area: | 700 - APPRAISER-S Whid Schl Dist, in town of Langley |
| CF | Conservation Futures | 0.0316035091 | $375,256 | $375,256 | $11.86 | | |
| LANG | City of Langley | 1.0093520762 | $375,256 | $375,256 | $378.77 | | |
| LANGBOND | City of Langley BOND | 1.0326110892 | $375,256 | $375,256 | $387.49 | | |
| FIRE3 | Fire & Rescue Dist #3 S Whidbey GEN | 1.2004855531 | $375,256 | $375,256 | $450.49 | | |
| HOBOND | Hospital BOND | 0.1910887512 | $375,256 | $375,256 | $71.71 | | |
| HOGEN | Hospital GEN | 0.3902502903 | $375,256 | $375,256 | $146.44 | | |
| CE | County Current Expense | 0.3708482477 | $375,256 | $375,256 | $139.16 | | |
| ISLANDEMS | Hospital GEN (EMS) | 0.5000000000 | $375,256 | $375,256 | $187.63 | | |
| LIB | Library Sno-Isle GEN | 0.3153421757 | $375,256 | $375,256 | $118.33 | | |
| PORTWHID | Port of S Whidbey GEN | 0.1094540357 | $375,256 | $375,256 | $41.07 | | |
| SCH206BOND | School 206 BOND | 0.3161759235 | $375,256 | $375,256 | $118.65 | | |
| SCH206MO | School 206 Enrichment | 0.4547169547 | $375,256 | $375,256 | $170.64 | | |
| ST | State School | 1.3035497053 | $375,256 | $375,256 | $489.16 | | |
| ST2 | State School Part 2 | 0.8169543533 | $375,256 | $375,256 | $306.57 | | |
| SWHIDPRBD | P & R S Whidbey BOND | 0.0152817568 | $375,256 | $375,256 | $5.73 | | |
| SWHIDPRBD2 | P & R S Whidbey BOND2 | 0.0138911264 | $375,256 | $375,256 | $5.21 | | |
| SWHIDPRMT | P & R S Whidbey GEN | 0.2053334452 | $375,256 | $375,256 | $77.05 | | |
| | Total Tax Rate: | 8.2769389934 | | | | | |
| | | | | Taxes w/Current Exemptions: | $3,105.96 | | |
| | | | | Taxes w/o Exemptions: | $3,105.96 | | |
Improvement / Building
| Improvement #1: | RESIDENTIAL | State Code: | A1 | 1144.0 sqft | Value: | $195,256 |
| Bathrooms: | 2 | Bedrooms: | 2 | | Ceiling: | DRYWALL PAINTED | Exterior Wall/Cover: | VINYL | | Floor Covering: | CARPET/VINYL 80-20 | Floor Structure: | WOOD W/SUBFLOOR | | Foundation: | CONCRETE | Heating: | WALL HEAT ELECTRIC | | Interior Finish: | DRYWALL PAINT | Plumbing Fixture Cnt: | 9 | | Roof Slope: | 6" IN 12" | Roof Structure/Cover: | CJ ASPHALT |
|
| | Type | Description | Class CD | Sub Class CD | Year Built | Area |
| | BAS | BASE/MAIN FLOOR | 3 | 0 | 1989 | 1144.0 |
| | ENP | ENCLOSED PORCH | 3 | 0 | 1989 | 144.0 |
| | ENP | ENCLOSED PORCH | 3 | 0 | 1989 | 80.0 |
| | OCP | OPEN CARPORT | 3 | 0 | 1989 | 162.0 |
| | COMA | Common Area Improvement | 3 | 0 | 1989 | 0.0 |
Sketch
Property Image
Land
| 1 | 61 | MULTIPLE RESIDENCES | 0.0840 | 3660.00 | 0.00 | 0.00 | 1.00 | $180,000 | $0 |
Roll Value History
| 2026 | N/A | N/A | N/A | N/A | N/A |
| 2025 | $195,256 | $180,000 | $0 | $375,256 | $375,256 |
| 2024 | $197,831 | $175,000 | $0 | $372,831 | $126,868 |
| 2023 | $200,407 | $175,000 | $0 | $375,407 | $126,868 |
| 2022 | $183,945 | $170,000 | $0 | $353,945 | $126,868 |
| 2021 | $162,169 | $155,000 | $0 | $317,169 | $126,868 |
| 2020 | $156,372 | $140,000 | $0 | $296,372 | $296,372 |
| 2019 | $110,523 | $120,000 | $0 | $230,523 | $230,523 |
| 2018 | $110,907 | $60,000 | $0 | $170,907 | $170,907 |
| 2017 | $111,672 | $32,886 | $0 | $144,558 | $144,558 |
| 2016 | $113,201 | $32,886 | $0 | $146,087 | $146,087 |
| 2015 | $93,278 | $32,886 | $0 | $126,164 | $126,164 |
| 2014 | $91,701 | $32,886 | $0 | $124,587 | $124,587 |
| 2013 | $92,906 | $32,886 | $0 | $125,792 | $125,792 |
| 2012 | $95,318 | $32,886 | $0 | $128,204 | $128,204 |
| 2011 | $95,318 | $32,886 | $0 | $128,204 | $128,204 |
| 2010 | $99,185 | $37,088 | $0 | $136,273 | $136,273 |
| 2009 | $103,405 | $56,272 | $0 | $159,677 | $159,677 |
| 2008 | $51,780 | $58,245 | $0 | $110,025 | $110,025 |
| 2007 | $52,410 | $58,245 | $0 | $110,655 | $110,655 |
Deed and Sales History
| 1 | 07/24/2025 | WD | Warranty Deed | KATINAS, KAREN K | CHASE, CHARLOTTE FAY | | | $428,000.00 | 64298 | 4588872 |
| 2 | 05/16/2019 | PRD | Personal Representatives Deed | BALDWIN, LEO E | KATINAS, KAREN K | | | $290,000.00 | 38637 | 4463916 |
| 3 | 01/31/2007 | WD | Warranty Deed | COLLOPY LE, ARLENE V | BALDWIN, LEO E | | | $170,000.00 | 70328 | 4193091 |
| 4 | 03/24/2003 | QCD | Quit Claim Deed | COLLOPY, ARLENE V | COLLOPY LE, ARLENE V | | | $0.00 | 31307 | 4053097 |
| 5 | 02/07/2003 | QCD | Quit Claim Deed | COLLOPY, ARLENE V | COLLOPY, ARLENE V | | | $0.00 | 30495 | 4046992 |
| 6 | 10/01/1997 | WD | Warranty Deed | BRANDT, MARIE D | COLLOPY, ARLENE V | | | $99,950.00 | 73880 | 97018577 |
| 7 | 03/01/1989 | WD | Warranty Deed | MATHENY, JEAN P | BRANDT, MARIE D | | | $60,900.00 | 90971 | 89003427 |
| 8 | 03/01/1988 | OTHER | Other - Misc. Documents | Unknown | MATHENY, JEAN P | | | $0.00 | 62543 | 0 |
Payout Agreement
| No payout information available.. |