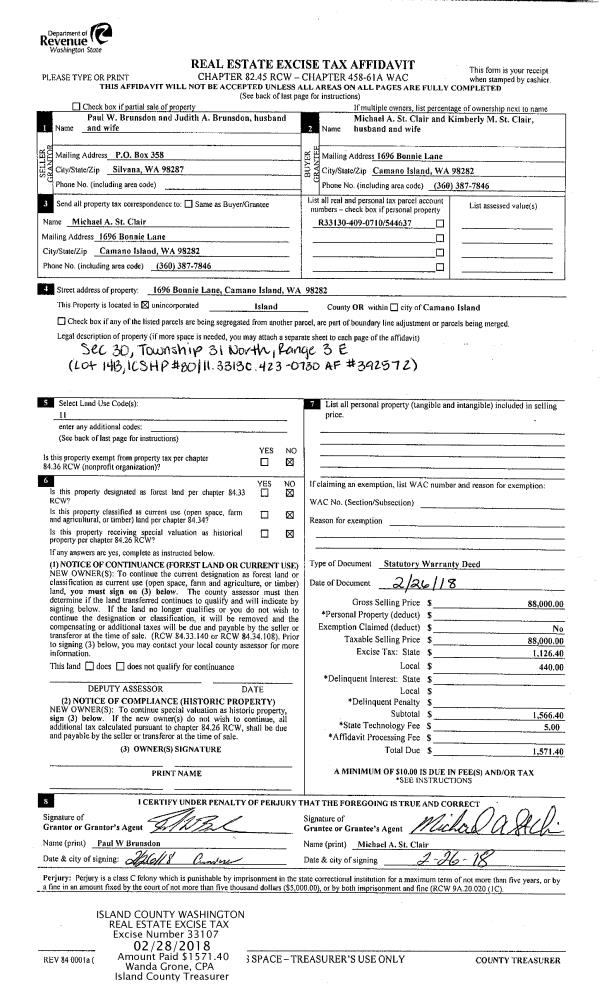
Property
Account |
| Property ID: | 636985 | Abbreviated Legal Description: | 1989 PENDLETON 27X60 VIN# 1CI205027K3003349 TPO %009434 |
| Geographic ID: | M90450000D110 | Agent Code: | |
| Type: | Mobile Home | | |
| Tax Area: | 100 - APPRAISER-OH Schl Dist, in OH | Land Use Code | 11 |
| Open Space: | N | DFL | N |
| Historic Property: | N | Remodel Property: | N |
| Multi-Family Redevelopment: | N | | |
| Township: | | Section: | |
| Range: | |
Location |
| Address: | 30901 SR20 UNIT D11 OAK HARBOR, WA 98277 | Mapsco: | |
| Neighborhood: | Cycle 1 | Map ID: | |
| Neighborhood CD: | 1 |
Owner |
| Name: | LAJOY, MISHA | Owner ID: | 283798 |
| Mailing Address: | 30901 SR 20 SPC D11 OAK HARBOR, WA 98277 | % Ownership: | 100.0000000000% |
| | | Exemptions: | SNR/DSBL |
Taxes and Assessment Details
Values
| (+) Improvement Homesite Value: | + | $110,220 | |
| (+) Improvement Non-Homesite Value: | + | $0 | |
| (+) Land Homesite Value: | + | $0 | |
| (+) Land Non-Homesite Value: | + | $0 | |
| (+) Curr Use (HS): | + | $0 | $0 |
| (+) Curr Use (NHS): | + | $0 | $0 |
| | | -------------------------- | |
| (=) Market Value: | = | $110,220 | |
| (–) Productivity Loss: | – | $0 | |
| | | -------------------------- | |
| (=) Subtotal: | = | $110,220 | |
| (+) Senior Appraised Value: | + | $44,052 | |
| (+) Non-Senior Appraised Value: | + | $0 | |
| | | -------------------------- | |
| (=) Total Appraised Value: | = | $44,052 | |
| (–) Senior Exemption Loss: | – | $44,052 | |
| (–) Exemption Loss: | – | $0 | |
| | | -------------------------- | |
| (=) Taxable Value: | = | $0 | |
Taxing Jurisdiction
| Owner: | LAJOY, MISHA | | |
| % Ownership: | 100.0000000000% | | |
| Total Value: | $110,220 | | |
| Tax Area: | 100 - APPRAISER-OH Schl Dist, in OH |
| CF | Conservation Futures | 0.0316035091 | $110,220 | $0 | $0.00 | | |
| CEM1 | Cemetery #1 | 0.0040320932 | $110,220 | $0 | $0.00 | | |
| COH | City of Oak Harbor | 2.3001546061 | $110,220 | $0 | $0.00 | | |
| OAKBOND | City of Oak Harbor BOND | 0.1926904192 | $110,220 | $0 | $0.00 | | |
| HOBOND | Hospital BOND | 0.0000000000 | $110,220 | $0 | $0.00 | | |
| HOGEN | Hospital GEN | 0.3902502903 | $110,220 | $0 | $0.00 | | |
| CE | County Current Expense | 0.3708482477 | $110,220 | $0 | $0.00 | | |
| ISLANDEMS | Hospital GEN (EMS) | 0.5000000000 | $110,220 | $0 | $0.00 | | |
| LIB | Library Sno-Isle GEN | 0.3153421757 | $110,220 | $0 | $0.00 | | |
| NWHIDPRMT | P & R N Whidbey GEN | 0.2004466701 | $110,220 | $0 | $0.00 | | |
| SCH201MO | School 201 Enrichment | 0.0000000000 | $110,220 | $0 | $0.00 | | |
| ST | State School | 1.3035497053 | $110,220 | $0 | $0.00 | | |
| ST2 | State School Part 2 | 0.0000000000 | $110,220 | $0 | $0.00 | | |
| | Total Tax Rate: | 5.6089177167 | | | | | |
| | | | | Taxes w/Current Exemptions: | $0.00 | | |
| | | | | Taxes w/o Exemptions: | $933.86 | | |
Improvement / Building
| Improvement #1: | MANUFACTURED HOME | State Code: | Y | 1620.0 sqft | Value: | $110,220 |
| Bathrooms: | 0 | Bedrooms: | 0 | | Ceiling: | PLASTER PAINTED | Cooling: | EVAP NO DUCT | | Exterior Wall/Cover: | VINYL | Floor Covering: | CARPET 100% | | Floor Structure: | SLAB ON GRADE | Foundation: | SLAB | | Heating: | FHA ELECTRIC | Interior Finish: | PLASTER | | Plumbing Fixture Cnt: | 1 | Roof Slope: | FLAT | | Roof Structure/Cover: | CJ ALUMINIUM HEAVY |   |   |
|
Sketch
Property Image
Land
No land segments exist for this property.
Roll Value History
| 2026 | N/A | N/A | N/A | N/A | N/A |
| 2025 | $110,220 | $0 | $0 | $110,220 | $0 |
| 2024 | $114,542 | $0 | $0 | $114,542 | $0 |
| 2023 | $73,722 | $0 | $0 | $73,722 | $0 |
| 2022 | $69,375 | $0 | $0 | $69,375 | $0 |
| 2021 | $62,602 | $0 | $0 | $62,602 | $0 |
| 2020 | $62,985 | $0 | $0 | $62,985 | $0 |
| 2019 | $52,226 | $0 | $0 | $52,226 | $0 |
| 2018 | $53,967 | $0 | $0 | $53,967 | $0 |
| 2017 | $40,961 | $0 | $0 | $40,961 | $20,480 |
| 2016 | $42,506 | $0 | $0 | $42,506 | $21,253 |
| 2015 | $44,052 | $0 | $0 | $44,052 | $22,026 |
| 2014 | $46,371 | $0 | $0 | $46,371 | $46,371 |
| 2013 | $50,801 | $0 | $0 | $50,801 | $50,801 |
| 2012 | $52,439 | $0 | $0 | $52,439 | $52,439 |
| 2011 | $48,487 | $0 | $0 | $48,487 | $48,487 |
| 2010 | $49,590 | $0 | $0 | $49,590 | $49,590 |
| 2009 | $51,251 | $0 | $0 | $51,251 | $51,251 |
| 2008 | $52,828 | $0 | $0 | $52,828 | $52,828 |
| 2007 | $54,463 | $0 | $0 | $54,463 | $54,463 |
Deed and Sales History
| 1 | 02/02/2018 | MANHOME | Manufactured Home | BRUNEAU, KENNETH | LAJOY, MISHA | | | $0.00 | 32829 | |
| 2 | 08/15/2013 | OTHER | Other - Misc. Documents | JENKINS, CHRISTY A | BRUNEAU, KENNETH | | | $25,000.00 | 12388 | |
| 3 | 06/22/2004 | OTHER | Other - Misc. Documents | MORGAN, RICHARD H | JENKINS, CHRISTY A | | | $35,000.00 | 41678 | 0 |
| 4 | 09/01/1996 | OTHER | Other - Misc. Documents | NIENHUIS, DONALD R | MORGAN, RICHARD H | | | $54,500.00 | 63303 | 0 |
| 5 | 04/01/1989 | OTHER | Other - Misc. Documents | Unknown | NIENHUIS, DONALD R | | | $36,930.00 | 11111111 | 0 |
Payout Agreement
| No payout information available.. |