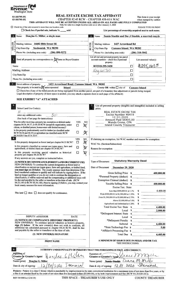
Property
Account |
| Property ID: | 637029 | Abbreviated Legal Description: | BUSH PT LOT 1 SP 87-13.6205.00-16000-0 V2 SP P196 AF#89006610 |
| Geographic ID: | S6205-00-16001-0 | Agent Code: | |
| Type: | Real | | |
| Tax Area: | 780 - APPRAISER-S Whid Schl Dist, Special District, improved & less than 1 acre | Land Use Code | 11 |
| Open Space: | N | DFL | N |
| Historic Property: | N | Remodel Property: | N |
| Multi-Family Redevelopment: | N | | |
| Township: | | Section: | |
| Range: | |
Location |
| Address: | 4957 SCURLOCK RD FREELAND, WA 98249 | Mapsco: | |
| Neighborhood: | Cycle 3 | Map ID: | 300 |
| Neighborhood CD: | 3 |
Owner |
| Name: | LEAVITT TRUSTEE, ELSA B | Owner ID: | 256269 |
| Mailing Address: | ELSA B LEAVITT REVOCABLE LIVING TRUST BOX 926 FREELAND, WA 98249 | % Ownership: | 100.0000000000% |
| | | Exemptions: | |
Taxes and Assessment Details
Values
| (+) Improvement Homesite Value: | + | $0 | |
| (+) Improvement Non-Homesite Value: | + | $323,959 | |
| (+) Land Homesite Value: | + | $0 | |
| (+) Land Non-Homesite Value: | + | $390,000 | |
| (+) Curr Use (HS): | + | $0 | $0 |
| (+) Curr Use (NHS): | + | $0 | $0 |
| | | -------------------------- | |
| (=) Market Value: | = | $713,959 | |
| (–) Productivity Loss: | – | $0 | |
| | | -------------------------- | |
| (=) Subtotal: | = | $713,959 | |
| (+) Senior Appraised Value: | + | $0 | |
| (+) Non-Senior Appraised Value: | + | $713,959 | |
| | | -------------------------- | |
| (=) Total Appraised Value: | = | $713,959 | |
| (–) Senior Exemption Loss: | – | $0 | |
| (–) Exemption Loss: | – | $0 | |
| | | -------------------------- | |
| (=) Taxable Value: | = | $713,959 | |
Taxing Jurisdiction
| Owner: | LEAVITT TRUSTEE, ELSA B | | |
| % Ownership: | 100.0000000000% | | |
| Total Value: | $713,959 | | |
| Tax Area: | 780 - APPRAISER-S Whid Schl Dist, Special District, improved & less than 1 acre |
| CF | Conservation Futures | 0.0316035091 | $713,959 | $713,959 | $22.56 | | |
| FIRE3 | Fire & Rescue Dist #3 S Whidbey GEN | 1.2004855531 | $713,959 | $713,959 | $857.10 | | |
| HOBOND | Hospital BOND | 0.1910887512 | $713,959 | $713,959 | $136.43 | | |
| HOGEN | Hospital GEN | 0.3902502903 | $713,959 | $713,959 | $278.62 | | |
| CE | County Current Expense | 0.3708482477 | $713,959 | $713,959 | $264.77 | | |
| CR | County Roads | 0.4584763726 | $713,959 | $713,959 | $327.33 | | |
| ISLANDEMS | Hospital GEN (EMS) | 0.5000000000 | $713,959 | $713,959 | $356.98 | | |
| LIB | Library Sno-Isle GEN | 0.3153421757 | $713,959 | $713,959 | $225.14 | | |
| PORTWHID | Port of S Whidbey GEN | 0.1094540357 | $713,959 | $713,959 | $78.15 | | |
| SCH206BOND | School 206 BOND | 0.3161759235 | $713,959 | $713,959 | $225.74 | | |
| SCH206MO | School 206 Enrichment | 0.4547169547 | $713,959 | $713,959 | $324.65 | | |
| ST | State School | 1.3035497053 | $713,959 | $713,959 | $930.68 | | |
| ST2 | State School Part 2 | 0.8169543533 | $713,959 | $713,959 | $583.27 | | |
| SWHIDPRBD | P & R S Whidbey BOND | 0.0152817568 | $713,959 | $713,959 | $10.91 | | |
| SWHIDPRBD2 | P & R S Whidbey BOND2 | 0.0138911264 | $713,959 | $713,959 | $9.92 | | |
| SWHIDPRMT | P & R S Whidbey GEN | 0.2053334452 | $713,959 | $713,959 | $146.60 | | |
| | Total Tax Rate: | 6.6934522006 | | | | | |
| | | | | Taxes w/Current Exemptions: | $4,778.85 | | |
| | | | | Taxes w/o Exemptions: | $4,778.85 | | |
Improvement / Building
| Improvement #1: | RESIDENTIAL | State Code: | Y | 2712.0 sqft | Value: | $323,959 |
| Bathrooms: | 1 | Bedrooms: | 2 | | Ceiling: | DRYWALL PAINTED | Exterior Wall/Cover: | WOOD SIDING | | Floor Covering: | HARDWOOD/CARP 60-40 | Floor Structure: | WOOD W/SUBFLOOR | | Foundation: | CONCRETE | Heating: | FHA GAS | | Interior Finish: | DRYWALL PAINT | Plumbing Fixture Cnt: | 9 | | Roof Slope: | 8" IN 12" | Roof Structure/Cover: | CJ SLATE |
|
| | Type | Description | Class CD | Sub Class CD | Year Built | Area |
| | BAS | BASE/MAIN FLOOR | 3 | 0 | 1919 | 1240.0 |
| | OWP | OPEN WOOD PORCH W/STEPS | 3 | 0 | 1919 | 192.0 |
| | OWP | OPEN WOOD PORCH W/STEPS | 3 | 0 | 1919 | 856.0 |
| | LOF | LOFT | 3 | 0 | 1919 | 1152.0 |
| | UPH | HALF STORY | 3 | 0 | 1919 | 320.0 |
| | UTY | STORAGE/UTILITY | 3 | 0 | 1919 | 1152.0 |
| | UTY | STORAGE/UTILITY | 3 | 0 | 1919 | 300.0 |
| | CPD | OPEN CARPORT DIRT FLOOR | 3 | 0 | 1919 | 200.0 |
Sketch
Property Image
Land
| 1 | 16 | AC (00.51-01.00) | 0.0000 | 0.00 | 0.00 | 0.00 | 1.00 | $390,000 | $0 |
Roll Value History
| 2026 | N/A | N/A | N/A | N/A | N/A |
| 2025 | $323,959 | $390,000 | $0 | $713,959 | $713,959 |
| 2024 | $328,638 | $340,000 | $0 | $668,638 | $668,638 |
| 2023 | $333,316 | $340,000 | $0 | $673,316 | $673,316 |
| 2022 | $306,074 | $290,000 | $0 | $596,074 | $596,074 |
| 2021 | $269,826 | $240,000 | $0 | $509,826 | $509,826 |
| 2020 | $264,407 | $170,000 | $0 | $434,407 | $434,407 |
| 2019 | $210,757 | $300,000 | $0 | $510,757 | $510,757 |
| 2018 | $211,286 | $300,000 | $0 | $511,286 | $511,286 |
| 2017 | $212,330 | $250,000 | $0 | $462,330 | $462,330 |
| 2016 | $214,450 | $235,000 | $0 | $449,450 | $449,450 |
| 2015 | $216,572 | $235,000 | $0 | $451,572 | $451,572 |
| 2014 | $218,693 | $150,000 | $0 | $368,693 | $368,693 |
| 2013 | $216,370 | $157,250 | $0 | $373,620 | $373,620 |
| 2012 | $218,425 | $157,250 | $0 | $375,675 | $375,675 |
| 2011 | $220,480 | $185,000 | $0 | $405,480 | $405,480 |
| 2010 | $229,206 | $185,000 | $0 | $414,206 | $414,206 |
| 2009 | $237,289 | $190,000 | $0 | $427,289 | $427,289 |
| 2008 | $240,313 | $210,000 | $0 | $450,313 | $450,313 |
| 2007 | $243,322 | $210,000 | $0 | $453,322 | $453,322 |
Deed and Sales History
| 1 | 11/30/2011 | WD | Warranty Deed | LEAVITT, ELSA B | LEAVITT TRUSTEE, ELSA B | | | $0.00 | 6280 | 4305656 |
| 2 | 07/01/1997 | WD | Warranty Deed | LOMBARD, MATTHEW A | LEAVITT, ELSA B | | | $210,000.00 | 72378 | 97011196 |
| 3 | 06/01/1995 | WD | Warranty Deed | ADAMS, T C | LOMBARD, MATTHEW A | | | $110,500.00 | 51982 | 95009260 |
| 4 | 06/01/1991 | QCD | Quit Claim Deed | ADAMS, DAVID | ADAMS, T C | | | $0.00 | 12530 | 91010740 |
| 5 | 01/01/1990 | QCD | Quit Claim Deed | ADAMS, DAVID E | ADAMS, DAVID | | | $0.00 | 2074 | 90006684 |
| 6 | 01/01/1900 | OTHER | Other - Misc. Documents | Unknown | ADAMS, DAVID E | | | $0.00 | 70227 | 87001513 |
Payout Agreement
| No payout information available.. |