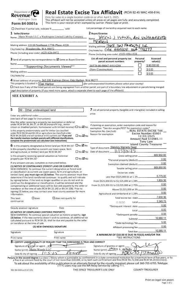
Property
Account |
| Property ID: | 637118 | Abbreviated Legal Description: | 1989 GLENRIVER 27X52 VIN# GR3465XU TPO &003498 |
| Geographic ID: | M918500000390 | Agent Code: | |
| Type: | Mobile Home | | |
| Tax Area: | 710 - APPRAISER-S Whid Schl Dist, outside Langley, improved & 1 acre or less | Land Use Code | 11 |
| Open Space: | N | DFL | N |
| Historic Property: | N | Remodel Property: | N |
| Multi-Family Redevelopment: | N | | |
| Township: | | Section: | |
| Range: | |
Location |
| Address: | 4931 WHEEL DR LANGLEY, WA 98260 | Mapsco: | |
| Neighborhood: | Cycle 4 | Map ID: | 735 |
| Neighborhood CD: | 4 |
Owner |
| Name: | COTTERELL, WILLIAM | Owner ID: | 162949 |
| Mailing Address: | SONJA M COTTERELL 4931 WHEEL DR LANGLEY, WA 98260-9776 | % Ownership: | 100.0000000000% |
| | | Exemptions: | |
Taxes and Assessment Details
Values
| (+) Improvement Homesite Value: | + | $0 | |
| (+) Improvement Non-Homesite Value: | + | $135,818 | |
| (+) Land Homesite Value: | + | $0 | |
| (+) Land Non-Homesite Value: | + | $0 | |
| (+) Curr Use (HS): | + | $0 | $0 |
| (+) Curr Use (NHS): | + | $0 | $0 |
| | | -------------------------- | |
| (=) Market Value: | = | $135,818 | |
| (–) Productivity Loss: | – | $0 | |
| | | -------------------------- | |
| (=) Subtotal: | = | $135,818 | |
| (+) Senior Appraised Value: | + | $0 | |
| (+) Non-Senior Appraised Value: | + | $135,818 | |
| | | -------------------------- | |
| (=) Total Appraised Value: | = | $135,818 | |
| (–) Senior Exemption Loss: | – | $0 | |
| (–) Exemption Loss: | – | $0 | |
| | | -------------------------- | |
| (=) Taxable Value: | = | $135,818 | |
Taxing Jurisdiction
| Owner: | COTTERELL, WILLIAM | | |
| % Ownership: | 100.0000000000% | | |
| Total Value: | $135,818 | | |
| Tax Area: | 710 - APPRAISER-S Whid Schl Dist, outside Langley, improved & 1 acre or less |
| CF | Conservation Futures | 0.0316035091 | $135,818 | $135,818 | $4.29 | | |
| FIRE3 | Fire & Rescue Dist #3 S Whidbey GEN | 1.2004855531 | $135,818 | $135,818 | $163.05 | | |
| HOBOND | Hospital BOND | 0.1910887512 | $135,818 | $135,818 | $25.95 | | |
| HOGEN | Hospital GEN | 0.3902502903 | $135,818 | $135,818 | $53.00 | | |
| CE | County Current Expense | 0.3708482477 | $135,818 | $135,818 | $50.37 | | |
| CR | County Roads | 0.4584763726 | $135,818 | $135,818 | $62.27 | | |
| ISLANDEMS | Hospital GEN (EMS) | 0.5000000000 | $135,818 | $135,818 | $67.91 | | |
| LIB | Library Sno-Isle GEN | 0.3153421757 | $135,818 | $135,818 | $42.83 | | |
| PORTWHID | Port of S Whidbey GEN | 0.1094540357 | $135,818 | $135,818 | $14.87 | | |
| SCH206BOND | School 206 BOND | 0.3161759235 | $135,818 | $135,818 | $42.94 | | |
| SCH206MO | School 206 Enrichment | 0.4547169547 | $135,818 | $135,818 | $61.76 | | |
| ST | State School | 1.3035497053 | $135,818 | $135,818 | $177.05 | | |
| ST2 | State School Part 2 | 0.8169543533 | $135,818 | $135,818 | $110.96 | | |
| SWHIDPRBD | P & R S Whidbey BOND | 0.0152817568 | $135,818 | $135,818 | $2.08 | | |
| SWHIDPRBD2 | P & R S Whidbey BOND2 | 0.0138911264 | $135,818 | $135,818 | $1.89 | | |
| SWHIDPRMT | P & R S Whidbey GEN | 0.2053334452 | $135,818 | $135,818 | $27.89 | | |
| | Total Tax Rate: | 6.6934522006 | | | | | |
| | | | | Taxes w/Current Exemptions: | $909.11 | | |
| | | | | Taxes w/o Exemptions: | $909.11 | | |
Improvement / Building
| Improvement #1: | MANUFACTURED HOME | State Code: | Y | 1411.0 sqft | Value: | $135,818 |
| Bathrooms: | 2 | Bedrooms: | 3 | | Ceiling: | PLASTER PAINTED | Cooling: | EVAP NO DUCT | | Exterior Wall/Cover: | VINYL | Floor Covering: | CARPET 100% | | Floor Structure: | SLAB ON GRADE | Foundation: | SLAB | | Heating: | FHA ELECTRIC | Interior Finish: | PLASTER | | Plumbing Fixture Cnt: | 1 | Roof Slope: | FLAT | | Roof Structure/Cover: | CJ ALUMINIUM HEAVY |   |   |
|
| | Type | Description | Class CD | Sub Class CD | Year Built | Area |
| | BAS | BASE/MAIN FLOOR | 4 | 0 | 1989 | 1411.0 |
| | OCP | OPEN CARPORT | 4 | 0 | 1989 | 720.0 |
| | UTY | STORAGE/UTILITY | 4 | 0 | 1989 | 160.0 |
| | OWP | OPEN WOOD PORCH W/STEPS | 4 | 0 | 1989 | 68.0 |
Sketch
Property Image
Land
No land segments exist for this property.
Roll Value History
| 2026 | N/A | N/A | N/A | N/A | N/A |
| 2025 | $135,818 | $0 | $0 | $135,818 | $135,818 |
| 2024 | $140,062 | $0 | $0 | $140,062 | $140,062 |
| 2023 | $88,887 | $0 | $0 | $88,887 | $88,887 |
| 2022 | $82,851 | $0 | $0 | $82,851 | $82,851 |
| 2021 | $74,104 | $0 | $0 | $74,104 | $74,104 |
| 2020 | $65,395 | $0 | $0 | $65,395 | $65,395 |
| 2019 | $53,121 | $0 | $0 | $53,121 | $53,121 |
| 2018 | $54,731 | $0 | $0 | $54,731 | $54,731 |
| 2017 | $56,340 | $0 | $0 | $56,340 | $56,340 |
| 2016 | $57,949 | $0 | $0 | $57,949 | $57,949 |
| 2015 | $58,754 | $0 | $0 | $58,754 | $58,754 |
| 2014 | $58,534 | $0 | $0 | $58,534 | $58,534 |
| 2013 | $60,232 | $0 | $0 | $60,232 | $60,232 |
| 2012 | $61,930 | $0 | $0 | $61,930 | $61,930 |
| 2011 | $63,629 | $0 | $0 | $63,629 | $63,629 |
| 2010 | $65,186 | $0 | $0 | $65,186 | $65,186 |
| 2009 | $69,629 | $0 | $0 | $69,629 | $69,629 |
| 2008 | $70,770 | $0 | $0 | $70,770 | $70,770 |
| 2007 | $54,692 | $0 | $0 | $54,692 | $54,692 |
Deed and Sales History
| 1 | 09/26/2002 | OTHER | Other - Misc. Documents | MORGAN, LESLIE G | COTTERELL, WILLIAM R | | | $77,000.00 | 23943 | 0 |
| 2 | 06/01/1989 | OTHER | Other - Misc. Documents | Unknown | MORGAN, LESLIE G | | | $42,000.00 | 11111111 | 0 |
Payout Agreement
| No payout information available.. |