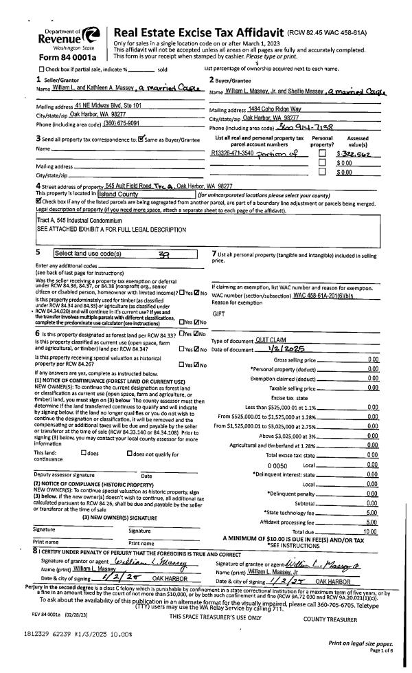
Property
Account |
| Property ID: | 637298 | Abbreviated Legal Description: | SUNSET WEST - PRD LOT 4 |
| Geographic ID: | S8276-00-00004-0 | Agent Code: | |
| Type: | Real | | |
| Tax Area: | 510 - APPRAISER-Stan/Cam Schl Dist, improved & 1 acre or less | Land Use Code | 11 |
| Open Space: | N | DFL | N |
| Historic Property: | N | Remodel Property: | N |
| Multi-Family Redevelopment: | N | | |
| Township: | | Section: | |
| Range: | |
Location |
| Address: | 739 ANTHONY CT CAMANO ISLAND, WA 98282 | Mapsco: | |
| Neighborhood: | North Camano | Map ID: | 571 |
| Neighborhood CD: | 06-C |
Owner |
| Name: | PETERSEN TTEE, ARNE STUART | Owner ID: | 313262 |
| Mailing Address: | 739 ANTHONY COURT CAMANO ISLAND, WA 98282 | % Ownership: | 100.0000000000% |
| | | Exemptions: | |
Taxes and Assessment Details
Values
| (+) Improvement Homesite Value: | + | $0 | |
| (+) Improvement Non-Homesite Value: | + | $331,627 | |
| (+) Land Homesite Value: | + | $0 | |
| (+) Land Non-Homesite Value: | + | $230,000 | |
| (+) Curr Use (HS): | + | $0 | $0 |
| (+) Curr Use (NHS): | + | $0 | $0 |
| | | -------------------------- | |
| (=) Market Value: | = | $561,627 | |
| (–) Productivity Loss: | – | $0 | |
| | | -------------------------- | |
| (=) Subtotal: | = | $561,627 | |
| (+) Senior Appraised Value: | + | $0 | |
| (+) Non-Senior Appraised Value: | + | $561,627 | |
| | | -------------------------- | |
| (=) Total Appraised Value: | = | $561,627 | |
| (–) Senior Exemption Loss: | – | $0 | |
| (–) Exemption Loss: | – | $0 | |
| | | -------------------------- | |
| (=) Taxable Value: | = | $561,627 | |
Taxing Jurisdiction
| Owner: | PETERSEN TTEE, ARNE STUART | | |
| % Ownership: | 100.0000000000% | | |
| Total Value: | $561,627 | | |
| Tax Area: | 510 - APPRAISER-Stan/Cam Schl Dist, improved & 1 acre or less |
| CF | Conservation Futures | 0.0316035091 | $561,627 | $561,627 | $17.75 | | |
| EMS1 | Fire & Rescue Dist #1 Camano GEN (EMS) | 0.3677864386 | $561,627 | $561,627 | $206.56 | | |
| FIRE1 | Fire & Rescue Dist #1 Camano GEN | 1.2502910536 | $561,627 | $561,627 | $702.20 | | |
| FIRE1BOND | Fire & Rescue Dist #1 Camano BOND | 0.1570001679 | $561,627 | $561,627 | $88.18 | | |
| CE | County Current Expense | 0.3708482477 | $561,627 | $561,627 | $208.28 | | |
| CR | County Roads | 0.4584763726 | $561,627 | $561,627 | $257.49 | | |
| LCIB | Library Sno-Isle BOND (Camano Island) | 0.0396325772 | $561,627 | $561,627 | $22.26 | | |
| LIB | Library Sno-Isle GEN | 0.3153421757 | $561,627 | $561,627 | $177.10 | | |
| SCH205_401 | School 205-401 Enrichment | 1.2698420524 | $561,627 | $561,627 | $713.18 | | |
| SCH205BOND | School 205-401 BOND | 0.9396497583 | $561,627 | $561,627 | $527.73 | | |
| ST | State School | 1.3035497053 | $561,627 | $561,627 | $732.11 | | |
| ST2 | State School Part 2 | 0.8169543533 | $561,627 | $561,627 | $458.82 | | |
| | Total Tax Rate: | 7.3209764117 | | | | | |
| | | | | Taxes w/Current Exemptions: | $4,111.66 | | |
| | | | | Taxes w/o Exemptions: | $4,111.66 | | |
Improvement / Building
| Improvement #1: | RESIDENTIAL | State Code: | Y | 1897.0 sqft | Value: | $331,627 |
| Bathrooms: | 2.5 | Bedrooms: | 3 | | Ceiling: | DRYWALL PAINTED | Cooling: | HEAT PUMP/CONV/V | | Exterior Wall/Cover: | PLY/HARDBOARD T-111 | Floor Covering: | CARPET/VINYL 80-20 | | Floor Structure: | WOOD W/SUBFLOOR | Foundation: | CONCRETE | | Interior Finish: | DRYWALL PAINT | Plumbing Fixture Cnt: | 11 | | Roof Slope: | 8" IN 12" | Roof Structure/Cover: | CJ ASPHALT |
|
| | Type | Description | Class CD | Sub Class CD | Year Built | Area |
| | BAS | BASE/MAIN FLOOR | 3 | 0 | 1992 | 1897.0 |
| | OP1 | OPEN PORCH SLAB | 3 | 0 | 1992 | 120.0 |
| | OP4 | OPEN PORCH W/CEILING-ROOF | 3 | 0 | 1992 | 36.0 |
| | AGR | ATTACHED GARAGE | 3 | 0 | 1992 | 546.0 |
| | OWP | OPEN WOOD PORCH W/STEPS | 3 | 0 | 1992 | 266.0 |
Sketch
Property Image
Land
| 1 | 15 | SQ (12001-21780) | 0.0000 | 0.00 | 0.00 | 0.00 | 1.00 | $230,000 | $0 |
Roll Value History
| 2026 | N/A | N/A | N/A | N/A | N/A |
| 2025 | $331,627 | $230,000 | $0 | $561,627 | $561,627 |
| 2024 | $335,812 | $230,000 | $0 | $565,812 | $565,812 |
| 2023 | $339,997 | $230,000 | $0 | $569,997 | $569,997 |
| 2022 | $296,511 | $230,000 | $0 | $526,511 | $526,511 |
| 2021 | $261,127 | $150,000 | $0 | $411,127 | $411,127 |
| 2020 | $254,644 | $130,000 | $0 | $384,644 | $384,644 |
| 2019 | $191,213 | $140,000 | $0 | $331,213 | $331,213 |
| 2018 | $191,802 | $120,000 | $0 | $311,802 | $311,802 |
| 2017 | $192,978 | $120,000 | $0 | $312,978 | $312,978 |
| 2016 | $192,939 | $100,000 | $0 | $292,939 | $292,939 |
| 2015 | $195,381 | $66,400 | $0 | $261,781 | $261,781 |
| 2014 | $197,822 | $66,400 | $0 | $264,222 | $264,222 |
| 2013 | $192,155 | $66,400 | $0 | $258,555 | $258,555 |
| 2012 | $194,498 | $66,400 | $0 | $260,898 | $260,898 |
| 2011 | $196,841 | $83,000 | $0 | $279,841 | $279,841 |
| 2010 | $228,395 | $83,000 | $0 | $311,395 | $311,395 |
| 2009 | $238,238 | $100,000 | $0 | $338,238 | $338,238 |
| 2008 | $241,249 | $100,000 | $0 | $341,249 | $341,249 |
| 2007 | $244,327 | $100,000 | $0 | $344,327 | $344,327 |
Deed and Sales History
| 1 | 06/27/2024 | QCD | Quit Claim Deed | PETERSEN, ARNE S | PETERSEN TTEE, ARNE STUART | | | $0.00 | 60736 | 4575029 |
| 2 | 10/13/2023 | WD | Warranty Deed | CONN, GEORGIANA D | PETERSEN, ARNE S | | | $585,000.00 | 58268 | 4565818 |
| 3 | 11/09/2004 | WD | Warranty Deed | DROKE, CYNTHIA E | CONN, GEORGIANA D | | | $150,000.00 | 45468 | 4118647 |
| 4 | 05/27/2004 | PRD | Personal Representatives Deed | CONN, KENNETH A | DROKE, CYNTHIA E | | | $0.00 | 42412 | 4102786 |
| 5 | 04/01/1993 | WD | Warranty Deed | FRONTIER, BANK | CONN, KENNETH A | | | $170,000.00 | 31355 | 93006962 |
| 6 | 04/01/1993 | QCD | Quit Claim Deed | CONN, KENNETH A | CONN, KENNETH A | | | $0.00 | 31356 | 93006963 |
| 7 | 01/01/1993 | TRUSTEED | Trustee's Deed | WEIHE, WILLIAM H | FRONTIER, BANK | | | $0.00 | 30129 | 93000598 |
| 8 | 08/01/1990 | WD | Warranty Deed | WEIHE, WILLIAM H | WEIHE, WILLIAM H | | | $0.00 | 5279 | 90017621 |
| 9 | 07/01/1990 | WD | Warranty Deed | REMINGTON, ALBERT F | WEIHE, WILLIAM H | | | $34,000.00 | 4504 | 90014808 |
| 10 | 10/01/1989 | WD | Warranty Deed | HOLBECK, JEFFREY J | REMINGTON, ALBERT F | | | $22,500.00 | 94276 | 89014024 |
| 11 | 01/01/1900 | OTHER | Other - Misc. Documents | Unknown | HOLBECK, JEFFREY J | | | $0.00 | 62908 | 88013564 |
Payout Agreement
| No payout information available.. |