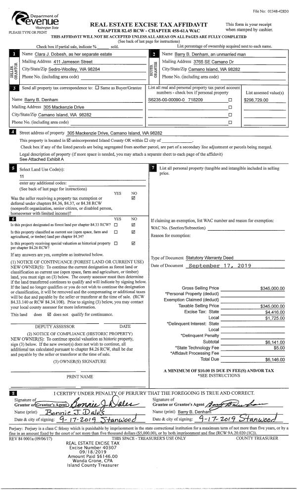
Property
Account |
| Property ID: | 637635 | Abbreviated Legal Description: | S/2 N/2 NE NW LY W OF CO RD EX: N150'OF E300'OF S/2 N/2 NE NW LY W OF CO RD TGW: E/2 S/2 N/2 NW NW EX W180' FR 490-1790 & PT 490-0630 BLA 12/89 |
| Geographic ID: | R22909-489-1460 | Agent Code: | |
| Type: | Real | | |
| Tax Area: | 712 - APPRAISER-S Whid Schl Dist, outside Langley, improved, greater than 1 acre | Land Use Code | 11 |
| Open Space: | N | DFL | N |
| Historic Property: | N | Remodel Property: | N |
| Multi-Family Redevelopment: | N | | |
| Township: | 29 | Section: | 09 |
| Range: | R2 |
Location |
| Address: | 5246 MUTINY BAY RD FREELAND, WA 98249 | Mapsco: | |
| Neighborhood: | Cycle 3 | Map ID: | 307 |
| Neighborhood CD: | 3 |
Owner |
| Name: | BUXTON, THOMAS L | Owner ID: | 13599 |
| Mailing Address: | TERRI PLATT ANDERSON 5246 MUTINY BAY RD FREELAND, WA 98249-9763 | % Ownership: | 100.0000000000% |
| | | Exemptions: | |
Taxes and Assessment Details
Values
| (+) Improvement Homesite Value: | + | $0 | |
| (+) Improvement Non-Homesite Value: | + | $577,052 | |
| (+) Land Homesite Value: | + | $0 | |
| (+) Land Non-Homesite Value: | + | $350,000 | |
| (+) Curr Use (HS): | + | $0 | $0 |
| (+) Curr Use (NHS): | + | $0 | $0 |
| | | -------------------------- | |
| (=) Market Value: | = | $927,052 | |
| (–) Productivity Loss: | – | $0 | |
| | | -------------------------- | |
| (=) Subtotal: | = | $927,052 | |
| (+) Senior Appraised Value: | + | $0 | |
| (+) Non-Senior Appraised Value: | + | $927,052 | |
| | | -------------------------- | |
| (=) Total Appraised Value: | = | $927,052 | |
| (–) Senior Exemption Loss: | – | $0 | |
| (–) Exemption Loss: | – | $0 | |
| | | -------------------------- | |
| (=) Taxable Value: | = | $927,052 | |
Taxing Jurisdiction
| Owner: | BUXTON, THOMAS L | | |
| % Ownership: | 100.0000000000% | | |
| Total Value: | $927,052 | | |
| Tax Area: | 712 - APPRAISER-S Whid Schl Dist, outside Langley, improved, greater than 1 acre |
| CF | Conservation Futures | 0.0316035091 | $927,052 | $927,052 | $29.30 | | |
| FIRE3 | Fire & Rescue Dist #3 S Whidbey GEN | 1.2004855531 | $927,052 | $927,052 | $1,112.91 | | |
| HOBOND | Hospital BOND | 0.1910887512 | $927,052 | $927,052 | $177.15 | | |
| HOGEN | Hospital GEN | 0.3902502903 | $927,052 | $927,052 | $361.78 | | |
| CE | County Current Expense | 0.3708482477 | $927,052 | $927,052 | $343.80 | | |
| CR | County Roads | 0.4584763726 | $927,052 | $927,052 | $425.03 | | |
| ISLANDEMS | Hospital GEN (EMS) | 0.5000000000 | $927,052 | $927,052 | $463.53 | | |
| LIB | Library Sno-Isle GEN | 0.3153421757 | $927,052 | $927,052 | $292.34 | | |
| PORTWHID | Port of S Whidbey GEN | 0.1094540357 | $927,052 | $927,052 | $101.47 | | |
| SCH206BOND | School 206 BOND | 0.3161759235 | $927,052 | $927,052 | $293.11 | | |
| SCH206MO | School 206 Enrichment | 0.4547169547 | $927,052 | $927,052 | $421.55 | | |
| ST | State School | 1.3035497053 | $927,052 | $927,052 | $1,208.46 | | |
| ST2 | State School Part 2 | 0.8169543533 | $927,052 | $927,052 | $757.36 | | |
| SWHIDPRBD | P & R S Whidbey BOND | 0.0152817568 | $927,052 | $927,052 | $14.17 | | |
| SWHIDPRBD2 | P & R S Whidbey BOND2 | 0.0138911264 | $927,052 | $927,052 | $12.88 | | |
| SWHIDPRMT | P & R S Whidbey GEN | 0.2053334452 | $927,052 | $927,052 | $190.35 | | |
| | Total Tax Rate: | 6.6934522006 | | | | | |
| | | | | Taxes w/Current Exemptions: | $6,205.19 | | |
| | | | | Taxes w/o Exemptions: | $6,205.19 | | |
Improvement / Building
| Improvement #1: | RESIDENTIAL | State Code: | Y | 3022.5 sqft | Value: | $577,052 |
| Bathrooms: | 2.5 | Bedrooms: | 2 | | Ceiling: | DRYWALL PAINTED | Cooling: | HEAT PUMP/CONV/V | | Exterior Wall/Cover: | SHINGLE | Floor Covering: | COLORED CONCRETE | | Floor Structure: | SLAB ON GRADE | Foundation: | CONCRETE | | Heating: | RADIANT FLOOR | Interior Finish: | DRYWALL PAINT | | Plumbing Fixture Cnt: | 13 | Roof Slope: | 3" IN 12" | | Roof Structure/Cover: | CJ ASPHALT |   |   |
|
| | Type | Description | Class CD | Sub Class CD | Year Built | Area |
| | BAS | BASE/MAIN FLOOR | 4 | 0 | 2006 | 2687.8 |
| | OP1 | OPEN PORCH SLAB | 4 | 0 | 2006 | 266.0 |
| | OP1 | OPEN PORCH SLAB | 4 | 0 | 2006 | 728.8 |
| | OP1 | OPEN PORCH SLAB | 4 | 0 | 2006 | 194.4 |
| | OP3 | OPEN PORCH W/ROOF | 4 | 0 | 2006 | 76.0 |
| | OP3 | OPEN PORCH W/ROOF | 4 | 0 | 2006 | 126.5 |
| | DGR | DETACHED GARAGE | 4 | 0 | 2006 | 798.0 |
| | LOF | LOFT | 4 | 0 | 2006 | 334.7 |
Sketch
Property Image
Land
| 1 | 32 | AC (03.01-09.99) | 9.8400 | 428630.40 | 0.00 | 0.00 | 1.00 | $350,000 | $0 |
Roll Value History
| 2026 | N/A | N/A | N/A | N/A | N/A |
| 2025 | $577,052 | $350,000 | $0 | $927,052 | $927,052 |
| 2024 | $583,589 | $340,000 | $0 | $923,589 | $923,589 |
| 2023 | $588,425 | $320,000 | $0 | $908,425 | $908,425 |
| 2022 | $537,562 | $260,000 | $0 | $797,562 | $797,562 |
| 2021 | $471,047 | $230,000 | $0 | $701,047 | $701,047 |
| 2020 | $458,027 | $180,000 | $0 | $638,027 | $638,027 |
| 2019 | $319,122 | $280,000 | $0 | $599,122 | $599,122 |
| 2018 | $320,038 | $235,000 | $0 | $555,038 | $555,038 |
| 2017 | $321,663 | $200,000 | $0 | $521,663 | $521,663 |
| 2016 | $325,317 | $200,000 | $0 | $525,317 | $525,317 |
| 2015 | $328,974 | $217,877 | $0 | $546,851 | $546,851 |
| 2014 | $332,630 | $217,877 | $0 | $550,507 | $550,507 |
| 2013 | $322,914 | $217,877 | $0 | $540,791 | $540,791 |
| 2012 | $326,425 | $217,877 | $0 | $544,302 | $544,302 |
| 2011 | $329,936 | $217,877 | $0 | $547,813 | $547,813 |
| 2010 | $333,441 | $217,877 | $0 | $551,318 | $551,318 |
| 2009 | $308,504 | $229,800 | $0 | $538,304 | $538,304 |
| 2008 | $311,888 | $249,000 | $0 | $560,888 | $560,888 |
| 2007 | $307,581 | $252,920 | $0 | $560,501 | $560,501 |
Deed and Sales History
| 1 | 11/16/2004 | WD | Warranty Deed | TINKER, WENDY | BUXTON, THOMAS L | | | $202,000.00 | 45415 | 4118392 |
| 2 | 06/02/2004 | WD | Warranty Deed | BERRY, DAVID | TINKER, WENDY | | | $173,000.00 | 42459 | 4103029 |
| 3 | 12/01/1989 | OTHER | Other - Misc. Documents | L, & T | L, & T | | | $0.00 | 63439 | 89018204 |
| 4 | 12/01/1989 | WD | Warranty Deed | L, & T | BERRY, DAVID | | | $56,900.00 | 417 | 90001279 |
| 5 | 06/01/1989 | OTHER | Other - Misc. Documents | L, & T | L, & T | | | $0.00 | 63201 | 89006954 |
| 6 | 01/01/1900 | OTHER | Other - Misc. Documents | Unknown | L, & T | | | $0.00 | 52032 | 85008021 |
Payout Agreement
| No payout information available.. |