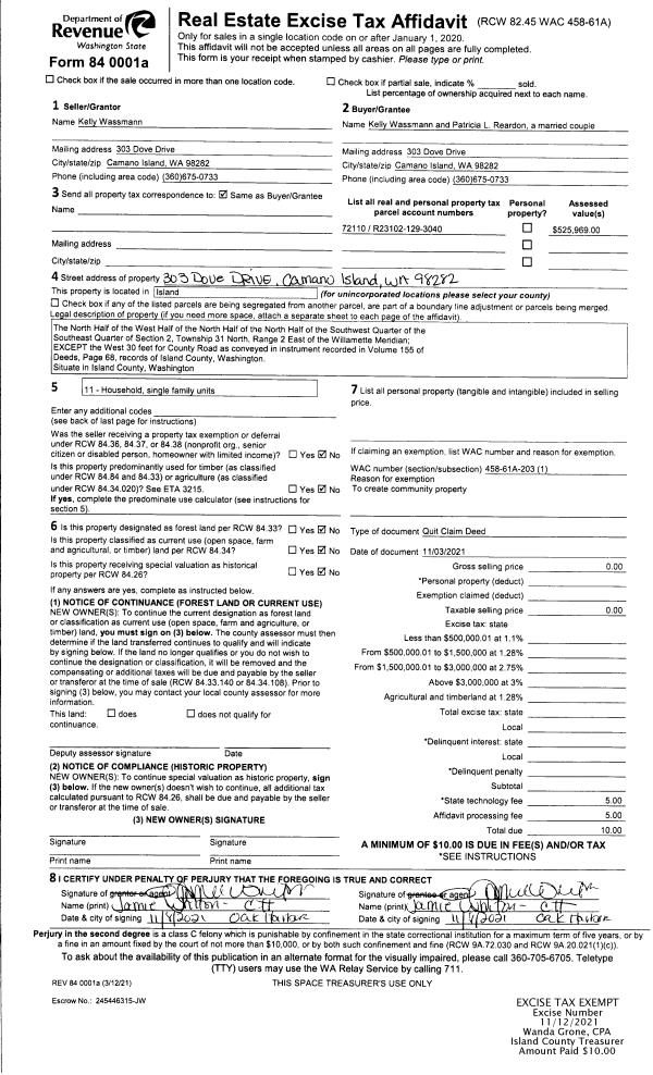
Property
Account |
| Property ID: | 638313 | Abbreviated Legal Description: | 55.6200 Acres ins Section 15s Township 31s Range R1s LOT B BLC AF#4450497 IN W CROCKETT DC;s |
| Geographic ID: | R13115-267-4350 | Agent Code: | |
| Type: | Real | | |
| Tax Area: | 311 - APPRAISER-Cpvl Schl Dist, outside Cpvl, vacant, greater than 50 acres | Land Use Code | 83 |
| Open Space: | Y | DFL | N |
| Historic Property: | N | Remodel Property: | N |
| Multi-Family Redevelopment: | N | | |
| Township: | 31 | Section: | 15 |
| Range: | R1 |
Location |
| Address: | | Mapsco: | |
| Neighborhood: | Cycle 2 | Map ID: | 67 |
| Neighborhood CD: | 2 |
Owner |
| Name: | GTG FARM LLC | Owner ID: | 297484 |
| Mailing Address: | 776 FORT CASEY RD COUPEVILLE, WA 98239 | % Ownership: | 100.0000000000% |
| | | Exemptions: | |
Taxes and Assessment Details
Values
| (+) Improvement Homesite Value: | + | $0 | |
| (+) Improvement Non-Homesite Value: | + | $0 | |
| (+) Land Homesite Value: | + | $0 | |
| (+) Land Non-Homesite Value: | + | $0 | |
| (+) Curr Use (HS): | + | $0 | $0 |
| (+) Curr Use (NHS): | + | $622,944 | $34,619 |
| | | -------------------------- | |
| (=) Market Value: | = | $622,944 | |
| (–) Productivity Loss: | – | $588,325 | |
| | | -------------------------- | |
| (=) Subtotal: | = | $34,619 | |
| (+) Senior Appraised Value: | + | $0 | |
| (+) Non-Senior Appraised Value: | + | $34,619 | |
| | | -------------------------- | |
| (=) Total Appraised Value: | = | $34,619 | |
| (–) Senior Exemption Loss: | – | $0 | |
| (–) Exemption Loss: | – | $0 | |
| | | -------------------------- | |
| (=) Taxable Value: | = | $34,619 | |
Taxing Jurisdiction
| Owner: | GTG FARM LLC | | |
| % Ownership: | 100.0000000000% | | |
| Total Value: | $622,944 | | |
| Tax Area: | 311 - APPRAISER-Cpvl Schl Dist, outside Cpvl, vacant, greater than 50 acres |
| CF | Conservation Futures | 0.0316035091 | $34,619 | $34,619 | $1.09 | | |
| CEM2 | Cemetery #2 | 0.0095056933 | $34,619 | $34,619 | $0.33 | | |
| HOBOND | Hospital BOND | 0.1910887512 | $34,619 | $34,619 | $6.62 | | |
| HOGEN | Hospital GEN | 0.3902502903 | $34,619 | $34,619 | $13.51 | | |
| CE | County Current Expense | 0.3708482477 | $34,619 | $34,619 | $12.84 | | |
| CR | County Roads | 0.4584763726 | $34,619 | $34,619 | $15.87 | | |
| ISLANDEMS | Hospital GEN (EMS) | 0.5000000000 | $34,619 | $34,619 | $17.31 | | |
| LIB | Library Sno-Isle GEN | 0.3153421757 | $34,619 | $34,619 | $10.92 | | |
| LIBCAP | Library Sno-Isle BOND (Cap Fac Imp Area) | 0.0543427938 | $34,619 | $34,619 | $1.88 | | |
| POCOUP | Port of Coupeville GEN | 0.1093371703 | $34,619 | $34,619 | $3.79 | | |
| POCOUPIDD | Port of Coupeville IDD | 0.3409740022 | $34,619 | $34,619 | $11.80 | | |
| COUPSDTECH | School 204 CP (TECH) | 0.7545480007 | $34,619 | $34,619 | $26.12 | | |
| SCH204MO | School 204 Enrichment | 0.6716186034 | $34,619 | $34,619 | $23.25 | | |
| ST | State School | 1.3035497053 | $34,619 | $34,619 | $45.13 | | |
| ST2 | State School Part 2 | 0.8169543533 | $34,619 | $34,619 | $28.28 | | |
| | Total Tax Rate: | 6.3184396689 | | | | | |
| | | | | Taxes w/Current Exemptions: | $218.74 | | |
| | | | | Taxes w/o Exemptions: | $218.74 | | |
Improvement / Building
Sketch
| No sketches available for this property. |
Property Image
Land
| 1 | 83 | OPEN AGRICULTURE | 55.6200 | 2422807.20 | 0.00 | 0.00 | 1.00 | $622,944 | $34,619 |
Roll Value History
| 2026 | N/A | N/A | N/A | N/A | N/A |
| 2025 | $0 | $622,944 | $34,619 | $34,619 | $34,619 |
| 2024 | $0 | $560,000 | $34,619 | $34,619 | $34,619 |
| 2023 | $0 | $550,000 | $34,619 | $34,619 | $34,619 |
| 2022 | $0 | $550,000 | $34,619 | $34,619 | $34,619 |
| 2021 | $0 | $500,000 | $34,619 | $34,619 | $34,619 |
| 2020 | $0 | $500,000 | $34,619 | $34,619 | $34,619 |
| 2019 | $0 | $500,000 | $34,619 | $34,619 | $34,619 |
| 2018 | $0 | $400,000 | $34,619 | $34,619 | $34,619 |
| 2017 | $0 | $283,350 | $34,619 | $34,619 | $34,619 |
| 2016 | $0 | $283,350 | $34,619 | $34,619 | $34,619 |
| 2015 | $0 | $119,007 | $34,619 | $34,619 | $34,619 |
| 2014 | $0 | $119,007 | $34,619 | $34,619 | $34,619 |
| 2013 | $0 | $119,007 | $34,619 | $34,619 | $34,619 |
| 2012 | $0 | $120,445 | $34,619 | $34,619 | $34,619 |
| 2011 | $0 | $141,700 | $34,619 | $34,619 | $34,619 |
| 2010 | $0 | $141,700 | $34,619 | $34,619 | $34,619 |
| 2009 | $0 | $141,700 | $34,619 | $34,619 | $34,619 |
| 2008 | $0 | $595,035 | $34,619 | $34,619 | $34,619 |
| 2007 | $0 | $466,961 | $34,619 | $34,619 | $34,619 |
Deed and Sales History
| 1 | 07/15/2020 | WD | Warranty Deed | BOYER UNDIV 1/3 INT, THEODORE C | GTG FARM LLC | | | $0.00 | 47737 | 4516308 |
| 2 | 11/20/2012 | QCD | Quit Claim Deed | BOYER JR, FREEMAN E | BOYER UNDIV 1/3 INT, THEODORE C | | | $0.00 | 9603 | 4328174 |
| 3 | 07/15/2009 | PRD | Personal Representatives Deed | BOYER, FREEMAN E | BOYER JR, FREEMAN E | | | $0.00 | 92670 | 4262989 |
| 4 | 07/01/1989 | TRUSTEED | Trustee's Deed | UNITED, STATES O | BOYER, FREEMAN E | | | $0.00 | 93033 | 89010243 |
| 5 | 01/01/1900 | OTHER | Other - Misc. Documents | Unknown | UNITED, STATES O | | | $0.00 | 61417 | 85013407 |
Payout Agreement
| No payout information available.. |