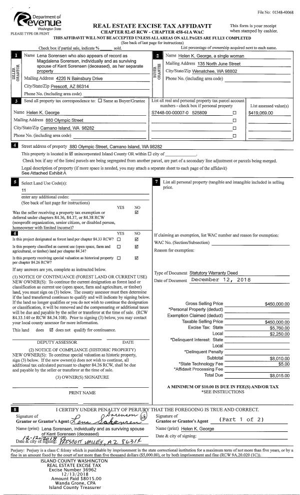
Property
Account |
| Property ID: | 638545 | Abbreviated Legal Description: | OLYMPIC GARDENS LOTS 4 & 5 OH-SP 1-90 OH-SP 489 BINDING SITE PLAN 13202-455-1000, 7600-00- 01001-0, 01002-0, 01007-3, 01008-0, 01008-1 & 01005-1 AF#89010929 OAK TREE VILLAGE OH-SP 1-90 V2 SP P233 AF#90006714 |
| Geographic ID: | S7600-00-00004-0 | Agent Code: | |
| Type: | Real | | |
| Tax Area: | 100 - APPRAISER-OH Schl Dist, in OH | Land Use Code | 13 |
| Open Space: | N | DFL | N |
| Historic Property: | N | Remodel Property: | N |
| Multi-Family Redevelopment: | N | | |
| Township: | | Section: | |
| Range: | |
Location |
| Address: | 470 SE 4TH AVE OAK HARBOR, WA 98277 | Mapsco: | |
| Neighborhood: | 13cOH-se regatta | Map ID: | 88 |
| Neighborhood CD: | 13cOHsergt |
Owner |
| Name: | SAG PRESERVATION PORTFOLIO | Owner ID: | 288138 |
| Mailing Address: | 2223 112TH AVE NE, STE #102 BELLEVUE, WA 98004 | % Ownership: | 100.0000000000% |
| | | Exemptions: | EX |
Taxes and Assessment Details
Values
| (+) Improvement Homesite Value: | + | $0 | |
| (+) Improvement Non-Homesite Value: | + | $1,606,589 | |
| (+) Land Homesite Value: | + | $0 | |
| (+) Land Non-Homesite Value: | + | $2,085,120 | |
| (+) Curr Use (HS): | + | $0 | $0 |
| (+) Curr Use (NHS): | + | $0 | $0 |
| | | -------------------------- | |
| (=) Market Value: | = | $3,691,709 | |
| (–) Productivity Loss: | – | $0 | |
| | | -------------------------- | |
| (=) Subtotal: | = | $3,691,709 | |
| (+) Senior Appraised Value: | + | $0 | |
| (+) Non-Senior Appraised Value: | + | $3,691,709 | |
| | | -------------------------- | |
| (=) Total Appraised Value: | = | $3,691,709 | |
| (–) Senior Exemption Loss: | – | $0 | |
| (–) Exemption Loss: | – | $3,691,709 | |
| | | -------------------------- | |
| (=) Taxable Value: | = | $0 | |
Taxing Jurisdiction
| Owner: | SAG PRESERVATION PORTFOLIO | | |
| % Ownership: | 100.0000000000% | | |
| Total Value: | $3,691,709 | | |
| Tax Area: | 100 - APPRAISER-OH Schl Dist, in OH |
| CF | Conservation Futures | 0.0316035091 | $3,691,709 | $0 | $0.00 | | |
| CEM1 | Cemetery #1 | 0.0040320932 | $3,691,709 | $0 | $0.00 | | |
| COH | City of Oak Harbor | 2.3001546061 | $3,691,709 | $0 | $0.00 | | |
| OAKBOND | City of Oak Harbor BOND | 0.1926904192 | $3,691,709 | $0 | $0.00 | | |
| HOBOND | Hospital BOND | 0.1910887512 | $3,691,709 | $0 | $0.00 | | |
| HOGEN | Hospital GEN | 0.3902502903 | $3,691,709 | $0 | $0.00 | | |
| CE | County Current Expense | 0.3708482477 | $3,691,709 | $0 | $0.00 | | |
| ISLANDEMS | Hospital GEN (EMS) | 0.5000000000 | $3,691,709 | $0 | $0.00 | | |
| LIB | Library Sno-Isle GEN | 0.3153421757 | $3,691,709 | $0 | $0.00 | | |
| NWHIDPRMT | P & R N Whidbey GEN | 0.2004466701 | $3,691,709 | $0 | $0.00 | | |
| SCH201MO | School 201 Enrichment | 1.8559231640 | $3,691,709 | $0 | $0.00 | | |
| ST | State School | 1.3035497053 | $3,691,709 | $0 | $0.00 | | |
| ST2 | State School Part 2 | 0.8169543533 | $3,691,709 | $0 | $0.00 | | |
| | Total Tax Rate: | 8.4728839852 | | | | | |
| | | | | Taxes w/Current Exemptions: | $0.00 | | |
| | | | | Taxes w/o Exemptions: | $31,279.42 | | |
Improvement / Building
| Improvement #1: | COMMERCIAL | State Code: | Y | 31245.0 sqft | Value: | $1,606,589 |
| Bathrooms: | 32 | Bedrooms: | 32 | | Ceiling: | DRYWALL PAINTED | Exterior Wall/Cover: | WOOD SIDING | | Floor Covering: | CARPET/VINYL 80-20 | Floor Structure: | WOOD W/SUBFLOOR | | Foundation: | CONCRETE | Heating: | BASEBOARD ELECTRIC | | Interior Finish: | DRYWALL PAINT | Plumbing Fixture Cnt: | 99 | | Roof Slope: | 5" IN 12" | Roof Structure/Cover: | CJ ASPHALT |
|
| | Type | Description | Class CD | Sub Class CD | Year Built | Area |
| | BAS | BASE/MAIN FLOOR | 3 | 0 | 1990 | 31245.0 |
| | OP1 | OPEN PORCH SLAB | 3 | 0 | 1990 | 864.0 |
| | OP1 | OPEN PORCH SLAB | 3 | 0 | 1990 | 3582.8 |
| | OP4 | OPEN PORCH W/CEILING-ROOF | 3 | 0 | 1990 | 225.0 |
| | OWP | OPEN WOOD PORCH W/STEPS | 3 | 0 | 1990 | 624.0 |
| | OWC | OPEN WOOD PORCH W/STEPS/ROOF/C | 3 | 0 | 1990 | 624.0 |
| | ENP | ENCLOSED PORCH | 3 | 0 | 1990 | 120.0 |
| | UTY | STORAGE/UTILITY | 3 | 0 | 1990 | 80.0 |
| | oPV1 | PV/ASPH 2" | 3 | 0 | 1990 | 10018.0 |
Sketch
Property Image
Land
| 1 | 61 | MULTIPLE RESIDENCES | 1.5956 | 69504.00 | 0.00 | 0.00 | 1.00 | $2,085,120 | $0 |
Roll Value History
| 2026 | N/A | N/A | N/A | N/A | N/A |
| 2025 | $1,606,589 | $2,085,120 | $0 | $3,691,709 | $0 |
| 2024 | $1,649,709 | $2,085,120 | $0 | $3,734,829 | $0 |
| 2023 | $1,375,080 | $2,085,120 | $0 | $3,460,200 | $0 |
| 2022 | $1,113,902 | $2,085,120 | $0 | $3,199,022 | $0 |
| 2021 | $1,109,564 | $2,085,120 | $0 | $3,194,684 | $0 |
| 2020 | $1,108,914 | $2,085,120 | $0 | $3,194,034 | $0 |
| 2019 | $1,022,999 | $2,085,120 | $0 | $3,108,119 | $0 |
| 2018 | $447,133 | $382,272 | $0 | $829,405 | $0 |
| 2017 | $487,687 | $383,328 | $0 | $871,015 | $871,015 |
| 2016 | $487,687 | $383,328 | $0 | $871,015 | $871,015 |
| 2015 | $687,078 | $183,937 | $0 | $871,015 | $871,015 |
| 2014 | $1,034,726 | $183,937 | $0 | $1,218,663 | $1,218,663 |
| 2013 | $262,532 | $183,937 | $0 | $446,469 | $446,469 |
| 2012 | $262,532 | $183,937 | $0 | $446,469 | $446,469 |
| 2011 | $262,532 | $183,937 | $0 | $446,469 | $446,469 |
| 2010 | $505,304 | $43,214 | $0 | $548,518 | $548,518 |
| 2009 | $501,223 | $48,093 | $0 | $549,316 | $549,316 |
| 2008 | $373,313 | $167,720 | $0 | $541,033 | $541,033 |
| 2007 | $458,093 | $196,326 | $0 | $654,419 | $654,419 |
Deed and Sales History
| 1 | 12/10/2018 | WD | Warranty Deed | CAMBRIDGE COVE LTD PARTNERSHIP | SAG PRESERVATION PORTFOLIO | | | $0.00 | 36925 | 4456205 |
| 2 | 05/01/1990 | WD | Warranty Deed | OAK, TREE I | CAMBRIDGE, COVE L | | | $203,000.00 | 2987 | 90009747 |
| 3 | 04/01/1990 | OTHER | Other - Misc. Documents | OAK, TREE I | OAK, TREE I | | | $0.00 | 63623 | 0 |
| 4 | 01/01/1900 | OTHER | Other - Misc. Documents | Unknown | OAK, TREE I | | | $0.00 | 82269 | 88008374 |
Payout Agreement
| No payout information available.. |