Property
Account |
| Property ID: | 638732 | Abbreviated Legal Description: | IN NW NW: W/2 NW NW FR 461-0660 |
| Geographic ID: | R23333-461-0330 | Agent Code: | |
| Type: | Real | | |
| Tax Area: | 112 - APPRAISER-OH Schl Dist, outside OH, improved, greater than 1 acre | Land Use Code | 11 |
| Open Space: | N | DFL | N |
| Historic Property: | N | Remodel Property: | N |
| Multi-Family Redevelopment: | N | | |
| Township: | 33 | Section: | 33 |
| Range: | R2 |
Location |
| Address: | 845 E CRESCENT HARBOR RD OAK HARBOR, WA 98277 | Mapsco: | |
| Neighborhood: | Cycle 6 | Map ID: | 653 |
| Neighborhood CD: | 6 |
Owner |
| Name: | GABOR, WILLIAM A | Owner ID: | 28267 |
| Mailing Address: | 845 E CRESCENT HARBOR RD OAK HARBOR, WA 98277-9149 | % Ownership: | 100.0000000000% |
| | | Exemptions: | |
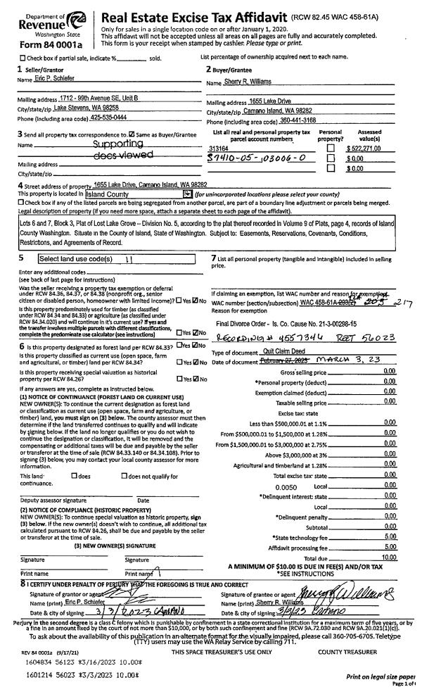
Taxes and Assessment Details
Values
| (+) Improvement Homesite Value: | + | $0 | |
| (+) Improvement Non-Homesite Value: | + | $265,295 | |
| (+) Land Homesite Value: | + | $0 | |
| (+) Land Non-Homesite Value: | + | $380,000 | |
| (+) Curr Use (HS): | + | $0 | $0 |
| (+) Curr Use (NHS): | + | $0 | $0 |
| | | -------------------------- | |
| (=) Market Value: | = | $645,295 | |
| (–) Productivity Loss: | – | $0 | |
| | | -------------------------- | |
| (=) Subtotal: | = | $645,295 | |
| (+) Senior Appraised Value: | + | $0 | |
| (+) Non-Senior Appraised Value: | + | $645,295 | |
| | | -------------------------- | |
| (=) Total Appraised Value: | = | $645,295 | |
| (–) Senior Exemption Loss: | – | $0 | |
| (–) Exemption Loss: | – | $0 | |
| | | -------------------------- | |
| (=) Taxable Value: | = | $645,295 | |
Taxing Jurisdiction
| Owner: | GABOR, WILLIAM A | | |
| % Ownership: | 100.0000000000% | | |
| Total Value: | $645,295 | | |
| Tax Area: | 112 - APPRAISER-OH Schl Dist, outside OH, improved, greater than 1 acre |
| CF | Conservation Futures | 0.0316035091 | $645,295 | $645,295 | $20.39 | | |
| CEM1 | Cemetery #1 | 0.0040320932 | $645,295 | $645,295 | $2.60 | | |
| FIRE2 | Fire & Rescue Dist #2 N Whidbey GEN | 0.5475949600 | $645,295 | $645,295 | $353.36 | | |
| HOBOND | Hospital BOND | 0.1910887512 | $645,295 | $645,295 | $123.31 | | |
| HOGEN | Hospital GEN | 0.3902502903 | $645,295 | $645,295 | $251.83 | | |
| CE | County Current Expense | 0.3708482477 | $645,295 | $645,295 | $239.31 | | |
| CR | County Roads | 0.4584763726 | $645,295 | $645,295 | $295.85 | | |
| ISLANDEMS | Hospital GEN (EMS) | 0.5000000000 | $645,295 | $645,295 | $322.65 | | |
| LIB | Library Sno-Isle GEN | 0.3153421757 | $645,295 | $645,295 | $203.49 | | |
| NWHIDPRMT | P & R N Whidbey GEN | 0.2004466701 | $645,295 | $645,295 | $129.35 | | |
| SCH201MO | School 201 Enrichment | 1.8559231640 | $645,295 | $645,295 | $1,197.62 | | |
| ST | State School | 1.3035497053 | $645,295 | $645,295 | $841.17 | | |
| ST2 | State School Part 2 | 0.8169543533 | $645,295 | $645,295 | $527.18 | | |
| | Total Tax Rate: | 6.9861102925 | | | | | |
| | | | | Taxes w/Current Exemptions: | $4,508.11 | | |
| | | | | Taxes w/o Exemptions: | $4,508.11 | | |
Improvement / Building
| Improvement #1: | MANUFACTURED HOME | State Code: | Y | 1836.0 sqft | Value: | $265,295 |
| Bathrooms: | 0 | Bedrooms: | 0 | | Ceiling: | PLASTER PAINTED | Cooling: | EVAP NO DUCT | | Exterior Wall/Cover: | VINYL | Floor Covering: | CARPET 100% | | Floor Structure: | SLAB ON GRADE | Foundation: | SLAB | | Heating: | FHA ELECTRIC | Interior Finish: | PLASTER | | Plumbing Fixture Cnt: | 1 | Roof Slope: | FLAT | | Roof Structure/Cover: | CJ ALUMINIUM HEAVY |   |   |
|
| | Type | Description | Class CD | Sub Class CD | Year Built | Area |
| | BAS | BASE/MAIN FLOOR | 4 | 0 | 1995 | 1836.0 |
| | UTY | STORAGE/UTILITY | 4 | 0 | 1995 | 3444.0 |
| | OCP | OPEN CARPORT | 4 | 0 | 1995 | 576.0 |
| | CPD | OPEN CARPORT DIRT FLOOR | 4 | 0 | 1995 | 768.0 |
| | OP1 | OPEN PORCH SLAB | 4 | 0 | 1995 | 680.0 |
| | CPD | OPEN CARPORT DIRT FLOOR | 4 | 0 | 1995 | 442.0 |
Sketch
Property Image
Land
| 1 | 35 | AC (10.00-30.99) | 20.0000 | 871200.00 | 0.00 | 0.00 | 1.00 | $380,000 | $0 |
Roll Value History
| 2026 | N/A | N/A | N/A | N/A | N/A |
| 2025 | $265,295 | $380,000 | $0 | $645,295 | $645,295 |
| 2024 | $268,979 | $340,000 | $0 | $608,979 | $608,979 |
| 2023 | $240,290 | $320,000 | $0 | $560,290 | $560,290 |
| 2022 | $161,510 | $310,000 | $0 | $471,510 | $471,510 |
| 2021 | $150,249 | $250,000 | $0 | $400,249 | $400,249 |
| 2020 | $149,942 | $240,000 | $0 | $389,942 | $389,942 |
| 2019 | $131,910 | $300,000 | $0 | $431,910 | $431,910 |
| 2018 | $133,834 | $240,000 | $0 | $373,834 | $373,834 |
| 2017 | $135,759 | $240,000 | $0 | $375,759 | $375,759 |
| 2016 | $129,648 | $240,000 | $0 | $369,648 | $369,648 |
| 2015 | $131,754 | $240,000 | $0 | $371,754 | $371,754 |
| 2014 | $132,808 | $260,000 | $0 | $392,808 | $392,808 |
| 2013 | $134,914 | $260,000 | $0 | $394,914 | $394,914 |
| 2012 | $137,021 | $180,000 | $0 | $317,021 | $317,021 |
| 2011 | $139,127 | $200,000 | $0 | $339,127 | $339,127 |
| 2010 | $163,493 | $200,000 | $0 | $363,493 | $363,493 |
| 2009 | $166,476 | $300,000 | $0 | $466,476 | $466,476 |
| 2008 | $172,296 | $210,000 | $0 | $382,296 | $382,296 |
| 2007 | $177,850 | $319,000 | $0 | $496,850 | $496,850 |
Deed and Sales History
| 1 | 07/01/1995 | OTHER | Other - Misc. Documents | GABOR, WILLIAM A | GABOR, BILL | | | $65,272.00 | 11111111 | 0 |
| 2 | 08/01/1989 | WD | Warranty Deed | LIESEKE, ERNEST H | GABOR, WILLIAM A | | | $45,000.00 | 93492 | 89011723 |
| 3 | 01/01/1900 | OTHER | Other - Misc. Documents | Unknown | LIESEKE, ERNEST H | | | $0.00 | 81647 | 88006207 |
Payout Agreement
| No payout information available.. |