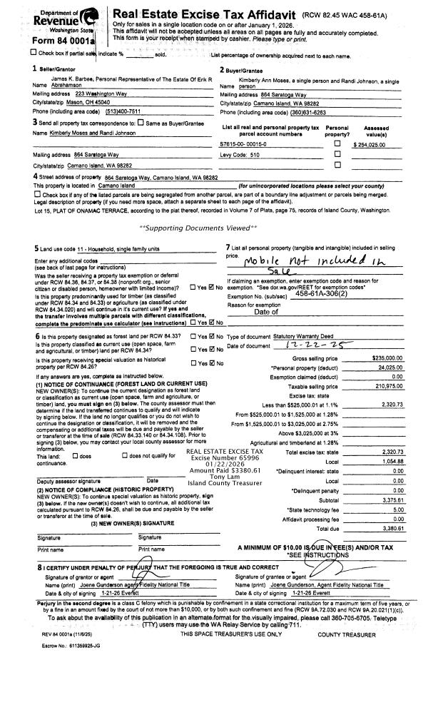
Property
Account |
| Property ID: | 638812 | Abbreviated Legal Description: | LOT 1 SP 88-25.23006-452-4440 V2 SP P209 AF#89012361 |
| Geographic ID: | R23006-427-3880 | Agent Code: | |
| Type: | Real | | |
| Tax Area: | 312 - APPRAISER-Cpvl Schl Dist, outside Cpvl, improved, greater than 1 acre | Land Use Code | 11 |
| Open Space: | N | DFL | N |
| Historic Property: | N | Remodel Property: | N |
| Multi-Family Redevelopment: | N | | |
| Township: | 30 | Section: | 06 |
| Range: | R2 |
Location |
| Address: | 307 LAKE HANCOCK DR COUPEVILLE, WA 98239 | Mapsco: | |
| Neighborhood: | Cycle 2 | Map ID: | 360 |
| Neighborhood CD: | 2 |
Owner |
| Name: | ROBERTS TTEE, STANFORD D | Owner ID: | 315974 |
| Mailing Address: | 307 LAKE HANCOCK DR COUPEVILLE, WA 98239 | % Ownership: | 100.0000000000% |
| | | Exemptions: | |
Taxes and Assessment Details
Values
| (+) Improvement Homesite Value: | + | $0 | |
| (+) Improvement Non-Homesite Value: | + | $647,953 | |
| (+) Land Homesite Value: | + | $0 | |
| (+) Land Non-Homesite Value: | + | $700,000 | |
| (+) Curr Use (HS): | + | $0 | $0 |
| (+) Curr Use (NHS): | + | $0 | $0 |
| | | -------------------------- | |
| (=) Market Value: | = | $1,347,953 | |
| (–) Productivity Loss: | – | $0 | |
| | | -------------------------- | |
| (=) Subtotal: | = | $1,347,953 | |
| (+) Senior Appraised Value: | + | $0 | |
| (+) Non-Senior Appraised Value: | + | $1,347,953 | |
| | | -------------------------- | |
| (=) Total Appraised Value: | = | $1,347,953 | |
| (–) Senior Exemption Loss: | – | $0 | |
| (–) Exemption Loss: | – | $0 | |
| | | -------------------------- | |
| (=) Taxable Value: | = | $1,347,953 | |
Taxing Jurisdiction
| Owner: | ROBERTS TTEE, STANFORD D | | |
| % Ownership: | 100.0000000000% | | |
| Total Value: | $1,347,953 | | |
| Tax Area: | 312 - APPRAISER-Cpvl Schl Dist, outside Cpvl, improved, greater than 1 acre |
| CF | Conservation Futures | 0.0316035091 | $1,347,953 | $1,347,953 | $42.60 | | |
| CEM2 | Cemetery #2 | 0.0095056933 | $1,347,953 | $1,347,953 | $12.81 | | |
| FIRE5 | Fire & Rescue Dist #5 C Whidbey GEN | 1.2008080668 | $1,347,953 | $1,347,953 | $1,618.63 | | |
| FIRE5BOND | Fire & Rescue Dist #5 C Whidbey BOND | 0.1400090713 | $1,347,953 | $1,347,953 | $188.73 | | |
| HOBOND | Hospital BOND | 0.1910887512 | $1,347,953 | $1,347,953 | $257.58 | | |
| HOGEN | Hospital GEN | 0.3902502903 | $1,347,953 | $1,347,953 | $526.04 | | |
| CE | County Current Expense | 0.3708482477 | $1,347,953 | $1,347,953 | $499.89 | | |
| CR | County Roads | 0.4584763726 | $1,347,953 | $1,347,953 | $618.00 | | |
| ISLANDEMS | Hospital GEN (EMS) | 0.5000000000 | $1,347,953 | $1,347,953 | $673.98 | | |
| LIB | Library Sno-Isle GEN | 0.3153421757 | $1,347,953 | $1,347,953 | $425.07 | | |
| LIBCAP | Library Sno-Isle BOND (Cap Fac Imp Area) | 0.0543427938 | $1,347,953 | $1,347,953 | $73.25 | | |
| POCOUP | Port of Coupeville GEN | 0.1093371703 | $1,347,953 | $1,347,953 | $147.38 | | |
| POCOUPIDD | Port of Coupeville IDD | 0.3409740022 | $1,347,953 | $1,347,953 | $459.62 | | |
| COUPSDTECH | School 204 CP (TECH) | 0.7545480007 | $1,347,953 | $1,347,953 | $1,017.10 | | |
| SCH204MO | School 204 Enrichment | 0.6716186034 | $1,347,953 | $1,347,953 | $905.31 | | |
| ST | State School | 1.3035497053 | $1,347,953 | $1,347,953 | $1,757.12 | | |
| ST2 | State School Part 2 | 0.8169543533 | $1,347,953 | $1,347,953 | $1,101.22 | | |
| | Total Tax Rate: | 7.6592568070 | | | | | |
| | | | | Taxes w/Current Exemptions: | $10,324.33 | | |
| | | | | Taxes w/o Exemptions: | $10,324.33 | | |
Improvement / Building
| Improvement #1: | RESIDENTIAL | State Code: | Y | 3055.1 sqft | Value: | $647,953 |
| Bathrooms: | 4 | Bedrooms: | 3 | | Ceiling: | DRYWALL PAINTED | Exterior Wall/Cover: | PLY/HARDBOARD T-111 | | Floor Covering: | HARDWOOD/CARP 60-40 | Floor Structure: | WOOD W/SUBFLOOR | | Foundation: | CONCRETE | Heating: | FHA GAS | | Interior Finish: | DRYWALL PAINT | Plumbing Fixture Cnt: | 16 | | Roof Slope: | 5" IN 12" | Roof Structure/Cover: | CJ ASPHALT |
|
| | Type | Description | Class CD | Sub Class CD | Year Built | Area |
| | BAS | BASE/MAIN FLOOR | 5 | 0 | 1991 | 1867.4 |
| | UB8 | BASEMENT UNFINISHED 8" | 5 | 0 | 1991 | 312.9 |
| | OP4 | OPEN PORCH W/CEILING-ROOF | 5 | 0 | 1991 | 129.6 |
| | AGR | ATTACHED GARAGE | 5 | 0 | 1991 | 616.6 |
| | UPS | UPPER STORY | 5 | 0 | 1991 | 1187.7 |
| | BAW | BALCONY WOOD RAIL | 5 | 0 | 1991 | 32.0 |
| | OWP | OPEN WOOD PORCH W/STEPS | 5 | 0 | 1991 | 957.1 |
| | DGR | DETACHED GARAGE | 5 | 0 | 1991 | 192.1 |
Sketch
Property Image
Land
| 1 | HB | HIGH BLUFF | 1.0100 | 43995.60 | 97.00 | 0.00 | 1.00 | $700,000 | $0 |
Roll Value History
| 2026 | N/A | N/A | N/A | N/A | N/A |
| 2025 | $647,953 | $700,000 | $0 | $1,347,953 | $1,347,953 |
| 2024 | $631,805 | $700,000 | $0 | $1,331,805 | $1,331,805 |
| 2023 | $639,881 | $675,000 | $0 | $1,314,881 | $1,314,881 |
| 2022 | $586,714 | $550,000 | $0 | $1,136,714 | $1,136,714 |
| 2021 | $516,558 | $450,000 | $0 | $966,558 | $966,558 |
| 2020 | $503,147 | $400,000 | $0 | $903,147 | $903,147 |
| 2019 | $417,600 | $425,000 | $0 | $842,600 | $842,600 |
| 2018 | $377,136 | $400,000 | $0 | $777,136 | $777,136 |
| 2017 | $379,443 | $350,000 | $0 | $729,443 | $729,443 |
| 2016 | $384,491 | $350,000 | $0 | $734,491 | $734,491 |
| 2015 | $389,537 | $350,000 | $0 | $739,537 | $739,537 |
| 2014 | $394,584 | $350,000 | $0 | $744,584 | $744,584 |
| 2013 | $411,444 | $290,467 | $0 | $701,911 | $701,911 |
| 2012 | $416,643 | $290,467 | $0 | $707,110 | $707,110 |
| 2011 | $421,841 | $290,467 | $0 | $712,308 | $712,308 |
| 2010 | $431,507 | $290,467 | $0 | $721,974 | $721,974 |
| 2009 | $450,013 | $387,288 | $0 | $837,301 | $837,301 |
| 2008 | $455,631 | $387,288 | $0 | $842,919 | $842,919 |
| 2007 | $456,483 | $261,052 | $0 | $717,535 | $717,535 |
Deed and Sales History
| 1 | 03/19/2025 | QCD | Quit Claim Deed | ROBERTS, STANFORD D | ROBERTS TTEE, STANFORD D | | | $0.00 | 62971 | 4583855 |
| 2 | 03/19/2025 | PRD | Personal Representatives Deed | STANFORD D ROBERTS, PR | ROBERTS TTEE, STANFORD D | | | $0.00 | 62970 | 4583854 |
| 3 | 09/01/1989 | WD | Warranty Deed | MCINTOSH, ROBERT D | ROBERTS, STANFORD D | | | $58,500.00 | 94023 | 89013315 |
| 4 | 01/01/1900 | OTHER | Other - Misc. Documents | Unknown | MCINTOSH, ROBERT D | | | $0.00 | 83080 | 88011475 |
Payout Agreement
| No payout information available.. |