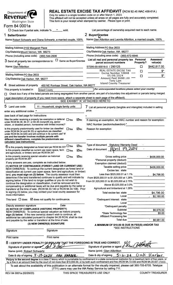
Property
Account |
| Property ID: | 639090 | Abbreviated Legal Description: | LOT 1 OH-SP 3-89.13334.040-0760 V2 SP P212 AF#89014725 (HEATHERWOOD HEIGHTS) TGW & SUB EZ AF#95009669 |
| Geographic ID: | R13334-009-0040 | Agent Code: | |
| Type: | Real | | |
| Tax Area: | 100 - APPRAISER-OH Schl Dist, in OH | Land Use Code | 11 |
| Open Space: | N | DFL | N |
| Historic Property: | N | Remodel Property: | N |
| Multi-Family Redevelopment: | N | | |
| Township: | 33 | Section: | 34 |
| Range: | R1 |
Location |
| Address: | 1801 SW LOERLAND DR OAK HARBOR, WA 98277 | Mapsco: | |
| Neighborhood: | Cycle 1 | Map ID: | 252 |
| Neighborhood CD: | 1 |
Owner |
| Name: | JANSEN, NELLY | Owner ID: | 279982 |
| Mailing Address: | 1801 SW LOERLAND DR OAK HARBOR, WA 98277 | % Ownership: | 100.0000000000% |
| | | Exemptions: | |
Taxes and Assessment Details
Values
| (+) Improvement Homesite Value: | + | $0 | |
| (+) Improvement Non-Homesite Value: | + | $289,833 | |
| (+) Land Homesite Value: | + | $0 | |
| (+) Land Non-Homesite Value: | + | $200,000 | |
| (+) Curr Use (HS): | + | $0 | $0 |
| (+) Curr Use (NHS): | + | $0 | $0 |
| | | -------------------------- | |
| (=) Market Value: | = | $489,833 | |
| (–) Productivity Loss: | – | $0 | |
| | | -------------------------- | |
| (=) Subtotal: | = | $489,833 | |
| (+) Senior Appraised Value: | + | $0 | |
| (+) Non-Senior Appraised Value: | + | $489,833 | |
| | | -------------------------- | |
| (=) Total Appraised Value: | = | $489,833 | |
| (–) Senior Exemption Loss: | – | $0 | |
| (–) Exemption Loss: | – | $0 | |
| | | -------------------------- | |
| (=) Taxable Value: | = | $489,833 | |
Taxing Jurisdiction
| Owner: | JANSEN, NELLY | | |
| % Ownership: | 100.0000000000% | | |
| Total Value: | $489,833 | | |
| Tax Area: | 100 - APPRAISER-OH Schl Dist, in OH |
| CF | Conservation Futures | 0.0316035091 | $489,833 | $489,833 | $15.48 | | |
| CEM1 | Cemetery #1 | 0.0040320932 | $489,833 | $489,833 | $1.98 | | |
| COH | City of Oak Harbor | 2.3001546061 | $489,833 | $489,833 | $1,126.69 | | |
| OAKBOND | City of Oak Harbor BOND | 0.1926904192 | $489,833 | $489,833 | $94.39 | | |
| HOBOND | Hospital BOND | 0.1910887512 | $489,833 | $489,833 | $93.60 | | |
| HOGEN | Hospital GEN | 0.3902502903 | $489,833 | $489,833 | $191.16 | | |
| CE | County Current Expense | 0.3708482477 | $489,833 | $489,833 | $181.65 | | |
| ISLANDEMS | Hospital GEN (EMS) | 0.5000000000 | $489,833 | $489,833 | $244.92 | | |
| LIB | Library Sno-Isle GEN | 0.3153421757 | $489,833 | $489,833 | $154.47 | | |
| NWHIDPRMT | P & R N Whidbey GEN | 0.2004466701 | $489,833 | $489,833 | $98.19 | | |
| SCH201MO | School 201 Enrichment | 1.8559231640 | $489,833 | $489,833 | $909.09 | | |
| ST | State School | 1.3035497053 | $489,833 | $489,833 | $638.52 | | |
| ST2 | State School Part 2 | 0.8169543533 | $489,833 | $489,833 | $400.17 | | |
| | Total Tax Rate: | 8.4728839852 | | | | | |
| | | | | Taxes w/Current Exemptions: | $4,150.31 | | |
| | | | | Taxes w/o Exemptions: | $4,150.31 | | |
Improvement / Building
| Improvement #1: | RESIDENTIAL | State Code: | Y | 1389.3 sqft | Value: | $289,833 |
| Bathrooms: | 1.75 | Bedrooms: | 3 | | Ceiling: | DRYWALL PAINTED | Exterior Wall/Cover: | PLY/HARDBOARD T-111 | | Floor Covering: | CARPET/VINYL 80-20 | Floor Structure: | WOOD W/SUBFLOOR | | Foundation: | CONCRETE | Heating: | FHA GAS | | Interior Finish: | DRYWALL PAINT | Plumbing Fixture Cnt: | 11 | | Roof Slope: | 5" IN 12" | Roof Structure/Cover: | CJ ASPHALT |
|
| | Type | Description | Class CD | Sub Class CD | Year Built | Area |
| | BAS | BASE/MAIN FLOOR | 3 | 0 | 1990 | 1389.3 |
| | OWC | OPEN WOOD PORCH W/STEPS/ROOF/C | 3 | 0 | 1990 | 71.5 |
| | AGR | ATTACHED GARAGE | 3 | 0 | 1990 | 386.0 |
| | OWP | OPEN WOOD PORCH W/STEPS | 3 | 0 | 1990 | 30.0 |
| | OWP | OPEN WOOD PORCH W/STEPS | 3 | 0 | 1990 | 178.4 |
Sketch
Property Image
Land
| 1 | 15 | SQ (12001-21780) | 0.0000 | 13503.60 | 0.00 | 0.00 | 1.00 | $200,000 | $0 |
Roll Value History
| 2026 | N/A | N/A | N/A | N/A | N/A |
| 2025 | $289,833 | $200,000 | $0 | $489,833 | $489,833 |
| 2024 | $293,233 | $190,000 | $0 | $483,233 | $483,233 |
| 2023 | $289,833 | $180,000 | $0 | $469,833 | $469,833 |
| 2022 | $265,526 | $180,000 | $0 | $445,526 | $445,526 |
| 2021 | $233,572 | $135,000 | $0 | $368,572 | $368,572 |
| 2020 | $226,901 | $100,000 | $0 | $326,901 | $326,901 |
| 2019 | $161,742 | $150,000 | $0 | $311,742 | $311,742 |
| 2018 | $162,195 | $130,000 | $0 | $292,195 | $292,195 |
| 2017 | $127,845 | $110,000 | $0 | $237,845 | $237,845 |
| 2016 | $129,573 | $90,000 | $0 | $219,573 | $219,573 |
| 2015 | $131,300 | $70,000 | $0 | $201,300 | $201,300 |
| 2014 | $133,028 | $60,000 | $0 | $193,028 | $193,028 |
| 2013 | $134,754 | $60,000 | $0 | $194,754 | $194,754 |
| 2012 | $136,482 | $60,000 | $0 | $196,482 | $127,713 |
| 2011 | $138,465 | $50,000 | $0 | $188,465 | $122,502 |
| 2010 | $145,755 | $50,000 | $0 | $195,755 | $127,241 |
| 2009 | $151,982 | $76,360 | $0 | $228,342 | $147,442 |
| 2008 | $153,807 | $92,000 | $0 | $245,807 | $147,442 |
| 2007 | $155,624 | $92,000 | $0 | $247,624 | $147,442 |
Deed and Sales History
| 1 | 05/19/2017 | WD | Warranty Deed | SLADE, SEAN M | JANSEN, NELLY | | | $317,900.00 | 29368 | 4422894 |
| 2 | 09/16/2015 | ESTSEPPROP | Establish Separate Property | SLADE, SEAN M | SLADE, SEAN M | | | $0.00 | 21437 | 4386400 |
| 3 | 08/14/2015 | SPWARDEED | Special Warranty Deed | US BANK NATIONAL ASSOCIATION TRUSTEE | SLADE, SEAN M | | | $211,000.00 | 21436 | 4386398 |
| 4 | 05/12/2015 | SHERIFFD | Sheriff Deed | US BANK NATIONAL ASSOCIATION TRUSTEE | US BANK NATIONAL ASSOCIATION TRUSTEE | | | $0.00 | 20058 | 4380430 |
| 5 | 05/12/2015 | SHERIFFD | Sheriff Deed | SELLERS, KELLY R | US BANK NATIONAL ASSOCIATION TRUSTEE | | | $0.00 | 19815 | 4379456 |
| 6 | 05/18/2006 | WD | Warranty Deed | MCKINLEY, CYNTHIA | SELLERS, KELLY R | | | $260,000.00 | 62330 | 4171643 |
| 7 | 12/31/2001 | ESTSEPPROP | Establish Separate Property | MCKINLEY, MICHAEL L | MCKINLEY, CYNTHIA | | | $0.00 | 22630 | 4025042 |
| 8 | 06/01/1990 | WD | Warranty Deed | KING'S, MEN C | MCKINLEY, MICHAEL L | | | $92,900.00 | 3783 | 90012342 |
| 9 | 01/01/1900 | OTHER | Other - Misc. Documents | Unknown | KING'S, MEN C | | | $0.00 | 91919 | 89006644 |
Payout Agreement
| No payout information available.. |