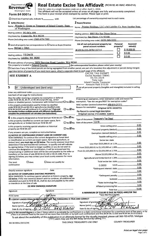
Property
Account |
| Property ID: | 639116 | Abbreviated Legal Description: | LOT 3 OH-SP 3-89.13334.040-0760 V2 SP P212 AF#89014725 (HEATHERWOOD HEIGHTS) TGW & SUB EZ AF#95009669 |
| Geographic ID: | R13334-009-0220 | Agent Code: | |
| Type: | Real | | |
| Tax Area: | 100 - APPRAISER-OH Schl Dist, in OH | Land Use Code | 11 |
| Open Space: | N | DFL | N |
| Historic Property: | N | Remodel Property: | N |
| Multi-Family Redevelopment: | N | | |
| Township: | 33 | Section: | 34 |
| Range: | R1 |
Location |
| Address: | 1751 SW LOERLAND DR OAK HARBOR, WA 98277 | Mapsco: | |
| Neighborhood: | Cycle 1 | Map ID: | 252 |
| Neighborhood CD: | 1 |
Owner |
| Name: | KLASZKY, EDWARD P | Owner ID: | 72333 |
| Mailing Address: | JOSEPHINE A KLASZKY 1751 SW LOERLAND DR OAK HARBOR, WA 98277-8021 | % Ownership: | 100.0000000000% |
| | | Exemptions: | |
Taxes and Assessment Details
Values
| (+) Improvement Homesite Value: | + | $0 | |
| (+) Improvement Non-Homesite Value: | + | $223,734 | |
| (+) Land Homesite Value: | + | $0 | |
| (+) Land Non-Homesite Value: | + | $200,000 | |
| (+) Curr Use (HS): | + | $0 | $0 |
| (+) Curr Use (NHS): | + | $0 | $0 |
| | | -------------------------- | |
| (=) Market Value: | = | $423,734 | |
| (–) Productivity Loss: | – | $0 | |
| | | -------------------------- | |
| (=) Subtotal: | = | $423,734 | |
| (+) Senior Appraised Value: | + | $0 | |
| (+) Non-Senior Appraised Value: | + | $423,734 | |
| | | -------------------------- | |
| (=) Total Appraised Value: | = | $423,734 | |
| (–) Senior Exemption Loss: | – | $0 | |
| (–) Exemption Loss: | – | $0 | |
| | | -------------------------- | |
| (=) Taxable Value: | = | $423,734 | |
Taxing Jurisdiction
| Owner: | KLASZKY, EDWARD P | | |
| % Ownership: | 100.0000000000% | | |
| Total Value: | $423,734 | | |
| Tax Area: | 100 - APPRAISER-OH Schl Dist, in OH |
| CF | Conservation Futures | 0.0316035091 | $423,734 | $423,734 | $13.39 | | |
| CEM1 | Cemetery #1 | 0.0040320932 | $423,734 | $423,734 | $1.71 | | |
| COH | City of Oak Harbor | 2.3001546061 | $423,734 | $423,734 | $974.65 | | |
| OAKBOND | City of Oak Harbor BOND | 0.1926904192 | $423,734 | $423,734 | $81.65 | | |
| HOBOND | Hospital BOND | 0.1910887512 | $423,734 | $423,734 | $80.97 | | |
| HOGEN | Hospital GEN | 0.3902502903 | $423,734 | $423,734 | $165.36 | | |
| CE | County Current Expense | 0.3708482477 | $423,734 | $423,734 | $157.14 | | |
| ISLANDEMS | Hospital GEN (EMS) | 0.5000000000 | $423,734 | $423,734 | $211.87 | | |
| LIB | Library Sno-Isle GEN | 0.3153421757 | $423,734 | $423,734 | $133.62 | | |
| NWHIDPRMT | P & R N Whidbey GEN | 0.2004466701 | $423,734 | $423,734 | $84.94 | | |
| SCH201MO | School 201 Enrichment | 1.8559231640 | $423,734 | $423,734 | $786.42 | | |
| ST | State School | 1.3035497053 | $423,734 | $423,734 | $552.36 | | |
| ST2 | State School Part 2 | 0.8169543533 | $423,734 | $423,734 | $346.17 | | |
| | Total Tax Rate: | 8.4728839852 | | | | | |
| | | | | Taxes w/Current Exemptions: | $3,590.25 | | |
| | | | | Taxes w/o Exemptions: | $3,590.25 | | |
Improvement / Building
| Improvement #1: | RESIDENTIAL | State Code: | Y | 1368.7 sqft | Value: | $223,734 |
| Bathrooms: | 2 | Bedrooms: | 3 | | Ceiling: | DRYWALL PAINTED | Exterior Wall/Cover: | PLY/HARDBOARD T-111 | | Floor Covering: | CARPET/VINYL 80-20 | Floor Structure: | WOOD W/SUBFLOOR | | Foundation: | CONCRETE | Heating: | FHA GAS | | Interior Finish: | DRYWALL PAINT | Plumbing Fixture Cnt: | 10 | | Roof Slope: | 4" IN 12" | Roof Structure/Cover: | CJ ASPHALT |
|
| | Type | Description | Class CD | Sub Class CD | Year Built | Area |
| | BAS | BASE/MAIN FLOOR | 3 | 0 | 1990 | 1368.7 |
| | AGR | ATTACHED GARAGE | 3 | 0 | 1990 | 399.0 |
| | OWP | OPEN WOOD PORCH W/STEPS | 3 | 0 | 1990 | 192.0 |
| | OWC | OPEN WOOD PORCH W/STEPS/ROOF/C | 3 | 0 | 1990 | 36.0 |
Sketch
Property Image
Land
| 1 | 15 | SQ (12001-21780) | 0.0000 | 0.00 | 0.00 | 0.00 | 1.00 | $200,000 | $0 |
Roll Value History
| 2026 | N/A | N/A | N/A | N/A | N/A |
| 2025 | $223,734 | $200,000 | $0 | $423,734 | $423,734 |
| 2024 | $226,920 | $190,000 | $0 | $416,920 | $416,920 |
| 2023 | $230,105 | $180,000 | $0 | $410,105 | $410,105 |
| 2022 | $211,242 | $180,000 | $0 | $391,242 | $391,242 |
| 2021 | $186,192 | $135,000 | $0 | $321,192 | $321,192 |
| 2020 | $181,358 | $100,000 | $0 | $281,358 | $281,358 |
| 2019 | $129,935 | $150,000 | $0 | $279,935 | $279,935 |
| 2018 | $130,361 | $130,000 | $0 | $260,361 | $260,361 |
| 2017 | $126,866 | $110,000 | $0 | $236,866 | $236,866 |
| 2016 | $128,583 | $90,000 | $0 | $218,583 | $218,583 |
| 2015 | $130,296 | $70,000 | $0 | $200,296 | $200,296 |
| 2014 | $132,010 | $60,000 | $0 | $192,010 | $192,010 |
| 2013 | $133,726 | $60,000 | $0 | $193,726 | $193,726 |
| 2012 | $135,439 | $60,000 | $0 | $195,439 | $195,439 |
| 2011 | $139,241 | $50,000 | $0 | $189,241 | $189,241 |
| 2010 | $147,636 | $50,000 | $0 | $197,636 | $197,636 |
| 2009 | $153,902 | $76,360 | $0 | $230,262 | $230,262 |
| 2008 | $155,727 | $92,000 | $0 | $247,727 | $247,727 |
| 2007 | $157,554 | $92,000 | $0 | $249,554 | $249,554 |
Deed and Sales History
| 1 | 06/05/2002 | WD | Warranty Deed | VANNORMAN, ALBERT B | KLASZKY, EDWARD P | | | $147,500.00 | 22290 | 4023070 |
| 2 | 12/01/1993 | WD | Warranty Deed | WRIGHT, ERIC K | VANNORMAN, ALBERT B | | | $128,000.00 | 35075 | 93026481 |
| 3 | 06/01/1990 | WD | Warranty Deed | KING'S, MEN C | WRIGHT, ERIC K | | | $94,200.00 | 3722 | 90012102 |
| 4 | 01/01/1900 | OTHER | Other - Misc. Documents | Unknown | KING'S, MEN C | | | $0.00 | 91919 | 89006644 |
Payout Agreement
| No payout information available.. |