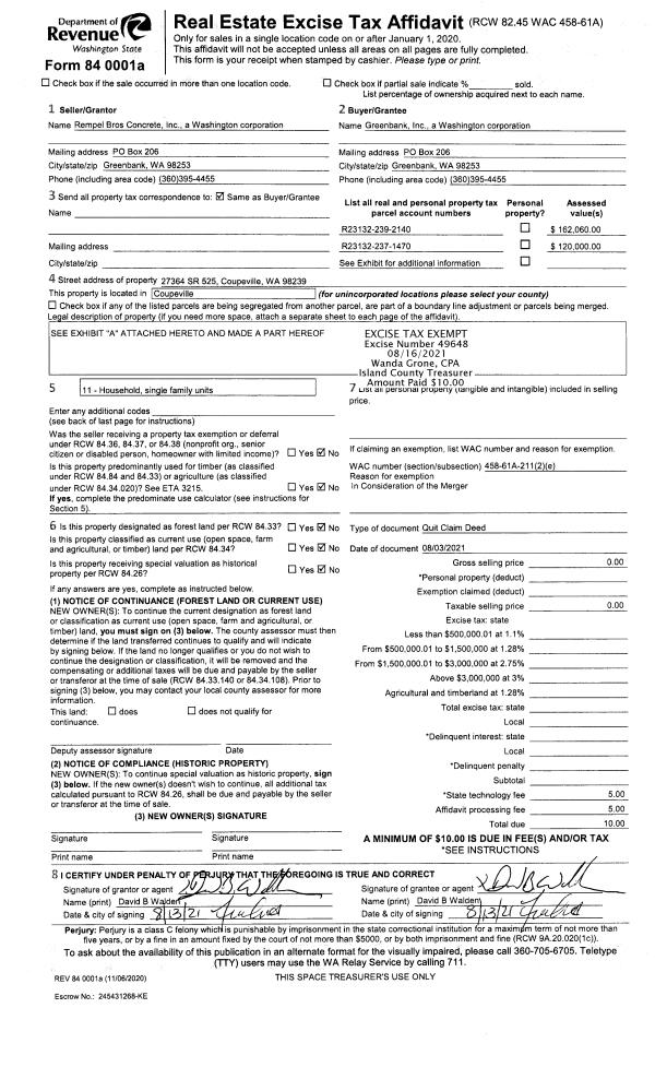
Property
Account |
| Property ID: | 639232 | Abbreviated Legal Description: | IN GL3: BG SWCR GL3 N89*E 508' N1132.48' S88*E169.48' TP SLN 20' EZ TPB S43.97' S88*E98.45' N14*E TO ML WLY ALG ML TP TPB BEARS S0*W S TPB TGW & SUB EZ FR 248-073 & PT 206-065 |
| Geographic ID: | R33034-245-0700 | Agent Code: | |
| Type: | Real | | |
| Tax Area: | 700 - APPRAISER-S Whid Schl Dist, in town of Langley | Land Use Code | 91 |
| Open Space: | N | DFL | N |
| Historic Property: | N | Remodel Property: | N |
| Multi-Family Redevelopment: | N | | |
| Township: | 30 | Section: | 34 |
| Range: | R3 |
Location |
| Address: | 30 SARATOGA CREEK LN LANGLEY, WA 98260 | Mapsco: | |
| Neighborhood: | City of Langley | Map ID: | 912 |
| Neighborhood CD: | 04-L |
Owner |
| Name: | ULLMAN, ROBERT W | Owner ID: | 20273 |
| Mailing Address: | JUDITH REICHENBERG 36 SARATOGA CREEK LN LANGLEY, WA 98260-8657 | % Ownership: | 100.0000000000% |
| | | Exemptions: | |
Taxes and Assessment Details
Values
| (+) Improvement Homesite Value: | + | $0 | |
| (+) Improvement Non-Homesite Value: | + | $0 | |
| (+) Land Homesite Value: | + | $0 | |
| (+) Land Non-Homesite Value: | + | $35,000 | |
| (+) Curr Use (HS): | + | $0 | $0 |
| (+) Curr Use (NHS): | + | $0 | $0 |
| | | -------------------------- | |
| (=) Market Value: | = | $35,000 | |
| (–) Productivity Loss: | – | $0 | |
| | | -------------------------- | |
| (=) Subtotal: | = | $35,000 | |
| (+) Senior Appraised Value: | + | $0 | |
| (+) Non-Senior Appraised Value: | + | $35,000 | |
| | | -------------------------- | |
| (=) Total Appraised Value: | = | $35,000 | |
| (–) Senior Exemption Loss: | – | $0 | |
| (–) Exemption Loss: | – | $0 | |
| | | -------------------------- | |
| (=) Taxable Value: | = | $35,000 | |
Taxing Jurisdiction
| Owner: | ULLMAN, ROBERT W | | |
| % Ownership: | 100.0000000000% | | |
| Total Value: | $35,000 | | |
| Tax Area: | 700 - APPRAISER-S Whid Schl Dist, in town of Langley |
| CF | Conservation Futures | 0.0316035091 | $35,000 | $35,000 | $1.11 | | |
| LANG | City of Langley | 1.0093520762 | $35,000 | $35,000 | $35.33 | | |
| LANGBOND | City of Langley BOND | 1.0326110892 | $35,000 | $35,000 | $36.14 | | |
| FIRE3 | Fire & Rescue Dist #3 S Whidbey GEN | 1.2004855531 | $35,000 | $35,000 | $42.02 | | |
| HOBOND | Hospital BOND | 0.1910887512 | $35,000 | $35,000 | $6.69 | | |
| HOGEN | Hospital GEN | 0.3902502903 | $35,000 | $35,000 | $13.66 | | |
| CE | County Current Expense | 0.3708482477 | $35,000 | $35,000 | $12.98 | | |
| ISLANDEMS | Hospital GEN (EMS) | 0.5000000000 | $35,000 | $35,000 | $17.50 | | |
| LIB | Library Sno-Isle GEN | 0.3153421757 | $35,000 | $35,000 | $11.04 | | |
| PORTWHID | Port of S Whidbey GEN | 0.1094540357 | $35,000 | $35,000 | $3.83 | | |
| SCH206BOND | School 206 BOND | 0.3161759235 | $35,000 | $35,000 | $11.07 | | |
| SCH206MO | School 206 Enrichment | 0.4547169547 | $35,000 | $35,000 | $15.92 | | |
| ST | State School | 1.3035497053 | $35,000 | $35,000 | $45.62 | | |
| ST2 | State School Part 2 | 0.8169543533 | $35,000 | $35,000 | $28.59 | | |
| SWHIDPRBD | P & R S Whidbey BOND | 0.0152817568 | $35,000 | $35,000 | $0.53 | | |
| SWHIDPRBD2 | P & R S Whidbey BOND2 | 0.0138911264 | $35,000 | $35,000 | $0.49 | | |
| SWHIDPRMT | P & R S Whidbey GEN | 0.2053334452 | $35,000 | $35,000 | $7.19 | | |
| | Total Tax Rate: | 8.2769389934 | | | | | |
| | | | | Taxes w/Current Exemptions: | $289.71 | | |
| | | | | Taxes w/o Exemptions: | $289.71 | | |
Improvement / Building
Sketch
| No sketches available for this property. |
Property Image
Land
| 1 | LB | LOW BANK | 0.0000 | 0.00 | 105.00 | 0.00 | 1.00 | $35,000 | $0 |
Roll Value History
| 2026 | N/A | N/A | N/A | N/A | N/A |
| 2025 | $0 | $35,000 | $0 | $35,000 | $35,000 |
| 2024 | $0 | $35,000 | $0 | $35,000 | $35,000 |
| 2023 | $0 | $35,000 | $0 | $35,000 | $35,000 |
| 2022 | $0 | $35,000 | $0 | $35,000 | $35,000 |
| 2021 | $0 | $35,000 | $0 | $35,000 | $35,000 |
| 2020 | $0 | $35,000 | $0 | $35,000 | $35,000 |
| 2019 | $0 | $35,000 | $0 | $35,000 | $35,000 |
| 2018 | $0 | $35,000 | $0 | $35,000 | $35,000 |
| 2017 | $0 | $35,000 | $0 | $35,000 | $35,000 |
| 2016 | $0 | $35,000 | $0 | $35,000 | $35,000 |
| 2015 | $0 | $35,000 | $0 | $35,000 | $35,000 |
| 2014 | $0 | $35,000 | $0 | $35,000 | $35,000 |
| 2013 | $0 | $36,887 | $0 | $36,887 | $36,887 |
| 2012 | $0 | $36,887 | $0 | $36,887 | $36,887 |
| 2011 | $0 | $36,887 | $0 | $36,887 | $36,887 |
| 2010 | $0 | $36,887 | $0 | $36,887 | $36,887 |
| 2009 | $0 | $38,009 | $0 | $38,009 | $38,009 |
| 2008 | $0 | $36,339 | $0 | $36,339 | $36,339 |
| 2007 | $1,402 | $34,741 | $0 | $36,143 | $36,143 |
Deed and Sales History
| 1 | 05/09/2003 | WD | Warranty Deed | MILCZEK, DALE J | ULLMAN, ROBERT W | | | $25,000.00 | 32223 | 4060538 |
| 2 | 01/08/2001 | QCD | Quit Claim Deed | AZAR, GEORGE A | MILCZEK, DALE J | | | $0.00 | 10371 | 20024731 |
| 3 | 04/01/1990 | QCD | Quit Claim Deed | MONROE, ROBERT H | MONROE, ROBERT H | | | $0.00 | 2224 | 90007254 |
| 4 | 04/01/1990 | WD | Warranty Deed | MONROE, MICHAEL W | AZAR, GEORGE A | | | $180,000.00 | 2230 | 90007260 |
| 5 | 12/01/1989 | QCD | Quit Claim Deed | MONROE, ROBERT H | MONROE, MICHAEL W | | | $0.00 | 2225 | 90007255 |
| 6 | 12/01/1989 | QCD | Quit Claim Deed | MONROE, MICHAEL W | MONROE, MICHAEL W | | | $0.00 | 2226 | 90007256 |
| 7 | 12/01/1989 | QCD | Quit Claim Deed | MONROE, MICHAEL W | MONROE, MICHAEL W | | | $0.00 | 2227 | 90007257 |
| 8 | 12/01/1989 | QCD | Quit Claim Deed | MONROE, MICHAEL W | MONROE, MICHAEL W | | | $0.00 | 2228 | 90007258 |
| 9 | 12/01/1989 | QCD | Quit Claim Deed | MONROE, MICHAEL W | MONROE, MICHAEL W | | | $0.00 | 2229 | 90007259 |
| 10 | 10/01/1989 | OTHER | Other - Misc. Documents | MONROE, ROBERT H | MONROE, ROBERT H | | | $0.00 | 63368 | 89015164 |
| 11 | 10/01/1984 | QCD | Quit Claim Deed | Unknown | MONROE, ROBERT H | | | $0.00 | 43127 | 84004935 |
Payout Agreement
| No payout information available.. |