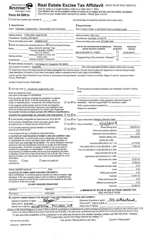
Property
Account |
| Property ID: | 639303 | Abbreviated Legal Description: | IN J CROCKETT DL - BG NWCR J CROCKETT DLC E3177.83' S0*W1060' S25*E59 .90' S64*E130.09' S17*W32' TPB E100'TO ELN SD DC S0*W 190'M/L TO NELY LN FT CASEY RD NELY 125'TP S04*W FR TPB N04*E124'M/L TPB (LOT B SP 79-293 AF#365423) TGW: BG NWCR J CROCKETT DC E |
| Geographic ID: | R13103-270-2050 | Agent Code: | |
| Type: | Real | | |
| Tax Area: | 310 - APPRAISER-Cpvl Schl Dist, outside Cpvl, improved & 1 acre or less | Land Use Code | 11 |
| Open Space: | N | DFL | N |
| Historic Property: | N | Remodel Property: | N |
| Multi-Family Redevelopment: | N | | |
| Township: | 31 | Section: | 03 |
| Range: | R1 |
Location |
| Address: | 203 FORT CASEY RD COUPEVILLE, WA 98239 | Mapsco: | |
| Neighborhood: | Cycle 2 | Map ID: | 27 |
| Neighborhood CD: | 2 |
Owner |
| Name: | HOWARD JTWROS, DIANE A | Owner ID: | 310232 |
| Mailing Address: | LUKE J HOWARD JTWROS ABIGAIL L K HOWARD JTWROS 203 FORT CASEY RD COUPEVILLE, WA 98239 | % Ownership: | 100.0000000000% |
| | | Exemptions: | |
Taxes and Assessment Details
Values
| (+) Improvement Homesite Value: | + | $0 | |
| (+) Improvement Non-Homesite Value: | + | $43,500 | |
| (+) Land Homesite Value: | + | $0 | |
| (+) Land Non-Homesite Value: | + | $220,000 | |
| (+) Curr Use (HS): | + | $0 | $0 |
| (+) Curr Use (NHS): | + | $0 | $0 |
| | | -------------------------- | |
| (=) Market Value: | = | $263,500 | |
| (–) Productivity Loss: | – | $0 | |
| | | -------------------------- | |
| (=) Subtotal: | = | $263,500 | |
| (+) Senior Appraised Value: | + | $0 | |
| (+) Non-Senior Appraised Value: | + | $263,500 | |
| | | -------------------------- | |
| (=) Total Appraised Value: | = | $263,500 | |
| (–) Senior Exemption Loss: | – | $0 | |
| (–) Exemption Loss: | – | $0 | |
| | | -------------------------- | |
| (=) Taxable Value: | = | $263,500 | |
Taxing Jurisdiction
| Owner: | HOWARD JTWROS, DIANE A | | |
| % Ownership: | 100.0000000000% | | |
| Total Value: | $263,500 | | |
| Tax Area: | 310 - APPRAISER-Cpvl Schl Dist, outside Cpvl, improved & 1 acre or less |
| CF | Conservation Futures | 0.0316035091 | $263,500 | $263,500 | $8.33 | | |
| CEM2 | Cemetery #2 | 0.0095056933 | $263,500 | $263,500 | $2.50 | | |
| FIRE5 | Fire & Rescue Dist #5 C Whidbey GEN | 1.2008080668 | $263,500 | $263,500 | $316.41 | | |
| FIRE5BOND | Fire & Rescue Dist #5 C Whidbey BOND | 0.1400090713 | $263,500 | $263,500 | $36.89 | | |
| HOBOND | Hospital BOND | 0.1910887512 | $263,500 | $263,500 | $50.35 | | |
| HOGEN | Hospital GEN | 0.3902502903 | $263,500 | $263,500 | $102.83 | | |
| CE | County Current Expense | 0.3708482477 | $263,500 | $263,500 | $97.72 | | |
| CR | County Roads | 0.4584763726 | $263,500 | $263,500 | $120.81 | | |
| ISLANDEMS | Hospital GEN (EMS) | 0.5000000000 | $263,500 | $263,500 | $131.75 | | |
| LIB | Library Sno-Isle GEN | 0.3153421757 | $263,500 | $263,500 | $83.09 | | |
| LIBCAP | Library Sno-Isle BOND (Cap Fac Imp Area) | 0.0543427938 | $263,500 | $263,500 | $14.32 | | |
| POCOUP | Port of Coupeville GEN | 0.1093371703 | $263,500 | $263,500 | $28.81 | | |
| POCOUPIDD | Port of Coupeville IDD | 0.3409740022 | $263,500 | $263,500 | $89.85 | | |
| COUPSDTECH | School 204 CP (TECH) | 0.7545480007 | $263,500 | $263,500 | $198.82 | | |
| SCH204MO | School 204 Enrichment | 0.6716186034 | $263,500 | $263,500 | $176.97 | | |
| ST | State School | 1.3035497053 | $263,500 | $263,500 | $343.49 | | |
| ST2 | State School Part 2 | 0.8169543533 | $263,500 | $263,500 | $215.27 | | |
| | Total Tax Rate: | 7.6592568070 | | | | | |
| | | | | Taxes w/Current Exemptions: | $2,018.21 | | |
| | | | | Taxes w/o Exemptions: | $2,018.21 | | |
Improvement / Building
| Improvement #1: | MANUFACTURED HOME | State Code: | Y | 1256.0 sqft | Value: | $43,500 |
| Bathrooms: | 0 | Bedrooms: | 0 | | Ceiling: | PLASTER PAINTED | Cooling: | EVAP NO DUCT | | Exterior Wall/Cover: | VINYL | Floor Covering: | CARPET 100% | | Floor Structure: | SLAB ON GRADE | Foundation: | SLAB | | Heating: | FHA ELECTRIC | Interior Finish: | PLASTER | | Plumbing Fixture Cnt: | 1 | Roof Slope: | FLAT | | Roof Structure/Cover: | CJ ALUMINIUM HEAVY |   |   |
|
| | Type | Description | Class CD | Sub Class CD | Year Built | Area |
| | BAS | BASE/MAIN FLOOR | 4 | 0 | 1984 | 1256.0 |
| | OWP | OPEN WOOD PORCH W/STEPS | 4 | 0 | 1984 | 58.0 |
| | OP3 | OPEN PORCH W/ROOF | 4 | 0 | 1984 | 120.0 |
Sketch
Property Image
Land
| 1 | HS | HOMESITE | 0.7800 | 33976.80 | 0.00 | 0.00 | 1.00 | $220,000 | $0 |
Roll Value History
| 2026 | N/A | N/A | N/A | N/A | N/A |
| 2025 | $43,500 | $220,000 | $0 | $263,500 | $263,500 |
| 2024 | $44,227 | $210,000 | $0 | $254,227 | $254,227 |
| 2023 | $46,438 | $200,000 | $0 | $246,438 | $246,438 |
| 2022 | $44,053 | $200,000 | $0 | $244,053 | $244,053 |
| 2021 | $40,051 | $150,000 | $0 | $190,051 | $190,051 |
| 2020 | $40,572 | $120,000 | $0 | $160,572 | $160,572 |
| 2019 | $33,955 | $170,000 | $0 | $203,955 | $203,955 |
| 2018 | $21,801 | $150,000 | $0 | $171,801 | $171,801 |
| 2017 | $22,867 | $130,000 | $0 | $152,867 | $152,867 |
| 2016 | $3,185 | $120,000 | $0 | $123,185 | $123,185 |
| 2015 | $3,185 | $106,250 | $0 | $109,435 | $109,435 |
| 2014 | $3,185 | $106,250 | $0 | $109,435 | $109,435 |
| 2013 | $3,185 | $106,250 | $0 | $109,435 | $109,435 |
| 2012 | $7,185 | $106,250 | $0 | $113,435 | $113,435 |
| 2011 | $7,185 | $125,000 | $0 | $132,185 | $132,185 |
| 2010 | $9,067 | $125,000 | $0 | $134,067 | $134,067 |
| 2009 | $9,315 | $125,000 | $0 | $134,315 | $134,315 |
| 2008 | $9,342 | $125,000 | $0 | $134,342 | $134,342 |
| 2007 | $9,368 | $125,000 | $0 | $134,368 | $134,368 |
Deed and Sales History
| 1 | 09/29/2023 | QCD | Quit Claim Deed | HOWARD, DIANE A | HOWARD JTWROS, DIANE A | | | $0.00 | 58134 | 4565278 |
| 2 | 10/17/2016 | WD | Warranty Deed | HANSEN, JOHN P | HOWARD, DIANE A | | | $155,000.00 | 26604 | 4409704 |
| 3 | 10/01/1989 | OTHER | Other - Misc. Documents | HANSEN, JOHN P | HANSEN, JOHN P | | | $0.00 | 63376 | 89015600 |
| 4 | 10/01/1987 | QCD | Quit Claim Deed | HANSEN, JOHN P | HANSEN, JOHN P | | | $0.00 | 73092 | 87013662 |
| 5 | 10/01/1987 | OTHER | Other - Misc. Documents | Unknown | HANSEN, JOHN P | | | $0.00 | 73071 | 0 |
Payout Agreement
| No payout information available.. |