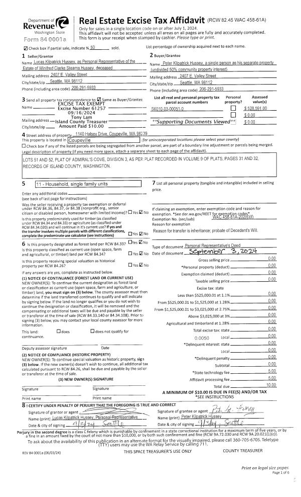
Property
Account |
| Property ID: | 639456 | Abbreviated Legal Description: | LOT 2 OH-SP 7-89.13202.370-2490 V2 SP P214 AF#89016700 |
| Geographic ID: | R13202-370-2590 | Agent Code: | |
| Type: | Real | | |
| Tax Area: | 100 - APPRAISER-OH Schl Dist, in OH | Land Use Code | 67 |
| Open Space: | N | DFL | N |
| Historic Property: | N | Remodel Property: | N |
| Multi-Family Redevelopment: | N | | |
| Township: | 32 | Section: | 02 |
| Range: | R1 |
Location |
| Address: | 800 SE 8TH AVE OAK HARBOR, WA 98277 | Mapsco: | |
| Neighborhood: | 12cOH-se 8th av | Map ID: | 88 |
| Neighborhood CD: | 12cOHse8th |
Owner |
| Name: | ISLAND COUNTY | Owner ID: | 307759 |
| Mailing Address: | FACILITIES MANAGEMENT 1 NE 7TH ST COUPEVILLE, WA 98239 | % Ownership: | 100.0000000000% |
| | | Exemptions: | EX |
Taxes and Assessment Details
Values
| (+) Improvement Homesite Value: | + | $0 | |
| (+) Improvement Non-Homesite Value: | + | $1,371,773 | |
| (+) Land Homesite Value: | + | $0 | |
| (+) Land Non-Homesite Value: | + | $878,170 | |
| (+) Curr Use (HS): | + | $0 | $0 |
| (+) Curr Use (NHS): | + | $0 | $0 |
| | | -------------------------- | |
| (=) Market Value: | = | $2,249,943 | |
| (–) Productivity Loss: | – | $0 | |
| | | -------------------------- | |
| (=) Subtotal: | = | $2,249,943 | |
| (+) Senior Appraised Value: | + | $0 | |
| (+) Non-Senior Appraised Value: | + | $2,249,943 | |
| | | -------------------------- | |
| (=) Total Appraised Value: | = | $2,249,943 | |
| (–) Senior Exemption Loss: | – | $0 | |
| (–) Exemption Loss: | – | $2,249,943 | |
| | | -------------------------- | |
| (=) Taxable Value: | = | $0 | |
Taxing Jurisdiction
| Owner: | ISLAND COUNTY | | |
| % Ownership: | 100.0000000000% | | |
| Total Value: | $2,249,943 | | |
| Tax Area: | 100 - APPRAISER-OH Schl Dist, in OH |
| CF | Conservation Futures | 0.0316035091 | $2,249,943 | $0 | $0.00 | | |
| CEM1 | Cemetery #1 | 0.0040320932 | $2,249,943 | $0 | $0.00 | | |
| COH | City of Oak Harbor | 2.3001546061 | $2,249,943 | $0 | $0.00 | | |
| OAKBOND | City of Oak Harbor BOND | 0.1926904192 | $2,249,943 | $0 | $0.00 | | |
| HOBOND | Hospital BOND | 0.1910887512 | $2,249,943 | $0 | $0.00 | | |
| HOGEN | Hospital GEN | 0.3902502903 | $2,249,943 | $0 | $0.00 | | |
| CE | County Current Expense | 0.3708482477 | $2,249,943 | $0 | $0.00 | | |
| ISLANDEMS | Hospital GEN (EMS) | 0.5000000000 | $2,249,943 | $0 | $0.00 | | |
| LIB | Library Sno-Isle GEN | 0.3153421757 | $2,249,943 | $0 | $0.00 | | |
| NWHIDPRMT | P & R N Whidbey GEN | 0.2004466701 | $2,249,943 | $0 | $0.00 | | |
| SCH201MO | School 201 Enrichment | 1.8559231640 | $2,249,943 | $0 | $0.00 | | |
| ST | State School | 1.3035497053 | $2,249,943 | $0 | $0.00 | | |
| ST2 | State School Part 2 | 0.8169543533 | $2,249,943 | $0 | $0.00 | | |
| | Total Tax Rate: | 8.4728839852 | | | | | |
| | | | | Taxes w/Current Exemptions: | $0.00 | | |
| | | | | Taxes w/o Exemptions: | $19,063.50 | | |
Improvement / Building
| Improvement #1: | COMMERCIAL | State Code: | F1 | 10048.6 sqft | Value: | $1,371,773 |
| Bathrooms: | 0 | Ceiling: | DRYWALL PAINTED | | Exterior Wall/Cover: | 8" COM BRICK/WD FRAM | Floor Covering: | CARPET 100% | | Floor Structure: | WOOD ON WOOD JOIST | Foundation: | CONCRETE | | Heating: | ZONED AC/HEAT | Interior Finish: | GOVERNMENT | | Plumbing Fixture Cnt: | 1 | Roof Structure/Cover: | COMP OPEN WOOD |
|
| | Type | Description | Class CD | Sub Class CD | Year Built | Area |
| | BAS | BASE/MAIN FLOOR | 3 | 0 | 1990 | 8200.6 |
| | DWN | DOWNSTAIRS LIVING AREA | 3 | 0 | 1990 | 1848.0 |
| | OP1 | OPEN PORCH SLAB | 3 | 0 | 1990 | 288.0 |
| | OP1 | OPEN PORCH SLAB | 3 | 0 | 1990 | 599.5 |
| | OP1 | OPEN PORCH SLAB | 3 | 0 | 1990 | 492.0 |
| | OP2 | OPEN PORCH W/STEPS | 3 | 0 | 1990 | 583.0 |
| | OP2 | OPEN PORCH W/STEPS | 3 | 0 | 1990 | 113.2 |
| | oPV1 | PV/ASPH 2" | 3 | 0 | 1990 | 32230.0 |
| | oLIT | LITE POLE | 3 | 0 | 1990 | 0.0 |
Sketch
Property Image
Land
| 1 | 64 | PERSONAL BUSINESS | 1.4400 | 62726.40 | 0.00 | 0.00 | 1.00 | $878,170 | $0 |
Roll Value History
| 2026 | N/A | N/A | N/A | N/A | N/A |
| 2025 | $1,371,773 | $878,170 | $0 | $2,249,943 | $0 |
| 2024 | $1,413,617 | $878,164 | $0 | $2,291,781 | $0 |
| 2023 | $1,568,312 | $878,164 | $0 | $2,446,476 | $0 |
| 2022 | $1,347,331 | $878,164 | $0 | $2,225,495 | $0 |
| 2021 | $1,131,094 | $878,164 | $0 | $2,009,258 | $0 |
| 2020 | $1,129,157 | $878,164 | $0 | $2,007,321 | $0 |
| 2019 | $1,078,983 | $689,986 | $0 | $1,768,969 | $0 |
| 2018 | $1,079,272 | $627,260 | $0 | $1,706,532 | $0 |
| 2017 | $1,194,945 | $501,808 | $0 | $1,696,753 | $0 |
| 2016 | $1,211,066 | $501,808 | $0 | $1,712,874 | $0 |
| 2015 | $1,227,186 | $470,445 | $0 | $1,697,631 | $0 |
| 2014 | $1,243,307 | $470,445 | $0 | $1,713,752 | $0 |
| 2013 | $1,259,427 | $470,445 | $0 | $1,729,872 | $0 |
| 2012 | $1,275,547 | $484,245 | $0 | $1,759,792 | $0 |
| 2011 | $909,001 | $484,245 | $0 | $1,393,246 | $0 |
| 2010 | $1,212,287 | $484,245 | $0 | $1,696,532 | $0 |
| 2009 | $1,227,774 | $709,431 | $0 | $1,937,205 | $0 |
| 2008 | $1,243,261 | $747,067 | $0 | $1,990,328 | $0 |
| 2007 | $1,274,235 | $747,067 | $0 | $2,021,302 | $0 |
Deed and Sales History
| 1 | 02/01/1990 | WD | Warranty Deed | CITY, OF O | ISLAND, COUNTY | | | $155,800.00 | 1197 | 90003842 |
| 2 | 01/01/1900 | OTHER | Other - Misc. Documents | Unknown | CITY, OF O | | | $0.00 | 43485 | 84006205 |
Payout Agreement
| No payout information available.. |