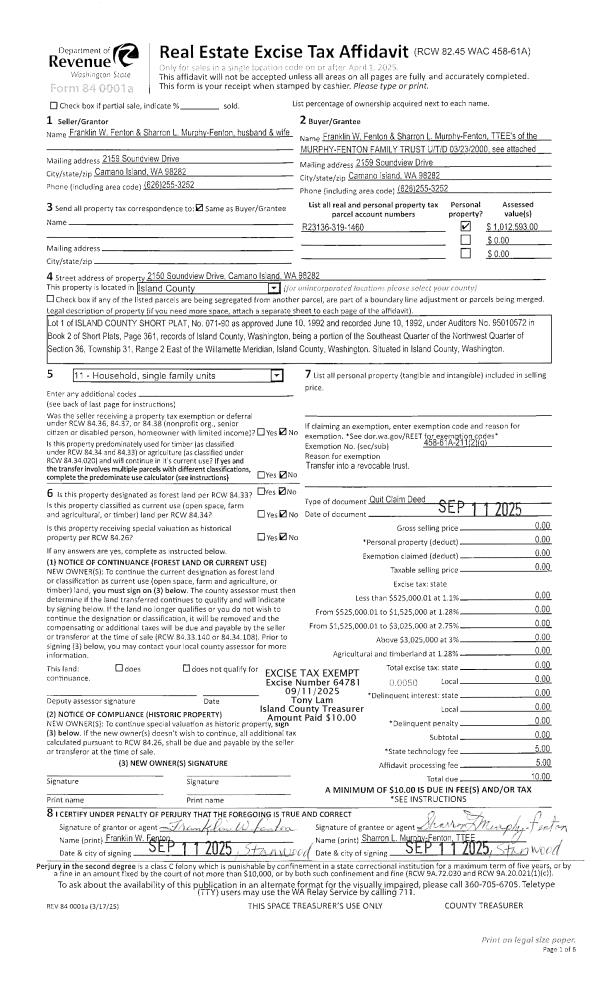
Property
Account |
| Property ID: | 64049 | Abbreviated Legal Description: | 65 - W/2 NE SW SE SUB TO & TGW EZ E20' & S30' |
| Geographic ID: | R23020-100-3540 | Agent Code: | |
| Type: | Real | | |
| Tax Area: | 312 - APPRAISER-Cpvl Schl Dist, outside Cpvl, improved, greater than 1 acre | Land Use Code | 11 |
| Open Space: | N | DFL | N |
| Historic Property: | N | Remodel Property: | N |
| Multi-Family Redevelopment: | N | | |
| Township: | 30 | Section: | 20 |
| Range: | R2 |
Location |
| Address: | 673 PETERS RD GREENBANK, WA 98253 | Mapsco: | |
| Neighborhood: | Cycle 3 | Map ID: | 397 |
| Neighborhood CD: | 3 |
Owner |
| Name: | ROMBERG TTEE, CONRAD L | Owner ID: | 292670 |
| Mailing Address: | JELCY L ROMBERG, TTEE PO BOX 130 GREENBANK, WA 98253 | % Ownership: | 100.0000000000% |
| | | Exemptions: | |
Taxes and Assessment Details
Values
| (+) Improvement Homesite Value: | + | $0 | |
| (+) Improvement Non-Homesite Value: | + | $520,714 | |
| (+) Land Homesite Value: | + | $0 | |
| (+) Land Non-Homesite Value: | + | $350,000 | |
| (+) Curr Use (HS): | + | $0 | $0 |
| (+) Curr Use (NHS): | + | $0 | $0 |
| | | -------------------------- | |
| (=) Market Value: | = | $870,714 | |
| (–) Productivity Loss: | – | $0 | |
| | | -------------------------- | |
| (=) Subtotal: | = | $870,714 | |
| (+) Senior Appraised Value: | + | $0 | |
| (+) Non-Senior Appraised Value: | + | $870,714 | |
| | | -------------------------- | |
| (=) Total Appraised Value: | = | $870,714 | |
| (–) Senior Exemption Loss: | – | $0 | |
| (–) Exemption Loss: | – | $0 | |
| | | -------------------------- | |
| (=) Taxable Value: | = | $870,714 | |
Taxing Jurisdiction
| Owner: | ROMBERG TTEE, CONRAD L | | |
| % Ownership: | 100.0000000000% | | |
| Total Value: | $870,714 | | |
| Tax Area: | 312 - APPRAISER-Cpvl Schl Dist, outside Cpvl, improved, greater than 1 acre |
| CF | Conservation Futures | 0.0316035091 | $870,714 | $870,714 | $27.52 | | |
| CEM2 | Cemetery #2 | 0.0095056933 | $870,714 | $870,714 | $8.28 | | |
| FIRE5 | Fire & Rescue Dist #5 C Whidbey GEN | 1.2008080668 | $870,714 | $870,714 | $1,045.56 | | |
| FIRE5BOND | Fire & Rescue Dist #5 C Whidbey BOND | 0.1400090713 | $870,714 | $870,714 | $121.91 | | |
| HOBOND | Hospital BOND | 0.1910887512 | $870,714 | $870,714 | $166.38 | | |
| HOGEN | Hospital GEN | 0.3902502903 | $870,714 | $870,714 | $339.80 | | |
| CE | County Current Expense | 0.3708482477 | $870,714 | $870,714 | $322.90 | | |
| CR | County Roads | 0.4584763726 | $870,714 | $870,714 | $399.20 | | |
| ISLANDEMS | Hospital GEN (EMS) | 0.5000000000 | $870,714 | $870,714 | $435.36 | | |
| LIB | Library Sno-Isle GEN | 0.3153421757 | $870,714 | $870,714 | $274.57 | | |
| LIBCAP | Library Sno-Isle BOND (Cap Fac Imp Area) | 0.0543427938 | $870,714 | $870,714 | $47.32 | | |
| POCOUP | Port of Coupeville GEN | 0.1093371703 | $870,714 | $870,714 | $95.20 | | |
| POCOUPIDD | Port of Coupeville IDD | 0.3409740022 | $870,714 | $870,714 | $296.89 | | |
| COUPSDTECH | School 204 CP (TECH) | 0.7545480007 | $870,714 | $870,714 | $657.00 | | |
| SCH204MO | School 204 Enrichment | 0.6716186034 | $870,714 | $870,714 | $584.79 | | |
| ST | State School | 1.3035497053 | $870,714 | $870,714 | $1,135.02 | | |
| ST2 | State School Part 2 | 0.8169543533 | $870,714 | $870,714 | $711.33 | | |
| | Total Tax Rate: | 7.6592568070 | | | | | |
| | | | | Taxes w/Current Exemptions: | $6,669.03 | | |
| | | | | Taxes w/o Exemptions: | $6,669.03 | | |
Improvement / Building
| Improvement #1: | RESIDENTIAL | State Code: | Y | 2289.9 sqft | Value: | $520,714 |
| Bathrooms: | 2 | Bedrooms: | 2 | | Ceiling: | DRYWALL PAINTED | Exterior Wall/Cover: | VINYL | | Floor Covering: | LAMINATE/LVP | Floor Structure: | SLAB ON GRADE | | Foundation: | SLAB | Heating: | HEAT PUMP | | Interior Finish: | DRYWALL PAINT | Plumbing Fixture Cnt: | 10 | | Roof Slope: | 6" IN 12" | Roof Structure/Cover: | CJ ALUMINIUM HEAVY |
|
| | Type | Description | Class CD | Sub Class CD | Year Built | Area |
| | BAS | BASE/MAIN FLOOR | 4 | 0 | 2024 | 2289.9 |
| | OCP | OPEN CARPORT | 4 | 0 | 2024 | 334.8 |
| | OP4 | OPEN PORCH W/CEILING-ROOF | 4 | 0 | 2024 | 112.0 |
| | OP2 | OPEN PORCH W/STEPS | 4 | 0 | 2024 | 398.8 |
| | oUTI | UTILITY | 4 | 0 | 2010 | 384.0 |
Sketch
| No sketches available for this property. |
Property Image
Land
| 1 | 32 | AC (03.01-09.99) | 5.0000 | 0.00 | 0.00 | 0.00 | 1.00 | $350,000 | $0 |
Roll Value History
| 2026 | N/A | N/A | N/A | N/A | N/A |
| 2025 | $520,714 | $350,000 | $0 | $870,714 | $870,714 |
| 2024 | $259,453 | $200,000 | $0 | $459,453 | $459,453 |
| 2023 | $25,728 | $180,000 | $0 | $205,728 | $205,728 |
| 2022 | $24,715 | $170,000 | $0 | $194,715 | $194,715 |
| 2021 | $23,372 | $115,000 | $0 | $138,372 | $138,372 |
| 2020 | $22,988 | $90,000 | $0 | $112,988 | $112,988 |
| 2019 | $21,724 | $280,000 | $0 | $301,724 | $301,724 |
| 2018 | $21,740 | $170,000 | $0 | $191,740 | $191,740 |
| 2017 | $21,771 | $160,000 | $0 | $181,771 | $181,771 |
| 2016 | $21,834 | $120,000 | $0 | $141,834 | $141,834 |
| 2015 | $21,897 | $130,000 | $0 | $151,897 | $151,897 |
| 2014 | $21,959 | $125,000 | $0 | $146,959 | $146,959 |
| 2013 | $22,022 | $100,000 | $0 | $122,022 | $122,022 |
| 2012 | $22,085 | $81,000 | $0 | $103,085 | $103,085 |
| 2011 | $22,148 | $90,000 | $0 | $112,148 | $112,148 |
| 2010 | $16,000 | $90,000 | $0 | $106,000 | $106,000 |
| 2009 | $0 | $155,000 | $0 | $155,000 | $155,000 |
| 2008 | $0 | $150,000 | $0 | $150,000 | $150,000 |
| 2007 | $0 | $130,000 | $0 | $130,000 | $130,000 |
Deed and Sales History
| 1 | 11/21/2019 | QCD | Quit Claim Deed | ROMBERG, CONRAD LOUIS | ROMBERG TTEE, CONRAD L | | | $0.00 | 41205 | 4476118 |
| 2 | 05/29/2013 | WD | Warranty Deed | OLIN, JEANNE | ROMBERG, CONRAD LOUIS | | | $148,000.00 | 11443 | 4340826 |
| 3 | 05/05/2009 | QCD | Quit Claim Deed | OLIN, JEANNE | OLIN, JEANNE | | | $0.00 | 90980 | 4250518 |
| 4 | 04/30/2009 | WD | Warranty Deed | BROWN, LISA A | OLIN, JEANNE | | | $105,000.00 | 90979 | 4250517 |
| 5 | 07/01/1983 | EZ | Easement | BROWN, LISA A | BROWN, LISA A | | | $0.00 | 33325 | 417405 |
| 6 | 11/01/1976 | REC | Real Estate Contract | BRADFORD, PETER A | BROWN, LISA A | | | $0.00 | 58642 | 0 |
| 7 | 01/01/1900 | OTHER | Other - Misc. Documents | Unknown | BRADFORD, PETER A | | | $0.00 | 0 | 0 |
Payout Agreement
| No payout information available.. |