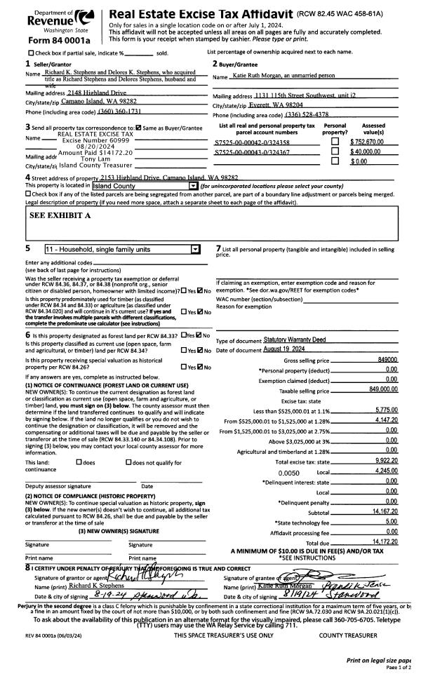
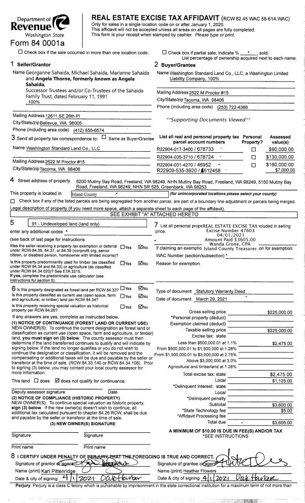
Property
Account |
| Property ID: | 641149 | Abbreviated Legal Description: | COLUMBIA BCH PT TR E DESC: BG SWCR OF N 10'OF TR E S478'TPB E305' N264' W305' S264'TPB EX W10'FOR RD TGW & SUB EZ FR 00E18-0 & PT 00E16-0 DRAIN SITE ON E19 AF#383038 |
| Geographic ID: | S6400-00-00E20-0 | Agent Code: | |
| Type: | Real | | |
| Tax Area: | 722 - APPRAISER-S Whid Schl Dist, Special District, improved, greater than 1 acre | Land Use Code | 11 |
| Open Space: | N | DFL | N |
| Historic Property: | N | Remodel Property: | N |
| Multi-Family Redevelopment: | N | | |
| Township: | | Section: | |
| Range: | |
Location |
| Address: | 6683 HUMPHREY RD CLINTON, WA 98236 | Mapsco: | |
| Neighborhood: | Cycle 4 | Map ID: | 1001 |
| Neighborhood CD: | 4 |
Owner |
| Name: | SILENT OWL LLC | Owner ID: | 316489 |
| Mailing Address: | PO BOX 6356 BELLEVUE, WA 98008 | % Ownership: | 100.0000000000% |
| | | Exemptions: | |
Taxes and Assessment Details
Values
| (+) Improvement Homesite Value: | + | $0 | |
| (+) Improvement Non-Homesite Value: | + | $763 | |
| (+) Land Homesite Value: | + | $0 | |
| (+) Land Non-Homesite Value: | + | $180,000 | |
| (+) Curr Use (HS): | + | $0 | $0 |
| (+) Curr Use (NHS): | + | $0 | $0 |
| | | -------------------------- | |
| (=) Market Value: | = | $180,763 | |
| (–) Productivity Loss: | – | $0 | |
| | | -------------------------- | |
| (=) Subtotal: | = | $180,763 | |
| (+) Senior Appraised Value: | + | $0 | |
| (+) Non-Senior Appraised Value: | + | $180,763 | |
| | | -------------------------- | |
| (=) Total Appraised Value: | = | $180,763 | |
| (–) Senior Exemption Loss: | – | $0 | |
| (–) Exemption Loss: | – | $0 | |
| | | -------------------------- | |
| (=) Taxable Value: | = | $180,763 | |
Taxing Jurisdiction
| Owner: | SILENT OWL LLC | | |
| % Ownership: | 100.0000000000% | | |
| Total Value: | $180,763 | | |
| Tax Area: | 722 - APPRAISER-S Whid Schl Dist, Special District, improved, greater than 1 acre |
| CF | Conservation Futures | 0.0316035091 | $180,763 | $180,763 | $5.71 | | |
| FIRE3 | Fire & Rescue Dist #3 S Whidbey GEN | 1.2004855531 | $180,763 | $180,763 | $217.00 | | |
| HOBOND | Hospital BOND | 0.1910887512 | $180,763 | $180,763 | $34.54 | | |
| HOGEN | Hospital GEN | 0.3902502903 | $180,763 | $180,763 | $70.54 | | |
| CE | County Current Expense | 0.3708482477 | $180,763 | $180,763 | $67.04 | | |
| CR | County Roads | 0.4584763726 | $180,763 | $180,763 | $82.88 | | |
| ISLANDEMS | Hospital GEN (EMS) | 0.5000000000 | $180,763 | $180,763 | $90.38 | | |
| LIB | Library Sno-Isle GEN | 0.3153421757 | $180,763 | $180,763 | $57.00 | | |
| PORTWHID | Port of S Whidbey GEN | 0.1094540357 | $180,763 | $180,763 | $19.79 | | |
| SCH206BOND | School 206 BOND | 0.3161759235 | $180,763 | $180,763 | $57.15 | | |
| SCH206MO | School 206 Enrichment | 0.4547169547 | $180,763 | $180,763 | $82.20 | | |
| ST | State School | 1.3035497053 | $180,763 | $180,763 | $235.63 | | |
| ST2 | State School Part 2 | 0.8169543533 | $180,763 | $180,763 | $147.68 | | |
| SWHIDPRBD | P & R S Whidbey BOND | 0.0152817568 | $180,763 | $180,763 | $2.76 | | |
| SWHIDPRBD2 | P & R S Whidbey BOND2 | 0.0138911264 | $180,763 | $180,763 | $2.51 | | |
| SWHIDPRMT | P & R S Whidbey GEN | 0.2053334452 | $180,763 | $180,763 | $37.12 | | |
| | Total Tax Rate: | 6.6934522006 | | | | | |
| | | | | Taxes w/Current Exemptions: | $1,209.93 | | |
| | | | | Taxes w/o Exemptions: | $1,209.93 | | |
Improvement / Building
| Improvement #1: | MISC | State Code: | Y | 0.0 sqft | Value: | $763 |
Sketch
| No sketches available for this property. |
Property Image
Land
| 1 | 17 | AC (01.01-02.00) | 0.0000 | 0.00 | 0.00 | 0.00 | 1.00 | $180,000 | $0 |
Roll Value History
| 2026 | N/A | N/A | N/A | N/A | N/A |
| 2025 | $763 | $180,000 | $0 | $180,763 | $180,763 |
| 2024 | $763 | $170,000 | $0 | $170,763 | $170,763 |
| 2023 | $763 | $170,000 | $0 | $170,763 | $170,763 |
| 2022 | $763 | $230,000 | $0 | $230,763 | $230,763 |
| 2021 | $763 | $230,000 | $0 | $230,763 | $230,763 |
| 2020 | $763 | $180,000 | $0 | $180,763 | $180,763 |
| 2019 | $763 | $240,000 | $0 | $240,763 | $240,763 |
| 2018 | $763 | $150,000 | $0 | $150,763 | $150,763 |
| 2017 | $763 | $150,000 | $0 | $150,763 | $150,763 |
| 2016 | $763 | $150,000 | $0 | $150,763 | $150,763 |
| 2015 | $763 | $150,000 | $0 | $150,763 | $150,763 |
| 2014 | $763 | $150,000 | $0 | $150,763 | $150,763 |
| 2013 | $763 | $150,000 | $0 | $150,763 | $150,763 |
| 2012 | $763 | $135,000 | $0 | $135,763 | $135,763 |
| 2011 | $763 | $150,000 | $0 | $150,763 | $150,763 |
| 2010 | $763 | $150,000 | $0 | $150,763 | $150,763 |
| 2009 | $763 | $175,000 | $0 | $175,763 | $175,763 |
| 2008 | $763 | $175,000 | $0 | $175,763 | $175,763 |
| 2007 | $763 | $175,000 | $0 | $175,763 | $175,763 |
Deed and Sales History
| 1 | 05/15/2025 | WD | Warranty Deed | OPDYCKE TTEE, THOMAS C | SILENT OWL LLC | | | $0.00 | 63465 | 4585844 |
| 2 | 05/15/2025 | WD | Warranty Deed | NANCY BEACH LLC | OPDYCKE TTEE, THOMAS C | | | $0.00 | 63457 | 4585808 |
| 3 | 02/18/2022 | WD | Warranty Deed | CORBIN, NANCY L | NANCY BEACH LLC | | | $0.00 | 59005 | 4568558 |
| 4 | 02/18/2022 | WD | Warranty Deed | PIONEER SPIRIT, LLC | CORBIN, NANCY L | | | $0.00 | 58989 | 4568501 |
| 5 | 04/29/2020 | WD | Warranty Deed | CORBIN, NANCY L | PIONEER SPIRIT, LLC | | | $0.00 | 58969 | 4568421 |
| 6 | 06/21/2022 | WD | Warranty Deed | OPDYCKE, LINDA LOUISE | CORBIN, NANCY L | | | $0.00 | 58957 | 4568371 |
| 7 | 06/21/2022 | WD | Warranty Deed | NANCY BEACH LLC | NANCY BEACH LLC | | | $0.00 | 54199 | 4549901 |
| 8 | 02/18/2022 | WD | Warranty Deed | CORBIN, NANCY L | NANCY BEACH LLC | | | $0.00 | 52135 | 4540710 |
| 9 | 02/18/2022 | WD | Warranty Deed | PIONEER SPIRIT, LLC | CORBIN, NANCY L | | | $0.00 | 52089 | 4540492 |
| 10 | 04/29/2020 | WD | Warranty Deed | CORBIN TRUSTEE, NANCY L | PIONEER SPIRIT, LLC | | | $0.00 | 42901 | 4485925 |
| 11 | 08/19/2019 | EZ | Easement | CORBIN TRUSTEE, NANCY L | PUGET SOUND ENERGY | | | $7,488.00 | 40560 | 4472716 |
|   | |
| 12 | 12/18/2003 | 5 | DNU - Marriage License/Name Change | CORBIN, NANCY L | CORBIN TRUSTEE, NANCY L | | | $0.00 | 40051 | 4088426 |
| 13 | 03/01/1990 | OTHER | Other - Misc. Documents | KOFFKEY, HERMAN C | KOFFKEY, HERMAN C | | | $0.00 | 63538 | 90002146 |
| 14 | 02/01/1990 | WD | Warranty Deed | KOFFKEY, HERMAN C | CORBIN, NANCY L | | | $65,000.00 | 939 | 90003025 |
| 15 | 01/01/1900 | OTHER | Other - Misc. Documents | Unknown | KOFFKEY, HERMAN C | | | $0.00 | 0 | 0 |
Payout Agreement
| No payout information available.. |