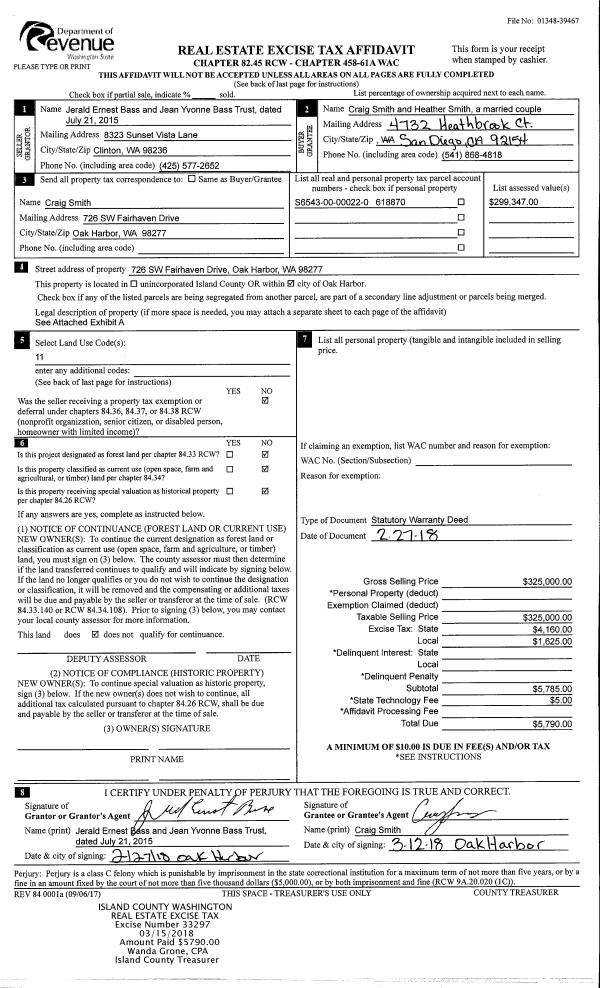
Property
Account |
| Property ID: | 641372 | Abbreviated Legal Description: | 1984 GATEWAY VIN HONC17014CK311732 TPO %097343 14X66 |
| Geographic ID: | M913000000200 | Agent Code: | |
| Type: | Mobile Home | | |
| Tax Area: | 300 - APPRAISER-Cpvl Schl Dist, in Cpvl | Land Use Code | 11 |
| Open Space: | N | DFL | N |
| Historic Property: | N | Remodel Property: | N |
| Multi-Family Redevelopment: | N | | |
| Township: | | Section: | |
| Range: | |
Location |
| Address: | 204 SW TERRY RD # 20 COUPEVILLE, WA 98239 | Mapsco: | |
| Neighborhood: | Cycle 2 | Map ID: | |
| Neighborhood CD: | 2 |
Owner |
| Name: | LOPEZ, CECILIA MARTINEZ | Owner ID: | 285161 |
| Mailing Address: | 204 SW TERRY RD # 20 COUPEVILLE, WA 98239 | % Ownership: | 100.0000000000% |
| | | Exemptions: | |
Taxes and Assessment Details
Values
| (+) Improvement Homesite Value: | + | $0 | |
| (+) Improvement Non-Homesite Value: | + | $26,503 | |
| (+) Land Homesite Value: | + | $0 | |
| (+) Land Non-Homesite Value: | + | $0 | |
| (+) Curr Use (HS): | + | $0 | $0 |
| (+) Curr Use (NHS): | + | $0 | $0 |
| | | -------------------------- | |
| (=) Market Value: | = | $26,503 | |
| (–) Productivity Loss: | – | $0 | |
| | | -------------------------- | |
| (=) Subtotal: | = | $26,503 | |
| (+) Senior Appraised Value: | + | $0 | |
| (+) Non-Senior Appraised Value: | + | $26,503 | |
| | | -------------------------- | |
| (=) Total Appraised Value: | = | $26,503 | |
| (–) Senior Exemption Loss: | – | $0 | |
| (–) Exemption Loss: | – | $0 | |
| | | -------------------------- | |
| (=) Taxable Value: | = | $26,503 | |
Taxing Jurisdiction
| Owner: | LOPEZ, CECILIA MARTINEZ | | |
| % Ownership: | 100.0000000000% | | |
| Total Value: | $26,503 | | |
| Tax Area: | 300 - APPRAISER-Cpvl Schl Dist, in Cpvl |
| CF | Conservation Futures | 0.0316035091 | $26,503 | $26,503 | $0.84 | | |
| CEM2 | Cemetery #2 | 0.0095056933 | $26,503 | $26,503 | $0.25 | | |
| COUP | City: Town of Coupeville | 0.8426414490 | $26,503 | $26,503 | $22.33 | | |
| FIRE5 | Fire & Rescue Dist #5 C Whidbey GEN | 1.2008080668 | $26,503 | $26,503 | $31.83 | | |
| FIRE5BOND | Fire & Rescue Dist #5 C Whidbey BOND | 0.1400090713 | $26,503 | $26,503 | $3.71 | | |
| HOBOND | Hospital BOND | 0.1910887512 | $26,503 | $26,503 | $5.06 | | |
| HOGEN | Hospital GEN | 0.3902502903 | $26,503 | $26,503 | $10.34 | | |
| CE | County Current Expense | 0.3708482477 | $26,503 | $26,503 | $9.83 | | |
| ISLANDEMS | Hospital GEN (EMS) | 0.5000000000 | $26,503 | $26,503 | $13.25 | | |
| LIB | Library Sno-Isle GEN | 0.3153421757 | $26,503 | $26,503 | $8.36 | | |
| LIBCAP | Library Sno-Isle BOND (Cap Fac Imp Area) | 0.0543427938 | $26,503 | $26,503 | $1.44 | | |
| POCOUP | Port of Coupeville GEN | 0.1093371703 | $26,503 | $26,503 | $2.90 | | |
| POCOUPIDD | Port of Coupeville IDD | 0.3409740022 | $26,503 | $26,503 | $9.04 | | |
| COUPSDTECH | School 204 CP (TECH) | 0.7545480007 | $26,503 | $26,503 | $20.00 | | |
| SCH204MO | School 204 Enrichment | 0.6716186034 | $26,503 | $26,503 | $17.80 | | |
| ST | State School | 1.3035497053 | $26,503 | $26,503 | $34.55 | | |
| ST2 | State School Part 2 | 0.8169543533 | $26,503 | $26,503 | $21.65 | | |
| | Total Tax Rate: | 8.0434218834 | | | | | |
| | | | | Taxes w/Current Exemptions: | $213.18 | | |
| | | | | Taxes w/o Exemptions: | $213.18 | | |
Improvement / Building
| Improvement #1: | MANUFACTURED HOME | State Code: | Y | 924.0 sqft | Value: | $26,503 |
| Bathrooms: | 2 | Bedrooms: | 3 | | Ceiling: | PLASTER PAINTED | Cooling: | EVAP NO DUCT | | Exterior Wall/Cover: | VINYL | Floor Covering: | CARPET 100% | | Floor Structure: | SLAB ON GRADE | Foundation: | SLAB | | Heating: | FHA ELECTRIC | Interior Finish: | PLASTER | | Plumbing Fixture Cnt: | 1 | Roof Slope: | FLAT | | Roof Structure/Cover: | CJ ALUMINIUM HEAVY |   |   |
|
Sketch
Property Image
Land
No land segments exist for this property.
Roll Value History
| 2026 | N/A | N/A | N/A | N/A | N/A |
| 2025 | $26,503 | $0 | $0 | $26,503 | $26,503 |
| 2024 | $30,943 | $0 | $0 | $30,943 | $30,943 |
| 2023 | $12,410 | $0 | $0 | $12,410 | $12,410 |
| 2022 | $11,726 | $0 | $0 | $11,726 | $11,726 |
| 2021 | $10,833 | $0 | $0 | $10,833 | $10,833 |
| 2020 | $10,930 | $0 | $0 | $10,930 | $10,930 |
| 2019 | $8,934 | $0 | $0 | $8,934 | $8,934 |
| 2018 | $4,385 | $0 | $0 | $4,385 | $4,385 |
| 2017 | $4,659 | $0 | $0 | $4,659 | $4,659 |
| 2016 | $4,842 | $0 | $0 | $4,842 | $4,842 |
| 2015 | $5,025 | $0 | $0 | $5,025 | $5,025 |
| 2014 | $5,208 | $0 | $0 | $5,208 | $5,208 |
| 2013 | $5,482 | $0 | $0 | $5,482 | $5,482 |
| 2012 | $6,607 | $0 | $0 | $6,607 | $6,607 |
| 2011 | $11,391 | $0 | $0 | $11,391 | $11,391 |
| 2010 | $11,560 | $0 | $0 | $11,560 | $11,560 |
| 2009 | $12,299 | $0 | $0 | $12,299 | $12,299 |
| 2008 | $12,797 | $0 | $0 | $12,797 | $12,797 |
| 2007 | $13,312 | $0 | $0 | $13,312 | $13,312 |
Deed and Sales History
| 1 | 05/24/2018 | MANHOME | Manufactured Home | PEREZ, JUANA | LOPEZ, CECILIA MARTINEZ | | | $3,500.00 | 34237 | |
| 2 | 07/04/2011 | OTHER | Other - Misc. Documents | BARAJAS, MARIA | PEREZ, JUANA | | | $800.00 | 4911 | |
| 3 | 05/01/2007 | OTHER | Other - Misc. Documents | ARMENDARIZ, TERESA C | BARAJAS, MARIA | | | $6,000.00 | 71505 | 0 |
| 4 | 02/01/1996 | OTHER | Other - Misc. Documents | BODIN, LEROY / | ARMENDARIZ, TERESA C | | | $13,750.00 | 60536 | 0 |
| 5 | 07/01/1995 | OTHER | Other - Misc. Documents | RUEF, LISA | BODIN, LEROY / | | | $0.00 | 52399 | 0 |
| 6 | 06/01/1994 | OTHER | Other - Misc. Documents | CARTER, RANSOM D | RUEF, LISA | | | $14,900.00 | 42381 | 0 |
| 7 | 07/01/1984 | OTHER | Other - Misc. Documents | Unknown | CARTER, RANSOM D | | | $19,050.00 | 11111111 | 0 |
Payout Agreement
| No payout information available.. |