Property
Account |
| Property ID: | 641942 | Abbreviated Legal Description: | NOBLECLIFF LOT 2 |
| Geographic ID: | S7566-00-00002-0 | Agent Code: | |
| Type: | Real | | |
| Tax Area: | 700 - APPRAISER-S Whid Schl Dist, in town of Langley | Land Use Code | 11 |
| Open Space: | N | DFL | N |
| Historic Property: | N | Remodel Property: | N |
| Multi-Family Redevelopment: | N | | |
| Township: | | Section: | |
| Range: | |
Location |
| Address: | 307 NOBLECLIFF PLACE LANGLEY, WA 98260 | Mapsco: | |
| Neighborhood: | City of Langley | Map ID: | 727 |
| Neighborhood CD: | 04-L |
Owner |
| Name: | DUNCAN, DEANA | Owner ID: | 282279 |
| Mailing Address: | 307 NOBLECLIFF PLACE LANGLEY, WA 98260 | % Ownership: | 100.0000000000% |
| | | Exemptions: | |
Taxes and Assessment Details
Values
| (+) Improvement Homesite Value: | + | $0 | |
| (+) Improvement Non-Homesite Value: | + | $442,692 | |
| (+) Land Homesite Value: | + | $0 | |
| (+) Land Non-Homesite Value: | + | $300,000 | |
| (+) Curr Use (HS): | + | $0 | $0 |
| (+) Curr Use (NHS): | + | $0 | $0 |
| | | -------------------------- | |
| (=) Market Value: | = | $742,692 | |
| (–) Productivity Loss: | – | $0 | |
| | | -------------------------- | |
| (=) Subtotal: | = | $742,692 | |
| (+) Senior Appraised Value: | + | $0 | |
| (+) Non-Senior Appraised Value: | + | $742,692 | |
| | | -------------------------- | |
| (=) Total Appraised Value: | = | $742,692 | |
| (–) Senior Exemption Loss: | – | $0 | |
| (–) Exemption Loss: | – | $0 | |
| | | -------------------------- | |
| (=) Taxable Value: | = | $742,692 | |
Taxing Jurisdiction
| Owner: | DUNCAN, DEANA | | |
| % Ownership: | 100.0000000000% | | |
| Total Value: | $742,692 | | |
| Tax Area: | 700 - APPRAISER-S Whid Schl Dist, in town of Langley |
| CF | Conservation Futures | 0.0316035091 | $742,692 | $742,692 | $23.47 | | |
| LANG | City of Langley | 1.0093520762 | $742,692 | $742,692 | $749.64 | | |
| LANGBOND | City of Langley BOND | 1.0326110892 | $742,692 | $742,692 | $766.91 | | |
| FIRE3 | Fire & Rescue Dist #3 S Whidbey GEN | 1.2004855531 | $742,692 | $742,692 | $891.59 | | |
| HOBOND | Hospital BOND | 0.1910887512 | $742,692 | $742,692 | $141.92 | | |
| HOGEN | Hospital GEN | 0.3902502903 | $742,692 | $742,692 | $289.84 | | |
| CE | County Current Expense | 0.3708482477 | $742,692 | $742,692 | $275.43 | | |
| ISLANDEMS | Hospital GEN (EMS) | 0.5000000000 | $742,692 | $742,692 | $371.35 | | |
| LIB | Library Sno-Isle GEN | 0.3153421757 | $742,692 | $742,692 | $234.20 | | |
| PORTWHID | Port of S Whidbey GEN | 0.1094540357 | $742,692 | $742,692 | $81.29 | | |
| SCH206BOND | School 206 BOND | 0.3161759235 | $742,692 | $742,692 | $234.82 | | |
| SCH206MO | School 206 Enrichment | 0.4547169547 | $742,692 | $742,692 | $337.71 | | |
| ST | State School | 1.3035497053 | $742,692 | $742,692 | $968.14 | | |
| ST2 | State School Part 2 | 0.8169543533 | $742,692 | $742,692 | $606.75 | | |
| SWHIDPRBD | P & R S Whidbey BOND | 0.0152817568 | $742,692 | $742,692 | $11.35 | | |
| SWHIDPRBD2 | P & R S Whidbey BOND2 | 0.0138911264 | $742,692 | $742,692 | $10.32 | | |
| SWHIDPRMT | P & R S Whidbey GEN | 0.2053334452 | $742,692 | $742,692 | $152.50 | | |
| | Total Tax Rate: | 8.2769389934 | | | | | |
| | | | | Taxes w/Current Exemptions: | $6,147.23 | | |
| | | | | Taxes w/o Exemptions: | $6,147.23 | | |
Improvement / Building
| Improvement #1: | RESIDENTIAL | State Code: | Y | 2542.0 sqft | Value: | $442,692 |
| Bathrooms: | 2 | Bedrooms: | 3 | | Ceiling: | DRYWALL PAINTED | Exterior Wall/Cover: | CEMENT FIBER | | Floor Covering: | HARDWOOD/CARP 60-40 | Floor Structure: | WOOD W/SUBFLOOR | | Foundation: | CONCRETE | Heating: | FHA GAS | | Interior Finish: | DRYWALL PAINT | Plumbing Fixture Cnt: | 12 | | Roof Slope: | 8" IN 12" | Roof Structure/Cover: | CJ ASPHALT |
|
| | Type | Description | Class CD | Sub Class CD | Year Built | Area |
| | BAS | BASE/MAIN FLOOR | 4 | 0 | 1999 | 939.0 |
| | BIG | BUILT IN GARAGE | 4 | 0 | 1999 | 591.0 |
| | UPS | UPPER STORY | 4 | 0 | 1999 | 1603.0 |
| | OWP | OPEN WOOD PORCH W/STEPS | 4 | 0 | 1999 | 61.0 |
| | OWC | OPEN WOOD PORCH W/STEPS/ROOF/C | 4 | 0 | 1999 | 132.0 |
Sketch
Property Image
Land
| 1 | 13 | SQ (06001-08000) | 0.0000 | 0.00 | 0.00 | 0.00 | 1.00 | $300,000 | $0 |
Roll Value History
| 2026 | N/A | N/A | N/A | N/A | N/A |
| 2025 | $442,692 | $300,000 | $0 | $742,692 | $742,692 |
| 2024 | $448,010 | $300,000 | $0 | $748,010 | $748,010 |
| 2023 | $453,327 | $250,000 | $0 | $703,327 | $703,327 |
| 2022 | $415,307 | $210,000 | $0 | $625,307 | $625,307 |
| 2021 | $365,327 | $180,000 | $0 | $545,327 | $545,327 |
| 2020 | $336,060 | $180,000 | $0 | $516,060 | $516,060 |
| 2019 | $252,219 | $190,000 | $0 | $442,219 | $442,219 |
| 2018 | $252,968 | $175,000 | $0 | $427,968 | $427,968 |
| 2017 | $254,464 | $165,000 | $0 | $419,464 | $419,464 |
| 2016 | $257,458 | $150,000 | $0 | $407,458 | $407,458 |
| 2015 | $260,452 | $161,000 | $0 | $421,452 | $421,452 |
| 2014 | $268,657 | $161,000 | $0 | $429,657 | $429,657 |
| 2013 | $271,855 | $161,000 | $0 | $432,855 | $432,855 |
| 2012 | $275,052 | $168,360 | $0 | $443,412 | $443,412 |
| 2011 | $278,251 | $183,000 | $0 | $461,251 | $461,251 |
| 2010 | $287,800 | $183,000 | $0 | $470,800 | $470,800 |
| 2009 | $299,997 | $200,000 | $0 | $499,997 | $499,997 |
| 2008 | $336,834 | $250,000 | $0 | $586,834 | $586,834 |
| 2007 | $340,560 | $250,000 | $0 | $590,560 | $590,560 |
Deed and Sales History
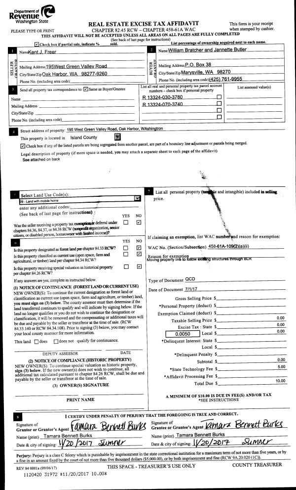
| 1 | 09/07/2017 | QCD | Quit Claim Deed | SCHNEIDER, CURTIS A | DUNCAN, DEANA | | | $0.00 | 31372 | 4431360 |
| 2 | 04/24/1998 | WD | Warranty Deed | SCHNEIDER, CURTIS A | SCHNEIDER, CURTIS A | | | $57,000.00 | 81581 | 98008520 |
| 3 | 05/01/1996 | QCD | Quit Claim Deed | SHELDON, GARY L | SHELDON, GARY L | | | $0.00 | 61719 | 96008549 |
| 4 | 05/01/1996 | QCD | Quit Claim Deed | SHELDON, GARY L | SHELDON, GARY L | | | $0.00 | 61720 | 96008550 |
| 5 | 05/01/1996 | WD | Warranty Deed | SHELDON, GARY L | THORNTON, JAMES M | | | $47,000.00 | 61721 | 96008551 |
| 6 | 10/01/1989 | WD | Warranty Deed | ALBRECHT, THOMAS C | SHELDON, GARY L | | | $33,000.00 | 94888 | 89015814 |
| 7 | 01/01/1900 | OTHER | Other - Misc. Documents | Unknown | ALBRECHT, THOMAS C | | | $0.00 | 94199 | 89013819 |
| 8 | 01/01/1900 | OTHER | Other - Misc. Documents | THORNTON, JAMES M | SCHNEIDER, CURTIS A | | | $0.00 | 81581 | 98008520 |
Payout Agreement
| No payout information available.. |