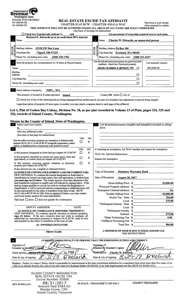
Property
Account |
| Property ID: | 642184 | Abbreviated Legal Description: | CASCADE VILLAGE #1 LOT 5 |
| Geographic ID: | S6333-00-00005-0 | Agent Code: | |
| Type: | Real | | |
| Tax Area: | 100 - APPRAISER-OH Schl Dist, in OH | Land Use Code | 11 |
| Open Space: | N | DFL | N |
| Historic Property: | N | Remodel Property: | N |
| Multi-Family Redevelopment: | N | | |
| Township: | | Section: | |
| Range: | |
Location |
| Address: | 470 SW ERIE CIR OAK HARBOR, WA 98277 | Mapsco: | |
| Neighborhood: | Cycle 1 | Map ID: | 93 |
| Neighborhood CD: | 1 |
Owner |
| Name: | LARTIGUE, JUSTIN A | Owner ID: | 306339 |
| Mailing Address: | VALERIE C. LARTIGUE 470 SW ERIE CIRCLE OAK HARBOR, WA 98277 | % Ownership: | 100.0000000000% |
| | | Exemptions: | |
Taxes and Assessment Details
Values
| (+) Improvement Homesite Value: | + | $0 | |
| (+) Improvement Non-Homesite Value: | + | $312,773 | |
| (+) Land Homesite Value: | + | $0 | |
| (+) Land Non-Homesite Value: | + | $200,000 | |
| (+) Curr Use (HS): | + | $0 | $0 |
| (+) Curr Use (NHS): | + | $0 | $0 |
| | | -------------------------- | |
| (=) Market Value: | = | $512,773 | |
| (–) Productivity Loss: | – | $0 | |
| | | -------------------------- | |
| (=) Subtotal: | = | $512,773 | |
| (+) Senior Appraised Value: | + | $0 | |
| (+) Non-Senior Appraised Value: | + | $512,773 | |
| | | -------------------------- | |
| (=) Total Appraised Value: | = | $512,773 | |
| (–) Senior Exemption Loss: | – | $0 | |
| (–) Exemption Loss: | – | $0 | |
| | | -------------------------- | |
| (=) Taxable Value: | = | $512,773 | |
Taxing Jurisdiction
| Owner: | LARTIGUE, JUSTIN A | | |
| % Ownership: | 100.0000000000% | | |
| Total Value: | $512,773 | | |
| Tax Area: | 100 - APPRAISER-OH Schl Dist, in OH |
| CF | Conservation Futures | 0.0316035091 | $512,773 | $512,773 | $16.21 | | |
| CEM1 | Cemetery #1 | 0.0040320932 | $512,773 | $512,773 | $2.07 | | |
| COH | City of Oak Harbor | 2.3001546061 | $512,773 | $512,773 | $1,179.46 | | |
| OAKBOND | City of Oak Harbor BOND | 0.1926904192 | $512,773 | $512,773 | $98.81 | | |
| HOBOND | Hospital BOND | 0.1910887512 | $512,773 | $512,773 | $97.99 | | |
| HOGEN | Hospital GEN | 0.3902502903 | $512,773 | $512,773 | $200.11 | | |
| CE | County Current Expense | 0.3708482477 | $512,773 | $512,773 | $190.16 | | |
| ISLANDEMS | Hospital GEN (EMS) | 0.5000000000 | $512,773 | $512,773 | $256.39 | | |
| LIB | Library Sno-Isle GEN | 0.3153421757 | $512,773 | $512,773 | $161.70 | | |
| NWHIDPRMT | P & R N Whidbey GEN | 0.2004466701 | $512,773 | $512,773 | $102.78 | | |
| SCH201MO | School 201 Enrichment | 1.8559231640 | $512,773 | $512,773 | $951.67 | | |
| ST | State School | 1.3035497053 | $512,773 | $512,773 | $668.43 | | |
| ST2 | State School Part 2 | 0.8169543533 | $512,773 | $512,773 | $418.91 | | |
| | Total Tax Rate: | 8.4728839852 | | | | | |
| | | | | Taxes w/Current Exemptions: | $4,344.69 | | |
| | | | | Taxes w/o Exemptions: | $4,344.69 | | |
Improvement / Building
| Improvement #1: | RESIDENTIAL | State Code: | Y | 2148.5 sqft | Value: | $312,773 |
| Bathrooms: | 2 | Bedrooms: | 4 | | Ceiling: | DRYWALL PAINTED | Exterior Wall/Cover: | CEMENT FIBER | | Floor Covering: | CARPET/VINYL 60-40 | Floor Structure: | WOOD W/SUBFLOOR | | Foundation: | CONCRETE | Heating: | FHA GAS | | Interior Finish: | DRYWALL PAINT | Plumbing Fixture Cnt: | 10 | | Roof Slope: | 5" IN 12" | Roof Structure/Cover: | CJ ASPHALT |
|
| | Type | Description | Class CD | Sub Class CD | Year Built | Area |
| | BAS | BASE/MAIN FLOOR | 3 | 0 | 1990 | 2148.5 |
| | OP4 | OPEN PORCH W/CEILING-ROOF | 3 | 0 | 1990 | 20.0 |
| | AGR | ATTACHED GARAGE | 3 | 0 | 1990 | 485.0 |
Sketch
Property Image
Land
| 1 | HS | HOMESITE | 0.1889 | 8228.48 | 0.00 | 0.00 | 1.00 | $200,000 | $0 |
Roll Value History
| 2026 | N/A | N/A | N/A | N/A | N/A |
| 2025 | $312,773 | $200,000 | $0 | $512,773 | $512,773 |
| 2024 | $316,769 | $180,000 | $0 | $496,769 | $496,769 |
| 2023 | $320,766 | $190,000 | $0 | $510,766 | $510,766 |
| 2022 | $285,727 | $180,000 | $0 | $465,727 | $465,727 |
| 2021 | $251,714 | $120,000 | $0 | $371,714 | $371,714 |
| 2020 | $245,910 | $100,000 | $0 | $345,910 | $345,910 |
| 2019 | $189,574 | $150,000 | $0 | $339,574 | $339,574 |
| 2018 | $190,172 | $130,000 | $0 | $320,172 | $320,172 |
| 2017 | $190,008 | $110,000 | $0 | $300,008 | $300,008 |
| 2016 | $192,445 | $90,000 | $0 | $282,445 | $282,445 |
| 2015 | $194,881 | $70,000 | $0 | $264,881 | $264,881 |
| 2014 | $197,317 | $55,000 | $0 | $252,317 | $252,317 |
| 2013 | $199,753 | $55,000 | $0 | $254,753 | $254,753 |
| 2012 | $202,190 | $60,000 | $0 | $262,190 | $262,190 |
| 2011 | $213,521 | $50,000 | $0 | $263,521 | $263,521 |
| 2010 | $222,756 | $50,000 | $0 | $272,756 | $272,756 |
| 2009 | $232,471 | $60,000 | $0 | $292,471 | $292,471 |
| 2008 | $235,447 | $64,000 | $0 | $299,447 | $299,447 |
| 2007 | $238,389 | $64,000 | $0 | $302,389 | $302,389 |
Deed and Sales History
| 1 | 10/07/2022 | WD | Warranty Deed | AKARD, TAMMY | LARTIGUE, JUSTIN A | | | $495,000.00 | 54852 | 4552523 |
| 2 | 03/16/2018 | WD | Warranty Deed | GIBSON, DOREEN M | AKARD, TAMMY | | | $320,000.00 | 33414 | 4441406 |
| 3 | 08/25/2017 | QCD | Quit Claim Deed | GIBSON, HARRY R | GIBSON, DOREEN M | | | $0.00 | 30911 | 4429348 |
| 4 | 11/11/1999 | WD | Warranty Deed | DIENST JR, WILLIAM L | GIBSON, HARRY R | | | $169,000.00 | 94772 | 99026784 |
| 5 | 08/01/1992 | WD | Warranty Deed | GANYO, DONALD J | DIENST, WILLIAM L | | | $157,000.00 | 23430 | 92016687 |
| 6 | 09/01/1990 | WD | Warranty Deed | HAMMING, GORDON | GANYO, DONALD J | | | $138,500.00 | 5388 | 90017994 |
| 7 | 03/01/1990 | DECREE | Divorce Decree/Legal Separation | HAMMING, GORDON | HAMMING, GORDON | | | $0.00 | 1659 | 90005373 |
| 8 | 01/01/1900 | OTHER | Other - Misc. Documents | Unknown | HAMMING, GORDON | | | $0.00 | 90683 | 89002392 |
| 9 | 01/01/1900 | OTHER | Other - Misc. Documents | DIENST, WILLIAM L | DIENST JR, WILLIAM L | | | $0.00 | 0 | 0 |
Payout Agreement
| No payout information available.. |