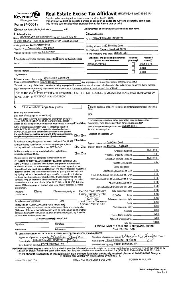
Property
Account |
| Property ID: | 642193 | Abbreviated Legal Description: | CASCADE VILLAGE #1 LOT 6 |
| Geographic ID: | S6333-00-00006-0 | Agent Code: | |
| Type: | Real | | |
| Tax Area: | 100 - APPRAISER-OH Schl Dist, in OH | Land Use Code | 11 |
| Open Space: | N | DFL | N |
| Historic Property: | N | Remodel Property: | N |
| Multi-Family Redevelopment: | N | | |
| Township: | | Section: | |
| Range: | |
Location |
| Address: | 464 SW ERIE CIR OAK HARBOR, WA 98277 | Mapsco: | |
| Neighborhood: | Cycle 1 | Map ID: | 93 |
| Neighborhood CD: | 1 |
Owner |
| Name: | ERSKINE, CHRISTIE L | Owner ID: | 283691 |
| Mailing Address: | 464 SW ERIE CIRCLE OAK HARBOR, WA 98277 | % Ownership: | 100.0000000000% |
| | | Exemptions: | |
Taxes and Assessment Details
Values
| (+) Improvement Homesite Value: | + | $0 | |
| (+) Improvement Non-Homesite Value: | + | $264,533 | |
| (+) Land Homesite Value: | + | $0 | |
| (+) Land Non-Homesite Value: | + | $200,000 | |
| (+) Curr Use (HS): | + | $0 | $0 |
| (+) Curr Use (NHS): | + | $0 | $0 |
| | | -------------------------- | |
| (=) Market Value: | = | $464,533 | |
| (–) Productivity Loss: | – | $0 | |
| | | -------------------------- | |
| (=) Subtotal: | = | $464,533 | |
| (+) Senior Appraised Value: | + | $0 | |
| (+) Non-Senior Appraised Value: | + | $464,533 | |
| | | -------------------------- | |
| (=) Total Appraised Value: | = | $464,533 | |
| (–) Senior Exemption Loss: | – | $0 | |
| (–) Exemption Loss: | – | $0 | |
| | | -------------------------- | |
| (=) Taxable Value: | = | $464,533 | |
Taxing Jurisdiction
| Owner: | ERSKINE, CHRISTIE L | | |
| % Ownership: | 100.0000000000% | | |
| Total Value: | $464,533 | | |
| Tax Area: | 100 - APPRAISER-OH Schl Dist, in OH |
| CF | Conservation Futures | 0.0316035091 | $464,533 | $464,533 | $14.68 | | |
| CEM1 | Cemetery #1 | 0.0040320932 | $464,533 | $464,533 | $1.87 | | |
| COH | City of Oak Harbor | 2.3001546061 | $464,533 | $464,533 | $1,068.50 | | |
| OAKBOND | City of Oak Harbor BOND | 0.1926904192 | $464,533 | $464,533 | $89.51 | | |
| HOBOND | Hospital BOND | 0.1910887512 | $464,533 | $464,533 | $88.77 | | |
| HOGEN | Hospital GEN | 0.3902502903 | $464,533 | $464,533 | $181.28 | | |
| CE | County Current Expense | 0.3708482477 | $464,533 | $464,533 | $172.27 | | |
| ISLANDEMS | Hospital GEN (EMS) | 0.5000000000 | $464,533 | $464,533 | $232.27 | | |
| LIB | Library Sno-Isle GEN | 0.3153421757 | $464,533 | $464,533 | $146.49 | | |
| NWHIDPRMT | P & R N Whidbey GEN | 0.2004466701 | $464,533 | $464,533 | $93.11 | | |
| SCH201MO | School 201 Enrichment | 1.8559231640 | $464,533 | $464,533 | $862.14 | | |
| ST | State School | 1.3035497053 | $464,533 | $464,533 | $605.54 | | |
| ST2 | State School Part 2 | 0.8169543533 | $464,533 | $464,533 | $379.50 | | |
| | Total Tax Rate: | 8.4728839852 | | | | | |
| | | | | Taxes w/Current Exemptions: | $3,935.93 | | |
| | | | | Taxes w/o Exemptions: | $3,935.93 | | |
Improvement / Building
| Improvement #1: | RESIDENTIAL | State Code: | Y | 1574.0 sqft | Value: | $264,533 |
| Bathrooms: | 2 | Bedrooms: | 3 | | Ceiling: | DRYWALL PAINTED | Exterior Wall/Cover: | CEMENT FIBER | | Floor Covering: | CARPET/VINYL 80-20 | Floor Structure: | WOOD W/SUBFLOOR | | Foundation: | CONCRETE | Heating: | FHA GAS | | Interior Finish: | DRYWALL PAINT | Plumbing Fixture Cnt: | 11 | | Roof Slope: | 4" IN 12" | Roof Structure/Cover: | CJ ASPHALT |
|
| | Type | Description | Class CD | Sub Class CD | Year Built | Area |
| | BAS | BASE/MAIN FLOOR | 3 | 0 | 1990 | 1574.0 |
| | AGR | ATTACHED GARAGE | 3 | 0 | 1990 | 575.0 |
| | OWP | OPEN WOOD PORCH W/STEPS | 3 | 0 | 1990 | 12.0 |
| | OWC | OPEN WOOD PORCH W/STEPS/ROOF/C | 3 | 0 | 1990 | 54.0 |
Sketch
Property Image
Land
| 1 | 13 | SQ (06001-08000) | 0.1895 | 8254.62 | 0.00 | 0.00 | 1.00 | $200,000 | $0 |
Roll Value History
| 2026 | N/A | N/A | N/A | N/A | N/A |
| 2025 | $264,533 | $200,000 | $0 | $464,533 | $464,533 |
| 2024 | $267,957 | $180,000 | $0 | $447,957 | $447,957 |
| 2023 | $264,533 | $190,000 | $0 | $454,533 | $454,533 |
| 2022 | $242,630 | $180,000 | $0 | $422,630 | $422,630 |
| 2021 | $213,684 | $120,000 | $0 | $333,684 | $333,684 |
| 2020 | $208,049 | $100,000 | $0 | $308,049 | $308,049 |
| 2019 | $150,421 | $150,000 | $0 | $300,421 | $300,421 |
| 2018 | $150,884 | $130,000 | $0 | $280,884 | $280,884 |
| 2017 | $145,672 | $110,000 | $0 | $255,672 | $255,672 |
| 2016 | $147,539 | $90,000 | $0 | $237,539 | $237,539 |
| 2015 | $149,407 | $70,000 | $0 | $219,407 | $219,407 |
| 2014 | $151,275 | $55,000 | $0 | $206,275 | $206,275 |
| 2013 | $153,143 | $55,000 | $0 | $208,143 | $208,143 |
| 2012 | $155,010 | $60,000 | $0 | $215,010 | $215,010 |
| 2011 | $162,962 | $50,000 | $0 | $212,962 | $212,962 |
| 2010 | $171,689 | $50,000 | $0 | $221,689 | $221,689 |
| 2009 | $178,991 | $60,000 | $0 | $238,991 | $238,991 |
| 2008 | $181,056 | $64,000 | $0 | $245,056 | $245,056 |
| 2007 | $183,121 | $64,000 | $0 | $247,121 | $247,121 |
Deed and Sales History
| 1 | 01/04/2018 | WD | Warranty Deed | BRANCH, DAVID W | ERSKINE, CHRISTIE L | | | $312,000.00 | 32724 | 4438088 |
| 2 | 02/18/2016 | CCOMPROP | Create Community Property | BRANCH, DAVID W | BRANCH, DAVID W | | | $0.00 | 23204 | 4394400 |
| 3 | 10/15/2015 | ESTSEPPROP | Establish Separate Property | BRANCH, DAVID W | BRANCH, DAVID W | | | $0.00 | 21774 | 4387841 |
| 4 | 10/15/2015 | WD | Warranty Deed | LEACH, BRIAN D / DEBORAH R | BRANCH, DAVID W | | | $260,000.00 | 21773 | 4387840 |
| 5 | 07/01/1991 | WD | Warranty Deed | BRADLEY, WESLEY D | LEACH, BRIAN D | | | $133,000.00 | 12446 | 91010457 |
| 6 | 01/01/1990 | WD | Warranty Deed | HAMMING, GORDON | BRADLEY, WESLEY D | | | $25,000.00 | 253 | 90000754 |
| 7 | 01/01/1900 | OTHER | Other - Misc. Documents | Unknown | HAMMING, GORDON | | | $0.00 | 90683 | 89002392 |
Payout Agreement
| No payout information available.. |