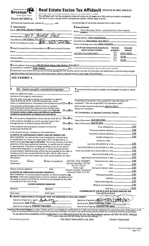
Property
Account |
| Property ID: | 642291 | Abbreviated Legal Description: | CASCADE VILLAGE #1 LOT 16 |
| Geographic ID: | S6333-00-00016-0 | Agent Code: | |
| Type: | Real | | |
| Tax Area: | 100 - APPRAISER-OH Schl Dist, in OH | Land Use Code | 11 |
| Open Space: | N | DFL | N |
| Historic Property: | N | Remodel Property: | N |
| Multi-Family Redevelopment: | N | | |
| Township: | | Section: | |
| Range: | |
Location |
| Address: | 483 SW ERIE CIR OAK HARBOR, WA 98277 | Mapsco: | |
| Neighborhood: | Cycle 1 | Map ID: | 93 |
| Neighborhood CD: | 1 |
Owner |
| Name: | HAMMING, GORDON | Owner ID: | 43679 |
| Mailing Address: | PO BOX 1892 OAK HARBOR, WA 98277-1892 | % Ownership: | 100.0000000000% |
| | | Exemptions: | |
Taxes and Assessment Details
Values
| (+) Improvement Homesite Value: | + | $0 | |
| (+) Improvement Non-Homesite Value: | + | $287,280 | |
| (+) Land Homesite Value: | + | $0 | |
| (+) Land Non-Homesite Value: | + | $200,000 | |
| (+) Curr Use (HS): | + | $0 | $0 |
| (+) Curr Use (NHS): | + | $0 | $0 |
| | | -------------------------- | |
| (=) Market Value: | = | $487,280 | |
| (–) Productivity Loss: | – | $0 | |
| | | -------------------------- | |
| (=) Subtotal: | = | $487,280 | |
| (+) Senior Appraised Value: | + | $0 | |
| (+) Non-Senior Appraised Value: | + | $487,280 | |
| | | -------------------------- | |
| (=) Total Appraised Value: | = | $487,280 | |
| (–) Senior Exemption Loss: | – | $0 | |
| (–) Exemption Loss: | – | $0 | |
| | | -------------------------- | |
| (=) Taxable Value: | = | $487,280 | |
Taxing Jurisdiction
| Owner: | HAMMING, GORDON | | |
| % Ownership: | 100.0000000000% | | |
| Total Value: | $487,280 | | |
| Tax Area: | 100 - APPRAISER-OH Schl Dist, in OH |
| CF | Conservation Futures | 0.0316035091 | $487,280 | $487,280 | $15.40 | | |
| CEM1 | Cemetery #1 | 0.0040320932 | $487,280 | $487,280 | $1.96 | | |
| COH | City of Oak Harbor | 2.3001546061 | $487,280 | $487,280 | $1,120.82 | | |
| OAKBOND | City of Oak Harbor BOND | 0.1926904192 | $487,280 | $487,280 | $93.89 | | |
| HOBOND | Hospital BOND | 0.1910887512 | $487,280 | $487,280 | $93.11 | | |
| HOGEN | Hospital GEN | 0.3902502903 | $487,280 | $487,280 | $190.16 | | |
| CE | County Current Expense | 0.3708482477 | $487,280 | $487,280 | $180.71 | | |
| ISLANDEMS | Hospital GEN (EMS) | 0.5000000000 | $487,280 | $487,280 | $243.64 | | |
| LIB | Library Sno-Isle GEN | 0.3153421757 | $487,280 | $487,280 | $153.66 | | |
| NWHIDPRMT | P & R N Whidbey GEN | 0.2004466701 | $487,280 | $487,280 | $97.67 | | |
| SCH201MO | School 201 Enrichment | 1.8559231640 | $487,280 | $487,280 | $904.35 | | |
| ST | State School | 1.3035497053 | $487,280 | $487,280 | $635.19 | | |
| ST2 | State School Part 2 | 0.8169543533 | $487,280 | $487,280 | $398.09 | | |
| | Total Tax Rate: | 8.4728839852 | | | | | |
| | | | | Taxes w/Current Exemptions: | $4,128.65 | | |
| | | | | Taxes w/o Exemptions: | $4,128.65 | | |
Improvement / Building
| Improvement #1: | RESIDENTIAL | State Code: | Y | 1740.0 sqft | Value: | $287,280 |
| Bathrooms: | 2 | Bedrooms: | 3 | | Ceiling: | DRYWALL PAINTED | Exterior Wall/Cover: | CEMENT FIBER | | Floor Covering: | CARPET/VINYL 80-20 | Floor Structure: | WOOD W/SUBFLOOR | | Foundation: | CONCRETE | Heating: | FHA GAS | | Interior Finish: | DRYWALL PAINT | Plumbing Fixture Cnt: | 11 | | Roof Slope: | 8" IN 12" | Roof Structure/Cover: | CJ ASPHALT |
|
| | Type | Description | Class CD | Sub Class CD | Year Built | Area |
| | BAS | BASE/MAIN FLOOR | 3 | 0 | 2005 | 1170.0 |
| | BIG | BUILT IN GARAGE | 3 | 0 | 2005 | 600.0 |
| | OWC | OPEN WOOD PORCH W/STEPS/ROOF/C | 3 | 0 | 2005 | 378.0 |
| | DWN | DOWNSTAIRS LIVING AREA | 3 | 0 | 2005 | 570.0 |
Sketch
Property Image
Land
| 1 | HS | HOMESITE | 0.1935 | 8428.86 | 0.00 | 0.00 | 1.00 | $200,000 | $0 |
Roll Value History
| 2026 | N/A | N/A | N/A | N/A | N/A |
| 2025 | $287,280 | $200,000 | $0 | $487,280 | $487,280 |
| 2024 | $290,772 | $180,000 | $0 | $470,772 | $470,772 |
| 2023 | $287,280 | $190,000 | $0 | $477,280 | $477,280 |
| 2022 | $263,287 | $180,000 | $0 | $443,287 | $443,287 |
| 2021 | $231,699 | $120,000 | $0 | $351,699 | $351,699 |
| 2020 | $225,629 | $100,000 | $0 | $325,629 | $325,629 |
| 2019 | $165,426 | $150,000 | $0 | $315,426 | $315,426 |
| 2018 | $165,906 | $130,000 | $0 | $295,906 | $295,906 |
| 2017 | $171,835 | $110,000 | $0 | $281,835 | $281,835 |
| 2016 | $173,809 | $90,000 | $0 | $263,809 | $263,809 |
| 2015 | $175,784 | $70,000 | $0 | $245,784 | $245,784 |
| 2014 | $177,759 | $55,000 | $0 | $232,759 | $232,759 |
| 2013 | $179,734 | $55,000 | $0 | $234,734 | $234,734 |
| 2012 | $181,709 | $60,000 | $0 | $241,709 | $241,709 |
| 2011 | $195,538 | $50,000 | $0 | $245,538 | $245,538 |
| 2010 | $201,522 | $50,000 | $0 | $251,522 | $251,522 |
| 2009 | $207,793 | $60,000 | $0 | $267,793 | $267,793 |
| 2008 | $210,041 | $64,000 | $0 | $274,041 | $274,041 |
| 2007 | $212,269 | $64,000 | $0 | $276,269 | $276,269 |
Deed and Sales History
| 1 | 03/01/1990 | DECREE | Divorce Decree/Legal Separation | HAMMING, GORDON | HAMMING, GORDON | | | $0.00 | 1659 | 90005373 |
| 2 | 01/01/1900 | OTHER | Other - Misc. Documents | Unknown | HAMMING, GORDON | | | $0.00 | 90683 | 89002392 |
Payout Agreement
| No payout information available.. |