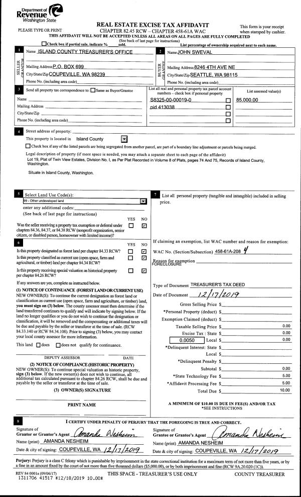
Property
Account |
| Property ID: | 642326 | Abbreviated Legal Description: | HIGHLANDS WEST #4 LOT 66 |
| Geographic ID: | S7132-04-00066-0 | Agent Code: | |
| Type: | Real | | |
| Tax Area: | 100 - APPRAISER-OH Schl Dist, in OH | Land Use Code | 11 |
| Open Space: | N | DFL | N |
| Historic Property: | N | Remodel Property: | N |
| Multi-Family Redevelopment: | N | | |
| Township: | | Section: | |
| Range: | |
Location |
| Address: | 1653 SW PUTNAM DR OAK HARBOR, WA 98277 | Mapsco: | |
| Neighborhood: | Cycle 1 | Map ID: | 92 |
| Neighborhood CD: | 1 |
Owner |
| Name: | DAVIS, BELINDA E | Owner ID: | 292239 |
| Mailing Address: | JOHN L DAVIS 1653 SW PUTNAM DR OAK HARBOR, WA 98277 | % Ownership: | 100.0000000000% |
| | | Exemptions: | |
Taxes and Assessment Details
Values
| (+) Improvement Homesite Value: | + | $0 | |
| (+) Improvement Non-Homesite Value: | + | $301,567 | |
| (+) Land Homesite Value: | + | $0 | |
| (+) Land Non-Homesite Value: | + | $210,000 | |
| (+) Curr Use (HS): | + | $0 | $0 |
| (+) Curr Use (NHS): | + | $0 | $0 |
| | | -------------------------- | |
| (=) Market Value: | = | $511,567 | |
| (–) Productivity Loss: | – | $0 | |
| | | -------------------------- | |
| (=) Subtotal: | = | $511,567 | |
| (+) Senior Appraised Value: | + | $0 | |
| (+) Non-Senior Appraised Value: | + | $511,567 | |
| | | -------------------------- | |
| (=) Total Appraised Value: | = | $511,567 | |
| (–) Senior Exemption Loss: | – | $0 | |
| (–) Exemption Loss: | – | $0 | |
| | | -------------------------- | |
| (=) Taxable Value: | = | $511,567 | |
Taxing Jurisdiction
| Owner: | DAVIS, BELINDA E | | |
| % Ownership: | 100.0000000000% | | |
| Total Value: | $511,567 | | |
| Tax Area: | 100 - APPRAISER-OH Schl Dist, in OH |
| CF | Conservation Futures | 0.0316035091 | $511,567 | $511,567 | $16.17 | | |
| CEM1 | Cemetery #1 | 0.0040320932 | $511,567 | $511,567 | $2.06 | | |
| COH | City of Oak Harbor | 2.3001546061 | $511,567 | $511,567 | $1,176.68 | | |
| OAKBOND | City of Oak Harbor BOND | 0.1926904192 | $511,567 | $511,567 | $98.57 | | |
| HOBOND | Hospital BOND | 0.1910887512 | $511,567 | $511,567 | $97.75 | | |
| HOGEN | Hospital GEN | 0.3902502903 | $511,567 | $511,567 | $199.64 | | |
| CE | County Current Expense | 0.3708482477 | $511,567 | $511,567 | $189.71 | | |
| ISLANDEMS | Hospital GEN (EMS) | 0.5000000000 | $511,567 | $511,567 | $255.78 | | |
| LIB | Library Sno-Isle GEN | 0.3153421757 | $511,567 | $511,567 | $161.32 | | |
| NWHIDPRMT | P & R N Whidbey GEN | 0.2004466701 | $511,567 | $511,567 | $102.54 | | |
| SCH201MO | School 201 Enrichment | 1.8559231640 | $511,567 | $511,567 | $949.43 | | |
| ST | State School | 1.3035497053 | $511,567 | $511,567 | $666.85 | | |
| ST2 | State School Part 2 | 0.8169543533 | $511,567 | $511,567 | $417.93 | | |
| | Total Tax Rate: | 8.4728839852 | | | | | |
| | | | | Taxes w/Current Exemptions: | $4,334.43 | | |
| | | | | Taxes w/o Exemptions: | $4,334.43 | | |
Improvement / Building
| Improvement #1: | RESIDENTIAL | State Code: | Y | 1695.5 sqft | Value: | $301,567 |
| Bathrooms: | 2.5 | Bedrooms: | 3 | | Ceiling: | DRYWALL PAINTED | Exterior Wall/Cover: | PLY/HARDBOARD T-111 | | Floor Covering: | HARDWOOD 100% | Floor Structure: | WOOD W/SUBFLOOR | | Foundation: | CONCRETE | Heating: | FHA GAS | | Interior Finish: | DRYWALL PAINT | Plumbing Fixture Cnt: | 11 | | Roof Slope: | 6" IN 12" | Roof Structure/Cover: | CJ ASPHALT |
|
| | Type | Description | Class CD | Sub Class CD | Year Built | Area |
| | BAS | BASE/MAIN FLOOR | 3 | 0 | 1990 | 951.5 |
| | AGR | ATTACHED GARAGE | 3 | 0 | 1990 | 480.0 |
| | UPS | UPPER STORY | 3 | 0 | 1990 | 744.0 |
| | OWP | OPEN WOOD PORCH W/STEPS | 3 | 0 | 1990 | 129.0 |
Sketch
Property Image
Land
| 1 | 14 | SQ (08001-12000) | 0.0000 | 0.00 | 0.00 | 0.00 | 1.00 | $210,000 | $0 |
Roll Value History
| 2026 | N/A | N/A | N/A | N/A | N/A |
| 2025 | $301,567 | $210,000 | $0 | $511,567 | $511,567 |
| 2024 | $305,278 | $190,000 | $0 | $495,278 | $495,278 |
| 2023 | $279,384 | $190,000 | $0 | $469,384 | $469,384 |
| 2022 | $256,187 | $180,000 | $0 | $436,187 | $436,187 |
| 2021 | $225,545 | $120,000 | $0 | $345,545 | $345,545 |
| 2020 | $219,706 | $100,000 | $0 | $319,706 | $319,706 |
| 2019 | $160,297 | $150,000 | $0 | $310,297 | $310,297 |
| 2018 | $160,778 | $130,000 | $0 | $290,778 | $290,778 |
| 2017 | $157,092 | $110,000 | $0 | $267,092 | $267,092 |
| 2016 | $159,007 | $90,000 | $0 | $249,007 | $249,007 |
| 2015 | $147,610 | $70,000 | $0 | $217,610 | $217,610 |
| 2014 | $149,605 | $55,000 | $0 | $204,605 | $204,605 |
| 2013 | $151,599 | $55,000 | $0 | $206,599 | $206,599 |
| 2012 | $153,595 | $68,000 | $0 | $221,595 | $221,595 |
| 2011 | $156,231 | $68,000 | $0 | $224,231 | $224,231 |
| 2010 | $165,774 | $68,000 | $0 | $233,774 | $233,774 |
| 2009 | $172,904 | $75,000 | $0 | $247,904 | $247,904 |
| 2008 | $174,986 | $100,000 | $0 | $274,986 | $274,986 |
| 2007 | $177,086 | $100,000 | $0 | $277,086 | $277,086 |
Deed and Sales History
| 1 | 10/02/2019 | WD | Warranty Deed | KEARNEY, PETER A | DAVIS, BELINDA E | | | $353,500.00 | 40718 | 4473510 |
| 2 | 03/30/2016 | WD | Warranty Deed | MELUM, TINA A | KEARNEY, PETER A | | | $290,000.00 | 23741 | 4396803 |
| 3 | 11/30/2009 | WD | Warranty Deed | VENER, MICHAEL B | MELUM, TINA A | | | $289,999.00 | 92971 | 4264694 |
| 4 | 05/22/2006 | WD | Warranty Deed | PARKER, MATTHEW M | VENER, MICHAEL B | | | $334,950.00 | 62388 | 4171994 |
| 5 | 07/03/2003 | ESTSEPPROP | Establish Separate Property | PARKER, MATTHEW M | PARKER, MATTHEW M | | | $0.00 | 32938 | 4066122 |
| 6 | 07/03/2003 | WD | Warranty Deed | LOCKLER, JOHN L | PARKER, MATTHEW M | | | $193,500.00 | 32937 | 4066121 |
| 7 | 03/01/1990 | WD | Warranty Deed | EERKES, KINGMA & | LOCKLER, JOHN L | | | $29,500.00 | 1636 | 90005286 |
| 8 | 01/01/1900 | OTHER | Other - Misc. Documents | Unknown | EERKES, KINGMA & | | | $0.00 | 0 | 0 |
Payout Agreement
| No payout information available.. |