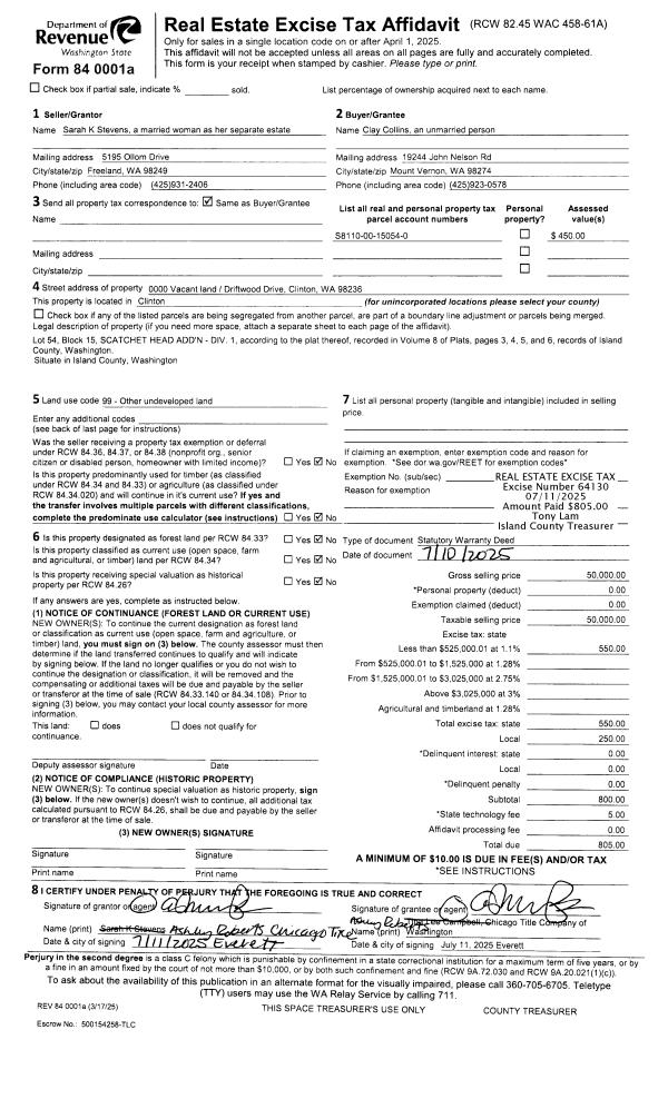
Property
Account |
| Property ID: | 6424 | Abbreviated Legal Description: | 10 R C HILL DC - BG SW CR ENGLE DLC N89*W467.93' ALG NLN SD HILL DLC S9*E370.42' S17*E456.49' S85*W123.58' N44*W.45' TPB N44*W79.34 S30*W TO HITDLN SELY ALG SD LN TP S22*W FR TPB N22*E TPB (LOT 13 SP 70-007 AF#239961 UNREC SHERHILL VISTA) |
| Geographic ID: | R13109-119-1180 | Agent Code: | |
| Type: | Real | | |
| Tax Area: | 310 - APPRAISER-Cpvl Schl Dist, outside Cpvl, improved & 1 acre or less | Land Use Code | 11 |
| Open Space: | N | DFL | N |
| Historic Property: | N | Remodel Property: | N |
| Multi-Family Redevelopment: | N | | |
| Township: | 31 | Section: | 09 |
| Range: | R1 |
Location |
| Address: | 706 CATHEDRAL DR COUPEVILLE, WA 98239 | Mapsco: | |
| Neighborhood: | Area 2 Waterfront Westside Residential | Map ID: | 42 |
| Neighborhood CD: | 2WFW01R |
Owner |
| Name: | VIERTEL, WILLIAM A | Owner ID: | 315012 |
| Mailing Address: | 706 CATHEDRAL DR COUPEVILLE, WA 98239 | % Ownership: | 100.0000000000% |
| | | Exemptions: | |
Taxes and Assessment Details
Values
| (+) Improvement Homesite Value: | + | $0 | |
| (+) Improvement Non-Homesite Value: | + | $589,157 | |
| (+) Land Homesite Value: | + | $0 | |
| (+) Land Non-Homesite Value: | + | $545,500 | |
| (+) Curr Use (HS): | + | $0 | $0 |
| (+) Curr Use (NHS): | + | $0 | $0 |
| | | -------------------------- | |
| (=) Market Value: | = | $1,134,657 | |
| (–) Productivity Loss: | – | $0 | |
| | | -------------------------- | |
| (=) Subtotal: | = | $1,134,657 | |
| (+) Senior Appraised Value: | + | $0 | |
| (+) Non-Senior Appraised Value: | + | $1,134,657 | |
| | | -------------------------- | |
| (=) Total Appraised Value: | = | $1,134,657 | |
| (–) Senior Exemption Loss: | – | $0 | |
| (–) Exemption Loss: | – | $0 | |
| | | -------------------------- | |
| (=) Taxable Value: | = | $1,134,657 | |
Taxing Jurisdiction
| Owner: | VIERTEL, WILLIAM A | | |
| % Ownership: | 100.0000000000% | | |
| Total Value: | $1,134,657 | | |
| Tax Area: | 310 - APPRAISER-Cpvl Schl Dist, outside Cpvl, improved & 1 acre or less |
| CF | Conservation Futures | 0.0316035091 | $1,134,657 | $1,134,657 | $35.86 | | |
| CEM2 | Cemetery #2 | 0.0095056933 | $1,134,657 | $1,134,657 | $10.79 | | |
| FIRE5 | Fire & Rescue Dist #5 C Whidbey GEN | 1.2008080668 | $1,134,657 | $1,134,657 | $1,362.51 | | |
| FIRE5BOND | Fire & Rescue Dist #5 C Whidbey BOND | 0.1400090713 | $1,134,657 | $1,134,657 | $158.86 | | |
| HOBOND | Hospital BOND | 0.1910887512 | $1,134,657 | $1,134,657 | $216.82 | | |
| HOGEN | Hospital GEN | 0.3902502903 | $1,134,657 | $1,134,657 | $442.80 | | |
| CE | County Current Expense | 0.3708482477 | $1,134,657 | $1,134,657 | $420.79 | | |
| CR | County Roads | 0.4584763726 | $1,134,657 | $1,134,657 | $520.21 | | |
| ISLANDEMS | Hospital GEN (EMS) | 0.5000000000 | $1,134,657 | $1,134,657 | $567.33 | | |
| LIB | Library Sno-Isle GEN | 0.3153421757 | $1,134,657 | $1,134,657 | $357.81 | | |
| LIBCAP | Library Sno-Isle BOND (Cap Fac Imp Area) | 0.0543427938 | $1,134,657 | $1,134,657 | $61.66 | | |
| POCOUP | Port of Coupeville GEN | 0.1093371703 | $1,134,657 | $1,134,657 | $124.06 | | |
| POCOUPIDD | Port of Coupeville IDD | 0.3409740022 | $1,134,657 | $1,134,657 | $386.89 | | |
| COUPSDTECH | School 204 CP (TECH) | 0.7545480007 | $1,134,657 | $1,134,657 | $856.15 | | |
| SCH204MO | School 204 Enrichment | 0.6716186034 | $1,134,657 | $1,134,657 | $762.06 | | |
| ST | State School | 1.3035497053 | $1,134,657 | $1,134,657 | $1,479.08 | | |
| ST2 | State School Part 2 | 0.8169543533 | $1,134,657 | $1,134,657 | $926.96 | | |
| | Total Tax Rate: | 7.6592568070 | | | | | |
| | | | | Taxes w/Current Exemptions: | $8,690.64 | | |
| | | | | Taxes w/o Exemptions: | $8,690.64 | | |
Improvement / Building
| Improvement #1: | RESIDENTIAL | State Code: | Y | 3054.9 sqft | Value: | $589,157 |
| Bathrooms: | 3 | Bedrooms: | 3 | | Ceiling: | DRYWALL PAINTED | Cooling: | HEAT PUMP/CONV/V | | Exterior Wall/Cover: | WOOD SIDING | Floor Covering: | CARPET/VINYL 80-20 | | Floor Structure: | WOOD W/SUBFLOOR | Foundation: | CONCRETE | | Interior Finish: | DRYWALL PAINT | Plumbing Fixture Cnt: | 13 | | Roof Slope: | 4" IN 12" | Roof Structure/Cover: | CJ ALUMINIUM HEAVY |
|
| | Type | Description | Class CD | Sub Class CD | Year Built | Area |
| | BAS | BASE/MAIN FLOOR | 5 | 0 | 1986 | 1808.4 |
| | AGR | ATTACHED GARAGE | 5 | 0 | 1986 | 775.5 |
| | UPS | UPPER STORY | 5 | 0 | 1986 | 1246.5 |
| | BAW | BALCONY WOOD RAIL | 5 | 0 | 1986 | 37.1 |
| | OWP | OPEN WOOD PORCH W/STEPS | 5 | 0 | 1986 | 109.5 |
| | OWP | OPEN WOOD PORCH W/STEPS | 5 | 0 | 1986 | 1124.4 |
| | OWP | OPEN WOOD PORCH W/STEPS | 5 | 0 | 1986 | 192.0 |
| | OWC | OPEN WOOD PORCH W/STEPS/ROOF/C | 5 | 0 | 1986 | 14.5 |
| | ENP | ENCLOSED PORCH | 5 | 0 | 1986 | 138.8 |
Sketch
Property Image
Land
| 1 | HB | HIGH BLUFF | 0.4800 | 20908.80 | 100.00 | 0.00 | 1.00 | $545,500 | $0 |
Roll Value History
| 2026 | N/A | N/A | N/A | N/A | N/A |
| 2025 | $589,157 | $545,500 | $0 | $1,134,657 | $1,134,657 |
| 2024 | $559,041 | $545,500 | $0 | $1,104,541 | $1,104,541 |
| 2023 | $566,569 | $519,750 | $0 | $1,086,319 | $1,086,319 |
| 2022 | $519,872 | $495,000 | $0 | $1,014,872 | $1,014,872 |
| 2021 | $457,977 | $450,000 | $0 | $907,977 | $907,977 |
| 2020 | $447,117 | $450,000 | $0 | $897,117 | $897,117 |
| 2019 | $375,183 | $500,000 | $0 | $875,183 | $875,183 |
| 2018 | $380,557 | $500,000 | $0 | $880,557 | $880,557 |
| 2017 | $383,125 | $500,000 | $0 | $883,125 | $883,125 |
| 2016 | $388,431 | $500,000 | $0 | $888,431 | $888,431 |
| 2015 | $393,738 | $500,000 | $0 | $893,738 | $893,738 |
| 2014 | $399,042 | $500,000 | $0 | $899,042 | $899,042 |
| 2013 | $404,345 | $459,264 | $0 | $863,609 | $863,609 |
| 2012 | $410,833 | $459,264 | $0 | $870,097 | $870,097 |
| 2011 | $416,138 | $540,402 | $0 | $956,540 | $956,540 |
| 2010 | $426,649 | $540,402 | $0 | $967,051 | $967,051 |
| 2009 | $445,058 | $581,210 | $0 | $1,026,268 | $1,026,268 |
| 2008 | $444,819 | $562,661 | $0 | $1,007,480 | $1,007,480 |
| 2007 | $450,143 | $426,633 | $0 | $876,776 | $876,776 |
Deed and Sales History
| 1 | 12/30/2024 | CPADC | Comm Prop Agmnt & Death Cert | VIERTEL, WILLIAM A / CAROL M | VIERTEL, WILLIAM A | | | $0.00 | 62215 | 4580838 |
| 2 | 11/01/1997 | WD | Warranty Deed | HUDSPETH, GEORGE C | VIERTEL, WILLIAM A | | | $398,000.00 | 74026 | 97019314 |
| 3 | 05/01/1990 | WD | Warranty Deed | LOTZENHISER, GEORGE W | HUDSPETH, GEORGE C | | | $366,687.00 | 3087 | 90010040 |
| 4 | 11/01/1977 | EXECUTORD | Executor Deed | Unknown | LOTZENHISER, GEORGE W | | | $30,000.00 | 74985 | 0 |
Payout Agreement
| No payout information available.. |