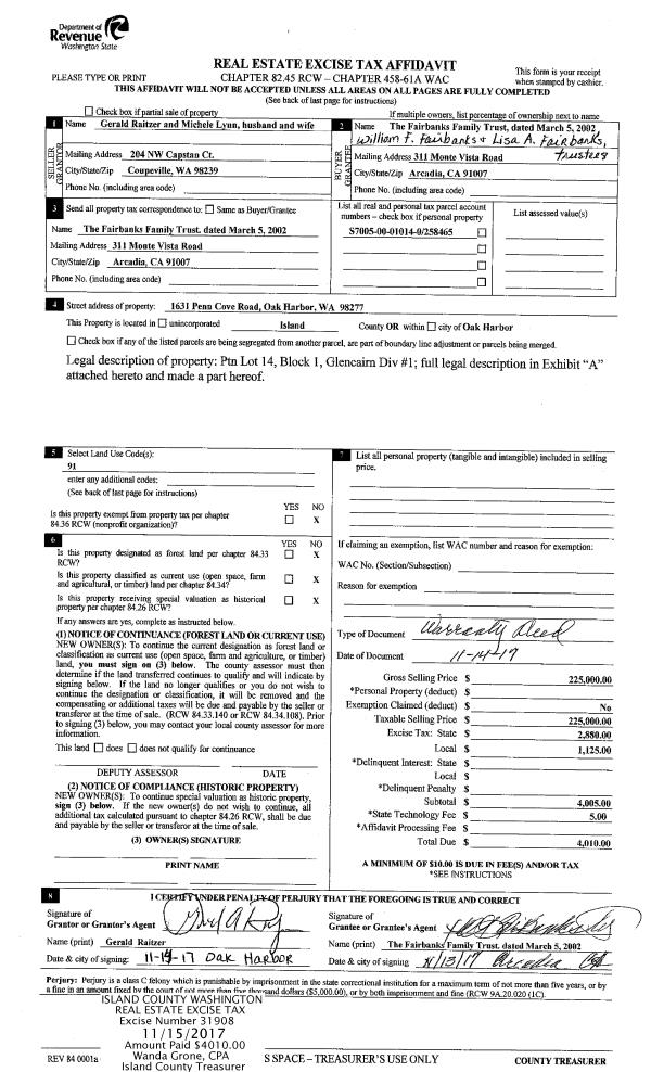
Property
Account |
| Property ID: | 642647 | Abbreviated Legal Description: | PIPER HEIGHTS #1 LOT 5 |
| Geographic ID: | S7747-00-00005-0 | Agent Code: | |
| Type: | Real | | |
| Tax Area: | 100 - APPRAISER-OH Schl Dist, in OH | Land Use Code | 11 |
| Open Space: | N | DFL | N |
| Historic Property: | N | Remodel Property: | N |
| Multi-Family Redevelopment: | N | | |
| Township: | | Section: | |
| Range: | |
Location |
| Address: | 1247 SW 6TH AVE OAK HARBOR, WA 98277 | Mapsco: | |
| Neighborhood: | Cycle 1 | Map ID: | 92 |
| Neighborhood CD: | 1 |
Owner |
| Name: | MCLEOD, CARL H | Owner ID: | 79460 |
| Mailing Address: | ALTHEA R MCLEOD 1247 SW 6TH AVE OAK HARBOR, WA 98277 | % Ownership: | 100.0000000000% |
| | | Exemptions: | |
Taxes and Assessment Details
Values
| (+) Improvement Homesite Value: | + | $0 | |
| (+) Improvement Non-Homesite Value: | + | $349,748 | |
| (+) Land Homesite Value: | + | $0 | |
| (+) Land Non-Homesite Value: | + | $190,000 | |
| (+) Curr Use (HS): | + | $0 | $0 |
| (+) Curr Use (NHS): | + | $0 | $0 |
| | | -------------------------- | |
| (=) Market Value: | = | $539,748 | |
| (–) Productivity Loss: | – | $0 | |
| | | -------------------------- | |
| (=) Subtotal: | = | $539,748 | |
| (+) Senior Appraised Value: | + | $0 | |
| (+) Non-Senior Appraised Value: | + | $539,748 | |
| | | -------------------------- | |
| (=) Total Appraised Value: | = | $539,748 | |
| (–) Senior Exemption Loss: | – | $0 | |
| (–) Exemption Loss: | – | $0 | |
| | | -------------------------- | |
| (=) Taxable Value: | = | $539,748 | |
Taxing Jurisdiction
| Owner: | MCLEOD, CARL H | | |
| % Ownership: | 100.0000000000% | | |
| Total Value: | $539,748 | | |
| Tax Area: | 100 - APPRAISER-OH Schl Dist, in OH |
| CF | Conservation Futures | 0.0316035091 | $539,748 | $539,748 | $17.06 | | |
| CEM1 | Cemetery #1 | 0.0040320932 | $539,748 | $539,748 | $2.18 | | |
| COH | City of Oak Harbor | 2.3001546061 | $539,748 | $539,748 | $1,241.50 | | |
| OAKBOND | City of Oak Harbor BOND | 0.1926904192 | $539,748 | $539,748 | $104.00 | | |
| HOBOND | Hospital BOND | 0.1910887512 | $539,748 | $539,748 | $103.14 | | |
| HOGEN | Hospital GEN | 0.3902502903 | $539,748 | $539,748 | $210.64 | | |
| CE | County Current Expense | 0.3708482477 | $539,748 | $539,748 | $200.16 | | |
| ISLANDEMS | Hospital GEN (EMS) | 0.5000000000 | $539,748 | $539,748 | $269.87 | | |
| LIB | Library Sno-Isle GEN | 0.3153421757 | $539,748 | $539,748 | $170.21 | | |
| NWHIDPRMT | P & R N Whidbey GEN | 0.2004466701 | $539,748 | $539,748 | $108.19 | | |
| SCH201MO | School 201 Enrichment | 1.8559231640 | $539,748 | $539,748 | $1,001.73 | | |
| ST | State School | 1.3035497053 | $539,748 | $539,748 | $703.59 | | |
| ST2 | State School Part 2 | 0.8169543533 | $539,748 | $539,748 | $440.95 | | |
| | Total Tax Rate: | 8.4728839852 | | | | | |
| | | | | Taxes w/Current Exemptions: | $4,573.22 | | |
| | | | | Taxes w/o Exemptions: | $4,573.22 | | |
Improvement / Building
| Improvement #1: | RESIDENTIAL | State Code: | Y | 2103.6 sqft | Value: | $349,748 |
| Bathrooms: | 2.5 | Bedrooms: | 4 | | Ceiling: | DRYWALL PAINTED | Exterior Wall/Cover: | WOOD SIDING | | Floor Covering: | HARDWOOD/CARP 60-40 | Floor Structure: | WOOD W/SUBFLOOR | | Foundation: | CONCRETE | Heating: | FHA GAS | | Interior Finish: | DRYWALL PAINT | Plumbing Fixture Cnt: | 13 | | Roof Slope: | 5" IN 12" | Roof Structure/Cover: | CJ WOOD SHAKES |
|
| | Type | Description | Class CD | Sub Class CD | Year Built | Area |
| | BAS | BASE/MAIN FLOOR | 3 | 0 | 1990 | 1083.0 |
| | OP4 | OPEN PORCH W/CEILING-ROOF | 3 | 0 | 1990 | 64.0 |
| | AGR | ATTACHED GARAGE | 3 | 0 | 1990 | 312.0 |
| | BIG | BUILT IN GARAGE | 3 | 0 | 1990 | 286.0 |
| | UPS | UPPER STORY | 3 | 0 | 1990 | 1020.6 |
| | OWP | OPEN WOOD PORCH W/STEPS | 3 | 0 | 1990 | 247.0 |
Sketch
Property Image
Land
| 1 | 14 | SQ (08001-12000) | 0.0000 | 0.00 | 0.00 | 0.00 | 1.00 | $190,000 | $0 |
Roll Value History
| 2026 | N/A | N/A | N/A | N/A | N/A |
| 2025 | $349,748 | $190,000 | $0 | $539,748 | $539,748 |
| 2024 | $354,276 | $180,000 | $0 | $534,276 | $534,276 |
| 2023 | $349,748 | $190,000 | $0 | $539,748 | $539,748 |
| 2022 | $320,791 | $180,000 | $0 | $500,791 | $500,791 |
| 2021 | $282,512 | $120,000 | $0 | $402,512 | $402,512 |
| 2020 | $275,484 | $100,000 | $0 | $375,484 | $375,484 |
| 2019 | $209,857 | $150,000 | $0 | $359,857 | $359,857 |
| 2018 | $210,502 | $130,000 | $0 | $340,502 | $340,502 |
| 2017 | $200,540 | $110,000 | $0 | $310,540 | $310,540 |
| 2016 | $203,110 | $90,000 | $0 | $293,110 | $293,110 |
| 2015 | $205,680 | $70,000 | $0 | $275,680 | $275,680 |
| 2014 | $208,252 | $55,000 | $0 | $263,252 | $263,252 |
| 2013 | $210,822 | $55,000 | $0 | $265,822 | $265,822 |
| 2012 | $213,393 | $60,000 | $0 | $273,393 | $273,393 |
| 2011 | $222,278 | $50,000 | $0 | $272,278 | $272,278 |
| 2010 | $228,041 | $50,000 | $0 | $278,041 | $278,041 |
| 2009 | $237,773 | $60,000 | $0 | $297,773 | $297,773 |
| 2008 | $240,516 | $72,000 | $0 | $312,516 | $312,516 |
| 2007 | $243,260 | $72,000 | $0 | $315,260 | $315,260 |
Deed and Sales History
| 1 | 07/09/2008 | WD | Warranty Deed | GONZALEZ, MARC C | MCLEOD, CARL H | | | $338,000.00 | 81825 | 4232725 |
| 2 | 05/04/2005 | WD | Warranty Deed | RUTH, JEFFREY S | GONZALEZ, MARC C | | | $292,500.00 | 52077 | 4133994 |
| 3 | 08/26/2002 | WD | Warranty Deed | PAREDES, ROBERT E | RUTH, JEFFREY S | | | $215,000.00 | 23542 | 4030496 |
| 4 | 12/01/1991 | WD | Warranty Deed | JOSLIN, WALTER C | PAREDES, ROBERT E | | | $165,500.00 | 14408 | 91019281 |
| 5 | 06/01/1990 | WD | Warranty Deed | WALDRON, STEVEN O | JOSLIN, WALTER C | | | $142,000.00 | 3476 | 90011273 |
| 6 | 12/01/1989 | WD | Warranty Deed | KINGMA, RYAN H | WALDRON, STEVEN O | | | $28,500.00 | 96046 | 89019493 |
| 7 | 01/01/1900 | OTHER | Other - Misc. Documents | Unknown | KINGMA, RYAN H | | | $0.00 | 91295 | 89004561 |
Payout Agreement
| No payout information available.. |