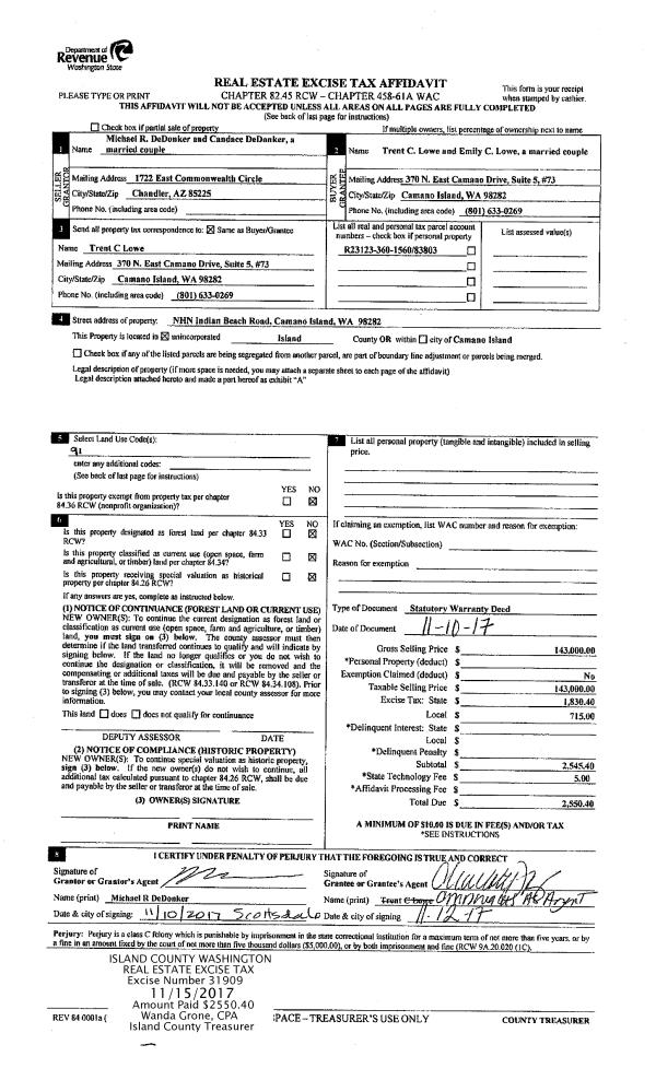
Property
Account |
| Property ID: | 642674 | Abbreviated Legal Description: | PIPER HEIGHTS #1 LOT 8 |
| Geographic ID: | S7747-00-00008-0 | Agent Code: | |
| Type: | Real | | |
| Tax Area: | 100 - APPRAISER-OH Schl Dist, in OH | Land Use Code | 11 |
| Open Space: | N | DFL | N |
| Historic Property: | N | Remodel Property: | N |
| Multi-Family Redevelopment: | N | | |
| Township: | | Section: | |
| Range: | |
Location |
| Address: | 1385 SW 6TH AVE OAK HARBOR, WA 98277 | Mapsco: | |
| Neighborhood: | Cycle 1 | Map ID: | 92 |
| Neighborhood CD: | 1 |
Owner |
| Name: | PANGELINAN JTWROS, FELIX R | Owner ID: | 79463 |
| Mailing Address: | ROSARIO Z PANGELINAN ET AL 1385 SW 6TH AVE OAK HARBOR, WA 98277 | % Ownership: | 100.0000000000% |
| | | Exemptions: | |
Taxes and Assessment Details
Values
| (+) Improvement Homesite Value: | + | $0 | |
| (+) Improvement Non-Homesite Value: | + | $292,607 | |
| (+) Land Homesite Value: | + | $0 | |
| (+) Land Non-Homesite Value: | + | $190,000 | |
| (+) Curr Use (HS): | + | $0 | $0 |
| (+) Curr Use (NHS): | + | $0 | $0 |
| | | -------------------------- | |
| (=) Market Value: | = | $482,607 | |
| (–) Productivity Loss: | – | $0 | |
| | | -------------------------- | |
| (=) Subtotal: | = | $482,607 | |
| (+) Senior Appraised Value: | + | $0 | |
| (+) Non-Senior Appraised Value: | + | $482,607 | |
| | | -------------------------- | |
| (=) Total Appraised Value: | = | $482,607 | |
| (–) Senior Exemption Loss: | – | $0 | |
| (–) Exemption Loss: | – | $0 | |
| | | -------------------------- | |
| (=) Taxable Value: | = | $482,607 | |
Taxing Jurisdiction
| Owner: | PANGELINAN JTWROS, FELIX R | | |
| % Ownership: | 100.0000000000% | | |
| Total Value: | $482,607 | | |
| Tax Area: | 100 - APPRAISER-OH Schl Dist, in OH |
| CF | Conservation Futures | 0.0316035091 | $482,607 | $482,607 | $15.25 | | |
| CEM1 | Cemetery #1 | 0.0040320932 | $482,607 | $482,607 | $1.95 | | |
| COH | City of Oak Harbor | 2.3001546061 | $482,607 | $482,607 | $1,110.07 | | |
| OAKBOND | City of Oak Harbor BOND | 0.1926904192 | $482,607 | $482,607 | $92.99 | | |
| HOBOND | Hospital BOND | 0.1910887512 | $482,607 | $482,607 | $92.22 | | |
| HOGEN | Hospital GEN | 0.3902502903 | $482,607 | $482,607 | $188.34 | | |
| CE | County Current Expense | 0.3708482477 | $482,607 | $482,607 | $178.97 | | |
| ISLANDEMS | Hospital GEN (EMS) | 0.5000000000 | $482,607 | $482,607 | $241.30 | | |
| LIB | Library Sno-Isle GEN | 0.3153421757 | $482,607 | $482,607 | $152.19 | | |
| NWHIDPRMT | P & R N Whidbey GEN | 0.2004466701 | $482,607 | $482,607 | $96.74 | | |
| SCH201MO | School 201 Enrichment | 1.8559231640 | $482,607 | $482,607 | $895.68 | | |
| ST | State School | 1.3035497053 | $482,607 | $482,607 | $629.10 | | |
| ST2 | State School Part 2 | 0.8169543533 | $482,607 | $482,607 | $394.27 | | |
| | Total Tax Rate: | 8.4728839852 | | | | | |
| | | | | Taxes w/Current Exemptions: | $4,089.07 | | |
| | | | | Taxes w/o Exemptions: | $4,089.07 | | |
Improvement / Building
| Improvement #1: | RESIDENTIAL | State Code: | Y | 1867.2 sqft | Value: | $292,607 |
| Bathrooms: | 2.5 | Bedrooms: | 3 | | Ceiling: | DRYWALL PAINTED | Exterior Wall/Cover: | CEMENT FIBER | | Floor Covering: | CARPET/VINYL 80-20 | Floor Structure: | WOOD W/SUBFLOOR | | Foundation: | CONCRETE | Heating: | FHA GAS | | Interior Finish: | DRYWALL PAINT | Plumbing Fixture Cnt: | 11 | | Roof Slope: | 8" IN 12" | Roof Structure/Cover: | CJ ASPHALT |
|
| | Type | Description | Class CD | Sub Class CD | Year Built | Area |
| | BAS | BASE/MAIN FLOOR | 3 | 0 | 1998 | 1175.2 |
| | AGR | ATTACHED GARAGE | 3 | 0 | 1998 | 296.0 |
| | BIG | BUILT IN GARAGE | 3 | 0 | 1998 | 144.0 |
| | LOF | LOFT | 3 | 0 | 1998 | 276.0 |
| | OWC | OPEN WOOD PORCH W/STEPS/ROOF/C | 3 | 0 | 1998 | 139.0 |
| | UPS | UPPER STORY | 3 | 0 | 1998 | 416.0 |
Sketch
Property Image
Land
| 1 | 14 | SQ (08001-12000) | 0.0000 | 0.00 | 0.00 | 0.00 | 1.00 | $190,000 | $0 |
Roll Value History
| 2026 | N/A | N/A | N/A | N/A | N/A |
| 2025 | $292,607 | $190,000 | $0 | $482,607 | $482,607 |
| 2024 | $296,164 | $180,000 | $0 | $476,164 | $476,164 |
| 2023 | $295,791 | $190,000 | $0 | $485,791 | $485,791 |
| 2022 | $271,104 | $180,000 | $0 | $451,104 | $451,104 |
| 2021 | $238,573 | $120,000 | $0 | $358,573 | $358,573 |
| 2020 | $232,463 | $100,000 | $0 | $332,463 | $332,463 |
| 2019 | $173,620 | $150,000 | $0 | $323,620 | $323,620 |
| 2018 | $174,124 | $130,000 | $0 | $304,124 | $304,124 |
| 2017 | $159,590 | $110,000 | $0 | $269,590 | $269,590 |
| 2016 | $161,534 | $90,000 | $0 | $251,534 | $251,534 |
| 2015 | $163,480 | $70,000 | $0 | $233,480 | $233,480 |
| 2014 | $165,427 | $55,000 | $0 | $220,427 | $220,427 |
| 2013 | $167,372 | $55,000 | $0 | $222,372 | $222,372 |
| 2012 | $169,318 | $60,000 | $0 | $229,318 | $229,318 |
| 2011 | $215,289 | $50,000 | $0 | $265,289 | $265,289 |
| 2010 | $223,002 | $50,000 | $0 | $273,002 | $273,002 |
| 2009 | $232,719 | $60,000 | $0 | $292,719 | $292,719 |
| 2008 | $235,797 | $72,000 | $0 | $307,797 | $307,797 |
| 2007 | $236,405 | $72,000 | $0 | $308,405 | $308,405 |
Deed and Sales History
| 1 | 07/19/2005 | 5 | DNU - Marriage License/Name Change | PANGELINAN, FELIX R | PANGELINAN JTWROS, FELIX R & J | | | $0.00 | 53480 | 4141257 |
| 2 | 06/03/1998 | QCD | Quit Claim Deed | PANGELINAN, FELIX R | PANGELINAN, FELIX R | | | $0.00 | 82217 | 98011544 |
| 3 | 05/28/1998 | QCD | Quit Claim Deed | PANGELINAN, FELIX R | PANGELINAN, FELIX R | | | $0.00 | 82203 | 98011488 |
| 4 | 05/28/1998 | QCD | Quit Claim Deed | PANGELINAN, FELIX R | PANGELINAN, FELIX R | | | $0.00 | 82202 | 98011487 |
| 5 | 09/01/1996 | QCD | Quit Claim Deed | PANGELINAN, FELIX R | PANGELINAN, FELIX R | | | $0.00 | 63342 | 96016374 |
| 6 | 10/01/1992 | WD | Warranty Deed | FODOR, DOROTHY | PANGELINAN, FELIX R | | | $32,000.00 | 24000 | 92019434 |
| 7 | 08/01/1990 | WD | Warranty Deed | KINGMA, RYAN H | FODOR, DOROTHY | | | $30,000.00 | 4778 | 90015771 |
| 8 | 01/01/1900 | OTHER | Other - Misc. Documents | Unknown | KINGMA, RYAN H | | | $0.00 | 91295 | 89004561 |
| 9 | 01/01/1900 | OTHER | Other - Misc. Documents | PANGELINAN, FELIX R | PANGELINAN, FELIX R | | | $0.00 | 82202 | 98011487 |
| 10 | 01/01/1900 | OTHER | Other - Misc. Documents | PANGELINAN, FELIX R | PANGELINAN, FELIX R | | | $0.00 | 82203 | 98011488 |
| 11 | 01/01/1900 | OTHER | Other - Misc. Documents | PANGELINAN, FELIX R | PANGELINAN, FELIX R | | | $0.00 | 82217 | 98011544 |
Payout Agreement
| No payout information available.. |