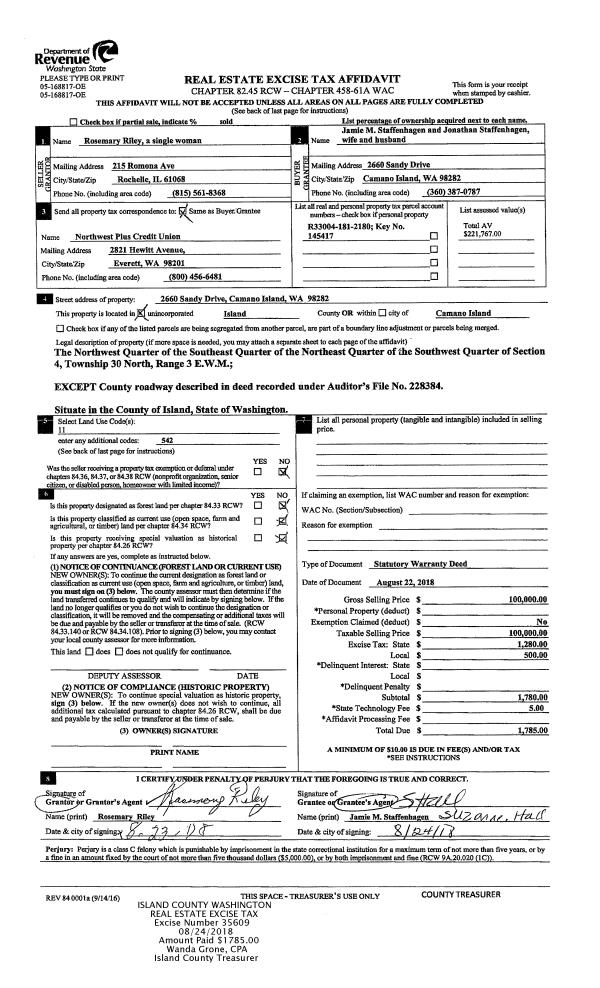
Property
Account |
| Property ID: | 643520 | Abbreviated Legal Description: | PEACEFUL VALLEY P.U.D. LOT A-16 |
| Geographic ID: | S7708-00-00A16-0 | Agent Code: | |
| Type: | Real | | |
| Tax Area: | 300 - APPRAISER-Cpvl Schl Dist, in Cpvl | Land Use Code | 11 |
| Open Space: | N | DFL | N |
| Historic Property: | N | Remodel Property: | N |
| Multi-Family Redevelopment: | N | | |
| Township: | | Section: | |
| Range: | |
Location |
| Address: | 305 NW CAPSTAN CT COUPEVILLE, WA 98239 | Mapsco: | |
| Neighborhood: | Cycle 2 | Map ID: | 173 |
| Neighborhood CD: | 2 |
Owner |
| Name: | ZITO, ISAIAH | Owner ID: | 286784 |
| Mailing Address: | ANGELICA ZITO 305 NW CAPSTAN CT COUPEVILLE, WA 98239 | % Ownership: | 100.0000000000% |
| | | Exemptions: | |
Taxes and Assessment Details
Values
| (+) Improvement Homesite Value: | + | $0 | |
| (+) Improvement Non-Homesite Value: | + | $198,830 | |
| (+) Land Homesite Value: | + | $0 | |
| (+) Land Non-Homesite Value: | + | $230,000 | |
| (+) Curr Use (HS): | + | $0 | $0 |
| (+) Curr Use (NHS): | + | $0 | $0 |
| | | -------------------------- | |
| (=) Market Value: | = | $428,830 | |
| (–) Productivity Loss: | – | $0 | |
| | | -------------------------- | |
| (=) Subtotal: | = | $428,830 | |
| (+) Senior Appraised Value: | + | $0 | |
| (+) Non-Senior Appraised Value: | + | $428,830 | |
| | | -------------------------- | |
| (=) Total Appraised Value: | = | $428,830 | |
| (–) Senior Exemption Loss: | – | $0 | |
| (–) Exemption Loss: | – | $0 | |
| | | -------------------------- | |
| (=) Taxable Value: | = | $428,830 | |
Taxing Jurisdiction
| Owner: | ZITO, ISAIAH | | |
| % Ownership: | 100.0000000000% | | |
| Total Value: | $428,830 | | |
| Tax Area: | 300 - APPRAISER-Cpvl Schl Dist, in Cpvl |
| CF | Conservation Futures | 0.0316035091 | $428,830 | $428,830 | $13.55 | | |
| CEM2 | Cemetery #2 | 0.0095056933 | $428,830 | $428,830 | $4.08 | | |
| COUP | City: Town of Coupeville | 0.8426414490 | $428,830 | $428,830 | $361.35 | | |
| FIRE5 | Fire & Rescue Dist #5 C Whidbey GEN | 1.2008080668 | $428,830 | $428,830 | $514.94 | | |
| FIRE5BOND | Fire & Rescue Dist #5 C Whidbey BOND | 0.1400090713 | $428,830 | $428,830 | $60.04 | | |
| HOBOND | Hospital BOND | 0.1910887512 | $428,830 | $428,830 | $81.94 | | |
| HOGEN | Hospital GEN | 0.3902502903 | $428,830 | $428,830 | $167.35 | | |
| CE | County Current Expense | 0.3708482477 | $428,830 | $428,830 | $159.03 | | |
| ISLANDEMS | Hospital GEN (EMS) | 0.5000000000 | $428,830 | $428,830 | $214.42 | | |
| LIB | Library Sno-Isle GEN | 0.3153421757 | $428,830 | $428,830 | $135.23 | | |
| LIBCAP | Library Sno-Isle BOND (Cap Fac Imp Area) | 0.0543427938 | $428,830 | $428,830 | $23.30 | | |
| POCOUP | Port of Coupeville GEN | 0.1093371703 | $428,830 | $428,830 | $46.89 | | |
| POCOUPIDD | Port of Coupeville IDD | 0.3409740022 | $428,830 | $428,830 | $146.22 | | |
| COUPSDTECH | School 204 CP (TECH) | 0.7545480007 | $428,830 | $428,830 | $323.57 | | |
| SCH204MO | School 204 Enrichment | 0.6716186034 | $428,830 | $428,830 | $288.01 | | |
| ST | State School | 1.3035497053 | $428,830 | $428,830 | $559.00 | | |
| ST2 | State School Part 2 | 0.8169543533 | $428,830 | $428,830 | $350.33 | | |
| | Total Tax Rate: | 8.0434218834 | | | | | |
| | | | | Taxes w/Current Exemptions: | $3,449.25 | | |
| | | | | Taxes w/o Exemptions: | $3,449.25 | | |
Improvement / Building
| Improvement #1: | RESIDENTIAL | State Code: | Y | 1202.6 sqft | Value: | $198,830 |
| Bathrooms: | 2.5 | Bedrooms: | 3 | | Ceiling: | DRYWALL PAINTED | Exterior Wall/Cover: | CEMENT FIBER | | Floor Covering: | CARPET/VINYL 80-20 | Floor Structure: | WOOD W/SUBFLOOR | | Foundation: | CONCRETE | Heating: | WALL HEAT ELECTRIC | | Interior Finish: | DRYWALL PAINT | Plumbing Fixture Cnt: | 11 | | Roof Slope: | 5" IN 12" | Roof Structure/Cover: | CJ ASPHALT |
|
| | Type | Description | Class CD | Sub Class CD | Year Built | Area |
| | BAS | BASE/MAIN FLOOR | 3 | 0 | 1994 | 539.6 |
| | OP4 | OPEN PORCH W/CEILING-ROOF | 3 | 0 | 1994 | 20.0 |
| | AGR | ATTACHED GARAGE | 3 | 0 | 1994 | 264.0 |
| | UPS | UPPER STORY | 3 | 0 | 1994 | 663.0 |
| | OWP | OPEN WOOD PORCH W/STEPS | 3 | 0 | 1994 | 110.0 |
Sketch
Property Image
Land
| 1 | 12 | SQ (00000-06000) | 0.1000 | 4356.00 | 0.00 | 0.00 | 1.00 | $230,000 | $0 |
Roll Value History
| 2026 | N/A | N/A | N/A | N/A | N/A |
| 2025 | $198,830 | $230,000 | $0 | $428,830 | $428,830 |
| 2024 | $196,321 | $230,000 | $0 | $426,321 | $426,321 |
| 2023 | $198,830 | $240,000 | $0 | $438,830 | $438,830 |
| 2022 | $182,322 | $170,000 | $0 | $352,322 | $352,322 |
| 2021 | $160,510 | $130,000 | $0 | $290,510 | $290,510 |
| 2020 | $155,805 | $110,000 | $0 | $265,805 | $265,805 |
| 2019 | $114,720 | $150,000 | $0 | $264,720 | $264,720 |
| 2018 | $106,062 | $140,000 | $0 | $246,062 | $246,062 |
| 2017 | $106,725 | $125,000 | $0 | $231,725 | $231,725 |
| 2016 | $108,125 | $115,000 | $0 | $223,125 | $223,125 |
| 2015 | $109,526 | $90,000 | $0 | $199,526 | $199,526 |
| 2014 | $110,925 | $85,000 | $0 | $195,925 | $195,925 |
| 2013 | $112,325 | $85,000 | $0 | $197,325 | $197,325 |
| 2012 | $112,911 | $89,250 | $0 | $202,161 | $202,161 |
| 2011 | $114,303 | $105,000 | $0 | $219,303 | $219,303 |
| 2010 | $116,376 | $105,000 | $0 | $221,376 | $221,376 |
| 2009 | $121,424 | $120,000 | $0 | $241,424 | $241,424 |
| 2008 | $122,921 | $124,000 | $0 | $246,921 | $246,921 |
| 2007 | $124,422 | $105,000 | $0 | $229,422 | $229,422 |
Deed and Sales History
| 1 | 08/13/2018 | WD | Warranty Deed | MERRMAN, ANN J | ZITO, ISAIAH | | | $260,000.00 | 35783 | 4451246 |
| 2 | 07/10/2001 | ESTSEPPROP | Establish Separate Property | MERRMAN, ANN J | MERRMAN, ANN J | | | $0.00 | 12843 | 20038427 |
| 3 | 07/07/2001 | WD | Warranty Deed | LAGERWEY, TIMOTHY E | MERRMAN, ANN J | | | $119,500.00 | 12602 | 20036941 |
| 4 | 07/01/1995 | WD | Warranty Deed | ISLAND, CONSTRUCTION I | LAGERWEY, TIMOTHY E | | | $114,000.00 | 52569 | 95011860 |
| 5 | 06/01/1994 | WD | Warranty Deed | STUURMANS, CECIL E | ISLAND, CONSTRUCTION I | | | $8,313.00 | 42720 | 94014947 |
| 6 | 11/01/1992 | WD | Warranty Deed | SUNSET, TERRACE A | STUURMANS, CECIL E | | | $0.00 | 24311 | 92021003 |
| 7 | 11/01/1989 | WD | Warranty Deed | STUURMANS, CECIL & | SUNSET, TERRACE A | | | $8,000.00 | 95298 | 89017060 |
| 8 | 01/01/1900 | OTHER | Other - Misc. Documents | Unknown | STUURMANS, CECIL & | | | $0.00 | 90644 | 89002263 |
Payout Agreement
| No payout information available.. |