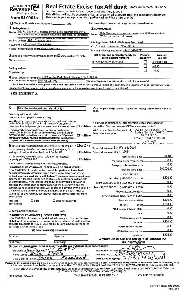
Property
Account |
| Property ID: | 644002 | Abbreviated Legal Description: | KIMBALL HTS #4 LOT 1 |
| Geographic ID: | S7275-04-00001-0 | Agent Code: | |
| Type: | Real | | |
| Tax Area: | 100 - APPRAISER-OH Schl Dist, in OH | Land Use Code | 11 |
| Open Space: | N | DFL | N |
| Historic Property: | N | Remodel Property: | N |
| Multi-Family Redevelopment: | N | | |
| Township: | | Section: | |
| Range: | |
Location |
| Address: | 1286 SW 6TH AVE OAK HARBOR, WA 98277 | Mapsco: | |
| Neighborhood: | Cycle 1 | Map ID: | 92 |
| Neighborhood CD: | 1 |
Owner |
| Name: | KRETCHMAN, KEITH A | Owner ID: | 272420 |
| Mailing Address: | TRACY L KRETCHMAN 1286 SW 6TH AVE OAK HARBOR, WA 98277 | % Ownership: | 100.0000000000% |
| | | Exemptions: | |
Taxes and Assessment Details
Values
| (+) Improvement Homesite Value: | + | $0 | |
| (+) Improvement Non-Homesite Value: | + | $368,291 | |
| (+) Land Homesite Value: | + | $0 | |
| (+) Land Non-Homesite Value: | + | $190,000 | |
| (+) Curr Use (HS): | + | $0 | $0 |
| (+) Curr Use (NHS): | + | $0 | $0 |
| | | -------------------------- | |
| (=) Market Value: | = | $558,291 | |
| (–) Productivity Loss: | – | $0 | |
| | | -------------------------- | |
| (=) Subtotal: | = | $558,291 | |
| (+) Senior Appraised Value: | + | $0 | |
| (+) Non-Senior Appraised Value: | + | $558,291 | |
| | | -------------------------- | |
| (=) Total Appraised Value: | = | $558,291 | |
| (–) Senior Exemption Loss: | – | $0 | |
| (–) Exemption Loss: | – | $0 | |
| | | -------------------------- | |
| (=) Taxable Value: | = | $558,291 | |
Taxing Jurisdiction
| Owner: | KRETCHMAN, KEITH A | | |
| % Ownership: | 100.0000000000% | | |
| Total Value: | $558,291 | | |
| Tax Area: | 100 - APPRAISER-OH Schl Dist, in OH |
| CF | Conservation Futures | 0.0316035091 | $558,291 | $558,291 | $17.64 | | |
| CEM1 | Cemetery #1 | 0.0040320932 | $558,291 | $558,291 | $2.25 | | |
| COH | City of Oak Harbor | 2.3001546061 | $558,291 | $558,291 | $1,284.16 | | |
| OAKBOND | City of Oak Harbor BOND | 0.1926904192 | $558,291 | $558,291 | $107.58 | | |
| HOBOND | Hospital BOND | 0.1910887512 | $558,291 | $558,291 | $106.68 | | |
| HOGEN | Hospital GEN | 0.3902502903 | $558,291 | $558,291 | $217.87 | | |
| CE | County Current Expense | 0.3708482477 | $558,291 | $558,291 | $207.04 | | |
| ISLANDEMS | Hospital GEN (EMS) | 0.5000000000 | $558,291 | $558,291 | $279.15 | | |
| LIB | Library Sno-Isle GEN | 0.3153421757 | $558,291 | $558,291 | $176.05 | | |
| NWHIDPRMT | P & R N Whidbey GEN | 0.2004466701 | $558,291 | $558,291 | $111.91 | | |
| SCH201MO | School 201 Enrichment | 1.8559231640 | $558,291 | $558,291 | $1,036.15 | | |
| ST | State School | 1.3035497053 | $558,291 | $558,291 | $727.76 | | |
| ST2 | State School Part 2 | 0.8169543533 | $558,291 | $558,291 | $456.10 | | |
| | Total Tax Rate: | 8.4728839852 | | | | | |
| | | | | Taxes w/Current Exemptions: | $4,730.34 | | |
| | | | | Taxes w/o Exemptions: | $4,730.34 | | |
Improvement / Building
| Improvement #1: | RESIDENTIAL | State Code: | Y | 2159.9 sqft | Value: | $368,291 |
| Bathrooms: | 2.5 | Bedrooms: | 4 | | Ceiling: | DRYWALL PAINTED | Cooling: | HEAT PUMP/CONV/V | | Exterior Wall/Cover: | VINYL | Floor Covering: | CARPET/VINYL 80-20 | | Floor Structure: | WOOD W/SUBFLOOR | Foundation: | CONCRETE | | Interior Finish: | DRYWALL PAINT | Plumbing Fixture Cnt: | 13 | | Roof Slope: | 6" IN 12" | Roof Structure/Cover: | CJ ASPHALT |
|
| | Type | Description | Class CD | Sub Class CD | Year Built | Area |
| | BAS | BASE/MAIN FLOOR | 3 | 0 | 1990 | 1368.6 |
| | OP4 | OPEN PORCH W/CEILING-ROOF | 3 | 0 | 1990 | 48.0 |
| | AGR | ATTACHED GARAGE | 3 | 0 | 1990 | 561.0 |
| | BIG | BUILT IN GARAGE | 3 | 0 | 1990 | 175.0 |
| | UPS | UPPER STORY | 3 | 0 | 1990 | 791.3 |
| | OWP | OPEN WOOD PORCH W/STEPS | 3 | 0 | 1990 | 314.0 |
Sketch
Property Image
Land
| 1 | 14 | SQ (08001-12000) | 0.0000 | 0.00 | 0.00 | 0.00 | 1.00 | $190,000 | $0 |
Roll Value History
| 2026 | N/A | N/A | N/A | N/A | N/A |
| 2025 | $368,291 | $190,000 | $0 | $558,291 | $558,291 |
| 2024 | $372,882 | $180,000 | $0 | $552,882 | $552,882 |
| 2023 | $368,291 | $190,000 | $0 | $558,291 | $558,291 |
| 2022 | $337,645 | $180,000 | $0 | $517,645 | $517,645 |
| 2021 | $293,607 | $120,000 | $0 | $413,607 | $413,607 |
| 2020 | $286,151 | $100,000 | $0 | $386,151 | $386,151 |
| 2019 | $217,958 | $150,000 | $0 | $367,958 | $367,958 |
| 2018 | $218,604 | $130,000 | $0 | $348,604 | $348,604 |
| 2017 | $205,914 | $110,000 | $0 | $315,914 | $315,914 |
| 2016 | $208,555 | $90,000 | $0 | $298,555 | $298,555 |
| 2015 | $211,195 | $70,000 | $0 | $281,195 | $281,195 |
| 2014 | $213,835 | $55,000 | $0 | $268,835 | $268,835 |
| 2013 | $216,474 | $55,000 | $0 | $271,474 | $271,474 |
| 2012 | $219,115 | $60,000 | $0 | $279,115 | $279,115 |
| 2011 | $243,878 | $50,000 | $0 | $293,878 | $293,878 |
| 2010 | $254,355 | $50,000 | $0 | $304,355 | $304,355 |
| 2009 | $265,038 | $60,000 | $0 | $325,038 | $325,038 |
| 2008 | $267,976 | $68,000 | $0 | $335,976 | $335,976 |
| 2007 | $270,914 | $68,000 | $0 | $338,914 | $338,914 |
Deed and Sales History
| 1 | 09/28/2015 | WD | Warranty Deed | BOND, GREG | KRETCHMAN, KEITH A | | | $287,000.00 | 21709 | 4387544 |
| 2 | 09/29/2015 | WD | Warranty Deed | BOND, JEAN | BOND, GREG | | | $287,000.00 | 21708 | |
| 3 | 11/04/1998 | ESTSEPPROP | Establish Separate Property | BOND, PARKER L | BOND, JEAN | | | $0.00 | 84858 | 98026764 |
| 4 | 11/04/1998 | ESTSEPPROP | Establish Separate Property | BOND, PARKER L | BOND, PARKER L | | | $0.00 | 84858 | 98026764 |
| 5 | 01/01/1998 | QCD | Quit Claim Deed | BOND, PARKER L | BOND, PARKER L | | | $0.00 | 80110 | 98000513 |
| 6 | 06/01/1991 | WD | Warranty Deed | DYKSTRA, WILLIAM S | BOND, PARKER L | | | $174,000.00 | 12258 | 91009703 |
| 7 | 06/01/1990 | WD | Warranty Deed | K, - H | DYKSTRA, WILLIAM S | | | $33,620.00 | 3285 | 90010689 |
| 8 | 01/01/1900 | OTHER | Other - Misc. Documents | Unknown | K, - H | | | $0.00 | 93494 | 89011730 |
Payout Agreement
| No payout information available.. |