Property
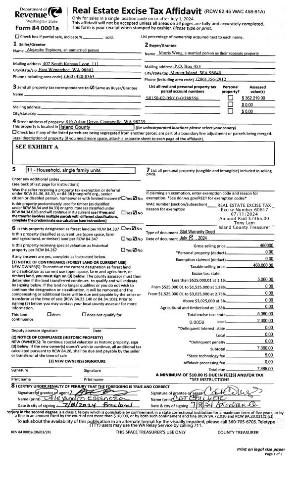
Account |
| Property ID: | 644020 | Abbreviated Legal Description: | KIMBALL HTS #4 LOT 3 TGW 1/48TH INT IN TR A |
| Geographic ID: | S7275-04-00003-0 | Agent Code: | |
| Type: | Real | | |
| Tax Area: | 100 - APPRAISER-OH Schl Dist, in OH | Land Use Code | 11 |
| Open Space: | N | DFL | N |
| Historic Property: | N | Remodel Property: | N |
| Multi-Family Redevelopment: | N | | |
| Township: | | Section: | |
| Range: | |
Location |
| Address: | 531 SW MUZZALL ST OAK HARBOR, WA 98277 | Mapsco: | |
| Neighborhood: | Cycle 1 | Map ID: | 92 |
| Neighborhood CD: | 1 |
Owner |
| Name: | MUTKA, HOLLY | Owner ID: | 292881 |
| Mailing Address: | JAMES MUTKA 531 SW MUZZALL ST OAK HARBOR, WA 98277 | % Ownership: | 100.0000000000% |
| | | Exemptions: | |
Taxes and Assessment Details
Values
| (+) Improvement Homesite Value: | + | $0 | |
| (+) Improvement Non-Homesite Value: | + | $366,339 | |
| (+) Land Homesite Value: | + | $0 | |
| (+) Land Non-Homesite Value: | + | $190,000 | |
| (+) Curr Use (HS): | + | $0 | $0 |
| (+) Curr Use (NHS): | + | $0 | $0 |
| | | -------------------------- | |
| (=) Market Value: | = | $556,339 | |
| (–) Productivity Loss: | – | $0 | |
| | | -------------------------- | |
| (=) Subtotal: | = | $556,339 | |
| (+) Senior Appraised Value: | + | $0 | |
| (+) Non-Senior Appraised Value: | + | $556,339 | |
| | | -------------------------- | |
| (=) Total Appraised Value: | = | $556,339 | |
| (–) Senior Exemption Loss: | – | $0 | |
| (–) Exemption Loss: | – | $0 | |
| | | -------------------------- | |
| (=) Taxable Value: | = | $556,339 | |
Taxing Jurisdiction
| Owner: | MUTKA, HOLLY | | |
| % Ownership: | 100.0000000000% | | |
| Total Value: | $556,339 | | |
| Tax Area: | 100 - APPRAISER-OH Schl Dist, in OH |
| CF | Conservation Futures | 0.0316035091 | $556,339 | $556,339 | $17.58 | | |
| CEM1 | Cemetery #1 | 0.0040320932 | $556,339 | $556,339 | $2.24 | | |
| COH | City of Oak Harbor | 2.3001546061 | $556,339 | $556,339 | $1,279.67 | | |
| OAKBOND | City of Oak Harbor BOND | 0.1926904192 | $556,339 | $556,339 | $107.20 | | |
| HOBOND | Hospital BOND | 0.1910887512 | $556,339 | $556,339 | $106.31 | | |
| HOGEN | Hospital GEN | 0.3902502903 | $556,339 | $556,339 | $217.11 | | |
| CE | County Current Expense | 0.3708482477 | $556,339 | $556,339 | $206.32 | | |
| ISLANDEMS | Hospital GEN (EMS) | 0.5000000000 | $556,339 | $556,339 | $278.17 | | |
| LIB | Library Sno-Isle GEN | 0.3153421757 | $556,339 | $556,339 | $175.44 | | |
| NWHIDPRMT | P & R N Whidbey GEN | 0.2004466701 | $556,339 | $556,339 | $111.52 | | |
| SCH201MO | School 201 Enrichment | 1.8559231640 | $556,339 | $556,339 | $1,032.52 | | |
| ST | State School | 1.3035497053 | $556,339 | $556,339 | $725.22 | | |
| ST2 | State School Part 2 | 0.8169543533 | $556,339 | $556,339 | $454.50 | | |
| | Total Tax Rate: | 8.4728839852 | | | | | |
| | | | | Taxes w/Current Exemptions: | $4,713.80 | | |
| | | | | Taxes w/o Exemptions: | $4,713.80 | | |
Improvement / Building
| Improvement #1: | RESIDENTIAL | State Code: | Y | 1734.4 sqft | Value: | $366,339 |
| Bathrooms: | 2.5 | Bedrooms: | 3 | | Ceiling: | DRYWALL PAINTED | Exterior Wall/Cover: | CEMENT FIBER | | Floor Covering: | HARDWOOD/CARP 60-40 | Floor Structure: | WOOD W/SUBFLOOR | | Foundation: | CONCRETE | Heating: | FHA GAS | | Interior Finish: | DRYWALL PAINT | Plumbing Fixture Cnt: | 12 | | Roof Slope: | 6" IN 12" | Roof Structure/Cover: | CJ ASPHALT |
|
| | Type | Description | Class CD | Sub Class CD | Year Built | Area |
| | BAS | BASE/MAIN FLOOR | 3 | 0 | 1990 | 1056.4 |
| | OP1 | OPEN PORCH SLAB | 3 | 0 | 1990 | 255.0 |
| | OP3 | OPEN PORCH W/ROOF | 3 | 0 | 1990 | 30.0 |
| | AGR | ATTACHED GARAGE | 3 | 0 | 1990 | 680.0 |
| | UPS | UPPER STORY | 3 | 0 | 1990 | 678.0 |
| | ENP | ENCLOSED PORCH | 3 | 0 | 1990 | 238.0 |
Sketch
Property Image
Land
| 1 | 14 | SQ (08001-12000) | 0.0000 | 0.00 | 0.00 | 0.00 | 1.00 | $190,000 | $0 |
Roll Value History
| 2026 | N/A | N/A | N/A | N/A | N/A |
| 2025 | $366,339 | $190,000 | $0 | $556,339 | $556,339 |
| 2024 | $370,739 | $180,000 | $0 | $550,739 | $550,739 |
| 2023 | $366,339 | $190,000 | $0 | $556,339 | $556,339 |
| 2022 | $335,704 | $180,000 | $0 | $515,704 | $515,704 |
| 2021 | $295,385 | $120,000 | $0 | $415,385 | $415,385 |
| 2020 | $287,523 | $100,000 | $0 | $387,523 | $387,523 |
| 2019 | $210,282 | $150,000 | $0 | $360,282 | $360,282 |
| 2018 | $210,885 | $130,000 | $0 | $340,885 | $340,885 |
| 2017 | $193,452 | $110,000 | $0 | $303,452 | $303,452 |
| 2016 | $195,870 | $90,000 | $0 | $285,870 | $285,870 |
| 2015 | $198,288 | $70,000 | $0 | $268,288 | $268,288 |
| 2014 | $200,706 | $55,000 | $0 | $255,706 | $255,706 |
| 2013 | $203,126 | $55,000 | $0 | $258,126 | $258,126 |
| 2012 | $205,543 | $60,000 | $0 | $265,543 | $265,543 |
| 2011 | $229,629 | $50,000 | $0 | $279,629 | $279,629 |
| 2010 | $238,985 | $50,000 | $0 | $288,985 | $288,985 |
| 2009 | $249,006 | $60,000 | $0 | $309,006 | $309,006 |
| 2008 | $251,843 | $68,000 | $0 | $319,843 | $319,843 |
| 2007 | $254,681 | $68,000 | $0 | $322,681 | $322,681 |
Deed and Sales History
| 1 | 11/19/2019 | WD | Warranty Deed | ERICKSON, PAUL E / FIDELINA L | MUTKA, HOLLY | | | $369,900.00 | 41442 | 4477408 |
| 2 | 01/01/1997 | WD | Warranty Deed | GEORGE, ROBERT B | ERICKSON, PAUL E | | | $182,500.00 | 70470 | 97002093 |
| 3 | 05/01/1991 | WD | Warranty Deed | ISLAND, PACIFIC C | GEORGE, ROBERT B | | | $159,900.00 | 11811 | 91007761 |
| 4 | 05/01/1990 | WD | Warranty Deed | K, - H | ISLAND, PACIFIC C | | | $35,620.00 | 3249 | 90010528 |
| 5 | 01/01/1900 | OTHER | Other - Misc. Documents | Unknown | K, - H | | | $0.00 | 93494 | 89011730 |
Payout Agreement
| No payout information available.. |