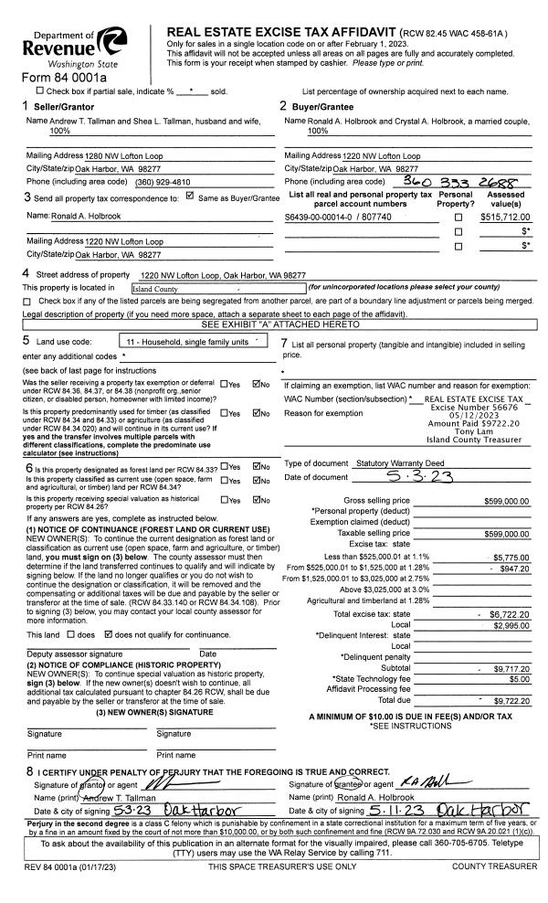
Property
Account |
| Property ID: | 644351 | Abbreviated Legal Description: | UTSALADY HTS - PRD LOT 18 |
| Geographic ID: | S8353-00-00018-0 | Agent Code: | |
| Type: | Real | | |
| Tax Area: | 510 - APPRAISER-Stan/Cam Schl Dist, improved & 1 acre or less | Land Use Code | 11 |
| Open Space: | N | DFL | N |
| Historic Property: | N | Remodel Property: | N |
| Multi-Family Redevelopment: | N | | |
| Township: | | Section: | |
| Range: | |
Location |
| Address: | 939 CAMBELL DR CAMANO ISLAND, WA 98282 | Mapsco: | |
| Neighborhood: | North Camano | Map ID: | 559 |
| Neighborhood CD: | 06-C |
Owner |
| Name: | SCOTT, BRIAN DAVID | Owner ID: | 296744 |
| Mailing Address: | MARY K BAHRAMI 939 CAMBELL DR CAMANO ISLAND, WA 98282 | % Ownership: | 100.0000000000% |
| | | Exemptions: | |
Taxes and Assessment Details
Values
| (+) Improvement Homesite Value: | + | $0 | |
| (+) Improvement Non-Homesite Value: | + | $538,142 | |
| (+) Land Homesite Value: | + | $0 | |
| (+) Land Non-Homesite Value: | + | $430,000 | |
| (+) Curr Use (HS): | + | $0 | $0 |
| (+) Curr Use (NHS): | + | $0 | $0 |
| | | -------------------------- | |
| (=) Market Value: | = | $968,142 | |
| (–) Productivity Loss: | – | $0 | |
| | | -------------------------- | |
| (=) Subtotal: | = | $968,142 | |
| (+) Senior Appraised Value: | + | $0 | |
| (+) Non-Senior Appraised Value: | + | $968,142 | |
| | | -------------------------- | |
| (=) Total Appraised Value: | = | $968,142 | |
| (–) Senior Exemption Loss: | – | $0 | |
| (–) Exemption Loss: | – | $0 | |
| | | -------------------------- | |
| (=) Taxable Value: | = | $968,142 | |
Taxing Jurisdiction
| Owner: | SCOTT, BRIAN DAVID | | |
| % Ownership: | 100.0000000000% | | |
| Total Value: | $968,142 | | |
| Tax Area: | 510 - APPRAISER-Stan/Cam Schl Dist, improved & 1 acre or less |
| CF | Conservation Futures | 0.0316035091 | $968,142 | $968,142 | $30.60 | | |
| EMS1 | Fire & Rescue Dist #1 Camano GEN (EMS) | 0.3677864386 | $968,142 | $968,142 | $356.07 | | |
| FIRE1 | Fire & Rescue Dist #1 Camano GEN | 1.2502910536 | $968,142 | $968,142 | $1,210.46 | | |
| FIRE1BOND | Fire & Rescue Dist #1 Camano BOND | 0.1570001679 | $968,142 | $968,142 | $152.00 | | |
| CE | County Current Expense | 0.3708482477 | $968,142 | $968,142 | $359.03 | | |
| CR | County Roads | 0.4584763726 | $968,142 | $968,142 | $443.87 | | |
| LCIB | Library Sno-Isle BOND (Camano Island) | 0.0396325772 | $968,142 | $968,142 | $38.37 | | |
| LIB | Library Sno-Isle GEN | 0.3153421757 | $968,142 | $968,142 | $305.30 | | |
| SCH205_401 | School 205-401 Enrichment | 1.2698420524 | $968,142 | $968,142 | $1,229.39 | | |
| SCH205BOND | School 205-401 BOND | 0.9396497583 | $968,142 | $968,142 | $909.71 | | |
| ST | State School | 1.3035497053 | $968,142 | $968,142 | $1,262.02 | | |
| ST2 | State School Part 2 | 0.8169543533 | $968,142 | $968,142 | $790.93 | | |
| | Total Tax Rate: | 7.3209764117 | | | | | |
| | | | | Taxes w/Current Exemptions: | $7,087.75 | | |
| | | | | Taxes w/o Exemptions: | $7,087.75 | | |
Improvement / Building
| Improvement #1: | RESIDENTIAL | State Code: | Y | 2298.0 sqft | Value: | $538,142 |
| Bathrooms: | 2.5 | Bedrooms: | 3 | | Ceiling: | DRYWALL PAINTED | Cooling: | HEAT PUMP/CONV/V | | Exterior Wall/Cover: | CEMENT FIBER | Floor Covering: | HARDWOOD/CARP 20-80 | | Floor Structure: | WOOD W/SUBFLOOR | Foundation: | CONCRETE | | Interior Finish: | DRYWALL PAINT | Plumbing Fixture Cnt: | 14 | | Roof Slope: | 6" IN 12" | Roof Structure/Cover: | CJ ASPHALT |
|
| | Type | Description | Class CD | Sub Class CD | Year Built | Area |
| | BAS | BASE/MAIN FLOOR | 4 | 0 | 2003 | 2298.0 |
| | UB8 | BASEMENT UNFINISHED 8" | 4 | 0 | 2003 | 345.0 |
| | OP4 | OPEN PORCH W/CEILING-ROOF | 4 | 0 | 2003 | 28.0 |
| | AGR | ATTACHED GARAGE | 4 | 0 | 2003 | 795.0 |
| | OWP | OPEN WOOD PORCH W/STEPS | 4 | 0 | 2003 | 944.0 |
Sketch
Property Image
Land
| 1 | 15 | SQ (12001-21780) | 0.0000 | 0.00 | 0.00 | 0.00 | 1.00 | $430,000 | $0 |
Roll Value History
| 2026 | N/A | N/A | N/A | N/A | N/A |
| 2025 | $538,142 | $430,000 | $0 | $968,142 | $968,142 |
| 2024 | $544,454 | $430,000 | $0 | $974,454 | $974,454 |
| 2023 | $550,767 | $430,000 | $0 | $980,767 | $980,767 |
| 2022 | $481,582 | $290,000 | $0 | $771,582 | $771,582 |
| 2021 | $423,746 | $200,000 | $0 | $623,746 | $623,746 |
| 2020 | $412,553 | $190,000 | $0 | $602,553 | $602,553 |
| 2019 | $307,784 | $230,000 | $0 | $537,784 | $537,784 |
| 2018 | $308,666 | $200,000 | $0 | $508,666 | $508,666 |
| 2017 | $310,429 | $180,000 | $0 | $490,429 | $490,429 |
| 2016 | $314,250 | $135,000 | $0 | $449,250 | $449,250 |
| 2015 | $319,742 | $150,000 | $0 | $469,742 | $469,742 |
| 2014 | $323,294 | $150,000 | $0 | $473,294 | $473,294 |
| 2013 | $326,847 | $150,000 | $0 | $476,847 | $476,847 |
| 2012 | $330,399 | $140,000 | $0 | $470,399 | $470,399 |
| 2011 | $333,952 | $175,000 | $0 | $508,952 | $508,952 |
| 2010 | $351,965 | $77,190 | $0 | $429,155 | $429,155 |
| 2009 | $366,714 | $120,000 | $0 | $486,714 | $486,714 |
| 2008 | $388,033 | $100,000 | $0 | $488,033 | $488,033 |
| 2007 | $388,275 | $100,000 | $0 | $488,275 | $488,275 |
Deed and Sales History
| 1 | 10/14/2020 | WD | Warranty Deed | NATIONAL RESIDENTIAL NOMINEE SERVICES, INC | SCOTT, BRIAN DAVID | | | $677,000.00 | 45779 | 4502860 |
| 2 | 09/30/2020 | WD | Warranty Deed | WINNICKI, ANATASIA | NATIONAL RESIDENTIAL NOMINEE SERVICES, INC | | | $677,000.00 | 45778 | 4502859 |
| 3 | 06/05/2015 | WD | Warranty Deed | SIEVERS, ROBERT A | WINNICKI, ANATASIA | | | $435,000.00 | 19945 | 4379928 |
| 4 | 05/29/2003 | WD | Warranty Deed | WOOLBERT, ARTHUR L | SIEVERS, ROBERT A | | | $339,000.00 | 32284 | 4060949 |
| 5 | 07/08/2002 | WD | Warranty Deed | SANDS, GENEVIEVE | WOOLBERT, ARTHUR L | | | $67,500.00 | 22678 | 4025335 |
| 6 | 03/11/1999 | OTHER | Other - Misc. Documents | SANDS, CARROLL J | SANDS, GENEVIEVE | | | $0.00 | 91203 | 99007889 |
| 7 | 11/01/1996 | QCD | Quit Claim Deed | GUDGELL, LYLE D | SANDS, CARROLL J | | | $0.00 | 64238 | 96020664 |
| 8 | 08/01/1990 | WD | Warranty Deed | UTSALADY, HEIGHTS | GUDGELL, LYLE D | | | $85,000.00 | 4798 | 90015850 |
| 9 | 01/01/1900 | OTHER | Other - Misc. Documents | Unknown | UTSALADY, HEIGHTS | | | $0.00 | 90220 | 89000782 |
Payout Agreement
| No payout information available.. |