Property
Account |
| Property ID: | 644574 | Abbreviated Legal Description: | UTSALADY HTS - PRD LOT 40 TGW EZ AF#95012230 |
| Geographic ID: | S8353-00-00040-0 | Agent Code: | |
| Type: | Real | | |
| Tax Area: | 510 - APPRAISER-Stan/Cam Schl Dist, improved & 1 acre or less | Land Use Code | 11 |
| Open Space: | N | DFL | N |
| Historic Property: | N | Remodel Property: | N |
| Multi-Family Redevelopment: | N | | |
| Township: | | Section: | |
| Range: | |
Location |
| Address: | 932 GRENNAN PLACE CAMANO ISLAND, WA 98282 | Mapsco: | |
| Neighborhood: | North Camano | Map ID: | 559 |
| Neighborhood CD: | 06-C |
Owner |
| Name: | EGAN, MARCELLA | Owner ID: | 305423 |
| Mailing Address: | 932 GRENNAN PL CAMANO ISLAND, WA 98282 | % Ownership: | 100.0000000000% |
| | | Exemptions: | |
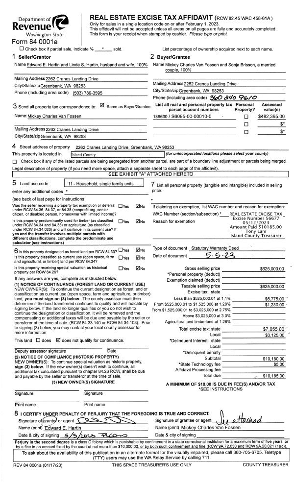
Taxes and Assessment Details
Values
| (+) Improvement Homesite Value: | + | $0 | |
| (+) Improvement Non-Homesite Value: | + | $295,652 | |
| (+) Land Homesite Value: | + | $0 | |
| (+) Land Non-Homesite Value: | + | $350,000 | |
| (+) Curr Use (HS): | + | $0 | $0 |
| (+) Curr Use (NHS): | + | $0 | $0 |
| | | -------------------------- | |
| (=) Market Value: | = | $645,652 | |
| (–) Productivity Loss: | – | $0 | |
| | | -------------------------- | |
| (=) Subtotal: | = | $645,652 | |
| (+) Senior Appraised Value: | + | $0 | |
| (+) Non-Senior Appraised Value: | + | $645,652 | |
| | | -------------------------- | |
| (=) Total Appraised Value: | = | $645,652 | |
| (–) Senior Exemption Loss: | – | $0 | |
| (–) Exemption Loss: | – | $0 | |
| | | -------------------------- | |
| (=) Taxable Value: | = | $645,652 | |
Taxing Jurisdiction
| Owner: | EGAN, MARCELLA | | |
| % Ownership: | 100.0000000000% | | |
| Total Value: | $645,652 | | |
| Tax Area: | 510 - APPRAISER-Stan/Cam Schl Dist, improved & 1 acre or less |
| CF | Conservation Futures | 0.0316035091 | $645,652 | $645,652 | $20.40 | | |
| EMS1 | Fire & Rescue Dist #1 Camano GEN (EMS) | 0.3677864386 | $645,652 | $645,652 | $237.46 | | |
| FIRE1 | Fire & Rescue Dist #1 Camano GEN | 1.2502910536 | $645,652 | $645,652 | $807.25 | | |
| FIRE1BOND | Fire & Rescue Dist #1 Camano BOND | 0.1570001679 | $645,652 | $645,652 | $101.37 | | |
| CE | County Current Expense | 0.3708482477 | $645,652 | $645,652 | $239.44 | | |
| CR | County Roads | 0.4584763726 | $645,652 | $645,652 | $296.02 | | |
| LCIB | Library Sno-Isle BOND (Camano Island) | 0.0396325772 | $645,652 | $645,652 | $25.59 | | |
| LIB | Library Sno-Isle GEN | 0.3153421757 | $645,652 | $645,652 | $203.60 | | |
| SCH205_401 | School 205-401 Enrichment | 1.2698420524 | $645,652 | $645,652 | $819.88 | | |
| SCH205BOND | School 205-401 BOND | 0.9396497583 | $645,652 | $645,652 | $606.69 | | |
| ST | State School | 1.3035497053 | $645,652 | $645,652 | $841.64 | | |
| ST2 | State School Part 2 | 0.8169543533 | $645,652 | $645,652 | $527.47 | | |
| | Total Tax Rate: | 7.3209764117 | | | | | |
| | | | | Taxes w/Current Exemptions: | $4,726.81 | | |
| | | | | Taxes w/o Exemptions: | $4,726.81 | | |
Improvement / Building
| Improvement #1: | RESIDENTIAL | State Code: | Y | 1836.0 sqft | Value: | $295,652 |
| Bathrooms: | 2.5 | Bedrooms: | 3 | | Ceiling: | DRYWALL PAINTED | Exterior Wall/Cover: | PLY/HARDBOARD T-111 | | Floor Covering: | CARPET/VINYL 80-20 | Floor Structure: | WOOD W/SUBFLOOR | | Foundation: | CONCRETE | Heating: | FHA ELECTRIC | | Interior Finish: | DRYWALL PAINT | Plumbing Fixture Cnt: | 11 | | Roof Slope: | 5" IN 12" | Roof Structure/Cover: | CJ ASPHALT |
|
| | Type | Description | Class CD | Sub Class CD | Year Built | Area |
| | BAS | BASE/MAIN FLOOR | 3 | 0 | 1995 | 1236.0 |
| | BGR | BASEMENT GARAGE | 3 | 0 | 1995 | 552.0 |
| | OWP | OPEN WOOD PORCH W/STEPS | 3 | 0 | 1995 | 310.8 |
| | OWC | OPEN WOOD PORCH W/STEPS/ROOF/C | 3 | 0 | 1995 | 24.0 |
| | DWN | DOWNSTAIRS LIVING AREA | 3 | 0 | 1995 | 600.0 |
Sketch
Property Image
Land
| 1 | 17 | AC (01.01-02.00) | 0.0000 | 0.00 | 0.00 | 0.00 | 1.00 | $350,000 | $0 |
Roll Value History
| 2026 | N/A | N/A | N/A | N/A | N/A |
| 2025 | $295,652 | $350,000 | $0 | $645,652 | $645,652 |
| 2024 | $299,291 | $300,000 | $0 | $599,291 | $599,291 |
| 2023 | $302,929 | $290,000 | $0 | $592,929 | $592,929 |
| 2022 | $264,430 | $280,000 | $0 | $544,430 | $544,430 |
| 2021 | $232,815 | $130,000 | $0 | $362,815 | $362,815 |
| 2020 | $226,870 | $130,000 | $0 | $356,870 | $356,870 |
| 2019 | $168,622 | $170,000 | $0 | $338,622 | $338,622 |
| 2018 | $169,129 | $150,000 | $0 | $319,129 | $319,129 |
| 2017 | $170,141 | $120,000 | $0 | $290,141 | $290,141 |
| 2016 | $160,915 | $115,000 | $0 | $275,915 | $275,915 |
| 2015 | $162,855 | $100,000 | $0 | $262,855 | $262,855 |
| 2014 | $164,793 | $64,000 | $0 | $228,793 | $228,793 |
| 2013 | $166,731 | $64,000 | $0 | $230,731 | $230,731 |
| 2012 | $168,671 | $64,000 | $0 | $232,671 | $232,671 |
| 2011 | $170,610 | $80,000 | $0 | $250,610 | $250,610 |
| 2010 | $164,432 | $80,000 | $0 | $244,432 | $244,432 |
| 2009 | $171,410 | $100,000 | $0 | $271,410 | $271,410 |
| 2008 | $173,629 | $112,000 | $0 | $285,629 | $285,629 |
| 2007 | $175,847 | $112,000 | $0 | $287,847 | $287,847 |
Deed and Sales History
| 1 | 08/05/2022 | WD | Warranty Deed | FISHER, JOHN R | EGAN, MARCELLA | | | $650,000.00 | 54106 | 4549477 |
| 2 | 06/09/1998 | WD | Warranty Deed | FISHER, JOHN R | FISHER, JOHN R | | | $161,000.00 | 82278 | 98011869 |
| 3 | 03/01/1995 | WD | Warranty Deed | G, A P | BELISLE, MAURICE M | | | $140,000.00 | 50856 | 95004172 |
| 4 | 10/01/1994 | WD | Warranty Deed | UTSALADY, HTS J | G, A P | | | $35,000.00 | 44253 | 94021984 |
| 5 | 10/01/1991 | OTHER | Other - Misc. Documents | UTSALADY, HTS J | UTSALADY, HTS J | | | $0.00 | 64494 | 0 |
| 6 | 01/01/1900 | OTHER | Other - Misc. Documents | Unknown | UTSALADY, HTS J | | | $0.00 | 90220 | 89000782 |
| 7 | 01/01/1900 | OTHER | Other - Misc. Documents | BELISLE, MAURICE M | FISHER, JOHN R | | | $0.00 | 82278 | 98011869 |
Payout Agreement
| No payout information available.. |